Информационная система
«Ёшкин Кот»

Скачать базу одним архивом
Скачать обновления
История создания базы
Карта сайта

Скачать Серия 1.432.1-20 Выпуск 2. Стеновые панели. Рабочие чертежи

Дата актуализации: 10.08.2017

Серия 1.432.1-20

Выпуск 2. Стеновые панели. Рабочие чертежи

Обозначение: Серия 1.432.1-20
Обозначение англ: Series 1.432.1-20
Статус:не определен законодательством
Название рус.:Выпуск 2. Стеновые панели. Рабочие чертежи
Дата добавления в базу:01.09.2013
Дата актуализации:05.05.2017
Дата введения:01.07.1988
Область применения:Настоящий выпуск содержит рабочие чертежи железобетонных предварительно-напряженных стеновых панелей длиной 12 м для неотапливаемых производственных зданий
Оглавление:1.432.1-20.2-00.0000 ТТ Технические требования
1.432.1-20.2-01.0000 Панель стеновая рядовая ПС120.12 (ПС120.12-1АтУТ-1… ПС120.12-2А1УТ-1)
1.432.1-20.2-01.0000 СБ Панель стеновая рядовая ПС120.12 (ПС120.12-1АтУТ-1… ПС120.12-2А1УТ-1). Сборочный чертеж (опалубка)
1.432.1-20.2-02.0000 Панель стеновая рядовая ПС120.18 (ПС120.18-1АтУТ-1… ПС120.18-2А1УТ-1)
1.432.1-20.2-02.0000 СБ Панель стеновая рядовая ПС120.18 (ПС120.18-1АтУТ-1… ПС120.18-2А1УТ-1). Сборочный чертеж (опалубка)
1.432.1-20.2-03.0000 Панель стеновая рядовая ПС120.24 (ПС120.24-1АтУТ-1… ПС120.24-2А1УТ-1)
1.432.1-20.2-03.0000 СБ Панель стеновая рядовая ПС120.24 (ПС120.24-1АтУТ-1… ПС120.24-2А1УТ-1). Сборочный чертеж (опалубка)
1.432.1-20.2-04.0000 Панель стеновая рядовая ПС120.12 (ПС120.12-1АтУТ-2… ПС120.12-2А1УТ-2)
1.432.1-20.2-04.0000 СБ Панель стеновая парапетная ПС120.12 (ПС120.12-1АтУТ-2… ПС120.12-2А1УТ-2). Сборочный чертеж (опалубка)
1.432.1-20.2-05.0000 Панель стеновая парапетная ПС120.18 (ПС120.18-1АтУТ-2… ПС120.18-2А1УТ-2)
1.432.1-20.2-05.0000 СБ Панель стеновая парапетная ПС120.18 (ПС120.18-1АтУТ-2… ПС120.18-2А1УТ-2). Сборочный чертеж (опалубка)
1.432.1-20.2-06.0000 Панель стеновая парапетная ПС120.24 (ПС120.24-1АтУТ-2… ПС120.24-2А1УТ-2)
1.432.1-20.2-06.0000 СБ Панель стеновая парапетная ПС120.24 (ПС120.24-1АтУТ-2… ПС120.24-2А1УТ-2). Сборочный чертеж (опалубка)
1.432.1-20.2-07.0000 Панель стеновая рядовая ПС120.12 (ПС120.12-1АтУТ-3… ПС120.12-2А1УТ-3)
1.432.1-20.2-07.0000 СБ Панель стеновая парапетная ПС120.12 (ПС120.12-1АтУТ-3… ПС120.12-2А1УТ-3). Сборочный чертеж (опалубка)
1.432.1-20.2-08.0000 Панель стеновая парапетная ПС120.18 (ПС120.18-1АтУТ-3… ПС120.18-2А1УТ-3)
1.432.1-20.2-08.0000 СБ Панель стеновая парапетная ПС120.18 (ПС120.18-1АтУТ-3… ПС120.18-2А1УТ-3). Сборочный чертеж (опалубка)
1.432.1-20.2-09.0000 Панель стеновая парапетная ПС120.24 (ПС120.24-1АтУТ-3… ПС120.24-2А1УТ-3)
1.432.1-20.2-09.0000 СБ Панель стеновая парапетная ПС120.24 (ПС120.24-1АтУТ-3… ПС120.24-2А1УТ-3). Сборочный чертеж (опалубка)
1.432.1-20.2-10.0000 Панель стеновая перемычка ПС120.12 (ПС120.12-2АтУТ-4… ПС120.12-2А1УТ-4)
1.432.1-20.2-10.0000 СБ Панель стеновая перемычка ПС120.12 (ПС120.22-2АтУТ-4… ПС120.12-2А1УТ-4). Сборочный чертеж (опалубка)
1.432.1-20.2-11.0000 Панель стеновая перемычка ПС120.18 (ПС120.18-2АтУТ-4… ПС120.18-2А1УТ-4)
1.432.1-20.2-11.0000 СБ Панель стеновая перемычка ПС120.18 (ПС120.18-2АтУТ-4… ПС120.18-2А1УТ-4). Сборочный чертеж (опалубка)
1.432.1-20.2-12.0000 Панель стеновая перемычка ПС120.24 (ПС120.24-2АтУТ-4… ПС120.24-2А1УТ-4)
1.432.1-20.2-12.0000 СБ Панель стеновая перемычка ПС120.24 (ПС120.24-2АтУТ-4… ПС120.24-2А1УТ-4). Сборочный чертеж (опалубка)
1.432.1-20.2-13.0000 Панель стеновая подкарнизная ПС120.12 (ПС120.12-1АтУТ-5… ПС120.12-2А1УТ-5)
1.432.1-20.2-13.0000 СБ Панель стеновая подкарнизная ПС120.12 (ПС120.12-1АтУТ-5… ПС120.12-2А1УТ-5). Сборочный чертеж (опалубка)
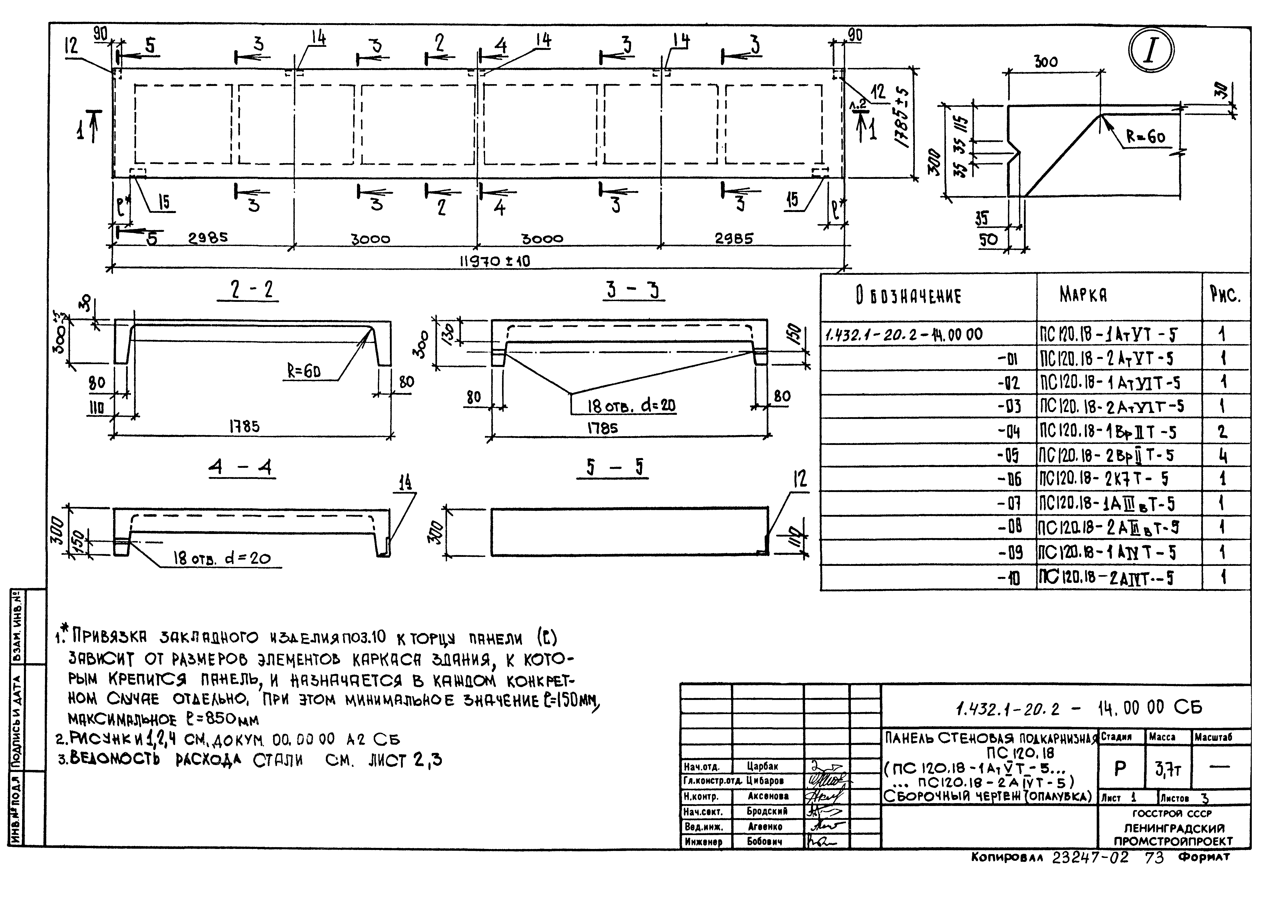
1.432.1-20.2-14.0000 Панель стеновая подкарнизная ПС120.18 (ПС120.18-1АтУТ-5… ПС120.18-2А1УТ-5)
1.432.1-20.2-14.0000 СБ Панель стеновая подкарнизная ПС120.18 (ПС120.18-1АтУТ-5… ПС120.18-2А1УТ-5). Сборочный чертеж (опалубка)
1.432.1-20.2-15.0000 Панель стеновая подкарнизная ПС120.24 (ПС120.24-1АтУТ-5… ПС120.24-2А1УТ-45
1.432.1-20.2-15.0000 СБ Панель стеновая подкарнизная ПС120.24 (ПС120.24-1АтУТ-5… ПС120.24-2А1УТ-5). Сборочный чертеж (опалубка)
1.432.1-20.2-16.0000 Панель стеновая перемычка подкарнизная ПС120.12 (ПС120.12-2АтУТ-6… ПС120.12-2А1УТ-6)
1.432.1-20.2-16.0000 СБ Панель стеновая перемычка подкарнизная ПС120.12 (ПС120.22-2АтУТ-6… ПС120.12-2А1УТ-6). Сборочный чертеж (опалубка)
1.432.1-20.2-17.0000 Панель стеновая перемычка подкарнизная ПС120.18 (ПС120.18-2АтУТ-6… ПС120.18-2А1УТ-6)
1.432.1-20.2-17.0000 СБ Панель стеновая перемычка подкарнизная ПС120.18 (ПС120.18-2АтУТ-6… ПС120.18-2А1УТ-6). Сборочный чертеж (опалубка)
1.432.1-20.2-18.0000 Панель стеновая перемычка подкарнизная ПС120.24 (ПС120.24-2АтУТ-6… ПС120.24-2А1УТ-6)
1.432.1-20.2-18.0000 СБ Панель стеновая перемычка подкарнизная ПС120.24 (ПС120.24-2АтУТ-6… ПС120.24-2А1УТ-6). Сборочный чертеж (опалубка)
1.432.1-20.2-19.0000 Панель стеновая рядовая с дверным проемом ПС120.24 (ПС120.24-1АтУТ-7… ПС120.24-1А1УТ-7)
1.432.1-20.2-19.0000 СБ Панель стеновая рядовая с дверным проемом ПС120.24 (ПС120.24-1АтУТ-7… ПС120.24-1А1УТ-7). Сборочный чертеж (опалубка)
1.432.1-20.2-20.0000 Панель стеновая рядовая с оконными проемами ПС120.24 (ПС120.24-1АтУТ-8… ПС120.24-1А1УТ-8)
1.432.1-20.2-20.0000 СБ Панель стеновая рядовая с оконными проемами ПС120.24 (ПС120.24-1АтУТ-8… ПС120.24-1А1УТ-8). Сборочный чертеж (опалубка)
1.432.1-20.2-21.0000 СБ Панель стеновая ПСН 120. (ПСН120.12-1АтУТ-1… ПСН120.24-1А1УТ-8). Сборочный чертеж
1.432.1-20.2-00.0000 А1СБ Панель стеновая ПС (рядовая, парапетная, перемычка). Сборочный чертеж (армирование)
1.432.1-20.2-00.0000 А2СБ Панель стеновая ПС (подкарнизная, перемычка подкарнизная). Сборочный чертеж (армирование)
1.432.1-20.2-22.0000 Угловой блок УБ ( УБ12.30-Т… УБ24.30-Т)
1.432.1-20.2-22.0000 СБ Угловой блок УБ ( УБ12.30-Т… УБ24.30-Т). Сборочный чертеж
1.432.1-20.2-23.0000 Угловой блок УБ ( УБ12.55-Т… УБ24.55-Т)
1.432.1-20.2-23.0000 СБ Угловой блок УБ ( УБ12.55-Т… УБ24.55-Т). Сборочный чертеж
1.432.1-20.2-24.0000 Угловой блок УБ ( УБ12.80-Т… УБ24.80-Т)
1.432.1-20.2-24.0000 СБ Угловой блок УБ ( УБ12.80-Т… УБ24.80-Т). Сборочный чертеж
1.432.1-20.2-00.0000 ВРС Угловой блок УБ. Ведомость расхода стали
Разработан: НИИЖБ Госстроя СССР
Ленинградский Промстройпроект
Утверждён:28.12.1987 Госстрой СССР (Государственный комитет Совета Министров СССР по делам строительства) (USSR Gosstroy 6/6-4629)
Издан: ЦИТП Госстроя СССР (CITP, Gosstroy (USSR) 1988 г. )
Расположен в:Техническая документация Строительство Справочные документы Типовые строительные конструкции, изделия и узлы Общероссийский строительный каталог Строительные конструкции, изделия и узлы зданий и сооружений для всех видов строительства Конструкции, изделия и узлы зданий Ограждающие конструкции Стены наружные Панели (бетонные и железобетонные)
Заменяет собой:
Нормативные ссылки:
Серия 1.432.1-20Серия 1.432.1-20Серия 1.432.1-20Серия 1.432.1-20Серия 1.432.1-20Серия 1.432.1-20Серия 1.432.1-20Серия 1.432.1-20Серия 1.432.1-20Серия 1.432.1-20Серия 1.432.1-20Серия 1.432.1-20Серия 1.432.1-20Серия 1.432.1-20Серия 1.432.1-20Серия 1.432.1-20Серия 1.432.1-20Серия 1.432.1-20Серия 1.432.1-20Серия 1.432.1-20Серия 1.432.1-20Серия 1.432.1-20Серия 1.432.1-20Серия 1.432.1-20Серия 1.432.1-20Серия 1.432.1-20Серия 1.432.1-20Серия 1.432.1-20Серия 1.432.1-20Серия 1.432.1-20Серия 1.432.1-20Серия 1.432.1-20Серия 1.432.1-20Серия 1.432.1-20Серия 1.432.1-20Серия 1.432.1-20Серия 1.432.1-20Серия 1.432.1-20Серия 1.432.1-20Серия 1.432.1-20Серия 1.432.1-20Серия 1.432.1-20Серия 1.432.1-20Серия 1.432.1-20Серия 1.432.1-20Серия 1.432.1-20Серия 1.432.1-20Серия 1.432.1-20Серия 1.432.1-20Серия 1.432.1-20Серия 1.432.1-20Серия 1.432.1-20Серия 1.432.1-20Серия 1.432.1-20Серия 1.432.1-20Серия 1.432.1-20Серия 1.432.1-20Серия 1.432.1-20Серия 1.432.1-20Серия 1.432.1-20Серия 1.432.1-20Серия 1.432.1-20Серия 1.432.1-20Серия 1.432.1-20Серия 1.432.1-20Серия 1.432.1-20Серия 1.432.1-20Серия 1.432.1-20Серия 1.432.1-20Серия 1.432.1-20Серия 1.432.1-20Серия 1.432.1-20Серия 1.432.1-20Серия 1.432.1-20Серия 1.432.1-20Серия 1.432.1-20Серия 1.432.1-20Серия 1.432.1-20Серия 1.432.1-20Серия 1.432.1-20Серия 1.432.1-20Серия 1.432.1-20Серия 1.432.1-20Серия 1.432.1-20Серия 1.432.1-20Серия 1.432.1-20Серия 1.432.1-20Серия 1.432.1-20Серия 1.432.1-20Серия 1.432.1-20Серия 1.432.1-20Серия 1.432.1-20Серия 1.432.1-20Серия 1.432.1-20Серия 1.432.1-20Серия 1.432.1-20Серия 1.432.1-20Серия 1.432.1-20Серия 1.432.1-20Серия 1.432.1-20Серия 1.432.1-20Серия 1.432.1-20Серия 1.432.1-20Серия 1.432.1-20Серия 1.432.1-20Серия 1.432.1-20Серия 1.432.1-20Серия 1.432.1-20Серия 1.432.1-20Серия 1.432.1-20Серия 1.432.1-20Серия 1.432.1-20Серия 1.432.1-20Серия 1.432.1-20Серия 1.432.1-20Серия 1.432.1-20Серия 1.432.1-20Серия 1.432.1-20Серия 1.432.1-20Серия 1.432.1-20Серия 1.432.1-20Серия 1.432.1-20Серия 1.432.1-20Серия 1.432.1-20Серия 1.432.1-20Серия 1.432.1-20Серия 1.432.1-20Серия 1.432.1-20Серия 1.432.1-20Серия 1.432.1-20Серия 1.432.1-20Серия 1.432.1-20Серия 1.432.1-20Серия 1.432.1-20Серия 1.432.1-20Серия 1.432.1-20Серия 1.432.1-20Серия 1.432.1-20Серия 1.432.1-20Серия 1.432.1-20Серия 1.432.1-20Серия 1.432.1-20

© 2013 Ёшкин Кот :-) Карта сайта