Информационная система
«Ёшкин Кот»

Скачать базу одним архивом
Скачать обновления
История создания базы
Карта сайта

Скачать Серия 1.132.1-21.98 Выпуск 0. Материалы для проектирования

Дата актуализации: 10.08.2017

Серия 1.132.1-21.98

Выпуск 0. Материалы для проектирования

Обозначение: Серия 1.132.1-21.98
Обозначение англ: Series 1.132.1-21.98
Статус:не определен законодательством
Название рус.:Выпуск 0. Материалы для проектирования
Дата добавления в базу:01.09.2013
Дата актуализации:05.05.2017
Дата введения:01.02.1998
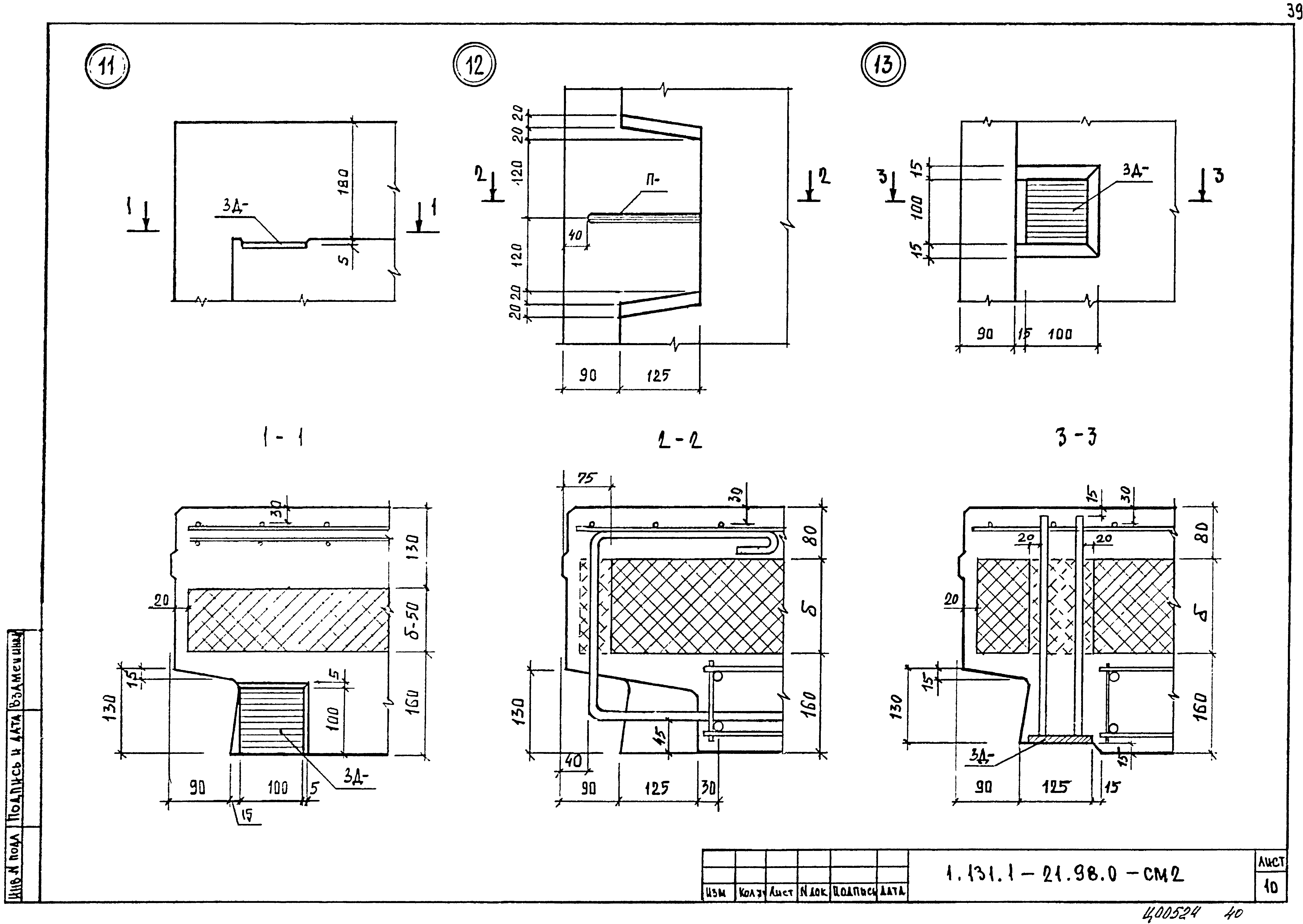
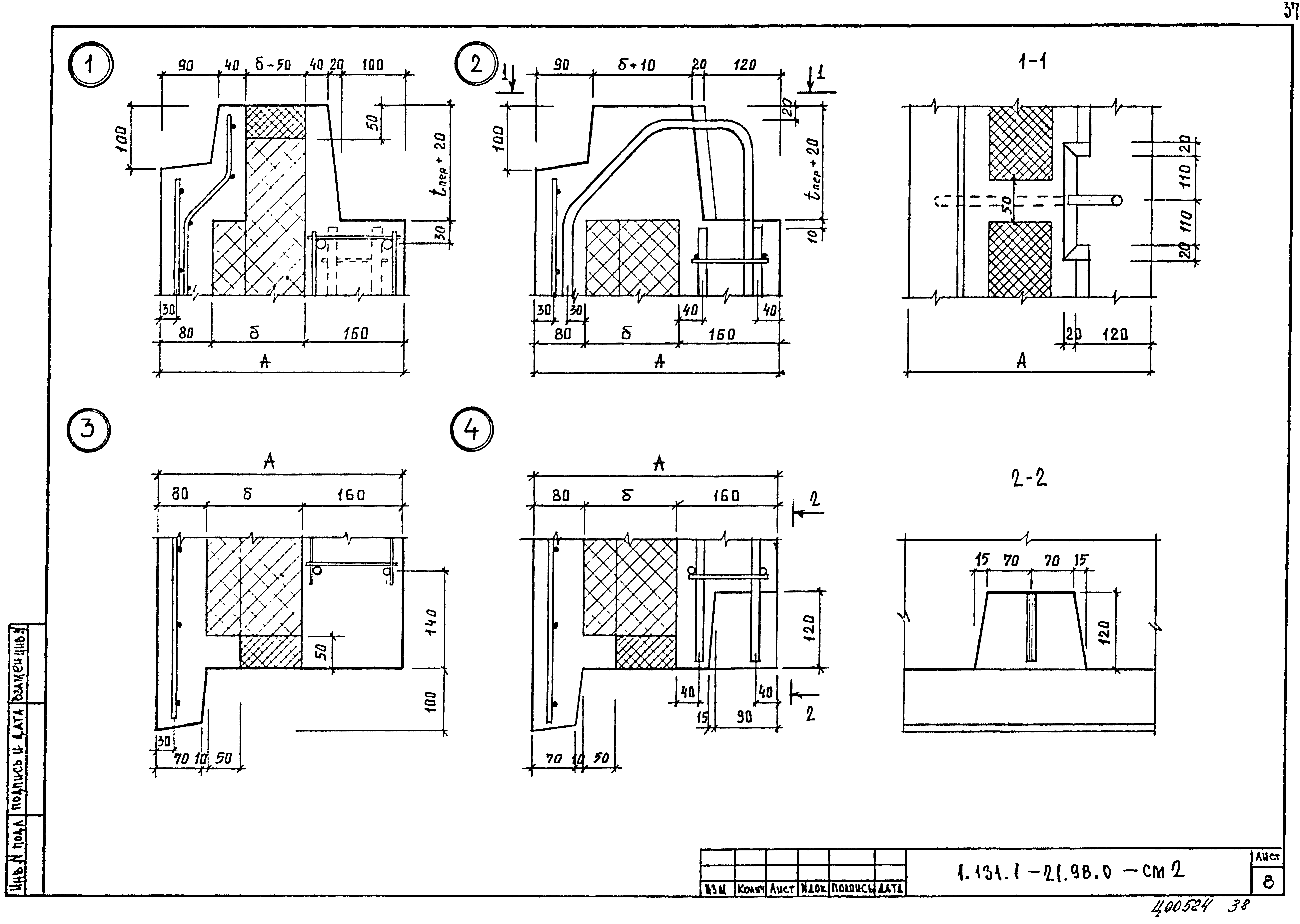
Область применения:В составе настоящего выпуска представлены материалы для проектирования наружных трехслойных железобетонных панелей с эффективным утеплителем для строительства крупнопанельных жилых зданий в зонах с обычными инженерно-геологическими условиями строительства и на площадках с сейсмичностью 7, 8 и 9 баллов
Оглавление:1.132.1-21.96.0-ПЗ Пояснительная записка
1.132.1-21.96.0-СМ1 Справочный материал /обычные условия строительства/
1.132.1-21.96.0-СМ2 Справочный материал /для сейсмичности 7, 8 и 9 баллов/
Разработан: КБ им. А.А. Якушева
Утверждён:30.01.1998 Госстрой России (Russian Federation Gosstroy 9-2-1/22)
Расположен в:Техническая документация Строительство Справочные документы Типовые строительные конструкции, изделия и узлы Общероссийский строительный каталог Строительные конструкции, изделия и узлы зданий и сооружений для всех видов строительства Конструкции, изделия и узлы зданий Ограждающие конструкции Стены наружные Панели (бетонные и железобетонные)
Нормативные ссылки:
Серия 1.132.1-21.98Серия 1.132.1-21.98Серия 1.132.1-21.98Серия 1.132.1-21.98Серия 1.132.1-21.98Серия 1.132.1-21.98Серия 1.132.1-21.98Серия 1.132.1-21.98Серия 1.132.1-21.98Серия 1.132.1-21.98Серия 1.132.1-21.98Серия 1.132.1-21.98Серия 1.132.1-21.98Серия 1.132.1-21.98Серия 1.132.1-21.98Серия 1.132.1-21.98Серия 1.132.1-21.98Серия 1.132.1-21.98Серия 1.132.1-21.98Серия 1.132.1-21.98Серия 1.132.1-21.98Серия 1.132.1-21.98Серия 1.132.1-21.98Серия 1.132.1-21.98Серия 1.132.1-21.98Серия 1.132.1-21.98Серия 1.132.1-21.98Серия 1.132.1-21.98Серия 1.132.1-21.98Серия 1.132.1-21.98Серия 1.132.1-21.98Серия 1.132.1-21.98Серия 1.132.1-21.98Серия 1.132.1-21.98Серия 1.132.1-21.98Серия 1.132.1-21.98Серия 1.132.1-21.98Серия 1.132.1-21.98Серия 1.132.1-21.98Серия 1.132.1-21.98Серия 1.132.1-21.98Серия 1.132.1-21.98Серия 1.132.1-21.98Серия 1.132.1-21.98Серия 1.132.1-21.98

© 2013 Ёшкин Кот :-) Карта сайта