Информационная система
«Ёшкин Кот»

Скачать базу одним архивом
Скачать обновления
История создания базы
Карта сайта

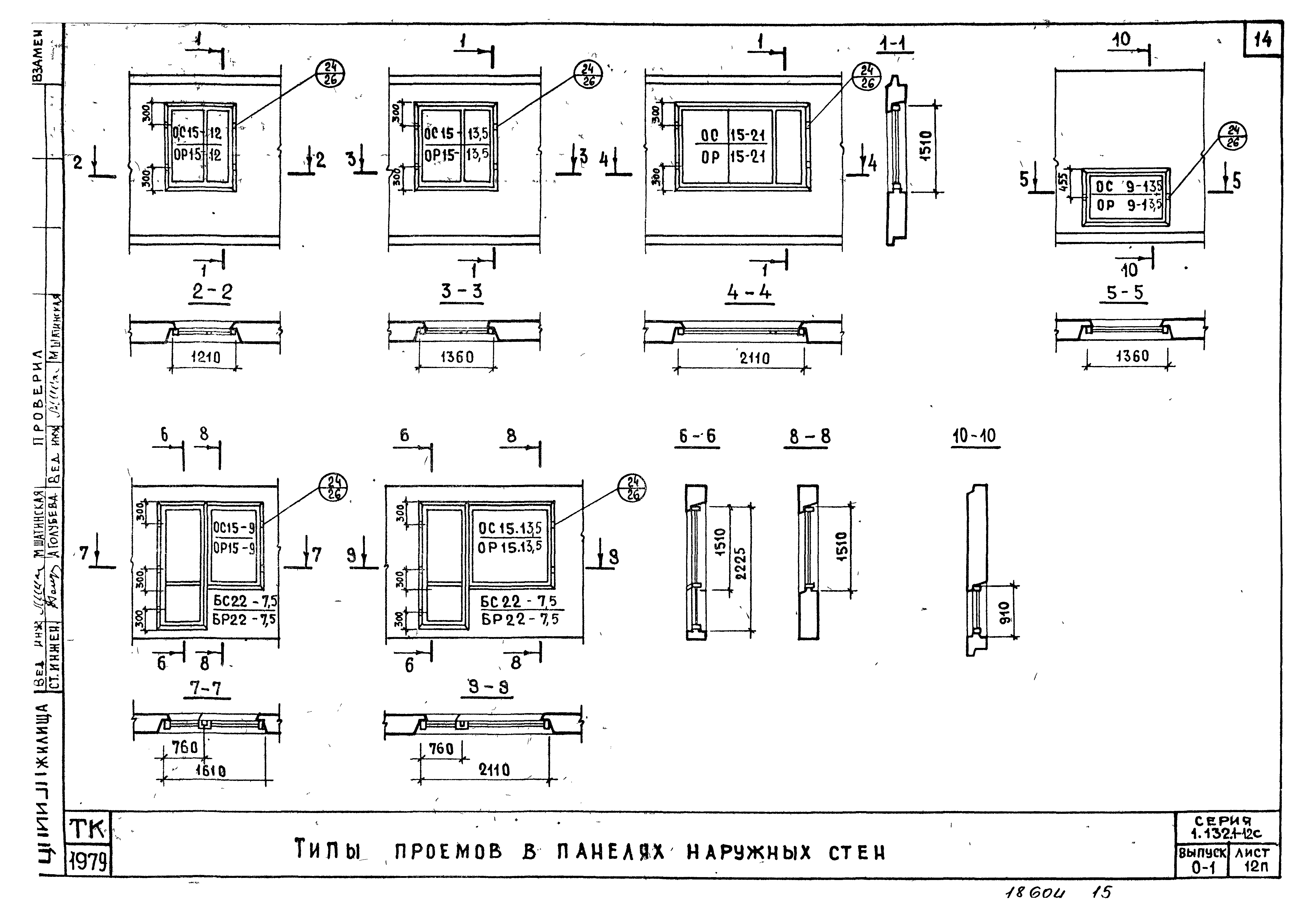
Скачать Серия 1.132.1-12с Выпуск 0-1. Общие материалы и унифицированные детали панелей толщиной 300 мм

Дата актуализации: 10.08.2017

Серия 1.132.1-12с

Выпуск 0-1. Общие материалы и унифицированные детали панелей толщиной 300 мм

Обозначение: Серия 1.132.1-12с
Обозначение англ: Series 1.132.1-12с
Статус:действует
Название рус.:Выпуск 0-1. Общие материалы и унифицированные детали панелей толщиной 300 мм
Дата добавления в базу:01.09.2013
Дата актуализации:05.05.2017
Область применения:Настоящий альбом содержит общие материалы и чертежи унифицированных опалубочных и арматурных деталей панелей толщиной 300 мм, предназначенных с точки зрения прочности в основном для использования в 4 - 9 этажных зданиях, строящихся в районах с расчетной сейсмичностью 7 баллов и 4 - 5 этажных зданиях при 8 баллах
Разработан: ЦНИИСК им. В.А. Кучеренко
ЦНИИЭП жилища
Утверждён:28.01.1983 Госгражданстрой (Gosgrazhdanstroy 37)
Расположен в:Техническая документация Строительство Справочные документы Типовые строительные конструкции, изделия и узлы Общероссийский строительный каталог Строительные конструкции, изделия и узлы зданий и сооружений для всех видов строительства Конструкции, изделия и узлы зданий Ограждающие конструкции Стены наружные Панели (бетонные и железобетонные)
Нормативные ссылки:
Серия 1.132.1-12сСерия 1.132.1-12сСерия 1.132.1-12сСерия 1.132.1-12сСерия 1.132.1-12сСерия 1.132.1-12сСерия 1.132.1-12сСерия 1.132.1-12сСерия 1.132.1-12сСерия 1.132.1-12сСерия 1.132.1-12сСерия 1.132.1-12сСерия 1.132.1-12сСерия 1.132.1-12сСерия 1.132.1-12сСерия 1.132.1-12сСерия 1.132.1-12сСерия 1.132.1-12сСерия 1.132.1-12сСерия 1.132.1-12сСерия 1.132.1-12сСерия 1.132.1-12сСерия 1.132.1-12сСерия 1.132.1-12сСерия 1.132.1-12сСерия 1.132.1-12сСерия 1.132.1-12сСерия 1.132.1-12сСерия 1.132.1-12сСерия 1.132.1-12сСерия 1.132.1-12сСерия 1.132.1-12сСерия 1.132.1-12сСерия 1.132.1-12сСерия 1.132.1-12сСерия 1.132.1-12сСерия 1.132.1-12сСерия 1.132.1-12сСерия 1.132.1-12сСерия 1.132.1-12сСерия 1.132.1-12сСерия 1.132.1-12сСерия 1.132.1-12сСерия 1.132.1-12сСерия 1.132.1-12сСерия 1.132.1-12сСерия 1.132.1-12сСерия 1.132.1-12сСерия 1.132.1-12сСерия 1.132.1-12сСерия 1.132.1-12сСерия 1.132.1-12сСерия 1.132.1-12сСерия 1.132.1-12сСерия 1.132.1-12сСерия 1.132.1-12сСерия 1.132.1-12сСерия 1.132.1-12сСерия 1.132.1-12сСерия 1.132.1-12сСерия 1.132.1-12сСерия 1.132.1-12сСерия 1.132.1-12сСерия 1.132.1-12сСерия 1.132.1-12сСерия 1.132.1-12сСерия 1.132.1-12сСерия 1.132.1-12с

© 2013 Ёшкин Кот :-) Карта сайта