Скачать Серия 1.411.1-2/91 Выпуск 1. Материалы для проектированияДата актуализации: 10.08.2017 Серия 1.411.1-2/91
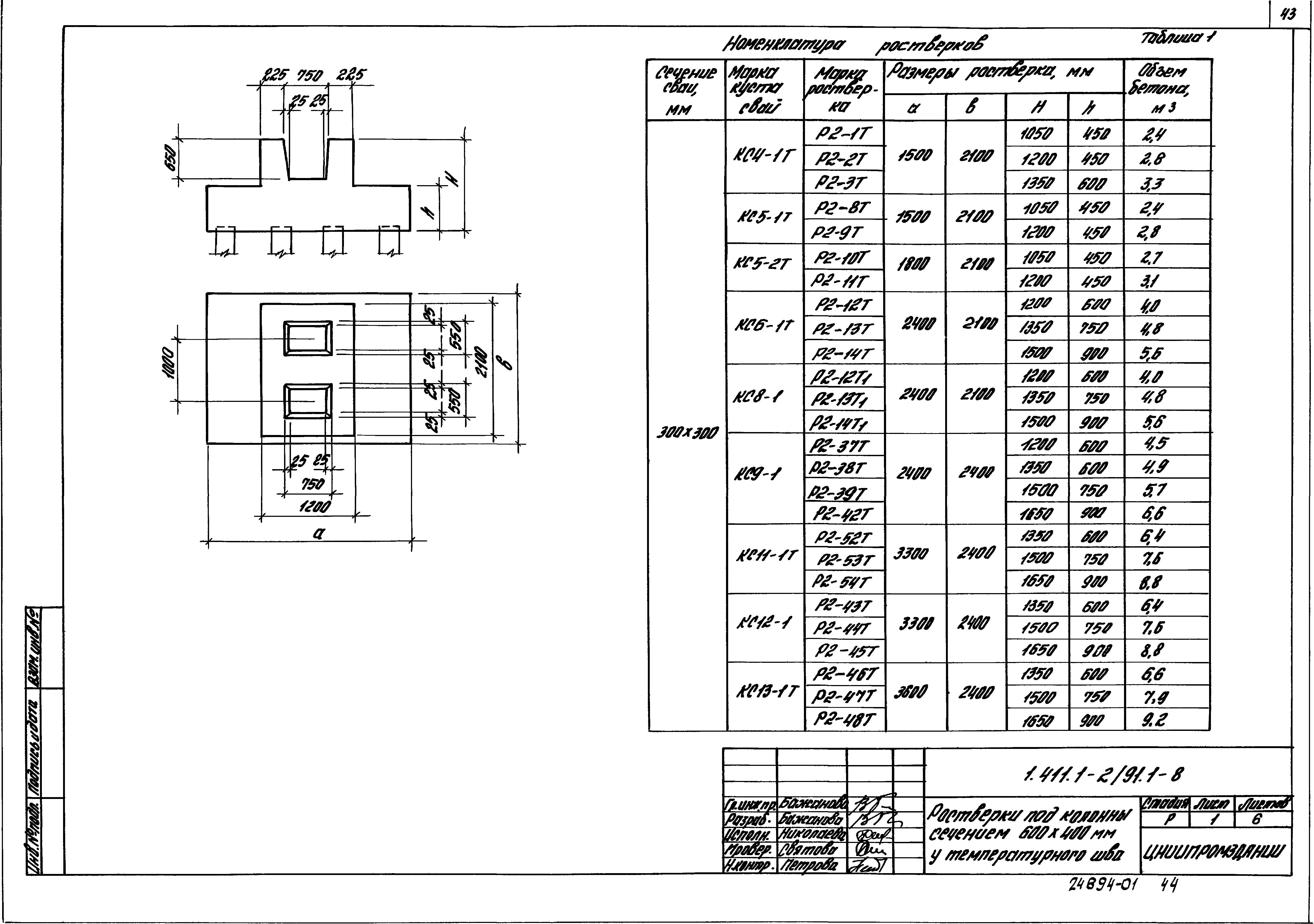
Выпуск 1. Материалы для проектированияОбозначение: | Серия 1.411.1-2/91 | Обозначение англ: | Series 1.411.1-2/91 | Статус: | не определен законодательством | Название рус.: | Выпуск 1. Материалы для проектирования | Дата добавления в базу: | 01.09.2013 | Дата актуализации: | 05.05.2017 | Дата введения: | 01.10.1991 | Область применения: | Серия 1.411.1-2/91 содержит проектную документацию на свайные фундаменты под железобетонные колонны каркасов многоэтажных производственных зданий | Оглавление: | 1.411.1-2/91.1-ПЗ Пояснительная записка 1.411.1-2/91.1-СМ Номограммы для определения марки куста свай под рядовые колонны по заданным расчетным нагрузкам 1.411.1-2/91.1-1 Планы кустов свай сечением 300х300 мм 1.411.1-2/91.1-2 Планы кустов свай сечением 350х350 мм 1.411.1-2/91.1-3 Планы кустов свай сечением 400х400 мм 1.411.1-2/91.1-4 Планы дополнительных кустов сечением 300х300, 350х350 и 400х400 мм под колонны у температурного шва 1.411.1-2/91.1-5 Ростверки под рядовую колонну сечением 400х400 мм 1.411.1-2/91.1-6 Ростверки под рядовую колонну сечением 600х400 мм 1.411.1-2/91.1-7 Ростверки под колонны сечением 400х300 мм у температурного шва 1.411.1-2/91.1-8 Ростверки под колонны сечением 600х300 мм у температурного шва 1.411.1-2/91.1-9 Армирование ростверков 1.411.1-2/91.1-10 Схема расположения арматурных сеток по подошвам ростверков 1.411.1-2/91.1-11 Ключ для определения марки сеток ГОСТ 23179-85 1.411.1-2/91.1-12 Пример решения свайных фундаментов в районах с расчетной сейсмичностью 7…9 баллов | Разработан: | ЦНИИпромзданий Институт Фундаментпроект Госстроя СССР
| Утверждён: | 15.05.1990 Главпроект Госстроя СССР
| Расположен в: |
| Нормативные ссылки: |   СНиП 2.03.11-85 «Защита строительных конструкций от коррозии» СНиП 2.01.01-82 «Строительная климатология и геофизика»  СНиП 2.02.01-83* «Основания зданий и сооружений»  СНиП 2.02.03-85 «Свайные фундаменты»  СНиП 2.03.01-84* «Бетонные и железобетонные конструкции»  ГОСТ 19804.2-79 «Сваи забивные железобетонные цельные сплошного квадратного сечения с поперечным армированием ствола с напрягаемой арматурой. Конструкция и размеры»  ГОСТ 19804.3-80 «Сваи забивные железобетонные квадратного сечения с круглой полостью. Конструкция и размеры»  ГОСТ 19804.4-78 «Сваи забивные железобетонные квадратного сечения без поперечного армирования ствола. Конструкция и размеры»  ГОСТ 23279-85 «Сетки арматурные сварные для железобетонных конструкций и изделий. Общие технические условия»  ГОСТ 5781-82 «Сталь горячекатаная для армирования железобетонных конструкций. Технические условия» ГОСТ 10884-81 «Сталь арматурная термомеханически и термически упрочненная периодического профиля. Технические условия» Серия 1.020-1/87 «Конструкции каркаса межвидового применения для многоэтажных общественных зданий, производственных и вспомогательных зданий промышленных предприятий» Серия 1.011.1-10 «Выпуск 1. Часть 1. Сваи цельные сплошного квадратного сечения с ненапрягаемой арматурой. Рабочие чертежи» Серия 1.011.1-10 «Выпуск 8. Сваи составные сплошного квадратного сечения с ненапрягаемой арматурой. Рабочие чертежи» Серия 1.011.1-10 «Выпуск 1. Часть 2. Сваи цельные сплошного квадратного сечения с ненапрягаемой арматурой. Рабочие чертежи» Серия 1.020.1-4 «Конструкция рамного каркаса межвидового применения для многоэтажных общественных зданий, производственных и вспомогательных зданий промышленных предприятий» Серия 1.420-8/81 «Конструкции двухэтажных производственных бескрановых зданий с сетками колонн первого этажа 6х6, 9х6, 12х6 м, второго этажа 18х6, 18х12, 24х6, 24х12 м, нагрузкой на перекрытие до 5 тс/м2 и железобетонными двухэтажными колоннами» Серия 1.420.1-19 «Конструкции каркаса многоэтажных производственных зданий с сеткой колонн 12х6 м для строительства в районах несейсмических и сейсмичностью 7 баллов» Серия 1.420.1-20с «Конструкции каркаса многоэтажных производственных зданий с сетками колонн 12х6, 9х6 и 6х6 м для строительства в районах сейсмичностью 7, 8, 9 баллов» Серия 1.420-12 «Конструкции многоэтажных производственных зданий с сетками колонн 6х6 и 9х6 м под нагрузки соответственно до 2500 и 1500 кгс/кв. м» Серия 1.411.1-1/84 «Свайные фундаменты под типовые железобетонные колонны одноэтажных производственных зданий»
|
                                                                
|