Информационная система
«Ёшкин Кот»

Скачать базу одним архивом
Скачать обновления
История создания базы
Карта сайта

Скачать Серия 0.00-1.93 Выпуск 3. Привязка элементов конструкций к координационным осям и сопряжения секций зданий

Дата актуализации: 10.08.2017

Серия 0.00-1.93

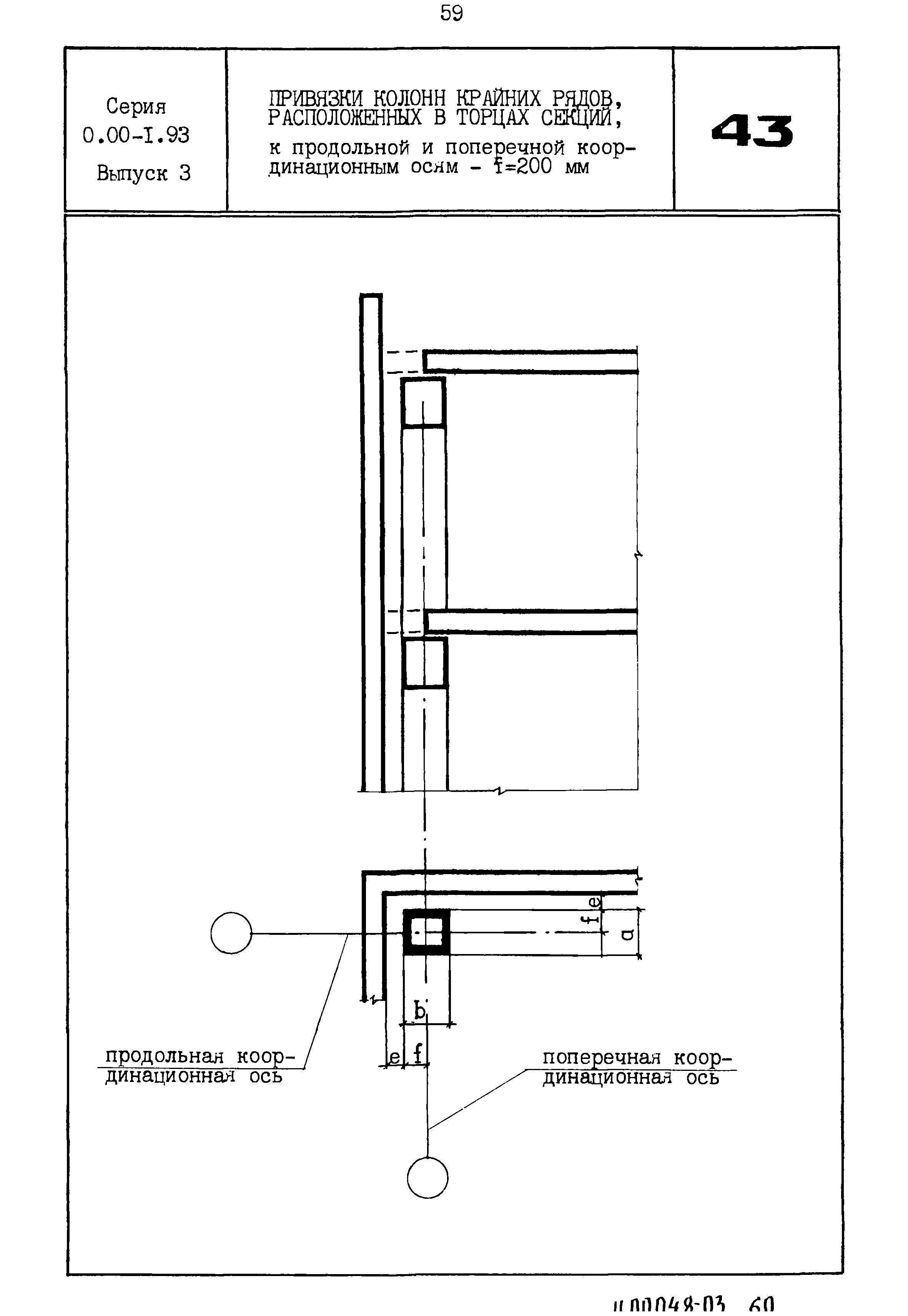
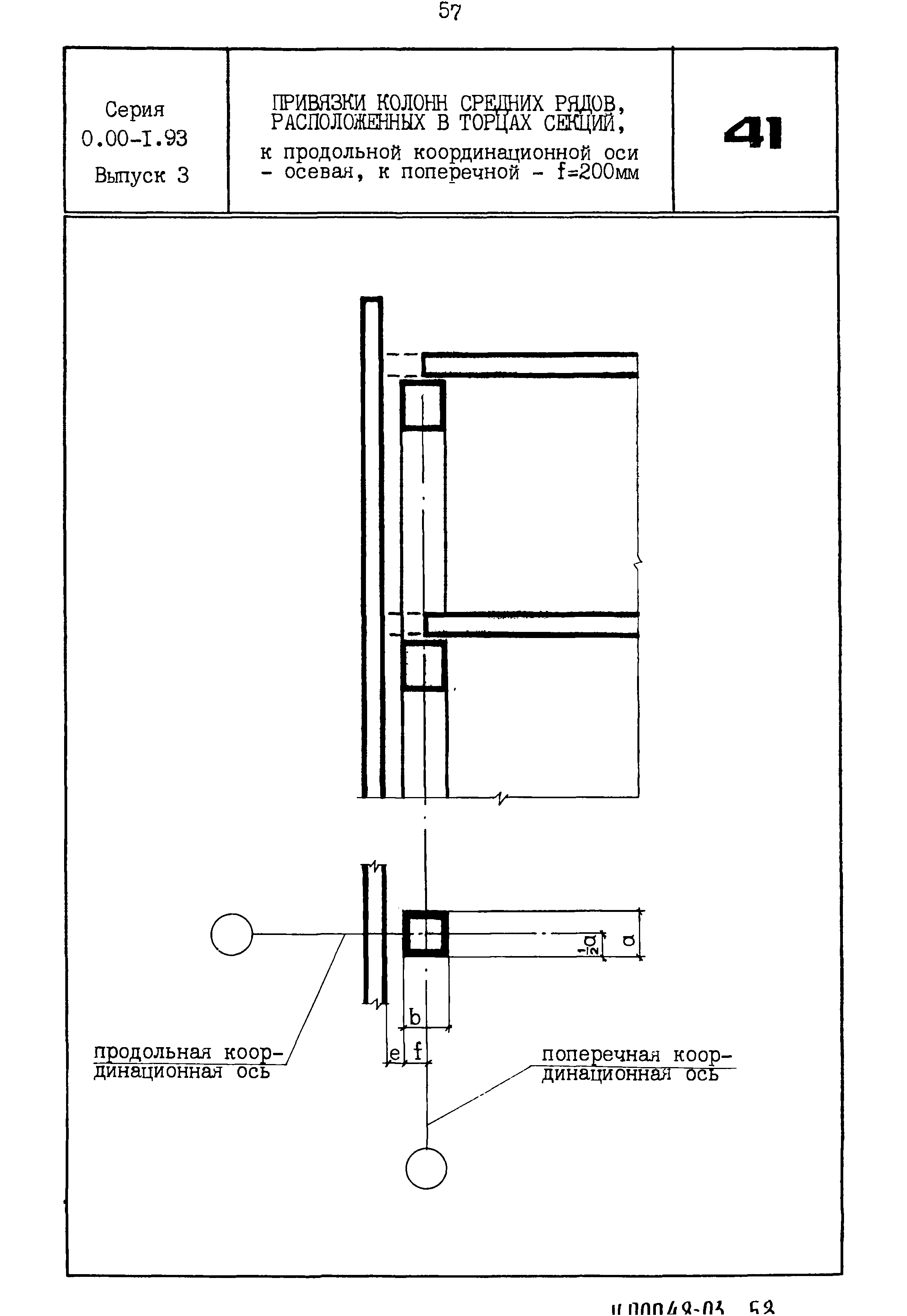
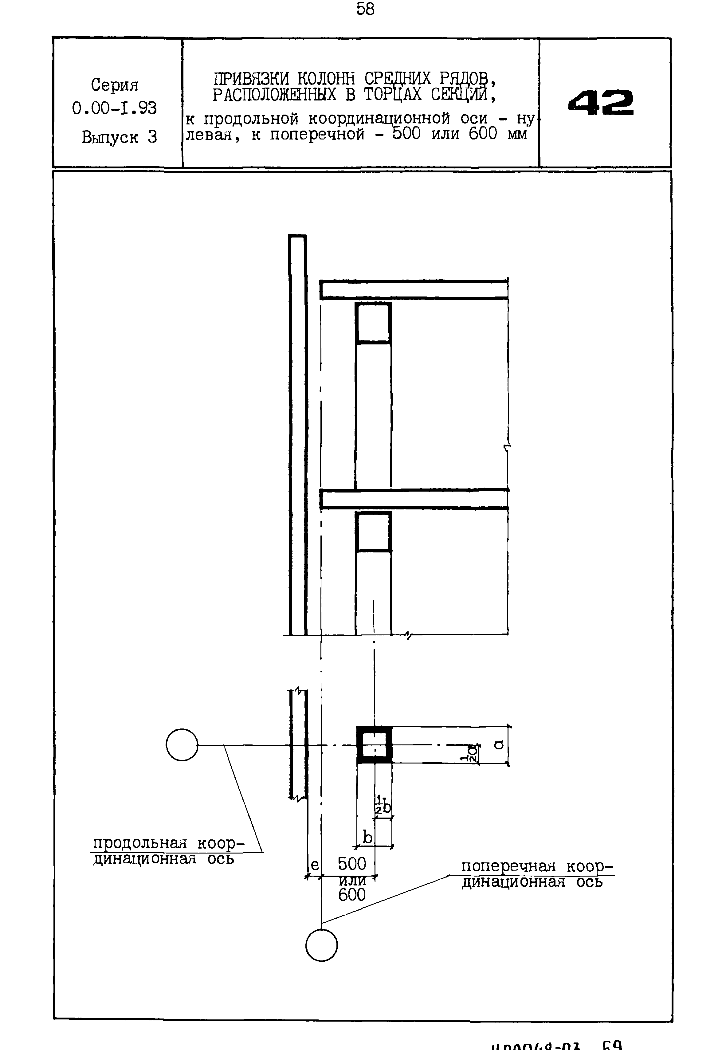
Выпуск 3. Привязка элементов конструкций к координационным осям и сопряжения секций зданий

Обозначение: Серия 0.00-1.93
Обозначение англ: Series 0.00-1.93
Статус:не определен законодательством
Название рус.:Выпуск 3. Привязка элементов конструкций к координационным осям и сопряжения секций зданий
Дата добавления в базу:01.09.2013
Дата актуализации:05.05.2017
Дата введения:01.07.1993
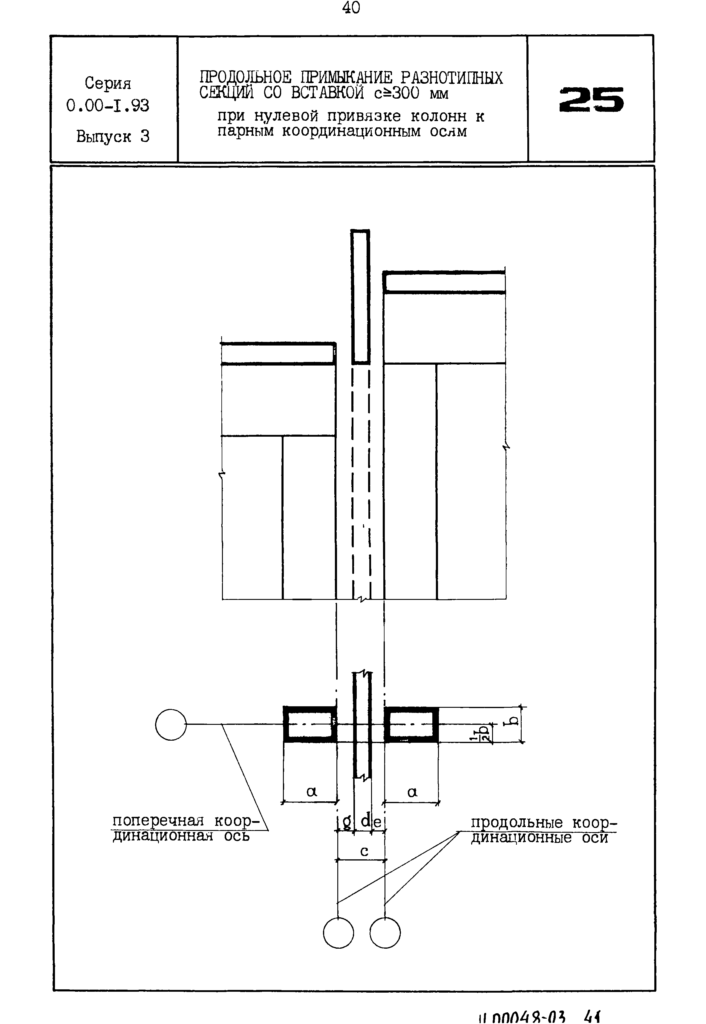
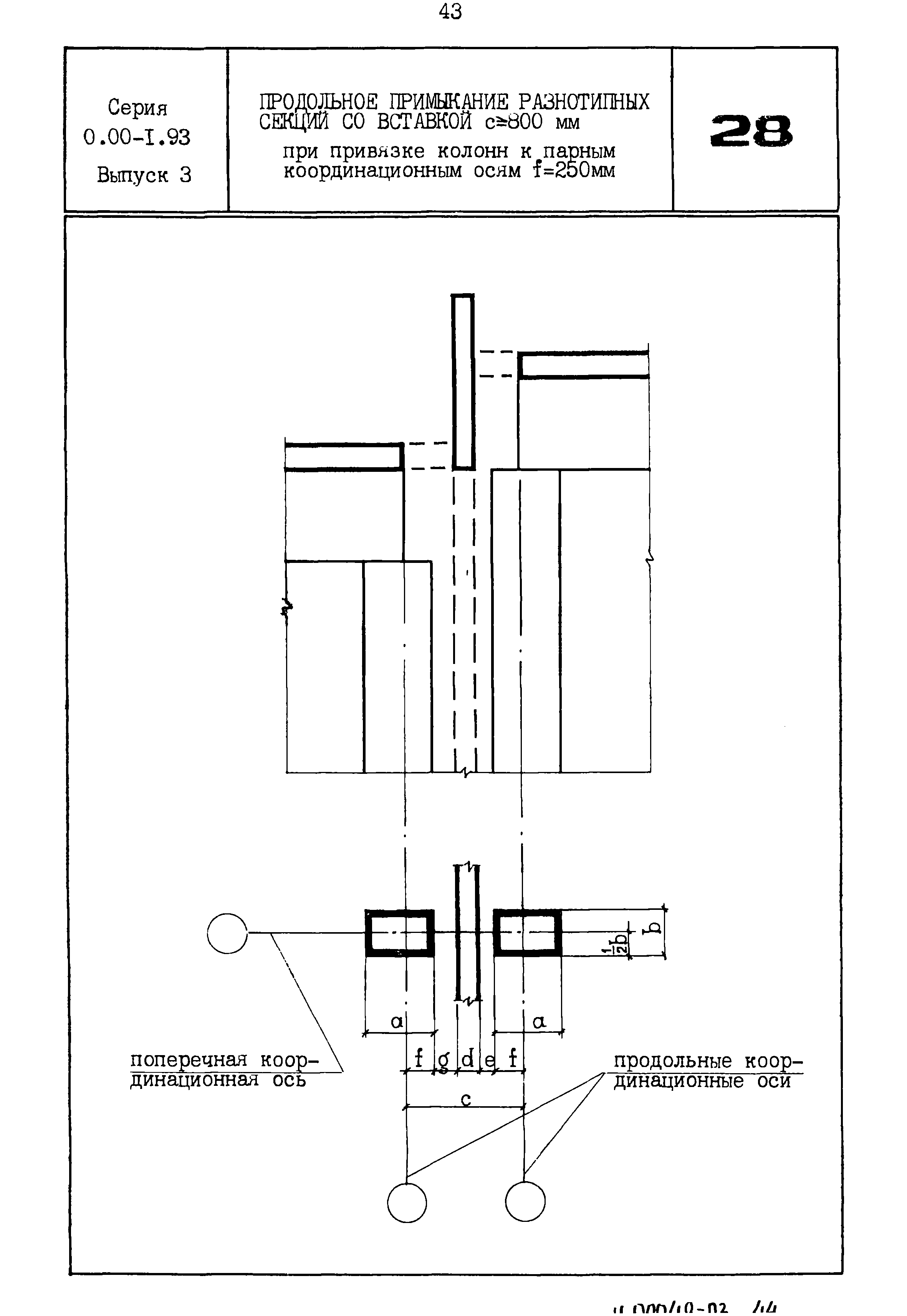
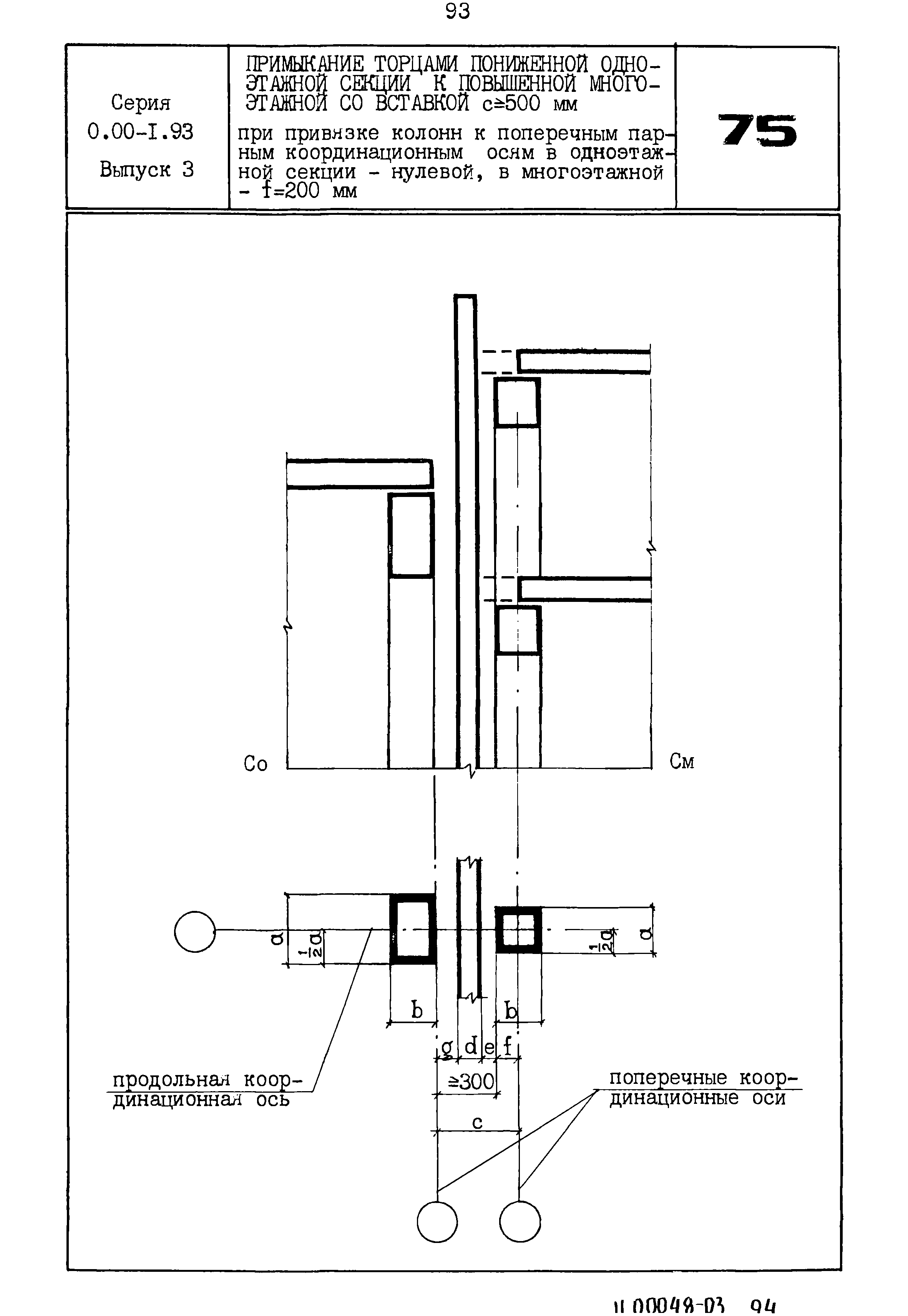
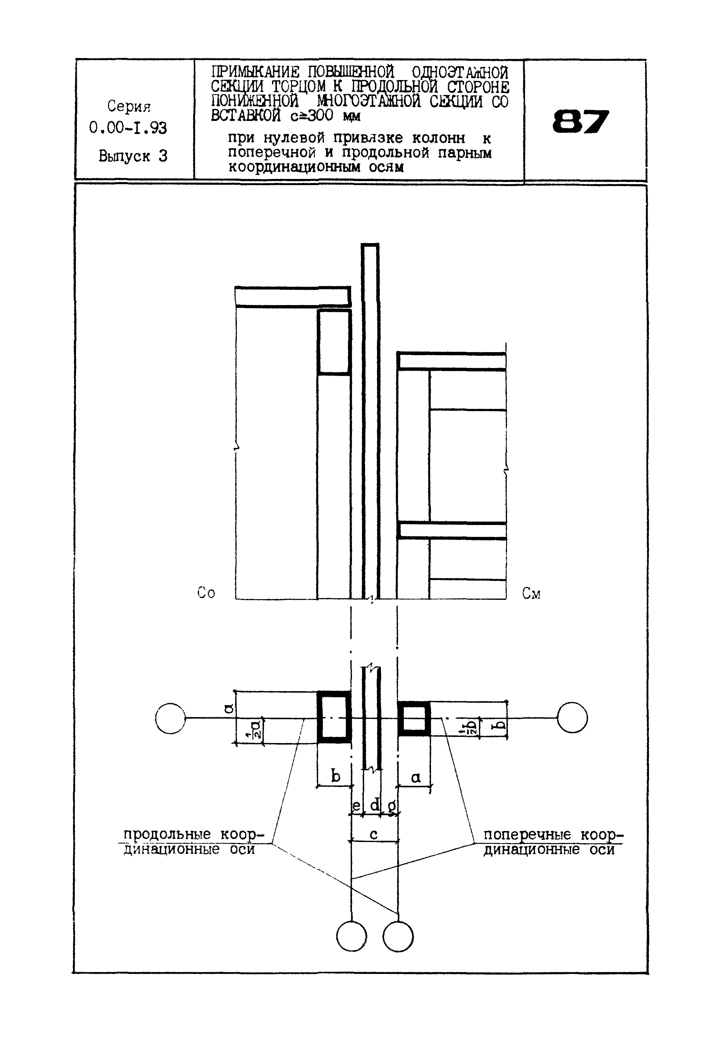
Область применения:Настоящий выпуск серии проектных материалов по системе строительных решений зданий содержит привязки элементов конструкций к координационным осям секций с полным каркасом и сопряжения смежных секций, рекомендуемые для применения при проектировании одноэтажных и многоэтажных зданий и зданий смешанной этажности. Привязки элементов конструкций к координационным осям секций с неполным каркасом и бескаркасных приведены в выпуске 1 настоящей серии.
Разработан: ЦНИИпромзданий
Утверждён:19.11.1992 Минстрой России (Russian Federation Minstroy 9-1/358)
Расположен в:Техническая документация Экология СТРОИТЕЛЬНЫЕ МАТЕРИАЛЫ И СТРОИТЕЛЬСТВО Строительство Строительство в целом Строительство Справочные документы Типовые строительные конструкции, изделия и узлы Общероссийский строительный каталог Строительные конструкции, изделия и узлы зданий и сооружений для всех видов строительства Конструкции, изделия и узлы зданий Общие материалы
Нормативные ссылки:
Серия 0.00-1.93Серия 0.00-1.93Серия 0.00-1.93Серия 0.00-1.93Серия 0.00-1.93Серия 0.00-1.93Серия 0.00-1.93Серия 0.00-1.93Серия 0.00-1.93Серия 0.00-1.93Серия 0.00-1.93Серия 0.00-1.93Серия 0.00-1.93Серия 0.00-1.93Серия 0.00-1.93Серия 0.00-1.93Серия 0.00-1.93Серия 0.00-1.93Серия 0.00-1.93Серия 0.00-1.93Серия 0.00-1.93Серия 0.00-1.93Серия 0.00-1.93Серия 0.00-1.93Серия 0.00-1.93Серия 0.00-1.93Серия 0.00-1.93Серия 0.00-1.93Серия 0.00-1.93Серия 0.00-1.93Серия 0.00-1.93Серия 0.00-1.93Серия 0.00-1.93Серия 0.00-1.93Серия 0.00-1.93Серия 0.00-1.93Серия 0.00-1.93Серия 0.00-1.93Серия 0.00-1.93Серия 0.00-1.93Серия 0.00-1.93Серия 0.00-1.93Серия 0.00-1.93Серия 0.00-1.93Серия 0.00-1.93Серия 0.00-1.93Серия 0.00-1.93Серия 0.00-1.93Серия 0.00-1.93Серия 0.00-1.93Серия 0.00-1.93Серия 0.00-1.93Серия 0.00-1.93Серия 0.00-1.93Серия 0.00-1.93Серия 0.00-1.93Серия 0.00-1.93Серия 0.00-1.93Серия 0.00-1.93Серия 0.00-1.93Серия 0.00-1.93Серия 0.00-1.93Серия 0.00-1.93Серия 0.00-1.93Серия 0.00-1.93Серия 0.00-1.93Серия 0.00-1.93Серия 0.00-1.93Серия 0.00-1.93Серия 0.00-1.93Серия 0.00-1.93Серия 0.00-1.93Серия 0.00-1.93Серия 0.00-1.93Серия 0.00-1.93Серия 0.00-1.93Серия 0.00-1.93Серия 0.00-1.93Серия 0.00-1.93Серия 0.00-1.93Серия 0.00-1.93Серия 0.00-1.93Серия 0.00-1.93Серия 0.00-1.93Серия 0.00-1.93Серия 0.00-1.93Серия 0.00-1.93Серия 0.00-1.93Серия 0.00-1.93Серия 0.00-1.93Серия 0.00-1.93Серия 0.00-1.93Серия 0.00-1.93Серия 0.00-1.93Серия 0.00-1.93Серия 0.00-1.93Серия 0.00-1.93Серия 0.00-1.93Серия 0.00-1.93Серия 0.00-1.93Серия 0.00-1.93Серия 0.00-1.93Серия 0.00-1.93Серия 0.00-1.93Серия 0.00-1.93Серия 0.00-1.93Серия 0.00-1.93

© 2013 Ёшкин Кот :-) Карта сайта