| ||||||||||||||||||||||||||||||
Скачать Серия 1.012.1-3.97 Выпуск 1. Материалы для проектирования и рабочие чертежиДата актуализации: 10.08.2017
|
| Обозначение: | Серия 1.012.1-3.97 |
| Обозначение англ: | Series 1.012.1-3.97 |
| Статус: | не определен законодательством |
| Название рус.: | Выпуск 1. Материалы для проектирования и рабочие чертежи |
| Дата добавления в базу: | 01.09.2013 |
| Дата актуализации: | 05.05.2017 |
| Дата введения: | 01.01.1998 |
| Область применения: | Фундаменты по данной типовой проектной документации разработаны под типовые стальные колонны производственных зданий и инженерных сооружений. Фундаменты решены в виде железобетонных сборно-монолитных подколонников и монолитной ступенчатого типа плитной подошвы |
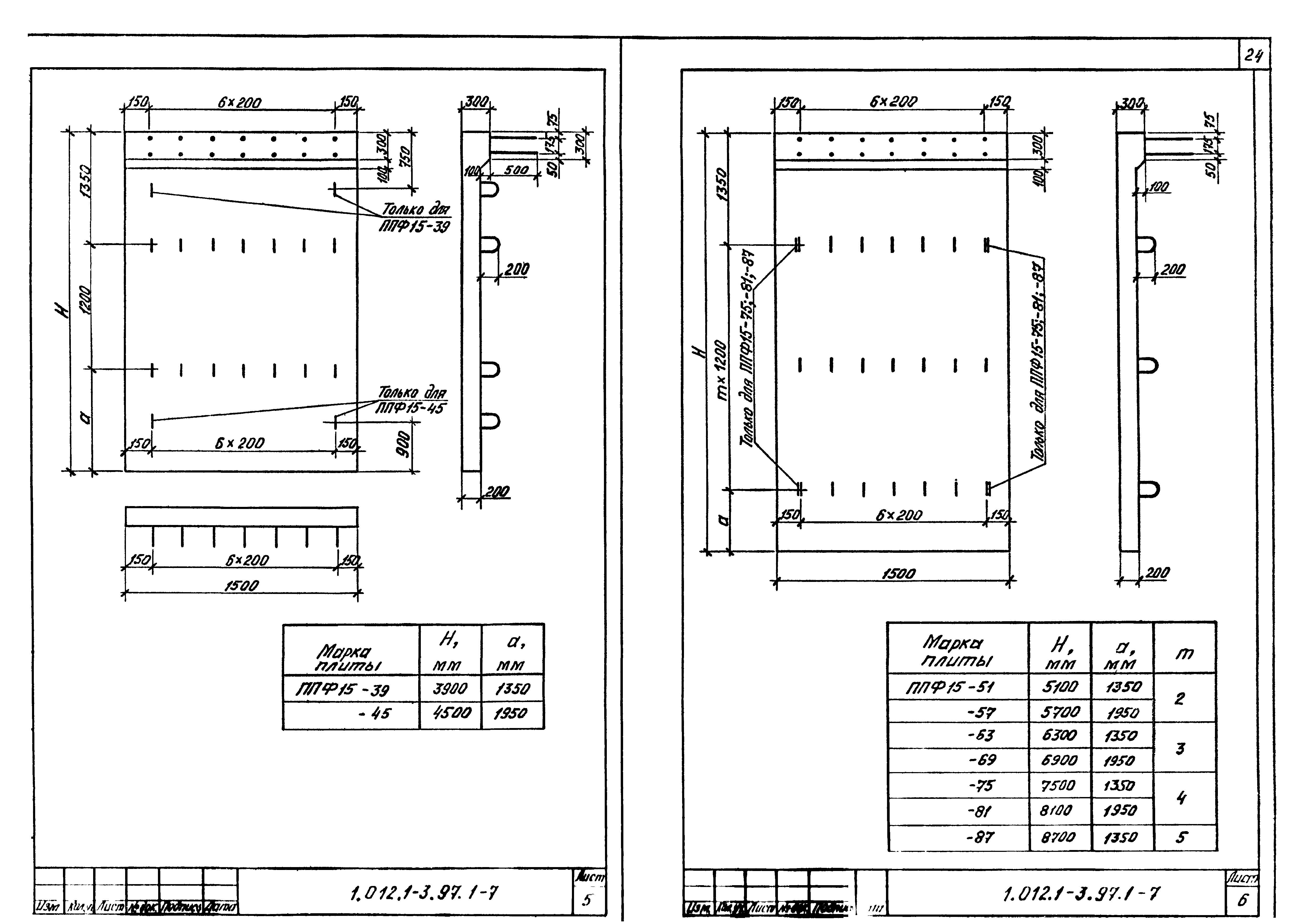
| Оглавление: | 1.012.1-3.97-ПЗ Пояснительная записка 1.012.1-3.97-1 Графики определения несущей способности сборно-монолитных подлокотников в рабочей плоскости 1.012.1-3.97-2 Графики определения несущей способности сборно-монолитных подлокотников из рабочей плоскости 1.012.1-3.97-3 Габаритные размеры сборно-монолитных подлокотников с плоскими плитами, устанавливаемыми в стакан 1.012.1-3.97-4 Оголовок подлокотника с плоскими сборными плитами 1.012.1-3.97-5 Установка опорной плиты на фундаменте для "безвыверочного" монтажа стальных колонн 1.012.1-3.97-6 Номенклатура плоских плит, устанавливаемых в стаканы 1.012.1-3.97-7 Плита плоская ППФ9-39… - 87; ППФ12-39… -87; ППФ15-39… -87 1.012.1-3.97-8 Плита плоская ППФ9-39… - 87; ППФ12-39… -87; ППФ15-39… -87. Армирование 1.012.1-3.97-9 Сетка С9-39… -87; С13-39… -87; С15-39… - 87 1.012.1-3.97-10 Каркас пространственный КП1… КП3 1.012.1-3.97-11 Каркас пространственный КП4… КП6 1.012.1-3.97-12 Сетка С1… С6 1.012.1-3.97-13 Петля 1.012.1-3.97-14-РС Ведомость расхода стали на плиту, кг 1.012.1-3.97-15 Сетка арматурная С7…С18 для косвенного армирования 1.012.1-3.97-16 Пример устройства опалубки сборно-монолитного подлокотника сечением 1500х3000 мм и высотой 7350 мм |
| Разработан: | ЦНИИпромзданий |
| Утверждён: | 17.11.1997 Департамент развития научно-технической политики и проектно-изыскательских работ Госстроя России (Department of Technical Research Policy and Design and Survey Operations, Russian Federation Gosstroy 9-2-1/142) |
| Расположен в: | |
| Нормативные ссылки: |
|




































