Информационная система
«Ёшкин Кот»

Скачать базу одним архивом
Скачать обновления
История создания базы
Карта сайта

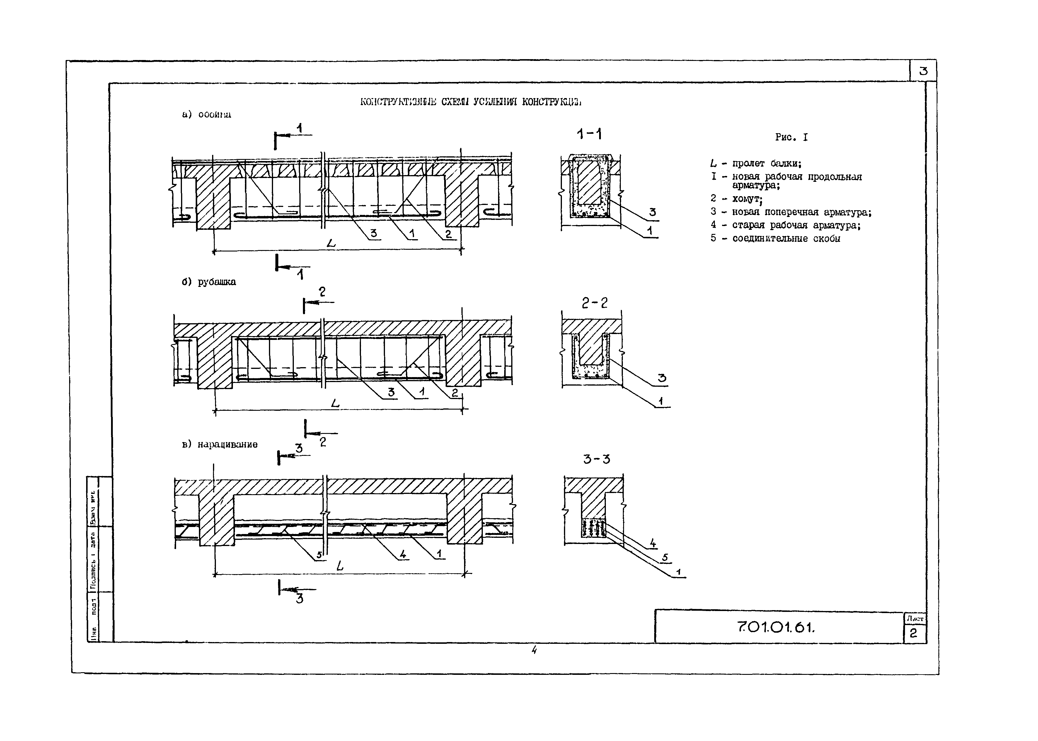
Скачать Технологическая карта 7.01.01.61 Типовая технологическая карта на монтаж строительных конструкций. Усиление железобетонных балок и ригелей перекрытий и покрытий устройством обойм и наращиванием бетона в уровне перекрытий и снизу при подаче и укладке бетона: ленточными транспортерами; бетононасосами и пневмонагнетателями; торкретмашинами

Дата актуализации: 10.08.2017

Технологическая карта 7.01.01.61

Типовая технологическая карта на монтаж строительных конструкций. Усиление железобетонных балок и ригелей перекрытий и покрытий устройством обойм и наращиванием бетона в уровне перекрытий и снизу при подаче и укладке бетона: ленточными транспортерами; бетононасосами и пневмонагнетателями; торкретмашинами

Обозначение: Технологическая карта 7.01.01.61
Обозначение англ: 7.01.01.61
Статус:не установлен срок действия
Название рус.:Типовая технологическая карта на монтаж строительных конструкций. Усиление железобетонных балок и ригелей перекрытий и покрытий устройством обойм и наращиванием бетона в уровне перекрытий и снизу при подаче и укладке бетона: ленточными транспортерами; бетононасосами и пневмонагнетателями; торкретмашинами
Дата добавления в базу:01.09.2013
Дата актуализации:05.05.2017
Дата введения:01.02.1989
Оглавление:1. Область применения
2. Организация и технология выполнения работ
3. Требования к качеству и приемке работ
4. Калькуляция затрат труда, машинного времени, заработной платы на ячейку перекрытия
5. Графики производства работ на ячейку перекрытия
6. Материально-технические ресурсы
7. Техника безопасности
8. Технико-экономические показатели на ячейку перекрытия
9. Фасетный классификатор факторов
Разработан: ЦНИИОМТП
ГПКИ Тульский Промстройпроект Минсевзапстроя СССР
Утверждён:27.12.1988 ГПКИ Тульский Промстройпроект Минсевзапстроя СССР
Принят:27.12.1988 Госстрой СССР (Государственный комитет Совета Министров СССР по делам строительства) (USSR Gosstroy 23-737)
Издан: ЦНИИОМТП (1989 г. )
Расположен в:Техническая документация Экология СТРОИТЕЛЬНЫЕ МАТЕРИАЛЫ И СТРОИТЕЛЬСТВО Технология строительства Технология строительства, прочие аспекты Строительство Справочные документы Технологические карты Работы при реконструкции зданий и сооружений
Технологическая карта 7.01.01.61Технологическая карта 7.01.01.61Технологическая карта 7.01.01.61Технологическая карта 7.01.01.61Технологическая карта 7.01.01.61Технологическая карта 7.01.01.61Технологическая карта 7.01.01.61Технологическая карта 7.01.01.61Технологическая карта 7.01.01.61Технологическая карта 7.01.01.61Технологическая карта 7.01.01.61Технологическая карта 7.01.01.61Технологическая карта 7.01.01.61Технологическая карта 7.01.01.61Технологическая карта 7.01.01.61Технологическая карта 7.01.01.61Технологическая карта 7.01.01.61Технологическая карта 7.01.01.61Технологическая карта 7.01.01.61Технологическая карта 7.01.01.61Технологическая карта 7.01.01.61Технологическая карта 7.01.01.61Технологическая карта 7.01.01.61Технологическая карта 7.01.01.61Технологическая карта 7.01.01.61Технологическая карта 7.01.01.61Технологическая карта 7.01.01.61Технологическая карта 7.01.01.61

© 2013 Ёшкин Кот :-) Карта сайта