| ||||||||||||||||||||||||||||||||||
 Скачать ГОСТ Р 51378-99 Оборудование газовое с атмосферными инжекционными горелками для предприятий общественного питания. Требования безопасности и методы испытанийДата актуализации: 10.08.2017
 | 
| Обозначение: |   ГОСТ Р 51378-99 | 
| Обозначение англ: |   GOST R 51378-99 | 
| Статус: | заменен | 
| Название рус.: | Оборудование газовое с атмосферными инжекционными горелками для предприятий общественного питания. Требования безопасности и методы испытаний | 
| Название англ.: | Gas heated catering equipment with atmospheric burners if injection type. Safety requirements and test methods | 
| Дата добавления в базу: | 01.09.2013 | 
| Дата актуализации: | 05.05.2017 | 
| Дата введения: | 01.01.2014 | 
| Область применения: | Стандарт устанавливает требования безопасности и методы испытаний, предъявляемые к конструкции и рабочим характеристикам газовых нагревательных аппаратов для общественного питания с атмосферными инжекционными горелками. Стандарт распространяется на все газовые нагревательные аппараты для общественного питания, предназначенные для приготовления пищи. Стандарт не распространяется на: - аппараты с горелками полного предварительного смещения; - аппараты типа В2 (без стабилизатора тяги). | 
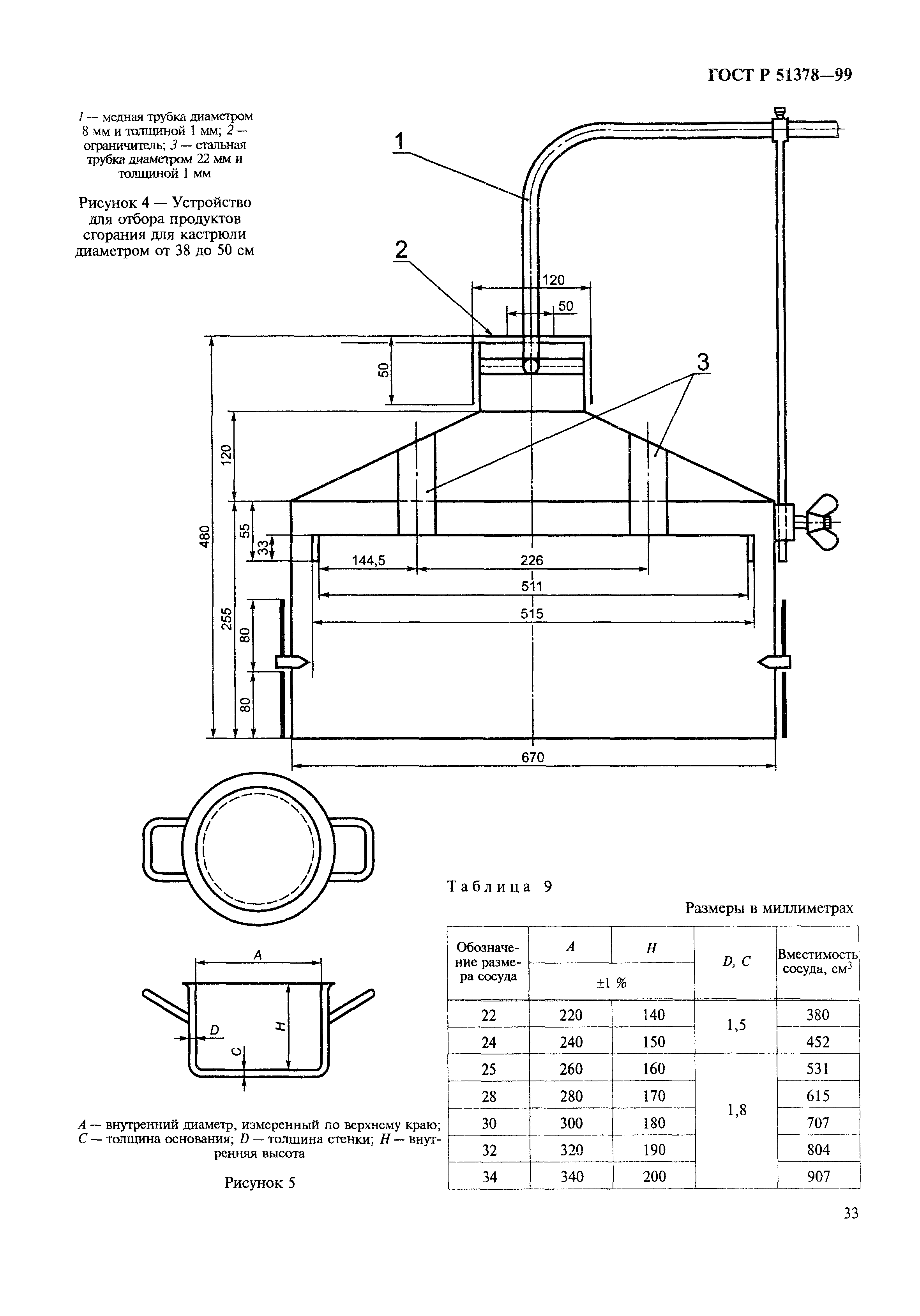
| Оглавление: | 1 Общие положения 1.1 Область применения 1.2 Нормативные ссылки 1.3 Определения 1.4 Классификация 2 Требования к конструкции 2.1 Общие положения 2.2 Требования к составным частям газового тракта 2.3 Особые требования 3 Эксплуатационные требования 3.1 Общие положения 3.2 Герметичность 3.3 Определение расхода газа 3.4 Безопасность работы 3.5 Дополнительное оборудование 3.6 Полнота сгорания 3.7 Особые требования 4 Методы испытаний 4.1 Общие положения 4.2 Проверка герметичности 4.3 Определение расхода газа и тепловой мощности 4.4 Безопасность работы 4.5 Дополнительное оборудование 4.6 Полнота сгорания 4.7 Особые испытания 5 Обозначение 6 Маркировка 6.1 Маркировка на аппарате 6.2 Инструкции 6.3 Упаковка Рисунки  | 
| Разработан: |  ТК 345 Аппаратура бытовая, работающая на жидком, твердом и газообразном видах топлива | 
| Утверждён: | 30.11.1999 Госстандарт России (Russian Federation Gosstandart 470-ст) | 
| Издан: |  ИПК Издательство стандартов (2000 г. ) | 
| Расположен в: | |
| Чем заменён: | 






































