Информационная система
«Ёшкин Кот»

Скачать базу одним архивом
Скачать обновления
История создания базы
Карта сайта

Скачать ГОСТ Р 50059-92 Краны мостовые однобалочные подвесные. Технические условия

Дата актуализации: 10.08.2017

ГОСТ Р 50059-92

Краны мостовые однобалочные подвесные. Технические условия

Обозначение: ГОСТ Р 50059-92
Обозначение англ: GOST R 50059-92
Статус:отменен
Название рус.:Краны мостовые однобалочные подвесные. Технические условия
Название англ.:Travelling single-girder suspended cranes. Specifications
Дата добавления в базу:21.05.2015
Дата актуализации:05.05.2017
Дата введения:01.01.1995
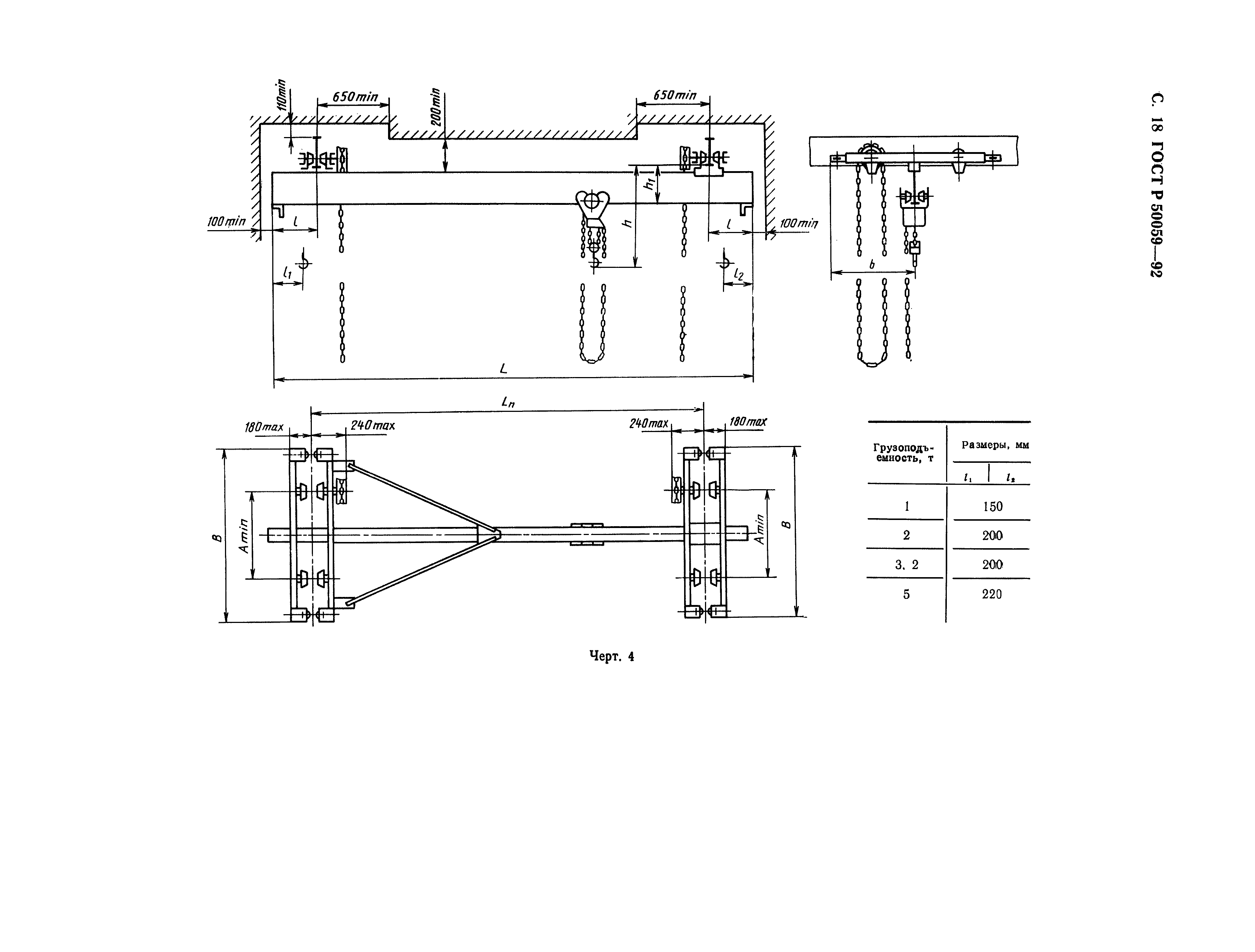
Область применения:Стандарт распространяется на мостовые электрические однобалочные подвесные краны группы режима работы 3К с электрической талью и электрическим механизмом передвижения, управляемые с пола, грузоподъемностью от 1,0 до 10 т, а также на краны мостовые ручные однобалочные подвесные блочно-модульной конструкции, унифицированные с электрическими, с ручным приводом механизма подъема и передвижения, группы режима работы 1 К, грузоподъемностью от 1 до 5 т.
Оглавление:1 Типы, основные параметры и размеры
2 Технические требования
3 Приемка
4 Методы контроля и испытаний
5 Транспортирование и хранение
6 Указания по эксплуатации
7 Гарантии изготовителя
Разработан: ТК 289 Краны грузоподъемные
Утверждён:29.07.1992 Госстандарт России (Russian Federation Gosstandart 800)
Издан: Издательство стандартов (1992 г. )
Расположен в:Техническая документация Электроэнергия ПОДЪЕМНО-ТРАНСПОРТНОЕ ОБОРУДОВАНИЕ Подъемное оборудование Краны Экология ПОДЪЕМНО-ТРАНСПОРТНОЕ ОБОРУДОВАНИЕ Подъемное оборудование Краны
Нормативные ссылки:
ГОСТ Р 50059-92ГОСТ Р 50059-92ГОСТ Р 50059-92ГОСТ Р 50059-92ГОСТ Р 50059-92ГОСТ Р 50059-92ГОСТ Р 50059-92ГОСТ Р 50059-92ГОСТ Р 50059-92ГОСТ Р 50059-92ГОСТ Р 50059-92ГОСТ Р 50059-92ГОСТ Р 50059-92ГОСТ Р 50059-92ГОСТ Р 50059-92ГОСТ Р 50059-92ГОСТ Р 50059-92ГОСТ Р 50059-92ГОСТ Р 50059-92ГОСТ Р 50059-92ГОСТ Р 50059-92ГОСТ Р 50059-92ГОСТ Р 50059-92ГОСТ Р 50059-92ГОСТ Р 50059-92ГОСТ Р 50059-92ГОСТ Р 50059-92ГОСТ Р 50059-92ГОСТ Р 50059-92ГОСТ Р 50059-92

© 2013 Ёшкин Кот :-) Карта сайта