Информационная система
«Ёшкин Кот»

Скачать базу одним архивом
Скачать обновления
История создания базы
Карта сайта

Скачать РД 34.49.104 Рекомендации по проектированию автоматических установок водяного пожаротушения масляных силовых трансформаторов

Дата актуализации: 10.08.2017

РД 34.49.104

Рекомендации по проектированию автоматических установок водяного пожаротушения масляных силовых трансформаторов

Обозначение: РД 34.49.104
Обозначение англ: RD 34.49.104
Статус:действует
Название рус.:Рекомендации по проектированию автоматических установок водяного пожаротушения масляных силовых трансформаторов
Название англ.:Recommended Practice for the Design of Automatic Water-Based Fire Extinguishing Systems for Oil-Filled Power Transformers
Дата добавления в базу:01.09.2013
Дата актуализации:05.05.2017
Дата введения:01.01.1993
Область применения:Рекомендации распространяются на проектирование стационарных автоматических установок водяного пожаротушения масляных силовых трансформаторов, автотрансформаторов и реакторов новых и реконструируемых ГЭС (ГАЭС), ТЭС, ОРУ и подстанций.
Оглавление:1 Общие положения
2 Установка водяного пожаротушения трансформатора
3 Автоматика управления водяным пожаротушением трансформатора
4 Система отвода воды и масла при пожаротушении трансформатора
Приложение 1 Принципиальная технологическая схема УВП трансформатора и системы отвода стока при пожаротушении
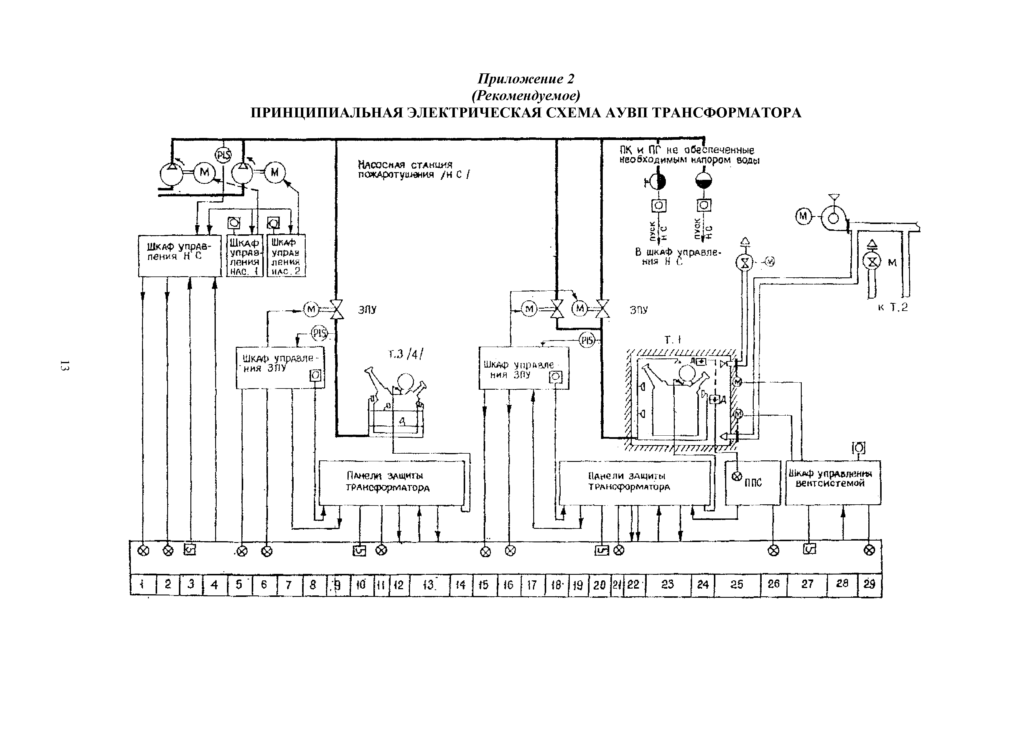
Приложение 2 Принципиальная электрическая схема АУВП трансформатора
Приложение 3 Принципиальная электрическая схема системы отвода стока при пожаротушении
Приложение 4 Паспорт оросителя ОПДР-15
Приложение 5 Узел крепления оросителя ОПДР-15 к трубопроводу
Приложение 6 Характеристика Q-H оросителя ОПДР-15 по воде
Приложение 7 Гидравлические характеристики оросителя ОПДР-15
Приложение 8 Согласование ГУПО МВД СССР № 7/6/1776 от 17.07.87
Приложение 9 Решение Главтехуправления № 3-5/85 от 27.09.85
Приложение 10 Таблица для расчета предельной длины сухотруба при падении температуры заполняющей его жидкости до 0 градусов С
Приложение 11 Информационное письмо УВП № ПБ-6/88 от 25.04.88
Приложение 12 Пример проектного решения расстановки оросителей ОПДР-15 УВП трансформатора ТДЦ 125000/220 применительно для ГЭС
Приложение 13 Пример расчета системы отвода воды и масла трансформатора ТДЦ 125000/220 применительно для ГЭС
Приложение 14 Перечень стандартов, нормативной документации и литературы, подлежащих учету при проектировании автоматических установок пожаротушения трансформаторов
Разработан: Теплоэлектропроект
Гидропроект Минэнерго СССР
Утверждён:04.12.1991 Главтехстрой Минэнерго СССР
Принят:17.02.1991 ВНИИПО МВД СССР (VNIIPO, USSR Ministry of Internal Affairs 3.1/469)
12.12.1991 ВНИПИЭнергопром (07026 П/694)
05.12.1991 Атомэнергопроект (21051-6/03-189)
Издан: Гидропроект (1992 г. )
Расположен в:Техническая документация Экология ЭЛЕКТРОТЕХНИКА Трансформаторы. Реакторы ОХРАНА ОКРУЖАЮЩЕЙ СРЕДЫ, ЗАЩИТА ЧЕЛОВЕКА ОТ ВОЗДЕЙСТВИЯ ОКРУЖАЮЩЕЙ СРЕДЫ. БЕЗОПАСНОСТЬ Защита от пожаров Пожаротушение Строительство Нормативные документы Отраслевые и ведомственные нормативно-методические документы Проектирование и строительство объектов энергетического комплекса Мостостроение Средства пожаротушения
Нормативные ссылки:
РД 34.49.104РД 34.49.104РД 34.49.104РД 34.49.104РД 34.49.104РД 34.49.104РД 34.49.104РД 34.49.104РД 34.49.104РД 34.49.104РД 34.49.104РД 34.49.104РД 34.49.104РД 34.49.104РД 34.49.104РД 34.49.104РД 34.49.104РД 34.49.104РД 34.49.104РД 34.49.104РД 34.49.104РД 34.49.104РД 34.49.104РД 34.49.104РД 34.49.104РД 34.49.104РД 34.49.104РД 34.49.104РД 34.49.104РД 34.49.104РД 34.49.104РД 34.49.104РД 34.49.104РД 34.49.104РД 34.49.104РД 34.49.104РД 34.49.104РД 34.49.104РД 34.49.104РД 34.49.104РД 34.49.104РД 34.49.104

© 2013 Ёшкин Кот :-) Карта сайта