| ||||||||||||||||||||||||||||||||||
Скачать СП 35-107-2003 Здания учреждений временного пребывания лиц без определенного места жительстваДата актуализации: 10.08.2017
|
| Обозначение: | СП 35-107-2003 |
| Обозначение англ: | SP 35-107-2003 |
| Статус: | действует |
| Название рус.: | Здания учреждений временного пребывания лиц без определенного места жительства |
| Название англ.: | Temporary residential facilities for persons with no fixed abode |
| Дата добавления в базу: | 01.09.2013 |
| Дата актуализации: | 05.05.2017 |
| Дата введения: | 06.06.2003 |
| Область применения: | Свод правил предназначается для проектирования зданий самостоятельных учреждений в системе органов социальной защиты для временного пребывания лиц без определенного места жительства и занятий, в которые входят: - социальная гостиница - предназначена для временного пребывания иногородних граждан и, в первую очередь, для пенсионеров и инвалидов в течение 10 сут.; - социальный приют - предназначен для местных граждан без определенного места жительства (время пребывания в приюте - до 30 сут.); - дом ночного пребывания - предназначен для пребывания в ночное время лиц без определенного места жительства на 12 ч; - центр социальной адаптации - предназначен для местных граждан без определенного места жительства и занятий, для привлечения к активной жизни дезадаптированных групп населения рассматриваемого контингента. |
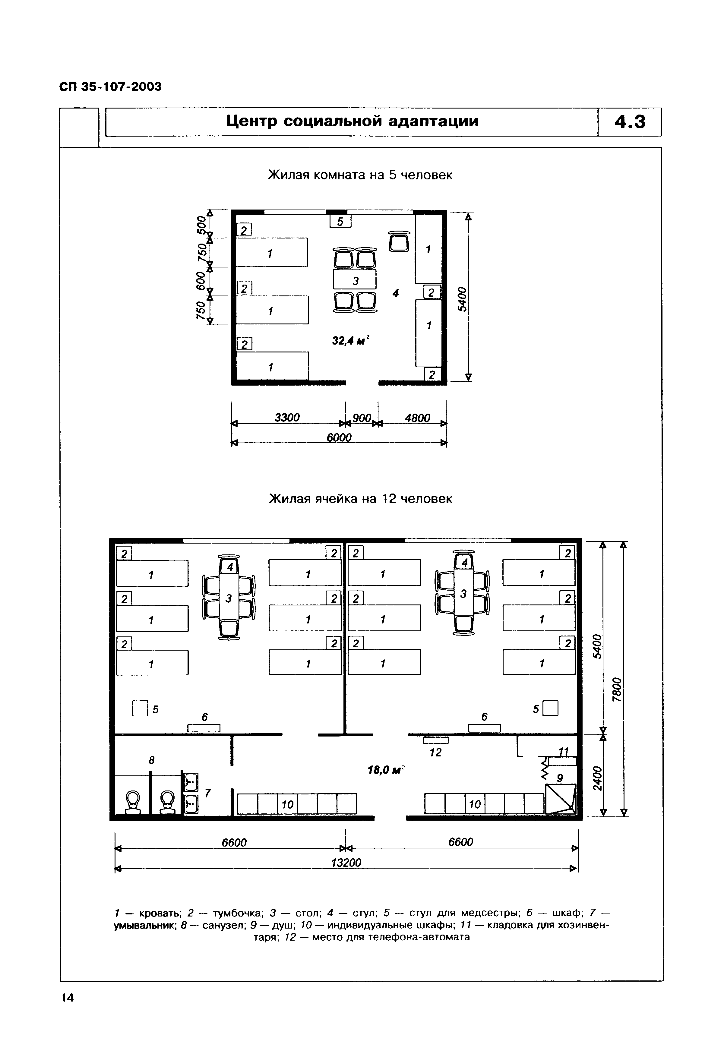
| Оглавление: | Введение 1 Область применения 2 Нормативные ссылки 3 Основные положения Земельный участок Объемно-планировочное решение Жилые помещения Санитарно-гигиенические помещения Помещения общественного питания Административные хозяйственные и бытовые помещения Помещения охраны и безопасности Изолятор Санпропускник Обрядовые помещения 4 Архитектурно-планировочное решение зданий Социальная гостиница Приют Дом ночного пребывания Центр социальной адаптации 5 Инженерное оборудование Иллюстрации Приложение А Термины и определения Приложение Б Перечень документов, на которые даны ссылки в настоящем СП Приложение В Минимальный состав площадей и оборудования помещений учреждений временного пребывания Справочный материал Назначение и примерный штатный состав учреждений временного пребывания |
| Разработан: | ФГУП Научно-проектный институт учебно-воспитательных, торгово-бытовых и досуговых зданий (ИОЗ) ЗАО АПИО-Центр |
| Утверждён: | 06.06.2003 Госстрой России (Russian Federation Gosstroy 55) 02.04.2003 ФГУП Научно-проектный институт учебно-воспитательных, торгово-бытовых и досуговых зданий (ИОЗ) (Research and Design Institute for Educational, Retail, Consumer Service, and Recreational Occupancies (IOZ) FGUP 6) |
| Издан: | ГУП ЦПП (CPP GUP 2003 г. ) ФГУП ИОЗ (2003 г. ) |
| Расположен в: | |
| Нормативные ссылки: |
|





































