Скачать Рекомендации Рекомендации по реконструкции сети и зданий предприятий торговли, общественного питания и бытового обслуживания при комплексной реконструкции районов пятиэтажной застройки первых этапов индустриального домостроенияДата актуализации: 10.08.2017 Рекомендации
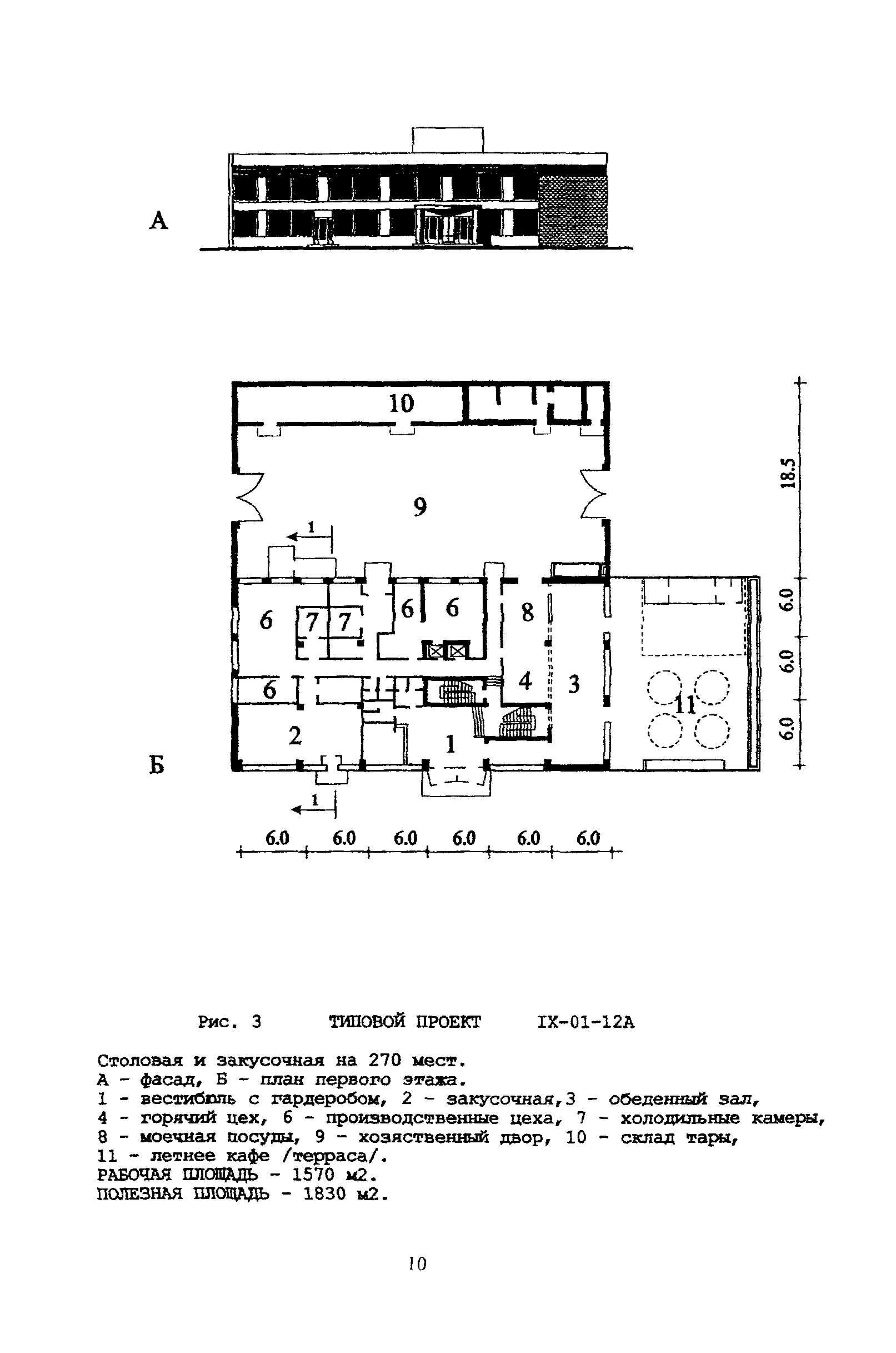
Рекомендации по реконструкции сети и зданий предприятий торговли, общественного питания и бытового обслуживания при комплексной реконструкции районов пятиэтажной застройки первых этапов индустриального домостроенияОбозначение: | Рекомендации | Обозначение англ: | Recommendations | Статус: | действует | Название рус.: | Рекомендации по реконструкции сети и зданий предприятий торговли, общественного питания и бытового обслуживания при комплексной реконструкции районов пятиэтажной застройки первых этапов индустриального домостроения | Название англ.: | Recommended Practice for the Rehabilitation of Five-Story Residential Buildings of Early Periods of Industrialized Housing Construction to Accommodate Retail, Food Service, and Consumer Service Facilities | Дата добавления в базу: | 01.09.2013 | Дата актуализации: | 05.05.2017 | Дата введения: | 01.06.2000 | Область применения: | Рекомендации распространяются на проектирование реконструкции и модернизации сети и зданий предприятий торговли, общественного питания, бытового обслуживания при комплексной реконструкции районов пятиэтажной застройки первых этапов индустриального домостроения. | Оглавление: | 1. Область применения 2. Введение 3. Характеристика сложившейся сети зданий предприятий торговли, общественного питания и бытового обслуживания в пятиэтажной застройке 4. Основные направления модернизации сети предприятий торгово-бытового обслуживания при комплексной реконструкции пятиэтажной застройки 5. Методика определения типов предприятий торговли, общественного питания и бытового обслуживания для модернизации, реконструкции и нового строительства 6. Предложения по реконструкции зданий предприятий торговли, общественного питания и бытового обслуживания применяемых в пятиэтажной застройке 6.1. Общие принципы модернизации и реконструкции зданий 6.2. Предложения по реконструкции и модернизации блоков обслуживания, построенных по типовым проектам Приложение 1. Варианты размещения предприятий торговли общественного питания, бытового обслуживания Приложение 2. Расчет сети и определение номенклатуры предприятий торговли, общественного питания, бытового обслуживания в квартале 81 "Хорошево-Мневники" Приложение 3. Расчет сети и определение номенклатуры предприятий торговли, общественного питания, бытового обслуживания в квартале 27-32 "Волхонка-Зил" Приложение 4. Площади групп помещений предприятий торговли, общественного питания, бытового обслуживания при проектировании и модернизации зданий | Разработан: | МНИИТЭП
| Утверждён: | 01.06.2000 Москомархитектура (Moskomarkhitektura 22)
| Принят: | Департамент потребительского рынка и услуг (Department of Consumer Commerce and Services )
| Издан: | ГУП НИАЦ (2000 г. )
| Расположен в: |
| Нормативные ссылки: | |
                                                    
|