| ||||||||||||||||||||||||||||||||||||
Скачать ТСН 31-303-95 Дома-интернаты для инвалидов и престарелых г. МоскваДата актуализации: 10.08.2017
|
| Обозначение: | ТСН 31-303-95 |
| Обозначение англ: | TSN 31-303-95 |
| Статус: | действует |
| Название рус.: | Дома-интернаты для инвалидов и престарелых г. Москва |
| Название англ.: | Residential Facilities for Individuals with Disabilities and Mobility Impairments and Senior Citizens |
| Дата добавления в базу: | 01.09.2013 |
| Дата актуализации: | 05.05.2017 |
| Дата введения: | 01.01.1995 |
| Область применения: | Нормы устанавливают основные положения и требования к размещению, участку, территории, архитектурно-планировочным решениям и инженерному оборудованию домов-интернатов для инвалидов и престарелых. |
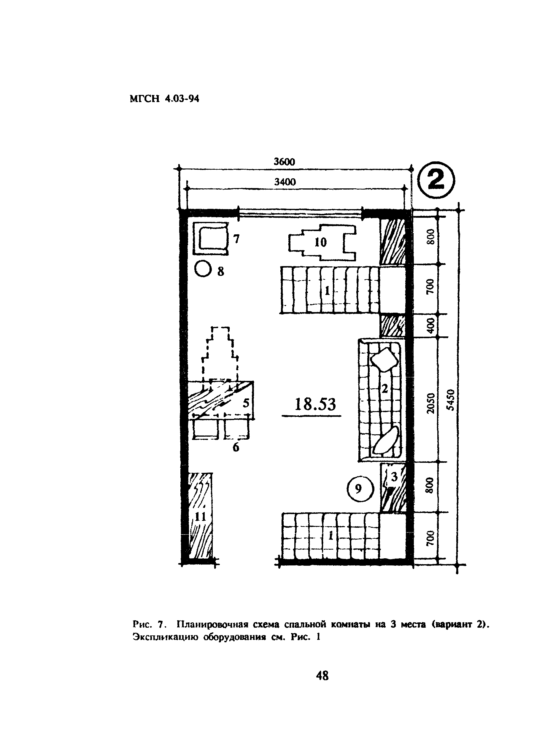
| Оглавление: | 1 Область применения 2 Нормативные ссылки 3 Основные положения 4 Требования к размещению, участку и территории 5 Требования к объемно-планировочным решениям Приложение 1. Ориентировочные состав и площади помещений учебно-профессиональной подготовки Приложение 2. Ориентировочные состав и площади помещений культурно-массового обслуживания Приложение 3. Ориентировочные состав и площади помещений медицинского обслуживания Приложение 4. Ориентировочные состав и площади помещений столовой и производственных помещений кухни Приложение 5. Ориентировочные состав и площади помещений административно-бытового обслуживания Приложение 6. Габаритные схемы помещений |
| Разработан: | МНИИП объектов культуры, отдыха, спорта и здравоохранения Москомархитектуры |
| Утверждён: | 09.12.1994 Правительство Москвы (Government of the City of Moscow 2388-РЗП) |
| Принят: | МГЦ Госсанэпиднадзора (Gossanepidnadzor MGTs ) УГПС ГУВД г. Москвы (UGPS, City of Moscow Department of Internal Affairs ) Комитет социальной защиты населения г. Москвы (City of Moscow Committee on Social Security ) |
| Издан: | ГУП НИАЦ (1994 г. ) |
| Расположен в: | |
| Нормативные ссылки: |
|





















































