| ||||||||||||||||||||||||
Скачать Каталог типовых решений. Здания класса Ф.1.3 по функциональной пожарной опасности (многоквартирные жилые дома). Обеспечение пожарной безопасностиДата актуализации: 10.08.2017 |
| Статус: | действует |
| Название рус.: | Каталог типовых решений. Здания класса Ф.1.3 по функциональной пожарной опасности (многоквартирные жилые дома). Обеспечение пожарной безопасности |
| Дата добавления в базу: | 01.02.2017 |
| Дата актуализации: | 05.05.2017 |
| Область применения: | Каталог разработан в целях сокращения сроков проектирования и снижения затрат на жилищное строительство. Каталог содержит наиболее часто применяемые (типовые) технические решения по обеспечению пожарной безопасности зданий класса Ф 1.3 по функциональной пожарной опасности (многоквартирные жилые дома), ранее прошедшие согласование в МЧС России и Минстрое (Минрегионе) РФ. |
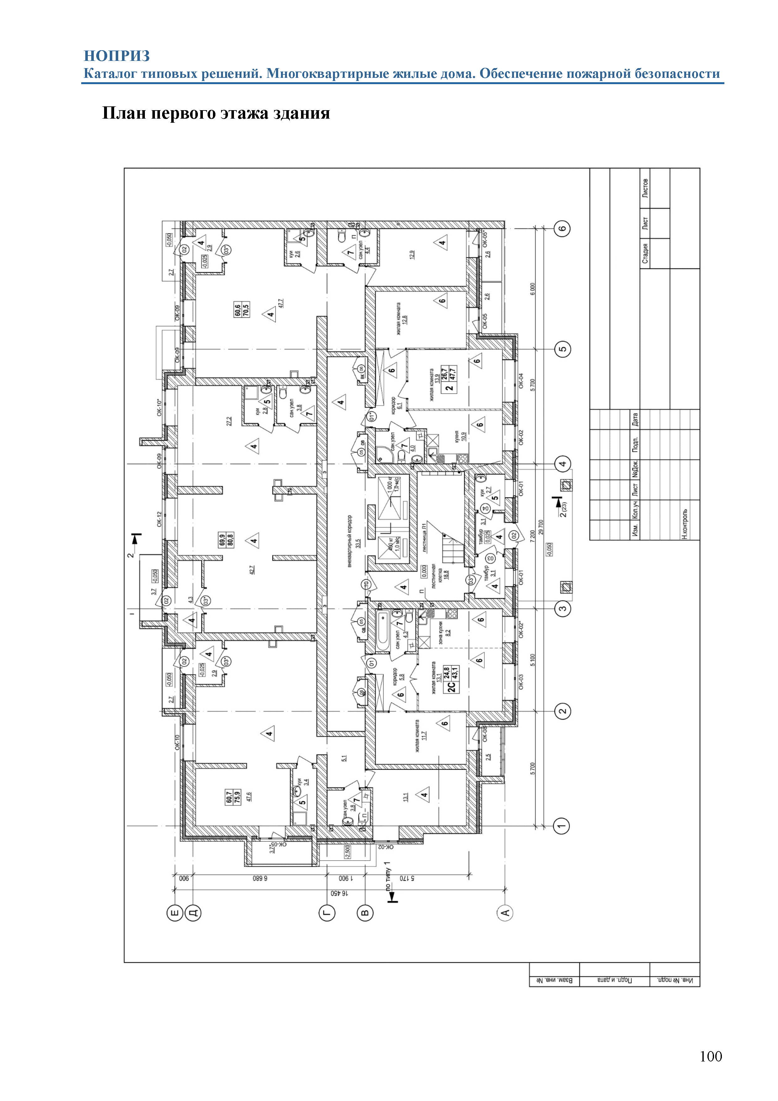
| Оглавление: | 1 Введение 2 Область применения 3 Нормативные ссылки 4 Термины и определения 5 Анализ практики работы нормативно-технических советов МЧС России и Минстроя (Минрегиона) России в части обеспечения противопожарной защиты зданий класса Ф 1.3 5.1 Обобщенный анализ для зданий класса Ф 1.3 по функциональной пожарной опасности (многоквартирные жилые дома). 5.2 Решения для характерных зданий класса Ф 1.3 по функциональной пожарной опасности 6 Технические решения. 6.1 Технические решения по обеспечению требований пожарной безопасности к объемно-планировочным и конструктивным решениям здания фi.з. 6.2 Способы обеспечения степени огнестойкости основных несущих строительных конструкций и класса конструктивной пожарной опасности. 6.3 Технические решения по разделению здания на пожарные отсеки. 6.4 Технические решения по обеспечению требований пожарной безопасности к путям эвакуации здания Ф 1.3 6.5 Технические решения по размещению и устройству на кровле здания площадки для приема спасательных кабин вертолетов. 6.6 Технические решения по выполнению и инженерному обеспечению безопасных зон в зданиях Ф 1.3 6.7 Способы обеспечения незадымляемости переходов через наружную воздушную зону, ведущую к незадымляемым лестничным клеткам типа Н1 6.8 Способы оценки уровня безопасной эвакуации и возможности воздействия опасных факторов пожара на людей при возникновении пожара в помещениях жилого дома. 6.9 Способы размещения в надземной части здания пожарных укрытий и опорных пунктов пожаротушения. 6.10 Способы обеспечения доступа личного состава и подачи средств пожаротушения к очагу пожара в верхние этажи здания при отсутствии технического оснащения пожарных подразделений. 6.11 Схемы размещения лифтов для транспортирования пожарных подразделений. Приложение 1. Письмо по Каталогу ГБУ "Новосибирская областная государственная вневедомственная экспертиза Новосибирской области" № 295/16 от 31.03.2016 года Приложение 2. Письмо по Каталогу ГАУ г. Москвы "Московская государственная экспертиза" МГЭ-18-33/16-101-1 от 13.04.2016 года |
| Разработан: | НИИ ОПБ ВДПО НПО Пульс ФГБУ ВНИИПО МЧС России Новосибирский филиал НИИ ОПБ ООО Девелопмент-проект |
| Издан: | НИИ ОПБ (2016 г. ) |
| Расположен в: | |
| Нормативные ссылки: |
|



















































































































