Информационная система
«Ёшкин Кот»

Скачать базу одним архивом
Скачать обновления
История создания базы
Карта сайта

Скачать ГОСТ 23747-2015 Блоки дверные из алюминиевых сплавов. Технические условия

Дата актуализации: 10.08.2017

ГОСТ 23747-2015

Блоки дверные из алюминиевых сплавов. Технические условия

Обозначение: ГОСТ 23747-2015
Обозначение англ: GOST 23747-2015
Статус:взамен
Название рус.:Блоки дверные из алюминиевых сплавов. Технические условия
Название англ.:Door blocks of aluminum profiles. Specifications
Дата добавления в базу:21.05.2015
Дата актуализации:05.05.2017
Дата введения:01.07.2015
Область применения:Стандарт распространяется на дверные блоки из алюминиевых профилей с полотнами рамочной конструкции (далее - дверные блоки) для зданий и сооружений различного назначения. Область применения конкретных видов дверных блоков устанавливают в зависимости от условий эксплуатации в соответствии с действующими строительными нормами и правилами с учетом требований настоящего стандарта. Стандарт не распространяется на балконные дверные блоки, а также на дверные блоки специального назначения в части дополнительных требований к пожарной безопасности и др. Стандарт может быть применен для целей сертификации изделий.
Оглавление:1 Область применения
2 Нормативные ссылки
3 Классификация и условные обозначения
4 Технические требования
5 Правила приемки
6 Методы испытаний
7 Транспортирование и хранение
8 Гарантии изготовителя
Приложение А (рекомендуемое) Общие требования к монтажу изделий
Приложение Б (рекомендуемое) Пример паспорта дверного блока
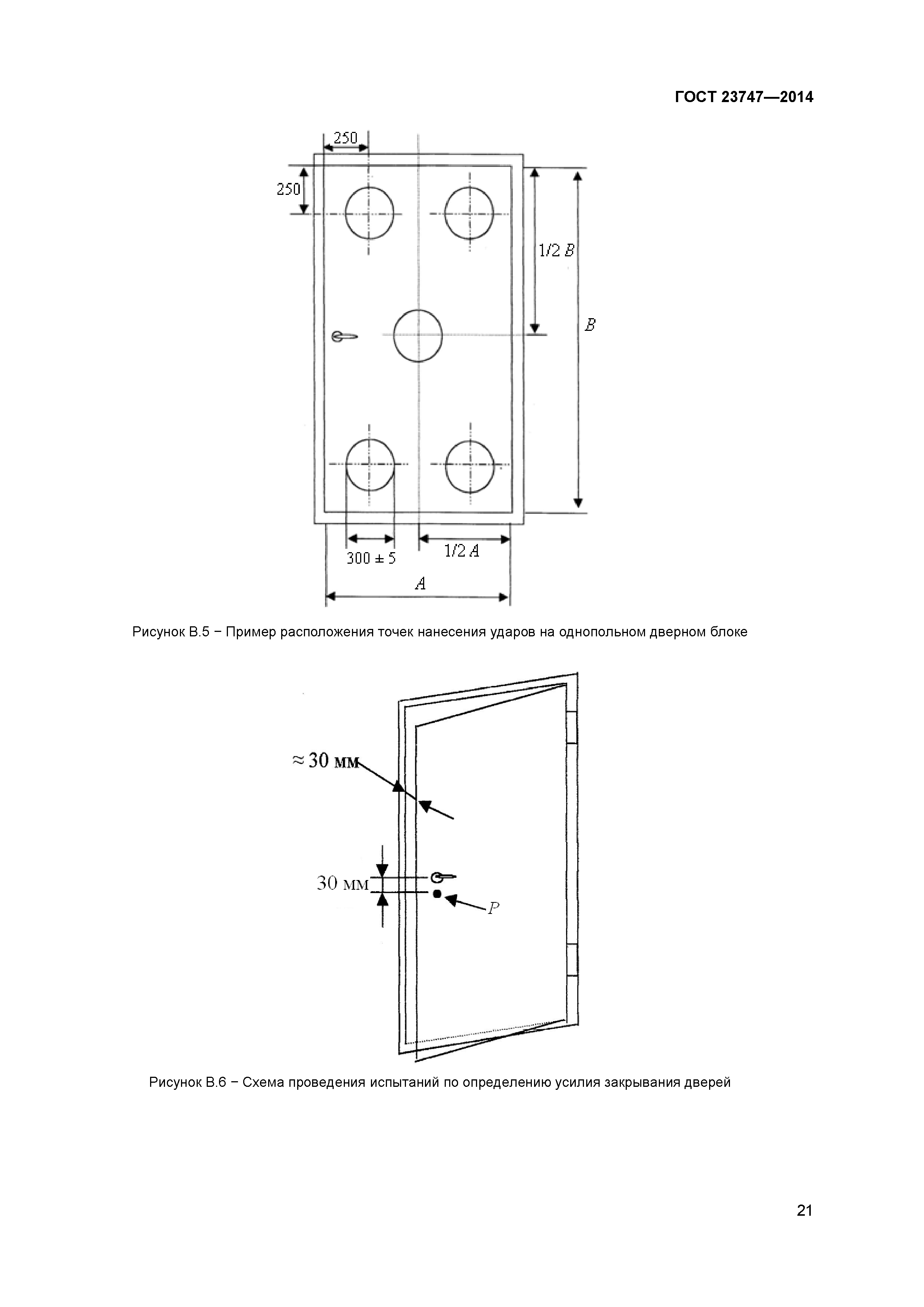
Приложение В (рекомендуемое) Схемы приложения нагрузок
Библиография
Разработан: Частное учреждение - Центр по сертификации оконной и дверной техники (ЦС ОДТ)
Утверждён:27.03.2015 Межгосударственный Совет по стандартизации, метрологии и сертификации (Inter-Governmental Council on Standardization, Metrology, and Certification 76-П)
12.12.2014 Федеральное агентство по техническому регулированию и метрологии (2037-ст)
Издан: Стандартинформ (2015 г. )
Расположен в:Техническая документация Электроэнергия СТРОИТЕЛЬНЫЕ МАТЕРИАЛЫ И СТРОИТЕЛЬСТВО Строительные элементы Двери и окна Экология СТРОИТЕЛЬНЫЕ МАТЕРИАЛЫ И СТРОИТЕЛЬСТВО Строительные элементы Двери и окна Строительство Нормативные документы Документы Системы нормативных документов в строительстве Нормативные документы на строительные конструкции и изделия к.56 Окна, двери, ворота и приборы к ним
Список изменений:
Заменяет собой:
Нормативные ссылки:
ГОСТ 23747-2015ГОСТ 23747-2015ГОСТ 23747-2015ГОСТ 23747-2015ГОСТ 23747-2015ГОСТ 23747-2015ГОСТ 23747-2015ГОСТ 23747-2015ГОСТ 23747-2015ГОСТ 23747-2015ГОСТ 23747-2015ГОСТ 23747-2015ГОСТ 23747-2015ГОСТ 23747-2015ГОСТ 23747-2015ГОСТ 23747-2015ГОСТ 23747-2015ГОСТ 23747-2015ГОСТ 23747-2015ГОСТ 23747-2015ГОСТ 23747-2015ГОСТ 23747-2015ГОСТ 23747-2015ГОСТ 23747-2015ГОСТ 23747-2015

Текстовое изменение Поправка от 05.02.2016

Поправка

© 2013 Ёшкин Кот :-) Карта сайта