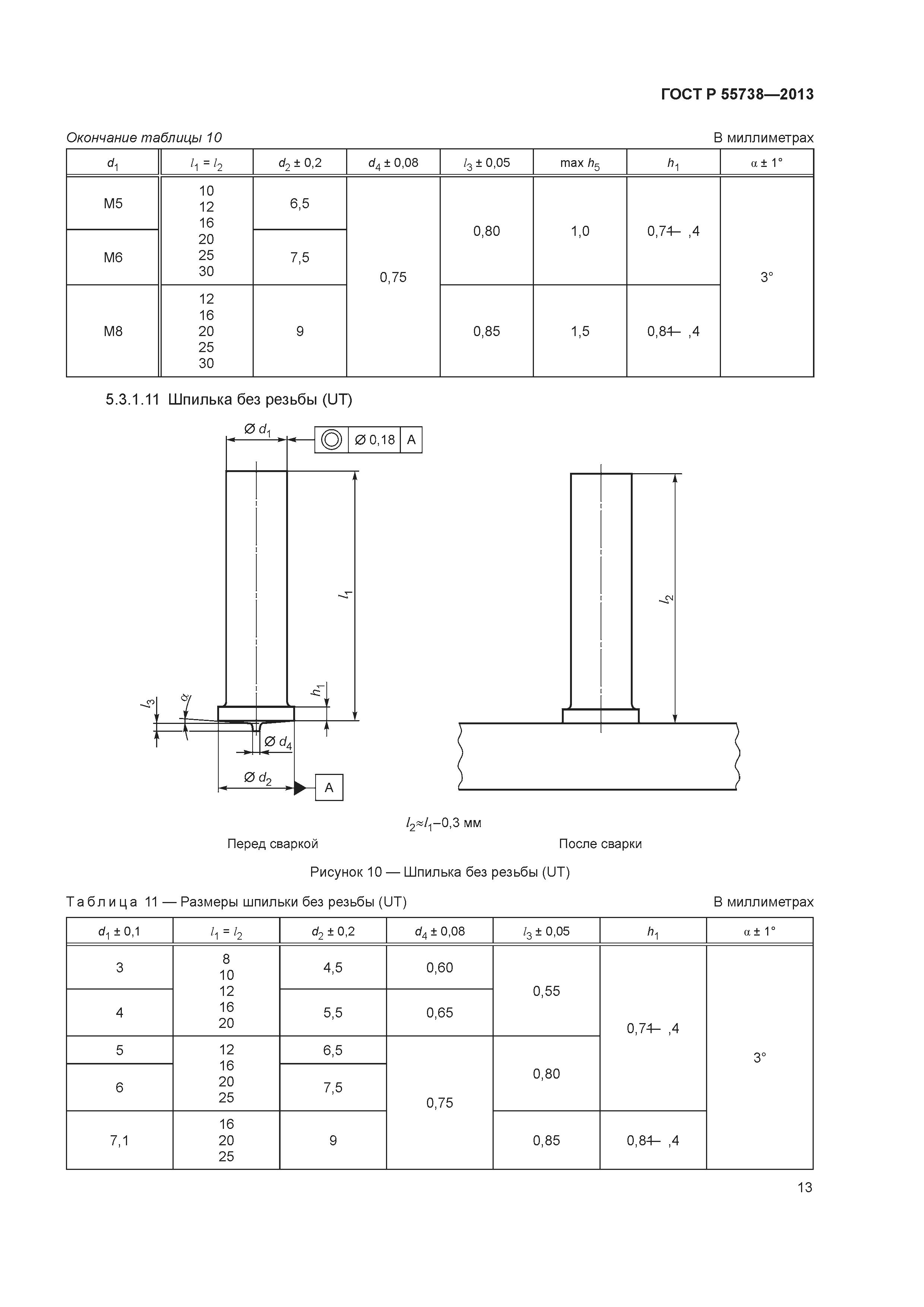
Скачать ГОСТ Р 55738-2013 Шпильки и керамические кольца для сваркиДата актуализации: 10.08.2017 ГОСТ Р 55738-2013
Шпильки и керамические кольца для сварки| Обозначение: | ГОСТ Р 55738-2013 | | Обозначение англ: | GOST R 55738-2013 | | Статус: | введен впервые | | Название рус.: | Шпильки и керамические кольца для сварки | | Название англ.: | Studs and ceramic ferrules for stud welding | | Дата добавления в базу: | 21.05.2015 | | Дата актуализации: | 05.05.2017 | | Дата введения: | 01.01.2015 | | Область применения: | Стандарт распространяется на металлические привариваемые шпильки различного назначения и керамические кольца для их сварки и устанавливает: - технические требования к шпилькам и керамическим кольцам для дуговой сварки шпилек; - размеры, материалы, механические свойства, объемы и методы контроля и критерии оценки соответствия. | | Оглавление: | 1 Область применения 2 Нормативные ссылки 3 Термины и определения 4 Обозначения 5 Требования 5.1 Информация для заказа 5.2 Опасные вещества 5.3 Требования к изделиям 5.4 Срок службы 6 Оценка соответствия 6.1 Общие положения 6.2 Предварительное испытание 6.3 Производственный контроль продукции 6.4 Приемочный контроль 7 Методы испытаний 7.1 Шпильки 7.2 Керамические кольца 8 Документация о результатах испытаний 9 Маркировка 9.1 Шпильки 9.2 Керамические кольца 10 Обозначение 10.1 Шпильки 10.2 Керамические кольца 11 Упаковка, транспортирование, хранение. 11.1 Шпильки 11.2 Керамические кольца 12 Документ о качестве 12.1 Шпильки 12.2 Керамические кольца Приложение А (справочное) Масса шпилек Приложение ДА (обязательное) Дополнительные требования к шпилькам кольцам, устанавливаемые в стандартах и технических условиях на данные изделия Приложение ДБ (справочное) Разделы международного стандарта ИСО 1391 8:2008, которые применены в настоящем стандарте с модификацией их содержания для учета особенностей национальной стандартизации Приложение ДВ (справочное) Текст разделов международного стандарта ИСО 1391 8:2008, не включенных в настоящий стандарт в связи с нецелесообразностью их применения в национальной стандартизации Приложение ДГ (справочное) Сведения о соответствии ссылочных национальных и межгосударственных стандартов международным стандартам, использованным в качестве ссылочных в примененном международном стандарте Приложение ДД (справочное) Сопоставление структуры настоящего стандарта со структурой примененного в нем международного стандарта Библиография | | Разработан: | ООО НПЦ мостов
| | Утверждён: | 08.11.2013 Федеральное агентство по техническому регулированию и метрологии (1451-ст)
| | Издан: | Стандартинформ (2014 г. )
| | Расположен в: |
| | Нормативные ссылки: |   ГОСТ 1497-84 «Металлы. Методы испытаний на растяжение»  ГОСТ 5632-72 «Стали высоколегированные и сплавы коррозионно-стойкие, жаростойкие и жаропрочные. Марки»  ГОСТ 19281-89 «Прокат из стали повышенной прочности. Общие технические условия»  ГОСТ 15150-69 «Машины, приборы и другие технические изделия. Исполнения для различных климатических районов. Категории, условия эксплуатации, хранения и транспортирования в части воздействия климатических факторов внешней среды»  ГОСТ 18160-72 «Изделия крепежные. Упаковка. Маркировка. Транспортирование и хранение»  ГОСТ 2999-75 «Металлы и сплавы. Метод измерения твердости по Виккерсу»  ГОСТ 4784-97 «Алюминий и сплавы алюминиевые деформируемые. Марки»  ГОСТ 9454-78 «Металлы. Метод испытания на ударный изгиб при пониженных, комнатной и повышенных температурах»  ГОСТ 21488-97 «Прутки прессованные из алюминия и алюминиевых сплавов. Технические условия» ГОСТ 2409-95 «Огнеупоры. Метод определения кажущейся плотности, открытой и общей пористости, водопоглощения» ГОСТ 4071.1-94 «Изделия огнеупорные с общей пористостью менее 45 %. Метод определения предела прочности при сжатии при комнатной температуре» ГОСТ 473.5-81 «Изделия химически стойкие и термостойкие керамические. Метод определения термической стойкости»  ГОСТ 8179-98 «Изделия огнеупорные. Отбор образцов и приемочные испытания»  ГОСТ 30762-2001 «Изделия огнеупорные. Методы измерений геометрических размеров, дефектов формы и поверхностей»  ГОСТ 28874-2004 «Огнеупоры. Классификация»  ГОСТ 1535-2006 «Прутки медные. Технические условия»  ГОСТ 2060-2006 «Прутки латунные. Технические условия» ГОСТ Р ИСО 2859-1-2007 «Статистические методы. Процедуры выборочного контроля по альтернативному признаку. Часть 1. Планы выборочного контроля последовательных партий на основе приемлемого уровня качества»  ГОСТ Р ИСО 4759-1-2009 «Изделия крепежные. Допуски. Часть 1. Болты, винты, шпильки и гайки. Классы точности А, В и С»  ГОСТ Р ИСО 6157-1-2009 «Изделия крепежные. Дефекты поверхности. Часть 1. Болты, винты и шпильки общего назначения»  ГОСТ Р ИСО 3269-2009 «Изделия крепежные. Приемочный контроль»  ГОСТ Р ИСО 3506-1-2009 «Механические свойства крепежных изделий из коррозионно-стойкой нержавеющей стали. Часть 1. Болты, винты и шпильки»  ГОСТ Р ИСО 4042-2009 «Изделия крепежные. Электролитические покрытия» ГОСТ Р 53788-2010 «Огнеупоры и огнеупорное сырье. Методы определения огнеупорности» ГОСТ Р ИСО 898-1-2011 «Механические свойства крепежных изделий из углеродистых и легированных сталей. Часть 1. Болты, винты и шпильки установленных классов прочности с крупным и мелким шагом резьбы»
|
                                                
|