| ||||||||||||||||||||||||||||||||||||
Скачать ВСН 01-91 Железнодорожные вокзалы для пассажиров прямого сообщения. Нормы проектированияДата актуализации: 10.08.2017
|
| Обозначение: | ВСН 01-91 |
| Обозначение англ: | VSN 01-91 |
| Статус: | заменен |
| Название рус.: | Железнодорожные вокзалы для пассажиров прямого сообщения. Нормы проектирования |
| Дата добавления в базу: | 01.09.2013 |
| Дата актуализации: | 05.05.2017 |
| Дата введения: | 01.07.1998 |
| Область применения: | Нормы распространяются на проектирование железнодорожных вокзалов для пассажиров прямого сообщения, сооружаемых как самостоятельно, так и в объединении с пригородными железнодорожными вокзалами, вокзалами других видов транспорта, постами электрической централизации, домами связи, багажными отделениями, товарными конторами и др.. |
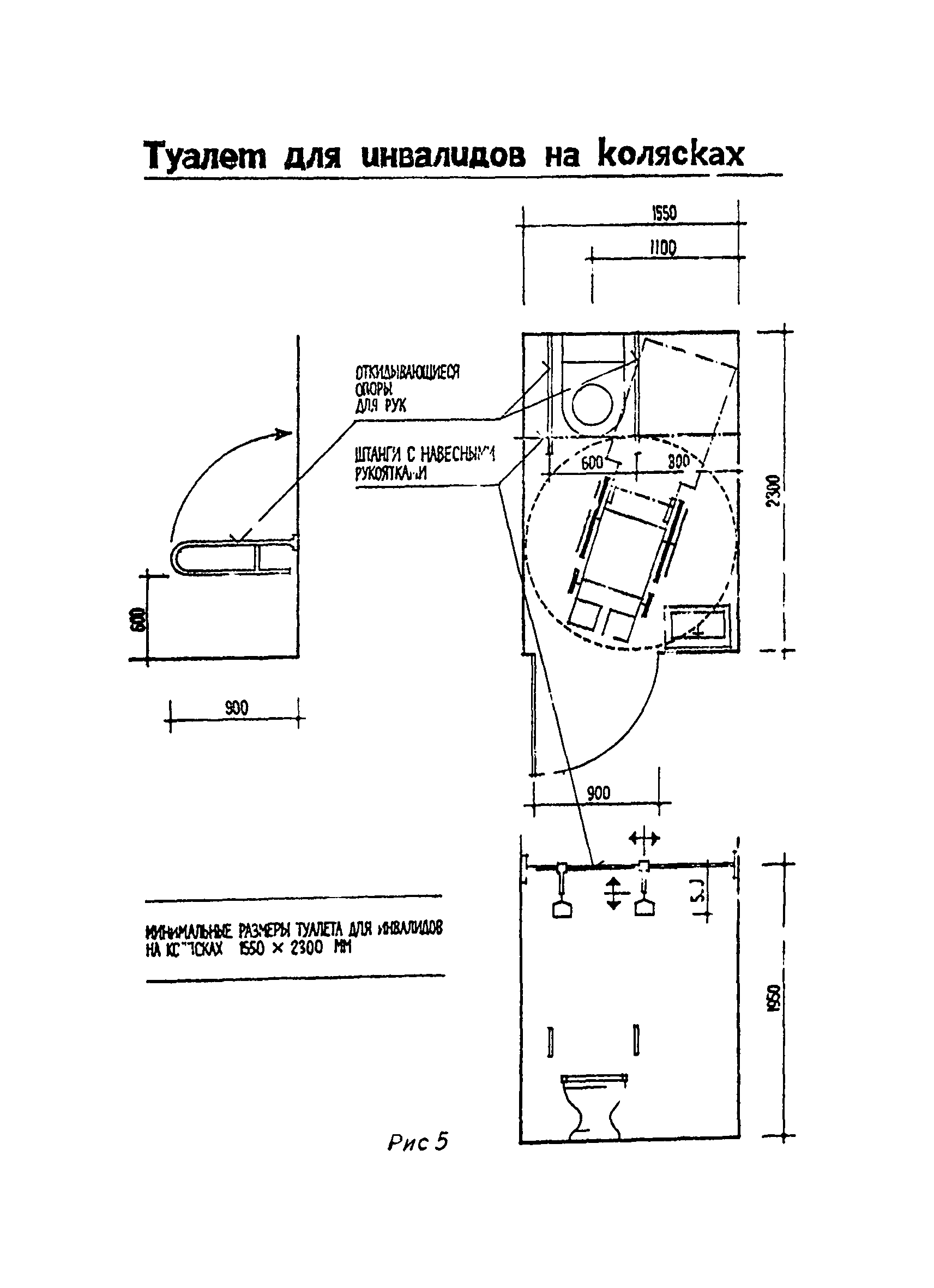
| Оглавление: | Введение 1 Общие указания 2 Генеральные планы 3 Технические требования 4 Объемно-планировочные решения 5 Конструктивные системы и отделочные материалы 6 Санитарно-технические системы 7 Электрооборудование, наружное освещение 8 Устройства связи 9 Охрана окружающей среды Приложение 1. Специальная технологическая терминология Приложение 2. Состав и площади помещений железнодорожных вокзалов Приложение 3. Номенклатура и норма площадей для предприятий общественного питания на железнодорожных вокзалах Приложение 4. Состав и площадь помещений кафе самообслуживания на железнодорожных вокзалах Приложение 5. Состав и площади помещений буфетов на железнодорожных вокзалах Приложение 6. Параметры пассажирских платформ Приложение 7. Электрические нагрузки зданий вокзалов Рисунки 1 - 12 |
| Разработан: | ВТК при Центральном правлении Всесоюзного научно-технического общества железнодорожников и транспортных строителей |
| Утверждён: | 27.12.1991 Министерство путей сообщения СССР (USSR Ministry of Railroads Г-1991у) |
| Издан: | Издательство Транспорт (1992 г. ) |
| Расположен в: | |
| Заменяет собой: |
|
| Чем заменён: | |
| Нормативные ссылки: |
|

















































































































