| ||||||||||||||||||||||||||||||||
Скачать Серия 1.232-3 Выпуск 6. Указания по изготовлению панелей и применению их в проектировании и строительствеДата актуализации: 10.08.2017
|
| Обозначение: | Серия 1.232-3 |
| Обозначение англ: | Series 1.232-3 |
| Статус: | заменен |
| Название рус.: | Выпуск 6. Указания по изготовлению панелей и применению их в проектировании и строительстве |
| Дата добавления в базу: | 01.09.2013 |
| Дата актуализации: | 05.05.2017 |
| Дата введения: | 01.11.1980 |
| Область применения: | Изделия серии предназначены для применения в проектах общественных зданий (предприятия торговли, общественного питания, бытового обслуживания, школы, детские учреждения и другие), а также административно-бытовых зданий при промышленных предприятиях и других зданиях |
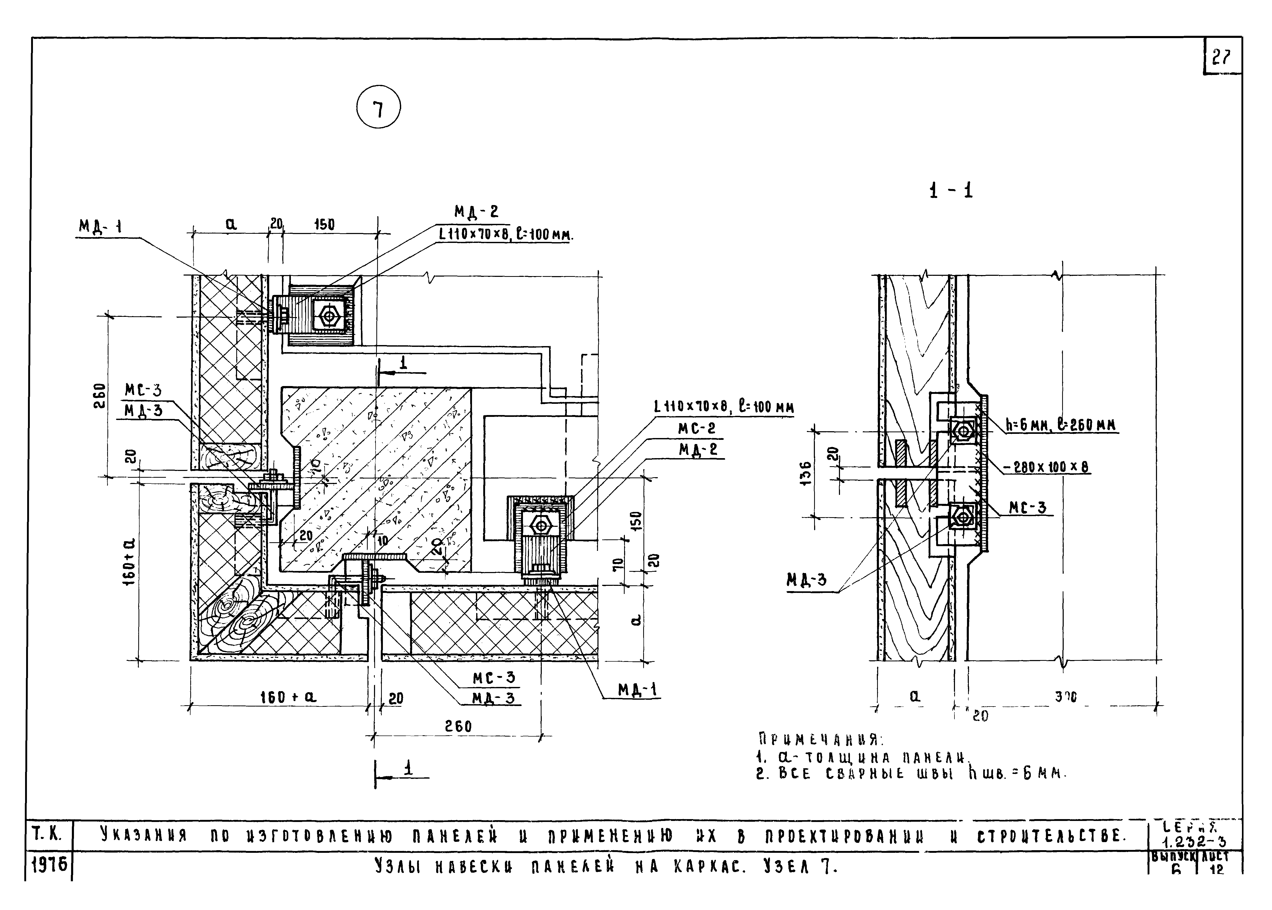
| Оглавление: | Содержание альбома Пояснительная записка Номенклатура изделий Схемы навески панелей наружных стен Положение закладных деталей на каркасе с колоннами 300х300 мм Положение закладных деталей на каркасе с колоннами 400х400 мм Положение закладных деталей. Наружный и внутренний угол Варианты компоновки наружных панелей Узлы навески панелей на каркас. Узел 1 Узлы навески панелей на каркас. Узел 1а Узлы навески панелей на каркас. Узел 2 Узлы навески панелей на каркас. Узел 2а Узлы навески панелей на каркас. Узел 3, 4, 5 Узлы навески панелей на каркас. Узел 6 Узлы навески панелей на каркас. Узел 7 Узлы навески панелей на каркас. Узел 7а Узлы навески панелей на каркас. Узел 8, 8а Узлы навески панелей на каркас. Узел 9 Примеры устройства кровли. Узел 1, 2 Примеры устройства цокольного и рядового узла. Узел 3, 4 Стыки панелей. Узел 1 Монтажные детали МД-1, МД-3 Монтажные детали МД-2, МС-3 Монтажные детали МС-1, МС-2, ПП-1 Закладная деталь ЗД-2 Закладная деталь ЗД-1 |
| Разработан: | ЦНИИЭП торгово-бытовых зданий и туристских комплексов |
| Утверждён: | 17.05.1976 Государственный комитет по гражданскому строительству и архитектуре при Госстрое СССР (110) |
| Расположен в: | |
| Чем заменён: | |
| Нормативные ссылки: |






































