Информационная система
«Ёшкин Кот»

Скачать базу одним архивом
Скачать обновления
История создания базы
Карта сайта

Скачать Серия 1.132-1 Выпуск 0-3. Общие материалы и унифицированные детали панелей толщиной 400 мм

Дата актуализации: 10.08.2017

Серия 1.132-1

Выпуск 0-3. Общие материалы и унифицированные детали панелей толщиной 400 мм

Обозначение: Серия 1.132-1
Обозначение англ: Series 1.132-1
Статус:заменен
Название рус.:Выпуск 0-3. Общие материалы и унифицированные детали панелей толщиной 400 мм
Дата добавления в базу:01.09.2013
Дата актуализации:05.05.2017
Дата введения:01.10.1983
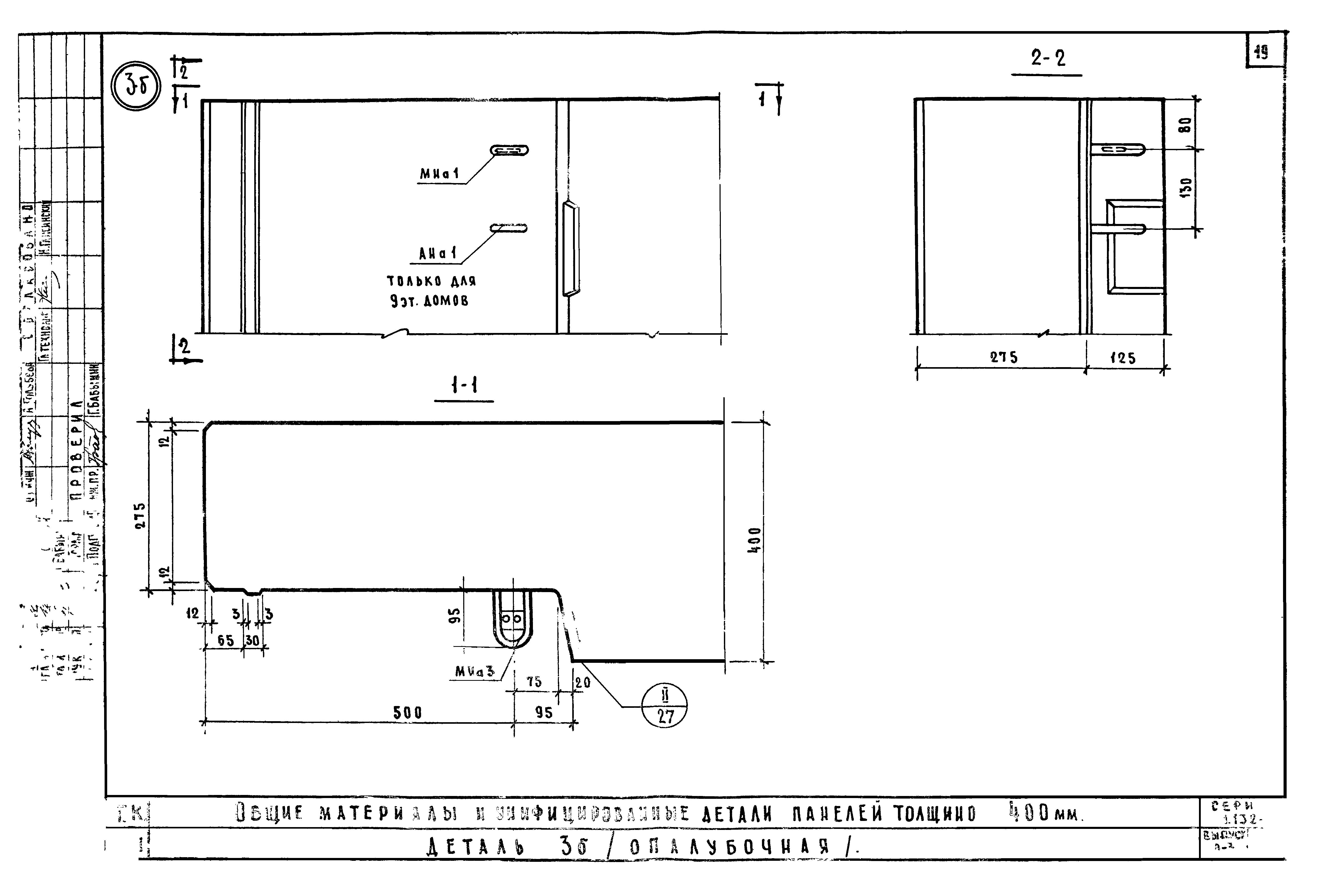
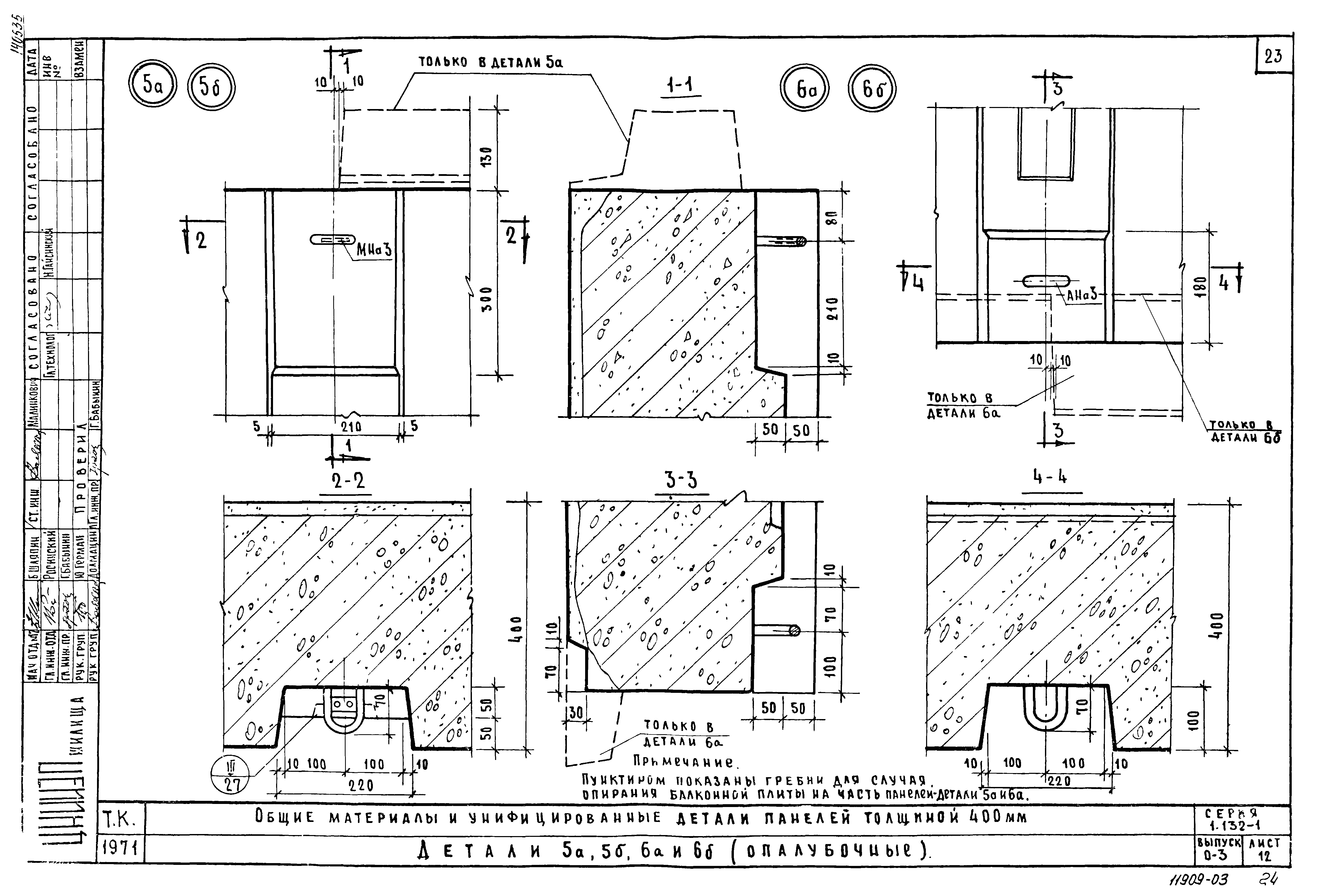
Область применения:Рабочие чертежи унифицированных панелей из легкого бетона на пористых заполнителях разработаны для наружных несущих стен крупнопанельных 5 - 9-этажных жилых домов с малым шагом поперечных внутренних несущих стен, предназначенных для строительства в обычных условиях во II и III строительно-климатических зонах
Разработан: ЦНИИСК им. В.А. Кучеренко
ЦНИИЭП жилища
Утверждён:26.10.1971 Государственный комитет по гражданскому строительству и архитектуре при Госстрое СССР (190)
Расположен в:Техническая документация Строительство Справочные документы Типовые строительные конструкции, изделия и узлы Общероссийский строительный каталог Строительные конструкции, изделия и узлы зданий и сооружений для всех видов строительства Конструкции, изделия и узлы зданий Ограждающие конструкции Стены наружные Панели (бетонные и железобетонные)
Чем заменён:
  • Серия 1.132-1/82
Нормативные ссылки:
Серия 1.132-1Серия 1.132-1Серия 1.132-1Серия 1.132-1Серия 1.132-1Серия 1.132-1Серия 1.132-1Серия 1.132-1Серия 1.132-1Серия 1.132-1Серия 1.132-1Серия 1.132-1Серия 1.132-1Серия 1.132-1Серия 1.132-1Серия 1.132-1Серия 1.132-1Серия 1.132-1Серия 1.132-1Серия 1.132-1Серия 1.132-1Серия 1.132-1Серия 1.132-1Серия 1.132-1Серия 1.132-1Серия 1.132-1Серия 1.132-1Серия 1.132-1Серия 1.132-1Серия 1.132-1Серия 1.132-1Серия 1.132-1Серия 1.132-1Серия 1.132-1Серия 1.132-1Серия 1.132-1Серия 1.132-1Серия 1.132-1Серия 1.132-1Серия 1.132-1Серия 1.132-1Серия 1.132-1Серия 1.132-1Серия 1.132-1Серия 1.132-1Серия 1.132-1Серия 1.132-1Серия 1.132-1Серия 1.132-1Серия 1.132-1Серия 1.132-1Серия 1.132-1Серия 1.132-1Серия 1.132-1Серия 1.132-1Серия 1.132-1Серия 1.132-1Серия 1.132-1Серия 1.132-1Серия 1.132-1Серия 1.132-1Серия 1.132-1Серия 1.132-1Серия 1.132-1Серия 1.132-1Серия 1.132-1Серия 1.132-1Серия 1.132-1Серия 1.132-1Серия 1.132-1Серия 1.132-1Серия 1.132-1Серия 1.132-1Серия 1.132-1Серия 1.132-1

© 2013 Ёшкин Кот :-) Карта сайта