| ||||||||||||||||||||||||||||||
Скачать Серия 1.132-1 Выпуск 0-1. Общие материалы и унифицированные детали панелей толщиной 300 ммДата актуализации: 10.08.2017
|
| Обозначение: | Серия 1.132-1 |
| Обозначение англ: | Series 1.132-1 |
| Статус: | заменен |
| Название рус.: | Выпуск 0-1. Общие материалы и унифицированные детали панелей толщиной 300 мм |
| Дата добавления в базу: | 01.09.2013 |
| Дата актуализации: | 05.05.2017 |
| Дата введения: | 01.10.1983 |
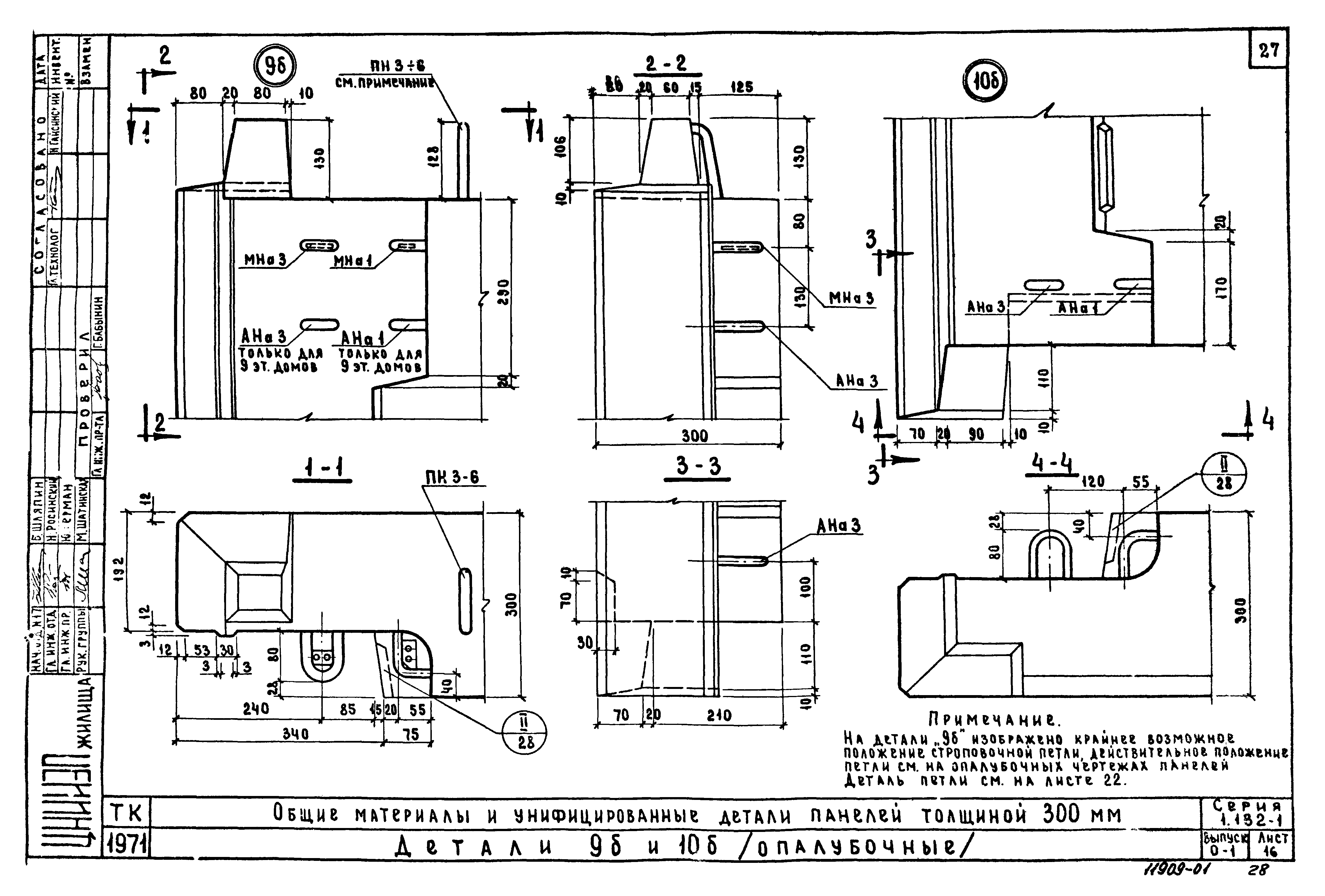
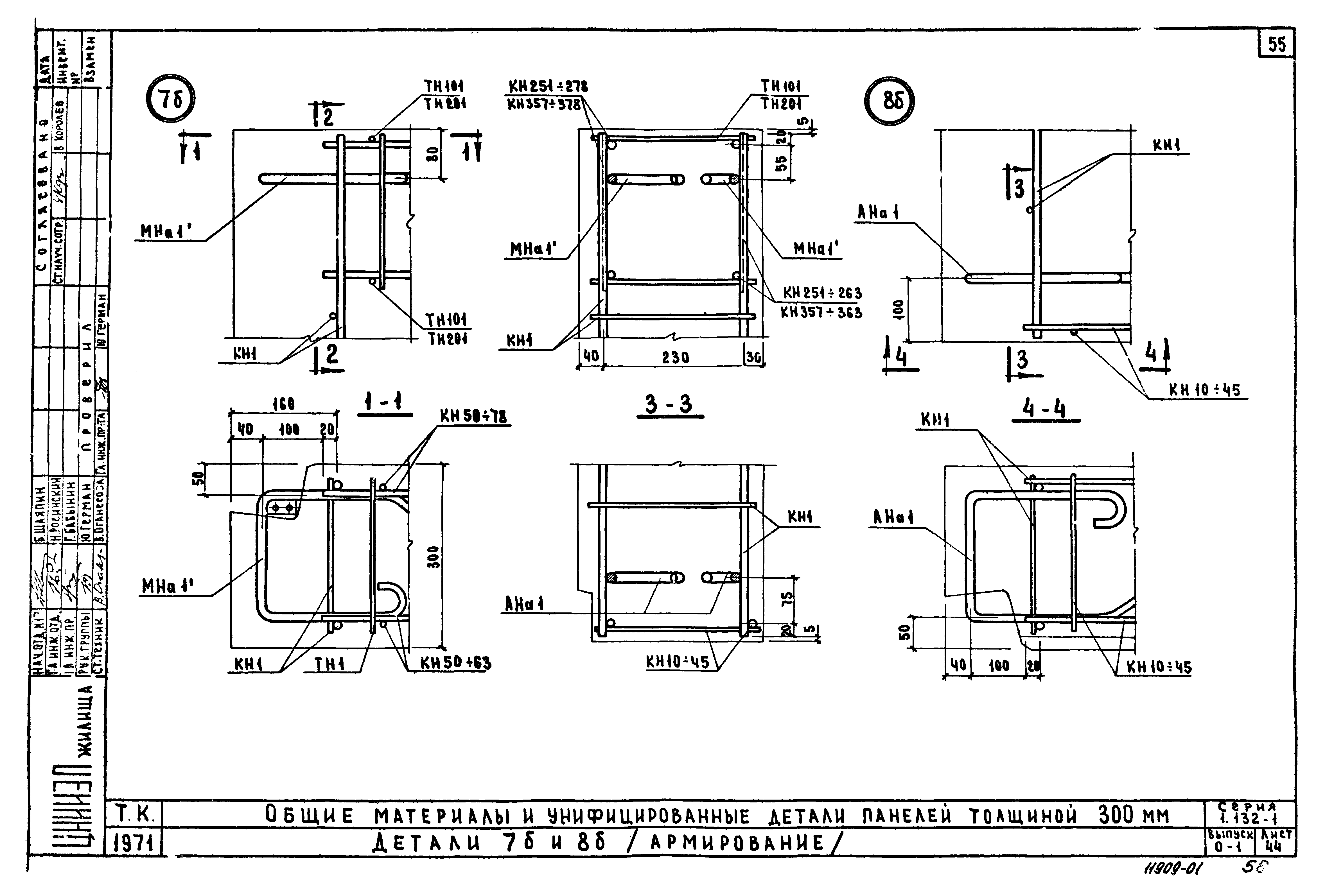
| Область применения: | Рабочие чертежи унифицированных панелей из легкого бетона на пористых заполнителях разработаны для наружных несущих стен крупнопанельных 5 - 9-этажных жилых домов с малым шагом поперечных внутренних несущих стен, предназначенных для строительства в обычных условиях во II и III строительно-климатических зонах |
| Разработан: | ЦНИИСК им. В.А. Кучеренко ЦНИИЭП жилища |
| Утверждён: | 28.12.1971 Государственный комитет по гражданскому строительству и архитектуре при Госстрое СССР (234) |
| Расположен в: | |
| Чем заменён: |
|
| Нормативные ссылки: |
|










































































