Информационная система
«Ёшкин Кот»

Скачать базу одним архивом
Скачать обновления
История создания базы
Карта сайта

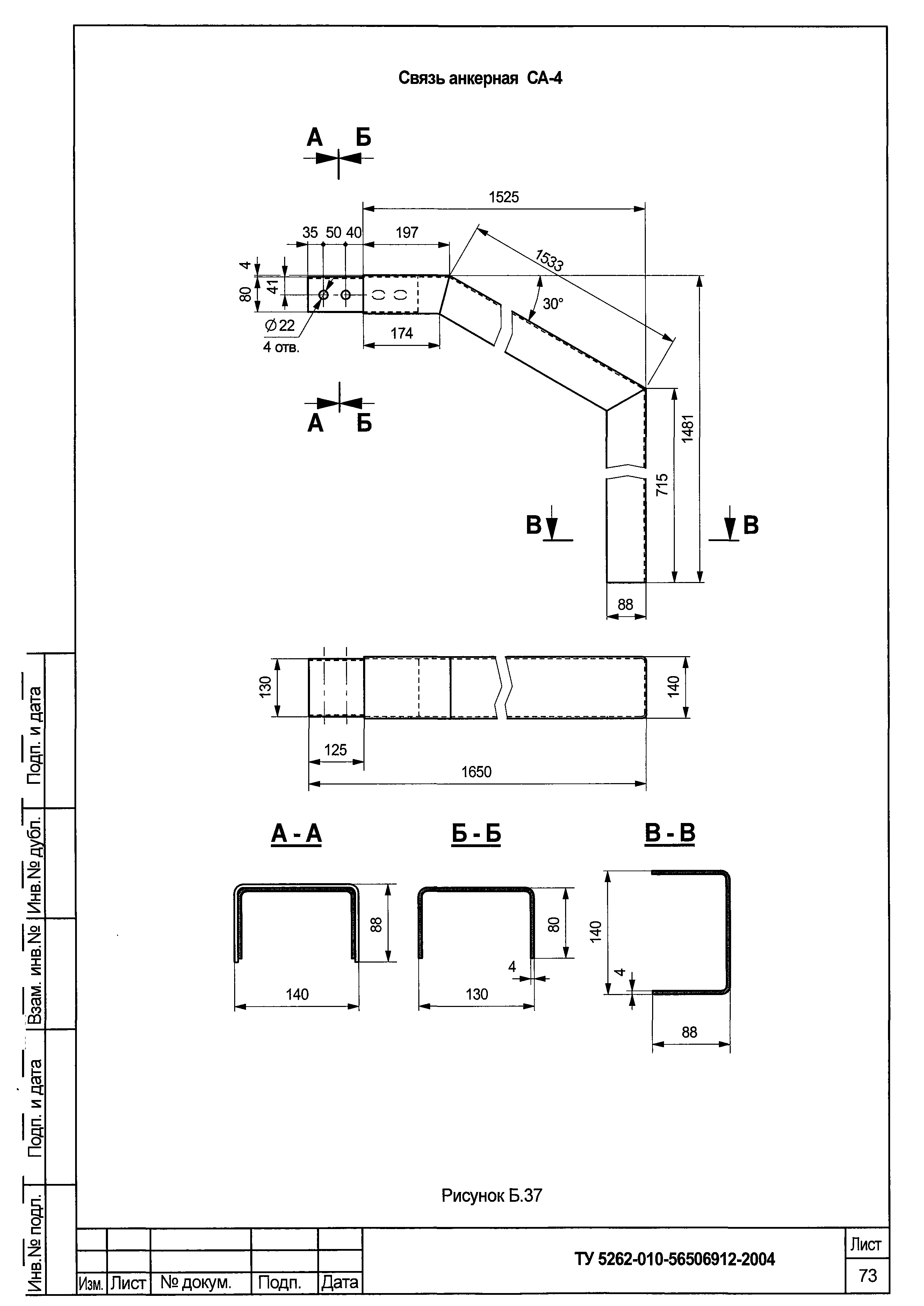
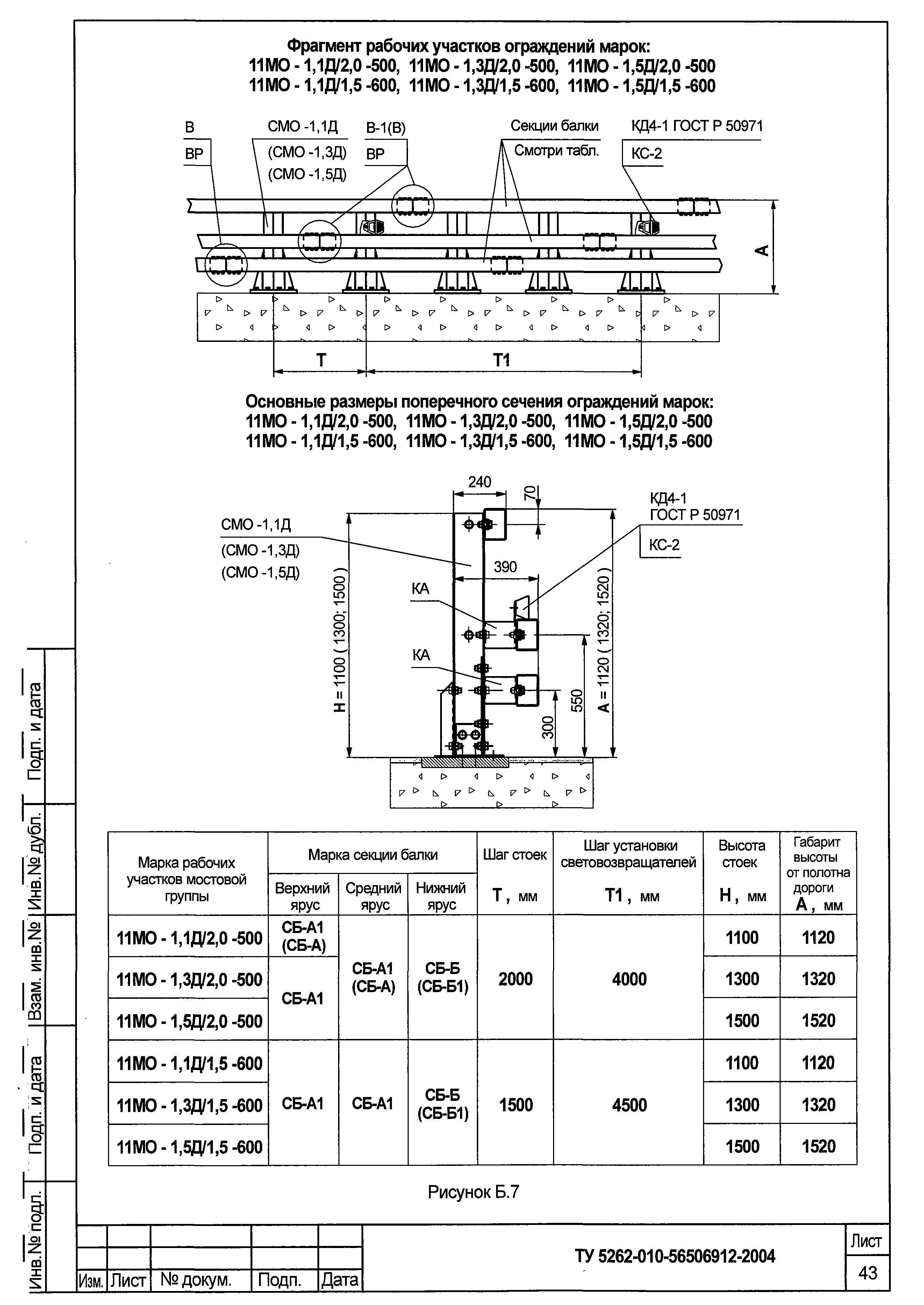
Скачать ТУ 5262-010-56506912-2004 Ограждения дорожные удерживающие для автомобилей, боковые, первого типа, металлические. Технические условия

Дата актуализации: 10.08.2017

ТУ 5262-010-56506912-2004

Ограждения дорожные удерживающие для автомобилей, боковые, первого типа, металлические. Технические условия

Обозначение: ТУ 5262-010-56506912-2004
Обозначение англ: TU 5262-010-56506912-2004
Статус:действует
Название рус.:Ограждения дорожные удерживающие для автомобилей, боковые, первого типа, металлические. Технические условия
Дата добавления в базу:01.09.2013
Дата актуализации:05.05.2017
Дата введения:10.08.2004
Область применения:Документ распространяется на ограждения дорожные удерживающие для автомобилей, боковые, первого типа, одностороннего и двустороннего исполнения, предназначенные для применения на магистральных городских и внегородских автомобильных дорогах общего пользования.
Оглавление:Вводная часть
1. Технические требования
2. Требования безопасности
3. Правила приёмки
4. Методы контроля
5. Испытания
6. Транспортирование и хранение
7. Гарантии изготовителя
Приложение А Определение терминов
Приложение Б Рисунки ограждения
Приложение В Инструкция по установке ограждений
Приложение Г Перечень документов, на которые даны ссылки в технических условиях
Приложение Д Перечень измерительного инструмента
Приложение Е Примеры выполнений нетиповых узлов ограждений
Приложение Ж Световозвращатели и примеры их установки
Разработан: ООО ТРАНСБАРЬЕР
Утверждён:30.07.2004 ООО ТРАНСБАРЬЕР
Принят:06.08.2004 ГУ ГИБДД МВД РФ
Расположен в:Техническая документация Технический надзор Базы данных элементов Барьерное ограждение (ТУ) Трансбарьер Строительство Стандарты Отраслевые стандарты и технические условия Технические условия
Нормативные ссылки:
ТУ 5262-010-56506912-2004ТУ 5262-010-56506912-2004ТУ 5262-010-56506912-2004ТУ 5262-010-56506912-2004ТУ 5262-010-56506912-2004ТУ 5262-010-56506912-2004ТУ 5262-010-56506912-2004ТУ 5262-010-56506912-2004ТУ 5262-010-56506912-2004ТУ 5262-010-56506912-2004ТУ 5262-010-56506912-2004ТУ 5262-010-56506912-2004ТУ 5262-010-56506912-2004ТУ 5262-010-56506912-2004ТУ 5262-010-56506912-2004ТУ 5262-010-56506912-2004ТУ 5262-010-56506912-2004ТУ 5262-010-56506912-2004ТУ 5262-010-56506912-2004ТУ 5262-010-56506912-2004ТУ 5262-010-56506912-2004ТУ 5262-010-56506912-2004ТУ 5262-010-56506912-2004ТУ 5262-010-56506912-2004ТУ 5262-010-56506912-2004ТУ 5262-010-56506912-2004ТУ 5262-010-56506912-2004ТУ 5262-010-56506912-2004ТУ 5262-010-56506912-2004ТУ 5262-010-56506912-2004ТУ 5262-010-56506912-2004ТУ 5262-010-56506912-2004ТУ 5262-010-56506912-2004ТУ 5262-010-56506912-2004ТУ 5262-010-56506912-2004ТУ 5262-010-56506912-2004ТУ 5262-010-56506912-2004ТУ 5262-010-56506912-2004ТУ 5262-010-56506912-2004ТУ 5262-010-56506912-2004ТУ 5262-010-56506912-2004ТУ 5262-010-56506912-2004ТУ 5262-010-56506912-2004ТУ 5262-010-56506912-2004ТУ 5262-010-56506912-2004ТУ 5262-010-56506912-2004ТУ 5262-010-56506912-2004ТУ 5262-010-56506912-2004ТУ 5262-010-56506912-2004ТУ 5262-010-56506912-2004ТУ 5262-010-56506912-2004ТУ 5262-010-56506912-2004ТУ 5262-010-56506912-2004ТУ 5262-010-56506912-2004ТУ 5262-010-56506912-2004ТУ 5262-010-56506912-2004ТУ 5262-010-56506912-2004ТУ 5262-010-56506912-2004ТУ 5262-010-56506912-2004ТУ 5262-010-56506912-2004ТУ 5262-010-56506912-2004ТУ 5262-010-56506912-2004ТУ 5262-010-56506912-2004ТУ 5262-010-56506912-2004ТУ 5262-010-56506912-2004ТУ 5262-010-56506912-2004ТУ 5262-010-56506912-2004ТУ 5262-010-56506912-2004ТУ 5262-010-56506912-2004ТУ 5262-010-56506912-2004ТУ 5262-010-56506912-2004ТУ 5262-010-56506912-2004ТУ 5262-010-56506912-2004ТУ 5262-010-56506912-2004ТУ 5262-010-56506912-2004ТУ 5262-010-56506912-2004ТУ 5262-010-56506912-2004ТУ 5262-010-56506912-2004ТУ 5262-010-56506912-2004ТУ 5262-010-56506912-2004ТУ 5262-010-56506912-2004ТУ 5262-010-56506912-2004ТУ 5262-010-56506912-2004ТУ 5262-010-56506912-2004ТУ 5262-010-56506912-2004ТУ 5262-010-56506912-2004ТУ 5262-010-56506912-2004ТУ 5262-010-56506912-2004ТУ 5262-010-56506912-2004ТУ 5262-010-56506912-2004ТУ 5262-010-56506912-2004ТУ 5262-010-56506912-2004ТУ 5262-010-56506912-2004ТУ 5262-010-56506912-2004ТУ 5262-010-56506912-2004ТУ 5262-010-56506912-2004ТУ 5262-010-56506912-2004ТУ 5262-010-56506912-2004ТУ 5262-010-56506912-2004ТУ 5262-010-56506912-2004ТУ 5262-010-56506912-2004ТУ 5262-010-56506912-2004ТУ 5262-010-56506912-2004ТУ 5262-010-56506912-2004ТУ 5262-010-56506912-2004ТУ 5262-010-56506912-2004ТУ 5262-010-56506912-2004ТУ 5262-010-56506912-2004ТУ 5262-010-56506912-2004ТУ 5262-010-56506912-2004ТУ 5262-010-56506912-2004ТУ 5262-010-56506912-2004ТУ 5262-010-56506912-2004ТУ 5262-010-56506912-2004ТУ 5262-010-56506912-2004ТУ 5262-010-56506912-2004ТУ 5262-010-56506912-2004ТУ 5262-010-56506912-2004ТУ 5262-010-56506912-2004ТУ 5262-010-56506912-2004ТУ 5262-010-56506912-2004ТУ 5262-010-56506912-2004ТУ 5262-010-56506912-2004ТУ 5262-010-56506912-2004ТУ 5262-010-56506912-2004ТУ 5262-010-56506912-2004ТУ 5262-010-56506912-2004ТУ 5262-010-56506912-2004ТУ 5262-010-56506912-2004ТУ 5262-010-56506912-2004ТУ 5262-010-56506912-2004ТУ 5262-010-56506912-2004ТУ 5262-010-56506912-2004ТУ 5262-010-56506912-2004

© 2013 Ёшкин Кот :-) Карта сайта