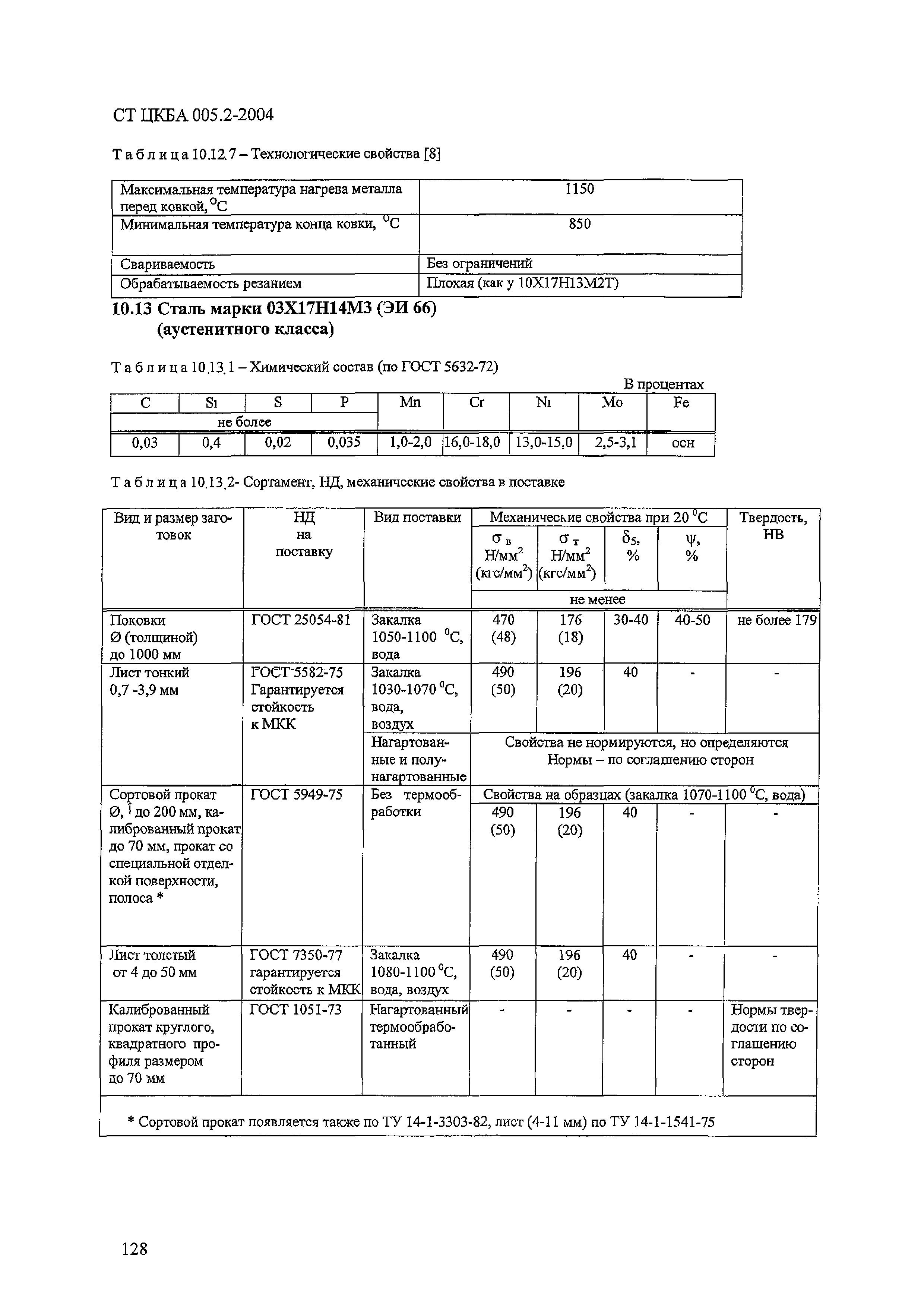
Скачать СТ ЦКБА 005.2-2004 Арматура трубопроводная. Металлы, применяемые в арматуростроении. Часть 2. Справочные данные о свойствах материаловДата актуализации: 10.08.2017 СТ ЦКБА 005.2-2004
Арматура трубопроводная. Металлы, применяемые в арматуростроении. Часть 2. Справочные данные о свойствах материаловОбозначение: | СТ ЦКБА 005.2-2004 | Обозначение англ: | 005.2-2004 | Статус: | действует | Название рус.: | Арматура трубопроводная. Металлы, применяемые в арматуростроении. Часть 2. Справочные данные о свойствах материалов | Дата добавления в базу: | 01.09.2013 | Дата актуализации: | 05.05.2017 | Дата введения: | 01.07.2004 | Область применения: | Документ распространяется на трубопроводную арматуру для опасных производственных объектов, поднадзорных Ростехнадзору, для заказов Министерства обороны РФ, судовых систем, на трубопроводную арматуру общепромышленного применения и устанавливает марки металлических материалов, применяемые для изготовления основных деталей трубопроводной арматуры и приводных устройств к ней, кроме электроприводов. Устанавливает марки металлических материалов, применяемые для изготовления основных деталей трубопроводной арматуры и приводных устройств. Не распространяется на трубопроводную арматуру для атомных станций и на электроприводы к трубопроводной арматуре. | Оглавление: | Условные обозначения 1. Стали углеродистые обыкновенного качества 2. Стали углеродистые сернистые высокой обрабатываемости резанием 3. Стали углеродистые качественные конструкционные 4. Стали легированные конструкционные 5. Стали легированные повышенной прочности 6. Стали теплоустойчивые 7. Стали рессорно-пружинные 8. Сталь электрическая нелегированная 9. Стали коррозионностойкие магнитно-мягкие 10. Стали и сплавы коррозионостойкие 11. Стали и сплавы коррозионностойкие и жаропрочные 12. Сплавы прецизионные коррозионностойкие 13. Стали для отливок 14. Цветные металлы 15. Сплавы на основе меди деформируемые 16. Сплавы на основе меди для отливок 17. Сплавы на основе алюминия деформируемые 18. Сплавы на основе алюминия для отливок 19. Сплавы на основе титана деформируемые 20. Сплавы на основе титана для отливок 21. Сплавы на основе цинка для отливок 22. Сплавы на основе никеля для отливок 23. Наплавочные твердые сплавы 24. Чугун серый 25. Чугун ковкий 26. Чугун высокопрочный 27. Чугун коррозионностойкий и жаропрочный 28. Чугун антифрикционный 29. Физические свойства конструкционных материалов, принятые в атомной энергетике Библиография | Разработан: | ЗАО НПФ ЦКБА НПАА
| Утверждён: | 09.03.2004 ЗАО НПФ ЦКБА (11)
| Принят: | 23.12.2003 Госгортехнадзор (Gosgortekhnadzor 10-03/1367) 03.10.2003 ООО ВНИИгаз (VNIIgaz OOO 58-4/4008) 21.10.2003 ОАО НИИхиммаш (NIIkhimmash OAO 7064-21-8/540) 06.11.2003 ОАО ВНИИНЕФТЕМАШ (30-25/1108) ТК 259 Трубопроводная арматура и сильфоны
| Издан: | ЗАО НПФ ЦКБА (2009 г. )
| Расположен в: |
| Список изменений: | | Заменяет собой: | | Нормативные ссылки: | |
                                                                                                                                                                                                                                                                                                                                       
Текстовое изменение поправка № 2 от 04.02.2013

Текстовое изменение поправка № 3 от 02.04.2014
|