| ||||||||||||||||||||||||||||||||
Скачать Пособие к МГСН 4.12-97 Лечебно-профилактические учреждения. Раздел III. Выпуск 5. Диагностические отделения. Отделения (кабинеты) функциональной диагностики. Эндоскопические отделения (кабинеты). Отделы (отделения) лучевой диагностики (рентгенологические, компьютерной и магнитно-резонансной томографии, радионуклидной диагностики)Дата актуализации: 10.08.2017
|
| Обозначение: | Пособие к МГСН 4.12-97 |
| Обозначение англ: | MGSN Handbook 4.12-97 |
| Статус: | действует |
| Название рус.: | Лечебно-профилактические учреждения. Раздел III. Выпуск 5. Диагностические отделения. Отделения (кабинеты) функциональной диагностики. Эндоскопические отделения (кабинеты). Отделы (отделения) лучевой диагностики (рентгенологические, компьютерной и магнитно-резонансной томографии, радионуклидной диагностики) |
| Дата добавления в базу: | 01.09.2013 |
| Дата актуализации: | 05.05.2017 |
| Дата введения: | 26.02.2006 |
| Область применения: | Выпуск пособия распространяется на проектирование отделений (кабинетов) функциональной диагностики, эндоскопических отделений (кабинетов), отделений лучевой диагностики (рентгенодиагностических, магниторезонансной томографии, лабораторий радиоизотопной диагностики) новых и реконструируемых лечебно-профилактических учреждений, независимо от их организационно-правовой формы и форм собственности |
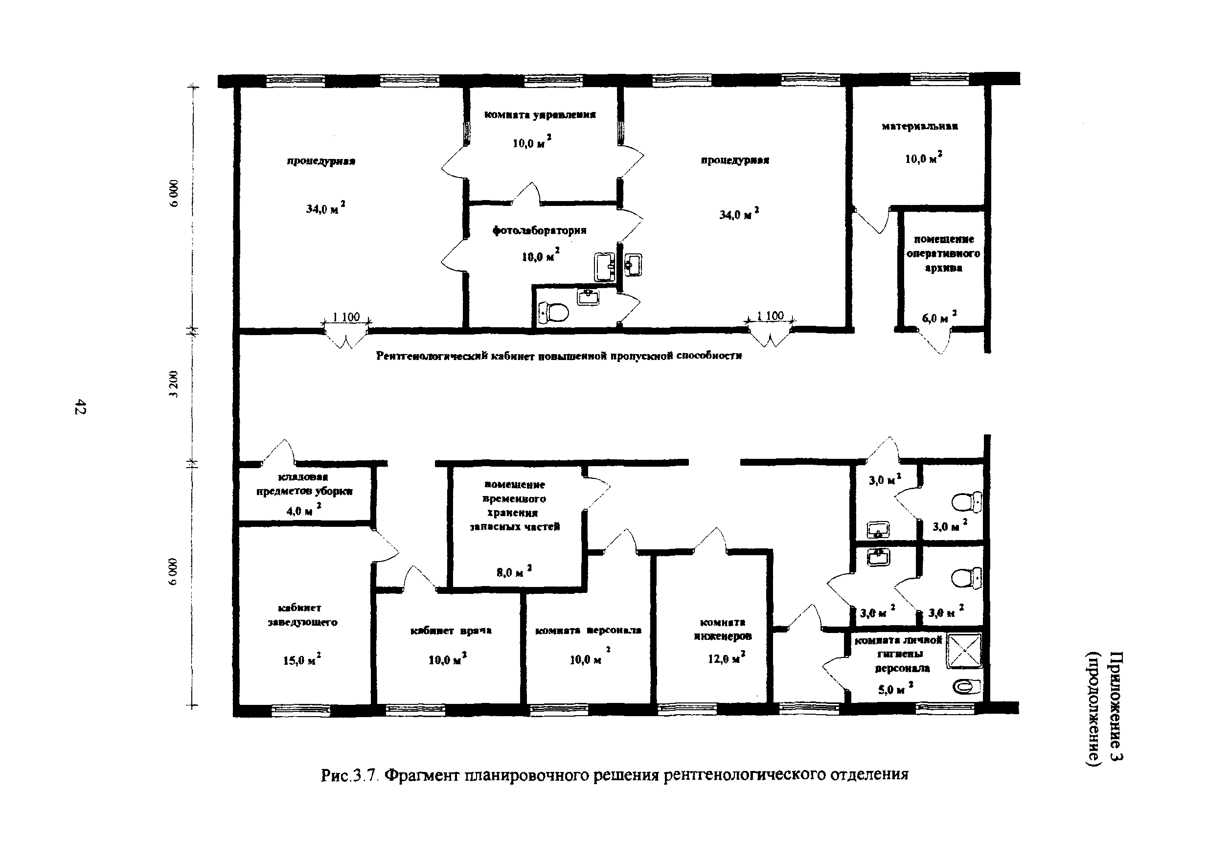
| Оглавление: | Введение Область применения 1. Отделение (кабинеты) функциональной диагностики 2. Эндоскопическое отделение (кабинеты) 3. Отдел (отделение) лучевой диагностики 3.1. Рентгенологическое отделение 3.2. Отделение рентгеновской компьютерной томографии 3.3. Кабинет магнитно-резонансной томографии 3.4. Отделение (лаборатория) радионуклидной диагностики 4. Нормативные ссылки Приложение 1. Примерные габаритные схемы основных помещений отделения функциональной диагностики с необходимым оборудованием и мебелью Приложение 2. Примерные габаритные схемы основных помещений эндоскопического отделения с необходимым оборудованием и мебелью Приложение 3. Примерные габаритные схемы основных помещений рентгенологического отделения с необходимым оборудованием и мебелью Приложение 4. Примерная габаритная схема кабинета компьютерной томографии с необходимым оборудованием и мебелью Приложение 5. Примерная габаритная схема кабинета магнитно-резонансной томографии с необходимым оборудованием и мебелью Приложение 6. Примерная габаритная схема кабинета сканирования с необходимым оборудованием и мебелью |
| Разработан: | ГУП МНИИП Моспроект-4 НПЦ Медицинской радиологии Департамент здравоохранения города Москвы |
| Утверждён: | 26.02.2006 Москомархитектура (Moskomarkhitektura 38) |
| Принят: | Департамент здравоохранения города Москвы |
| Расположен в: | |
| Нормативные ссылки: |
|


















































