Информационная система
«Ёшкин Кот»

Скачать базу одним архивом
Скачать обновления
История создания базы
Карта сайта

Скачать Шифр М8.3/2008 Комплектные системы КНАУФ. Облицовка из гипсоволокнистых листов ограждающих конструкций жилых, общественных и производственных зданий. Стены. Мансардные помещения. Коммуникационные шахты. Материалы для проектирования и рабочие чертежи узлов

Дата актуализации: 10.08.2017

Шифр М8.3/2008

Комплектные системы КНАУФ. Облицовка из гипсоволокнистых листов ограждающих конструкций жилых, общественных и производственных зданий. Стены. Мансардные помещения. Коммуникационные шахты. Материалы для проектирования и рабочие чертежи узлов

Обозначение: Шифр М8.3/2008
Обозначение англ: М8.3/2008
Статус:не определен законодательством
Название рус.:Комплектные системы КНАУФ. Облицовка из гипсоволокнистых листов ограждающих конструкций жилых, общественных и производственных зданий. Стены. Мансардные помещения. Коммуникационные шахты. Материалы для проектирования и рабочие чертежи узлов
Дата добавления в базу:01.09.2013
Дата актуализации:05.05.2017
Дата введения:01.01.2008
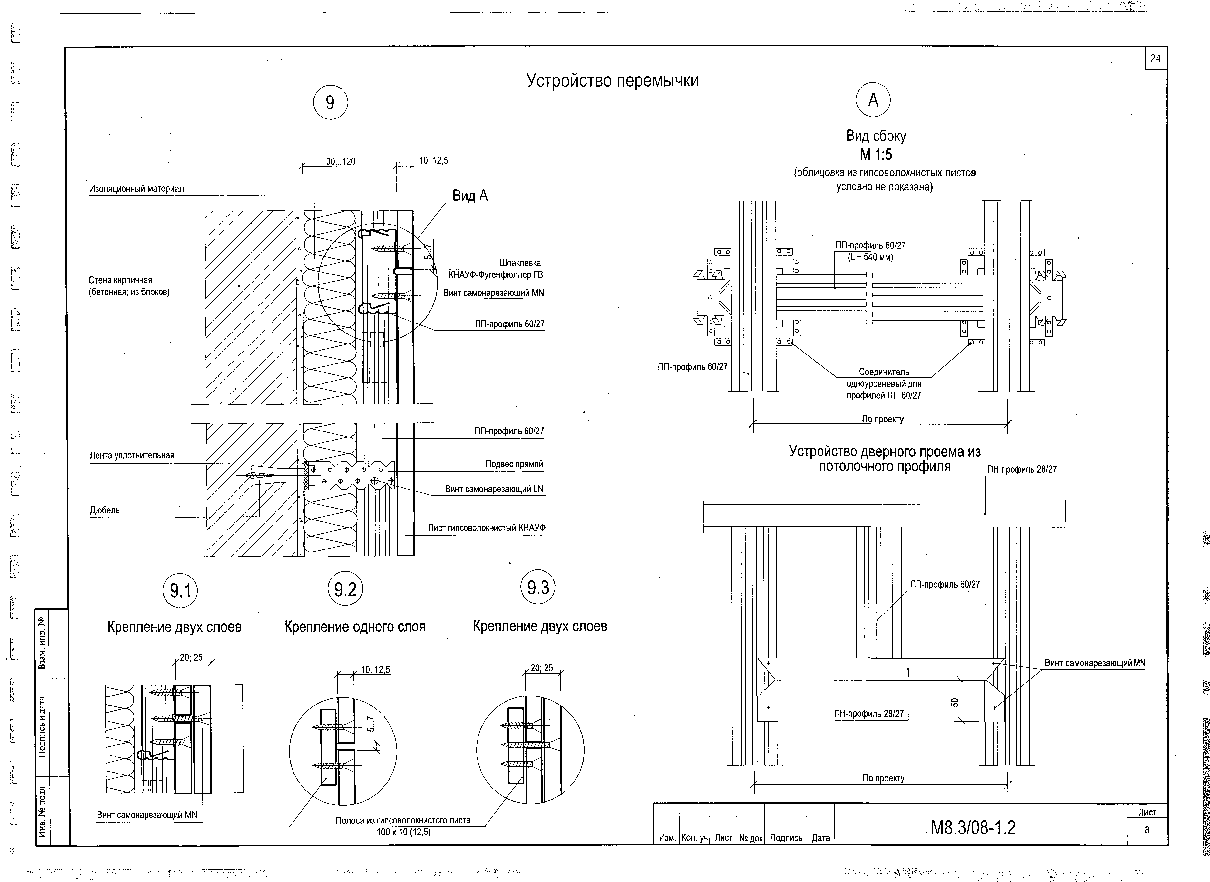
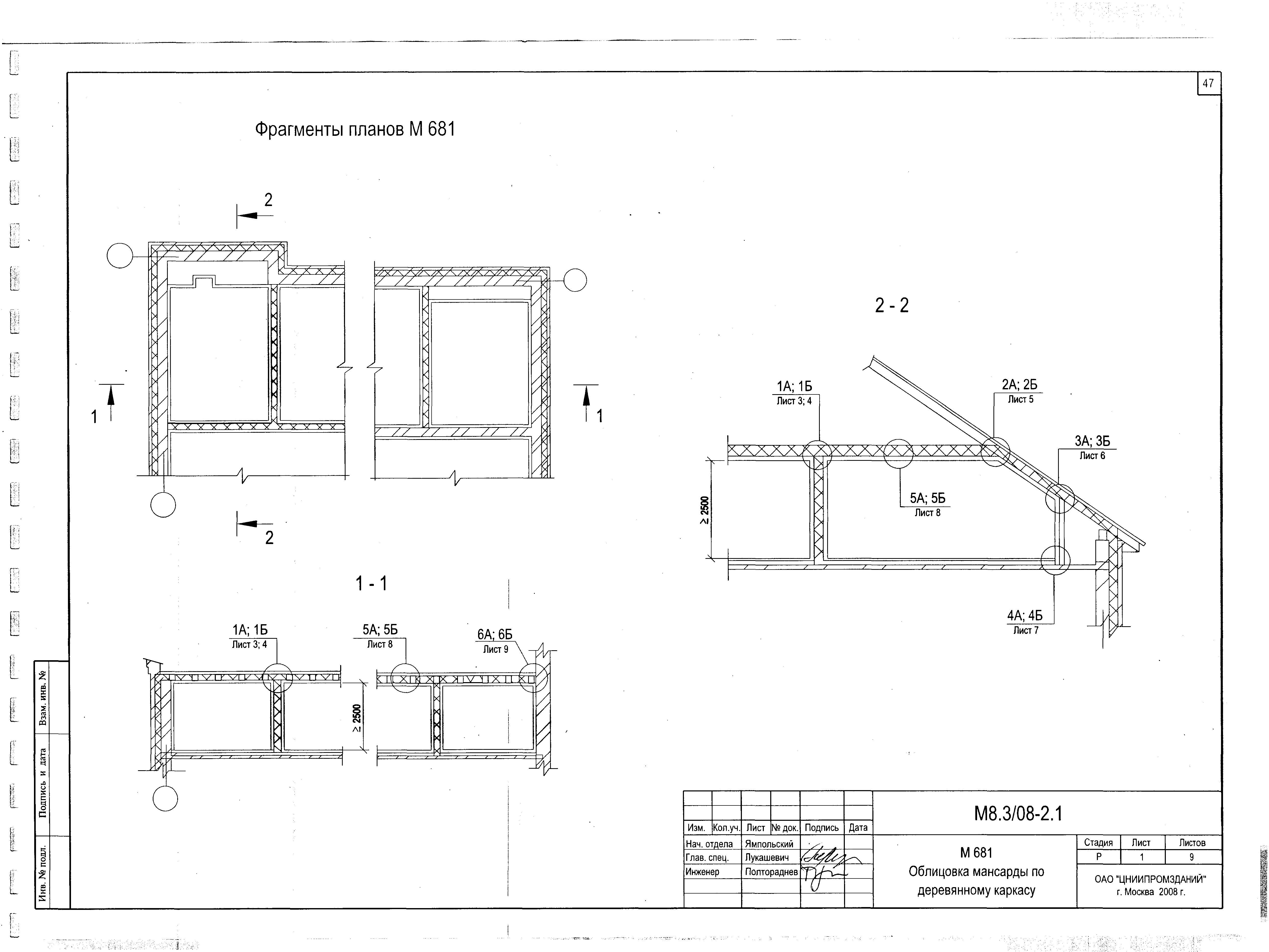
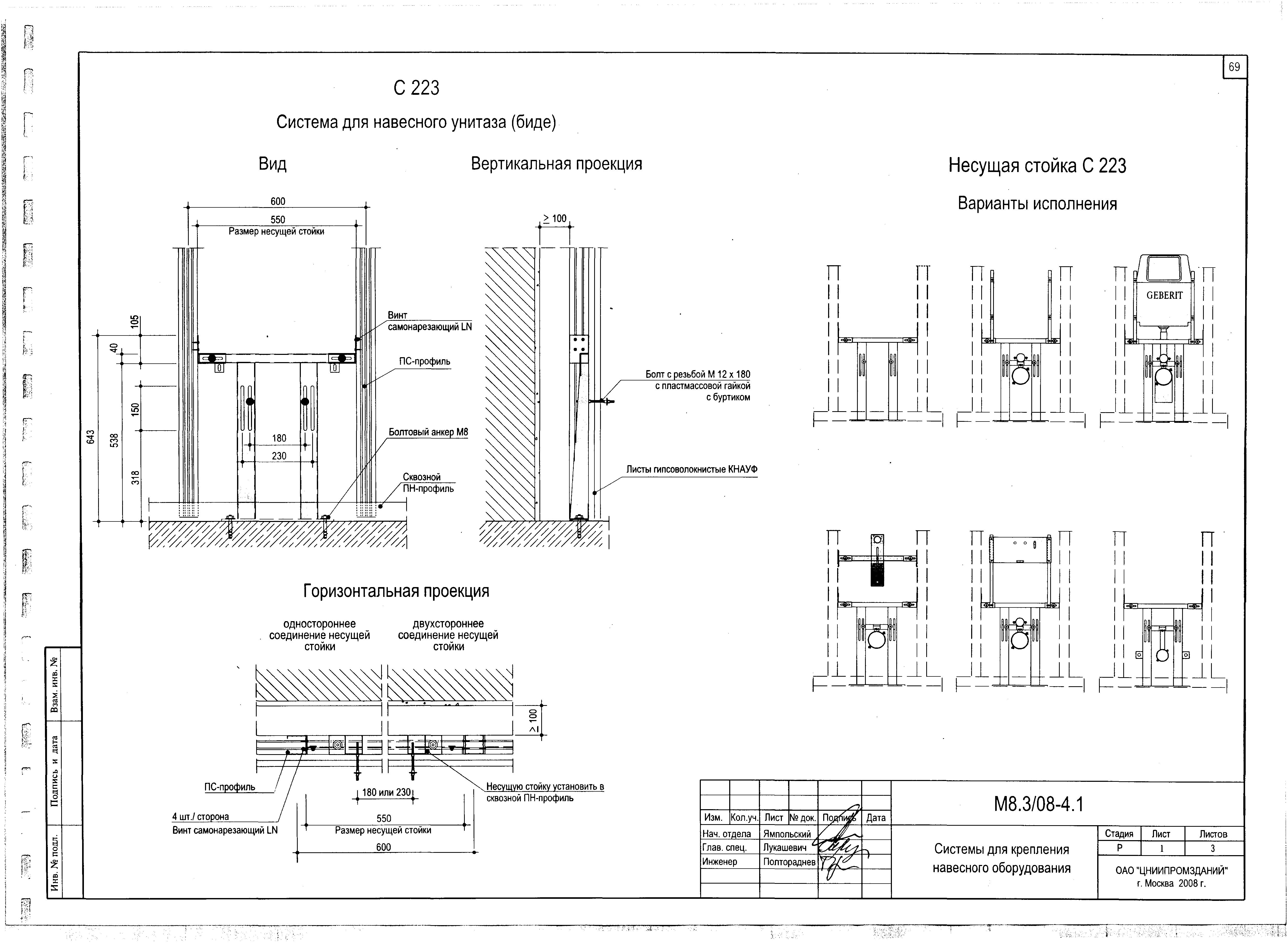
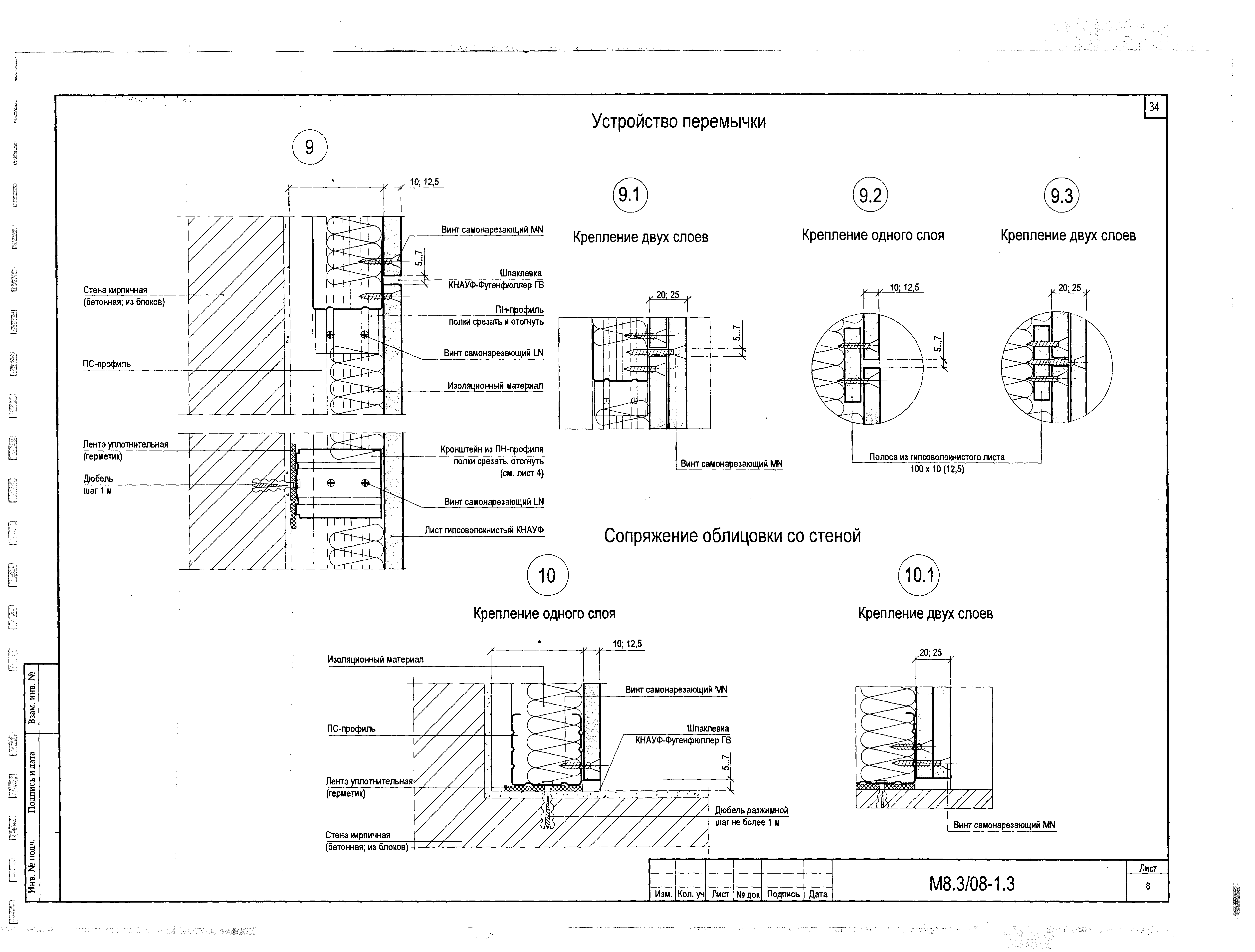
Область применения:Альбом включает материалы для проектирования и рабочие чертежи узлов конструкций на основе комплектных систем КНАУФ из гипсоволокнистых листов для внутренней отделки зданий различного назначения
Разработан: ОАО ЦНИИпромзданий
Утверждён:01.01.2008 ОАО ЦНИИпромзданий (TsNIIpromzdaniy OAO )
Издан: ЦНИИпромзданий (2008 г. )
Расположен в:Техническая документация Строительство Справочные документы Типовые строительные конструкции, изделия и узлы Разработанные другими министерствами, ведомствами и организациями
Заменяет собой:
Нормативные ссылки:
Шифр М8.3/2008Шифр М8.3/2008Шифр М8.3/2008Шифр М8.3/2008Шифр М8.3/2008Шифр М8.3/2008Шифр М8.3/2008Шифр М8.3/2008Шифр М8.3/2008Шифр М8.3/2008Шифр М8.3/2008Шифр М8.3/2008Шифр М8.3/2008Шифр М8.3/2008Шифр М8.3/2008Шифр М8.3/2008Шифр М8.3/2008Шифр М8.3/2008Шифр М8.3/2008Шифр М8.3/2008Шифр М8.3/2008Шифр М8.3/2008Шифр М8.3/2008Шифр М8.3/2008Шифр М8.3/2008Шифр М8.3/2008Шифр М8.3/2008Шифр М8.3/2008Шифр М8.3/2008Шифр М8.3/2008Шифр М8.3/2008Шифр М8.3/2008Шифр М8.3/2008Шифр М8.3/2008Шифр М8.3/2008Шифр М8.3/2008Шифр М8.3/2008Шифр М8.3/2008Шифр М8.3/2008Шифр М8.3/2008Шифр М8.3/2008Шифр М8.3/2008Шифр М8.3/2008Шифр М8.3/2008Шифр М8.3/2008Шифр М8.3/2008Шифр М8.3/2008Шифр М8.3/2008Шифр М8.3/2008Шифр М8.3/2008Шифр М8.3/2008Шифр М8.3/2008Шифр М8.3/2008Шифр М8.3/2008Шифр М8.3/2008Шифр М8.3/2008Шифр М8.3/2008Шифр М8.3/2008Шифр М8.3/2008Шифр М8.3/2008Шифр М8.3/2008Шифр М8.3/2008Шифр М8.3/2008Шифр М8.3/2008Шифр М8.3/2008Шифр М8.3/2008Шифр М8.3/2008Шифр М8.3/2008Шифр М8.3/2008Шифр М8.3/2008Шифр М8.3/2008Шифр М8.3/2008Шифр М8.3/2008Шифр М8.3/2008Шифр М8.3/2008Шифр М8.3/2008Шифр М8.3/2008Шифр М8.3/2008

© 2013 Ёшкин Кот :-) Карта сайта