| ||||||||||||||||||||||||||
Скачать Шифр М25.41/2000 Выпуск 1. Материалы для проектирования и рабочие чертежи узловДата актуализации: 10.08.2017
|
| Обозначение: | Шифр М25.41/2000 |
| Обозначение англ: | М25.41/2000 |
| Статус: | не действует |
| Название рус.: | Выпуск 1. Материалы для проектирования и рабочие чертежи узлов |
| Дата добавления в базу: | 01.09.2013 |
| Дата актуализации: | 05.05.2017 |
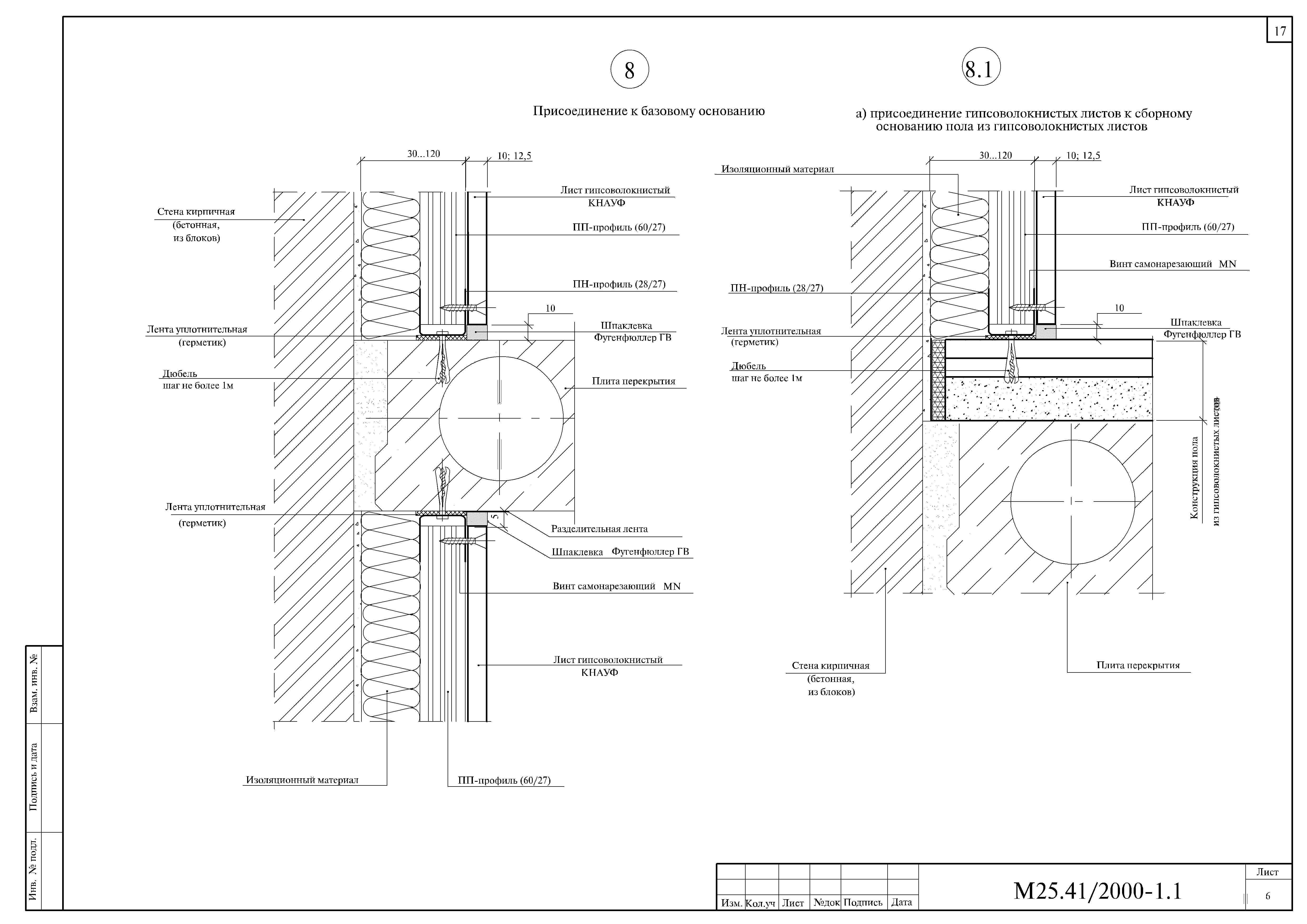
| Оглавление: | М25.41/2000 Содержание М25.41/2000-ПЗ Пояснительная записка М25.41/2000-ПЗ 1. Область применения М25.41/2000-ПЗ 2. Применяемые материалы и изделия М25.41/2000-ПЗ 3. Облицовка стен М25.41/2000-ПЗ 4. Облицовка мансардных помещений М25.41/2000-ПЗ 5. Коммуникационные шахты М25.41/2000-ПЗ 6. Отделка поверхностей конструкций из гипсоволокнистых листов М25.41/2000-ПЗ 7. Основные правила технической М25.41/2000-ПЗ 8. Приемка смонтированных конструкций с применением гипсоволокнистых листов Раздел I. Конструкции облицовок стен (С 66) М25.41/2000-1.1. С 663 Облицовка по металлическому каркасу из ПП- и ПН-профилей М25.41/2000-1.2. С 665, С 666 Облицовка по металлическому каркасу из ПС- и ПН-профилей М25.41/2000-1.3. Сопряжение облицовок с коммуникационными трассами Раздел II Конструкции облицовок мансардных помещений (М 68) М25.41/2000-2.0. Внутренняя отделка мансард М25.41/2000-2.1. М 681 Облицовка мансарды по деревянному каркасу М25.41/2000-2.2. М 682 Облицовка мансарды по металлическому каркасу Раздел III Коммуникационные шахты М25.41/2000-3.1. Коммуникационные шахты М25.41/2000-П1 Приложение 1 |
| Разработан: | АО ЦНИИпромзданий |
| Утверждён: | 01.01.2001 ОАО ЦНИИпромзданий (TsNIIpromzdaniy OAO ) |
| Расположен в: | |
| Чем заменён: |



































































