| ||||||||||||||||||||||||||
Скачать Серия 3.015-3/92 Выпуск III. Стальные конструкции. Чертежи КМДата актуализации: 10.08.2017
|
| Обозначение: | Серия 3.015-3/92 |
| Обозначение англ: | Series 3.015-3/92 |
| Статус: | действует |
| Название рус.: | Выпуск III. Стальные конструкции. Чертежи КМ |
| Дата добавления в базу: | 01.09.2013 |
| Дата актуализации: | 05.05.2017 |
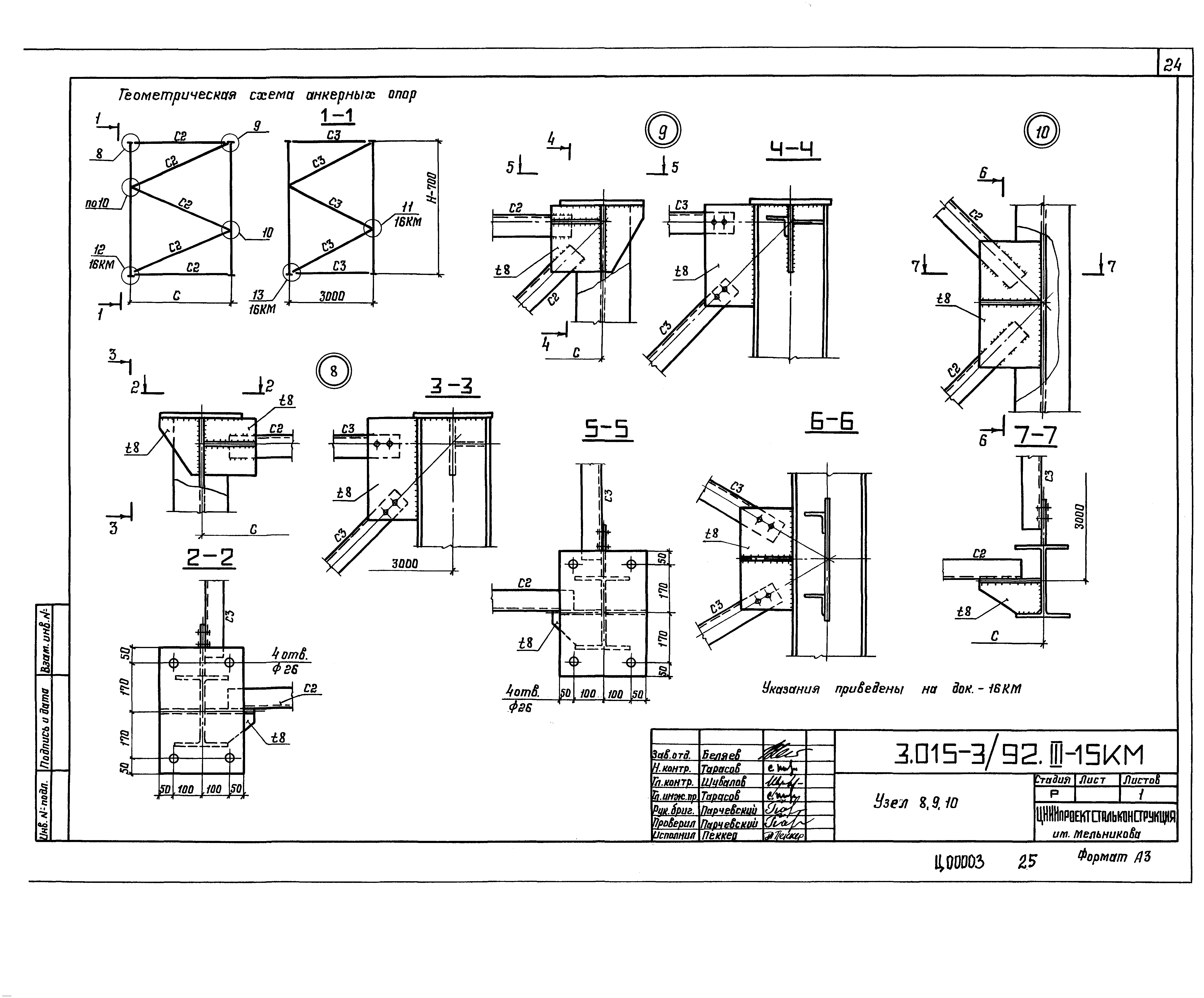
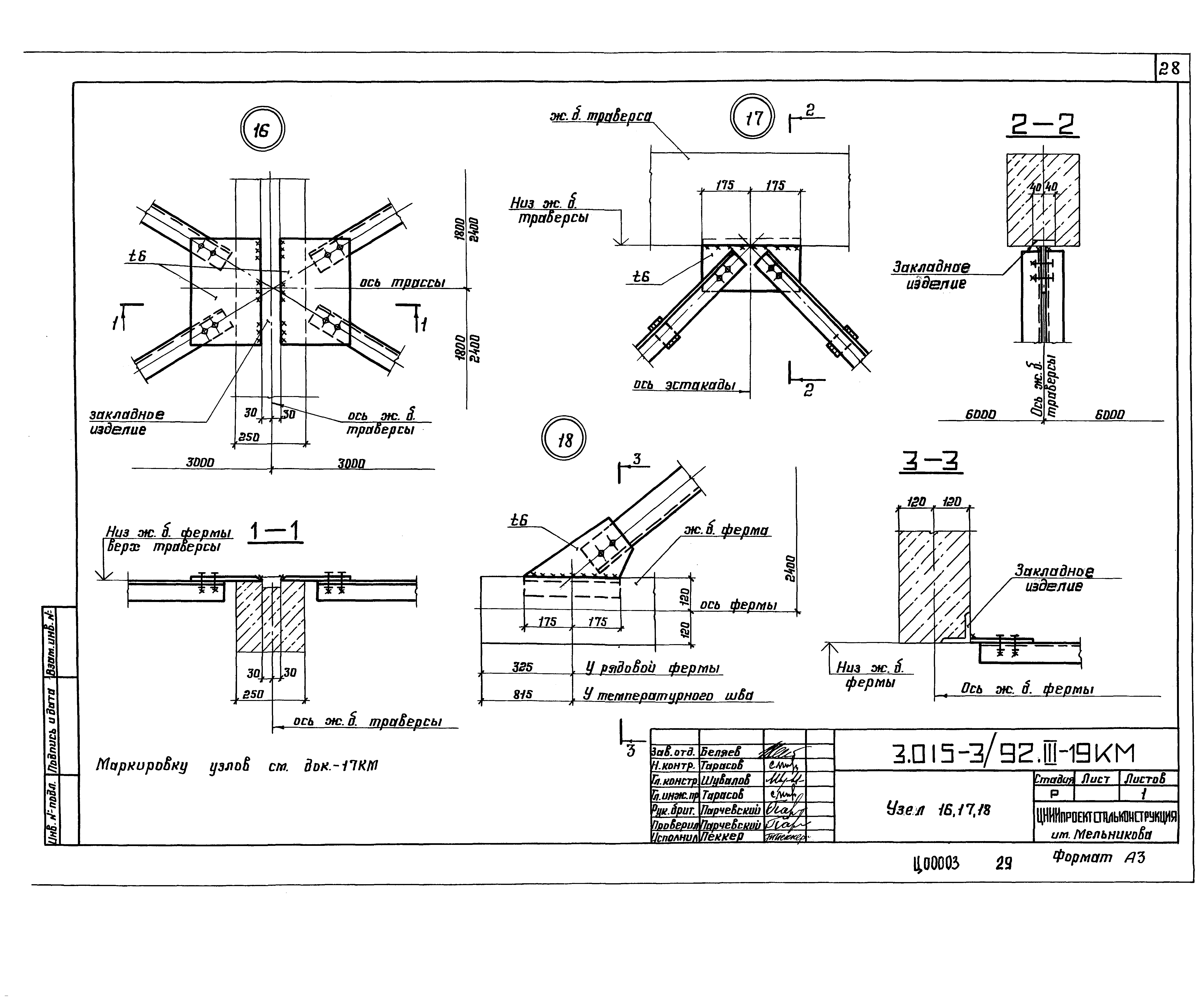
| Оглавление: | 3.015-3/92.III-ПЗ Пояснительная записка 3.015-3/92.III-1КМ Схемы эстакады типа Iм. Пример 3.015-3/92.III-2КМ Схемы эстакад типа Хм…ХIIIм. Пример 3.015-3/92.III-3КМ Опоры - анкерная и промежуточная. Схемы 3.015-3/92.III-4КМ Таблица выбора марок конструктивных элементов эстакад типов Iхм…ХIIIм;Iхк…ХIIIк 3.015-3/92.III-5КМ Фермы Ф10;Ф15;Ф30;Ф50. Ведомость элементов 3.015-3/92.III-6КМ Схемы консолей ферм - К1…К3 и вставок - ВС1…ВС3. Ведомость элементов 3.015-3/92.III-7КМ Надколонники - НК1…НК18. Схема. Ведомость элементов 3.015-3/92.III-8КМ Траверса верхнего и нижнего ярусов. Ведомость элементов 3.015-3/92.III-9КМ Траверсы Т1-…Т12. Таблица геометрических сечений 3.015-3/92.III-10КМ Опоры промежуточные. Ведомость элементов 3.015-3/92.III-11КМ Опоры анкерные. Ведомость элементов 3.015-3/92.III-12КМ Узел 1 3.015-3/92.III-13КМ Узел 2 3.015-3/92.III-14КМ Узел 3…7 3.015-3/92.III-15КМ Узел 8,9,10 3.015-3/92.III-16КМ Узел 11,12,13 3.015-3/92.III-17КМ Схемы связей - 1…9 по верхним и нижним поясом ферм. Ведомость элементов 3.015-3/92.III-18КМ Узел 14,15 3.015-3/92.III-19КМ Узел 16,17,18 3.015-3/92.III-20КМ Схема переходной площадки, стремянок и ограждений. Узел 19,20 3.015-3/92.III-21КМ Опоры промежуточные. 2 ветровой район. Таблица нагрузок на фундаменты 3.015-3/92.III-22КМ Опоры промежуточные. 4 ветровой район. Таблица нагрузок на фундаменты 3.015-3/92.III-23КМ Опоры анкерные 2 ветровой район. Таблица нагрузок на фундаменты 3.015-3/92.III-24КМ Опоры анкерные 4 ветровой район. Таблица нагрузок на фундаменты 3.015-3/92.III-25КМ Спецификация стали опор промежуточных 3.015-3/92.III-26КМ Спецификация стали опор анкерных 3.015-3/92.III-27КМ Спецификация стали надколонников - НК1…НК18 3.015-3/92.III-28КМ Спецификация стали ферм, консолей ферм - К1,К2,К3, связей-схем-1…9, вставок - ВС1,ВС2,ВС3 3.015-3/92.III-29КМ Спецификация стали траверс 3.015-3/92.III-30КМ Связевый блок эстакад типов Iхк,Хк,Хiк,ХIIк,ХIIIк |
| Разработан: | ЦНИИпромзданий ЦНИИПСК им. Мельникова |
| Утверждён: | 06.10.1992 Минстрой России (Russian Federation Minstroy 9-1/308) |
| Расположен в: | |
| Заменяет собой: |











































