| ||||||||||||||||||||||||||||||||||
Скачать Серия 1.431.6-28 Выпуск 0. Материалы для проектированияДата актуализации: 10.08.2017
|
| Обозначение: | Серия 1.431.6-28 |
| Обозначение англ: | Series 1.431.6-28 |
| Статус: | не определен законодательством |
| Название рус.: | Выпуск 0. Материалы для проектирования |
| Дата добавления в базу: | 01.09.2013 |
| Дата актуализации: | 05.05.2017 |
| Дата введения: | 01.07.1988 |
| Область применения: | Перегородки, разработанные в настоящей серии, предназначены для применения в районах с обычными геологическими условиями и сейсмичностью не выше 6 баллов и в I - IV географических районах по скоростному напору ветра |
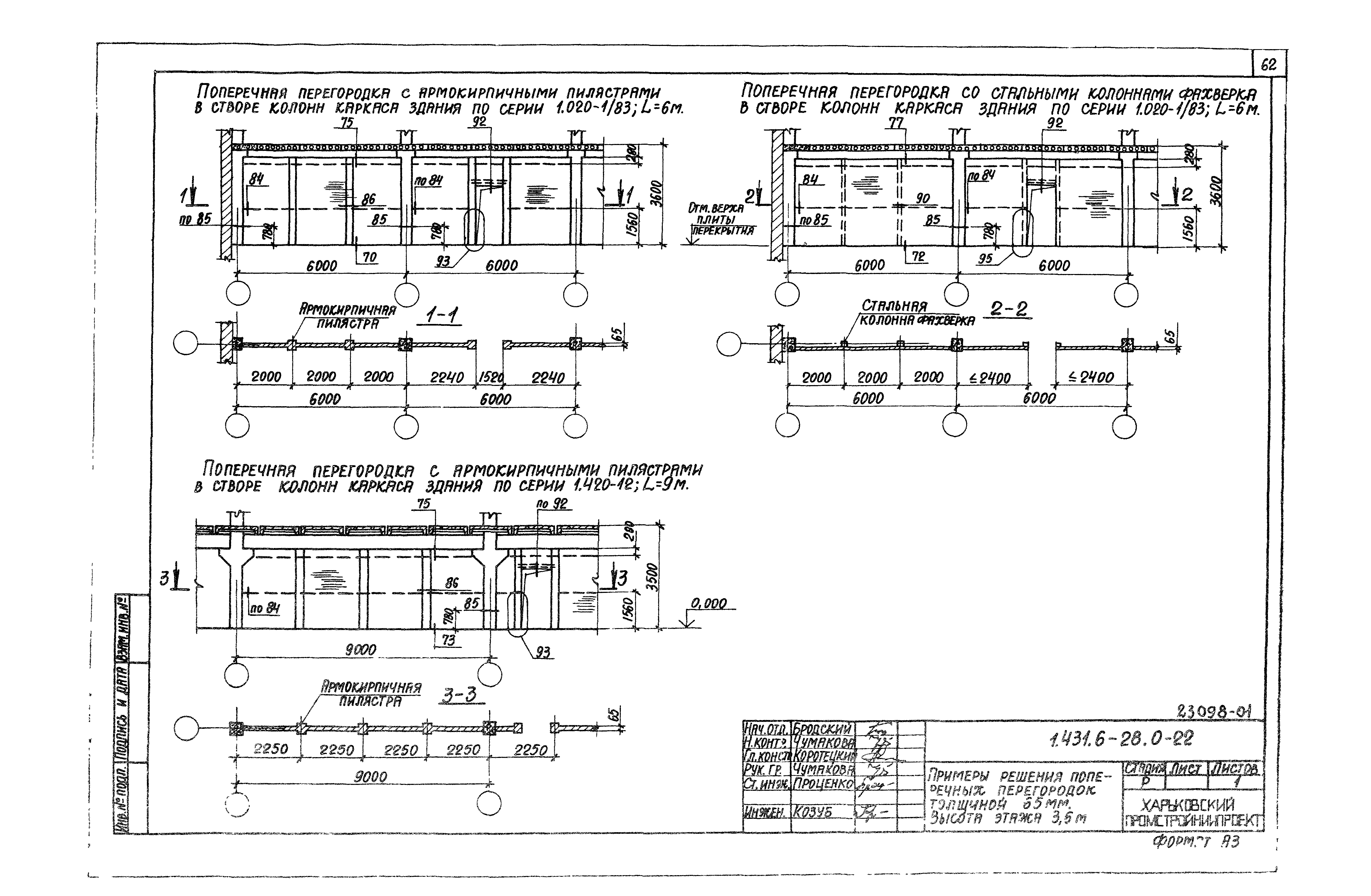
| Оглавление: | 1.431.9-28.0-00 ПЗ Пояснительная записка 1.431.9-28.0-01 Указания по устройству отверстий в кирпичных перегородках толщиной 65 мм; 120 мм; 250 мм 1.431.9-28.0-02 Конструктивные решения поперечный перегородок в одноэтажных зданиях 1.431.9-28.0-03 Конструктивные решения продольных перегородок в одноэтажных зданиях 1.431.9-28.0-04 Конструктивные решения перегородок в многоэтажных зданиях 1.431.9-28.0-05 Таблица сечений кирпичных пилястр в одноэтажных зданиях 1.431.9-28.0-06 Таблица сечений армокирпичных пилястр в многоэтажных зданиях 1.431.9-28.0-07 Ключ для подбора стальных колонн фахверка и стальных элементов "Т" продольных перегородок одноэтажных зданий 1.431.9-28.0-08 Ключ для подбора стальных колонн фахверка перегородок многоэтажных зданий 1.431.9-28.0-09 Номенклатура стальных колонн фахверка перегородок многоэтажных зданий 1.431.9-28.0-10 Расчетные схемы стальных колонн фахверка перегородок многоэтажных зданий 1.431.9-28.0-11 Примеры решения поперечных перегородок толщиной 120 и 250 мм с кирпичными пилястрами в одноэтажном здании без мостовых кранов 1.431.9-28.0-12 Примеры решения поперечных перегородок толщиной 120 мм в одноэтажном здании без мостовых кранов 1.431.9-28.0-13 Примеры решения поперечных перегородок толщиной 120 мм в одноэтажном здании с мостовыми кранами среднего и тяжелого режима работы 1.431.9-28.0-14 Примеры решения поперечных перегородок толщиной 120 и 250 мм в одноэтажном здании с железобетонными стропильными балками и без мостовых кранов 1.431.9-28.0-15 Примеры решения продольных перегородок толщиной 120 мм в одноэтажном здании без мостовых кранов 1.431.9-28.0-16 Примеры решения продольных перегородок толщиной 120 мм в одноэтажном здании с мостовыми кранами легкого режима работы 1.431.9-28.0-17 Примеры решения поперечных перегородок толщиной 120 мм в одноэтажном здании со стальным каркасом и мостовыми кранами легкого режима работы 1.431.9-28.0-18 Примеры решения поперечных и продольных перегородок толщиной 250 мм в одноэтажном здании без мостовых кранов 1.431.9-28.0-19 Примеры решения продольных перегородок толщиной 250 мм в одноэтажном здании без мостовых кранов 1.431.9-28.0-20 Примеры решения продольных перегородок толщиной 250 мм в одноэтажном здании с мостовыми и кранами легкого режима работы 1.431.9-28.0-21 Примеры решения продольных перегородок толщиной 250 мм в одноэтажном здании со стальным каркасом 1.431.9-28.0-22 Примеры решения поперечных перегородок толщиной 65 мм. Высота этажа 3,6 м 1.431.9-28.0-23 Примеры решения перегородок толщиной 65 мм. Высота этажа 6,0 м 1.431.9-28.0-24 Примеры решения поперечных перегородок толщиной 120 мм. Высота этажа 3,6 м 1.431.9-28.0-25 Примеры решения поперечных перегородок толщиной 120 мм. Высота этажа 6,0 м 1.431.9-28.0-26 Примеры решения поперечных перегородок не в створе колонн толщиной 65 мм. Высота этажа 4,8 м 1.431.9-28.0-27 Примеры решения продольных перегородок не в створе колонн толщиной 120 мм. Высота этажа 4,8 м |
| Разработан: | ЦНИИпромзданий Харьковский Промстройниипроект |
| Утверждён: | 11.03.1988 Харьковский Промстройниипроект Госстроя СССР (Kharkov Promstroyniiproject, USSR Gosstroy 41) |
| Принят: | 04.03.1988 Госстрой СССР (Государственный комитет Совета Министров СССР по делам строительства) (USSR Gosstroy 6/6-403) ЦНИИСК им.Кучеренко (Kucherenko TsNIISK ) |
| Издан: | ЦИТП Госстроя СССР (CITP, Gosstroy (USSR) 1988 г. ) |
| Расположен в: | |
| Нормативные ссылки: |
|







































































