| ||||||||||||||||||||||||||||||||
Скачать Серия 2.210-1 Выпуск 11. Деформационные и температурные швы цоколя и стен подвала каркасно-панельных зданий в конструкциях серии 1.020-1/83. Рабочие чертежиДата актуализации: 10.08.2017
|
| Обозначение: | Серия 2.210-1 |
| Обозначение англ: | Series 2.210-1 |
| Статус: | действует |
| Название рус.: | Выпуск 11. Деформационные и температурные швы цоколя и стен подвала каркасно-панельных зданий в конструкциях серии 1.020-1/83. Рабочие чертежи |
| Дата добавления в базу: | 01.09.2013 |
| Дата актуализации: | 05.05.2017 |
| Область применения: | В настоящий выпуск включены типовые детали температурных и деформационных швов цоколя и стен подвалов каркасно-панельных общественных зданий I - V степени огнестойкости |
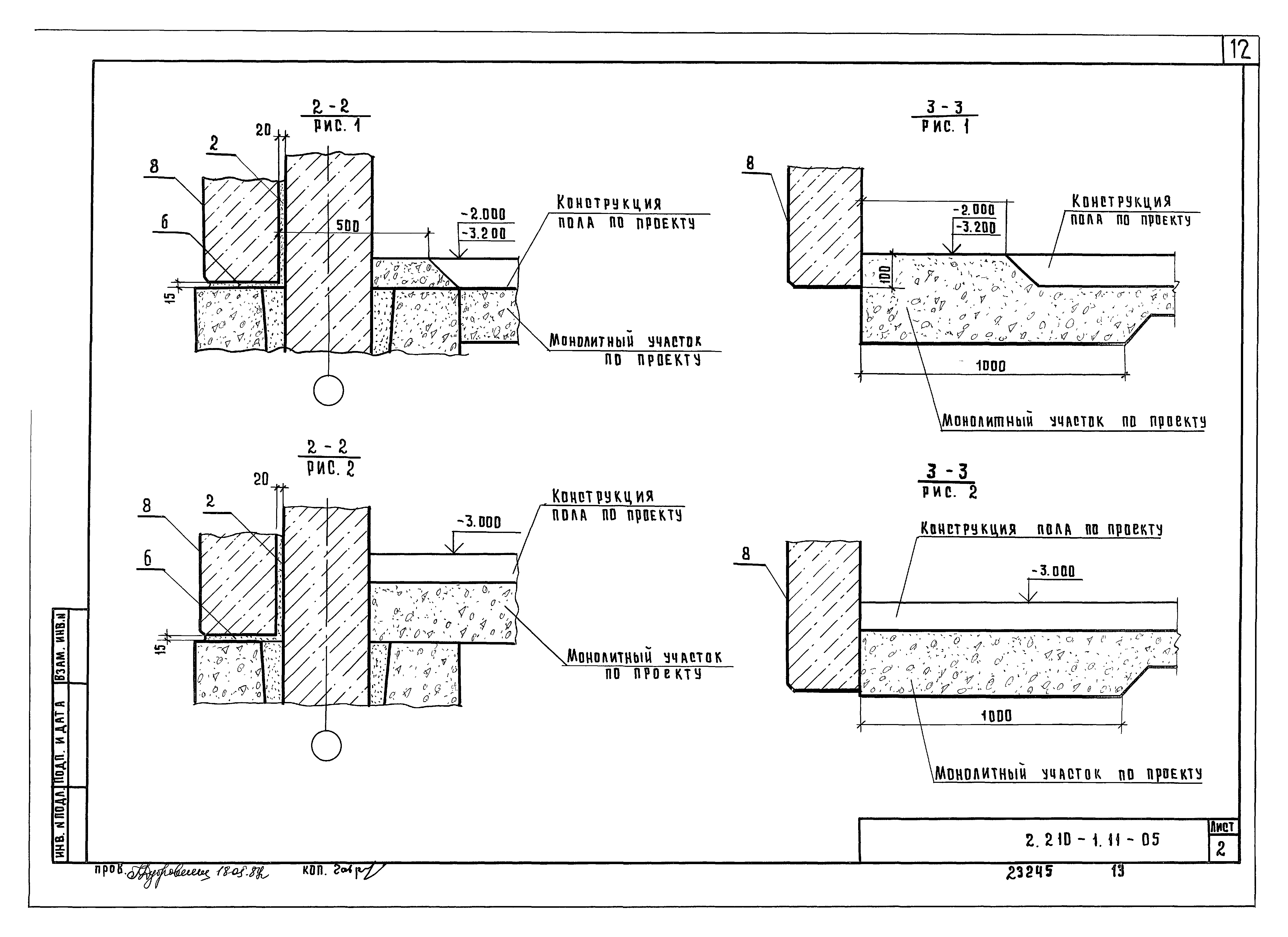
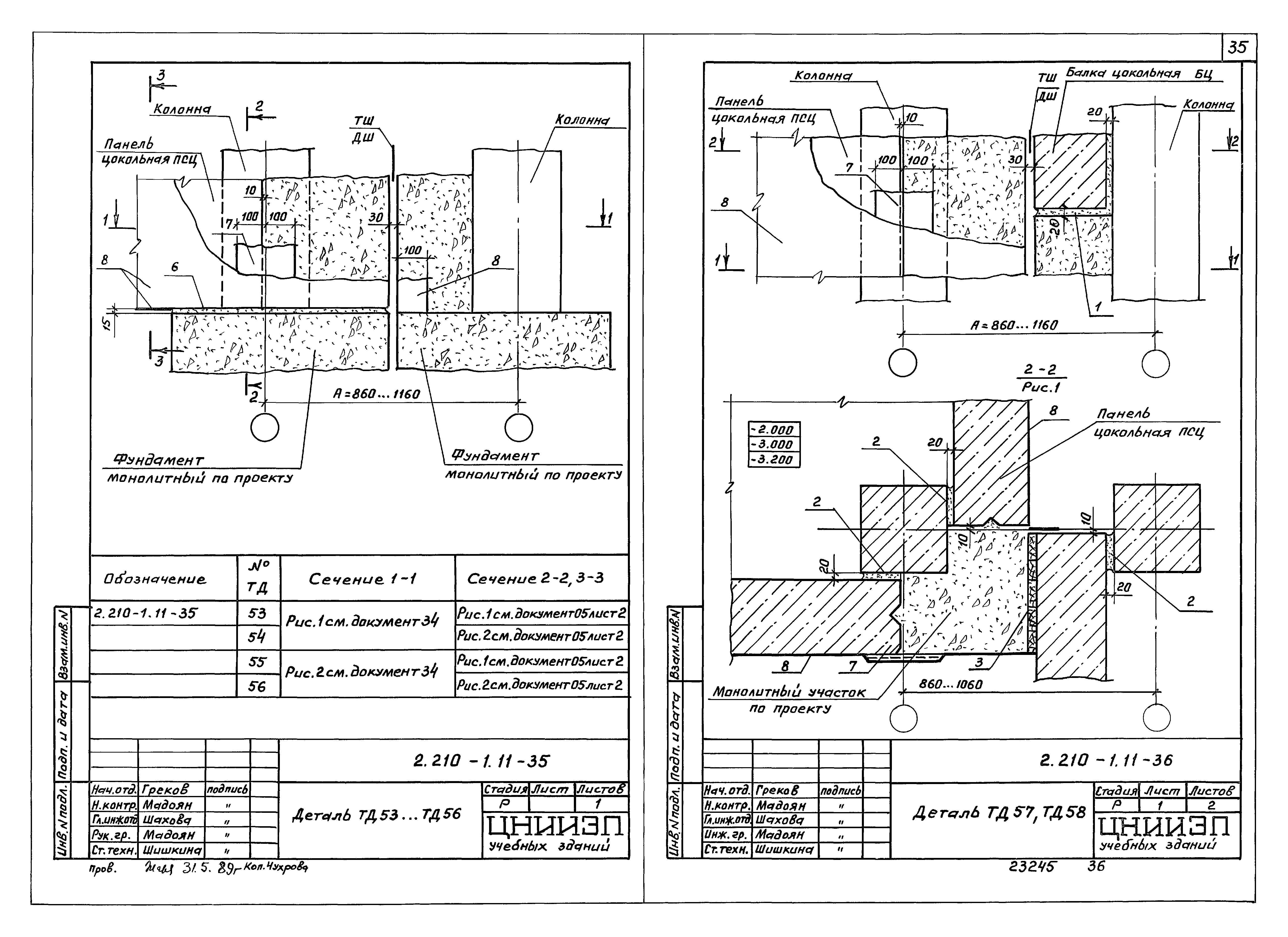
| Оглавление: | 2.210-1.11-00 Техническое описание 2.210-1.11-00 Д Маркировки типовых деталей на фрагментах подземной части зданий 2.210-1.11-01 Деталь ТД1 2.210-1.11-02 Деталь ТД2 2.210-1.11-03 Деталь ТД3 2.210-1.11-04 Деталь ТД4, ТД5 2.210-1.11-05 Деталь ТД6, ТД7 2.210-1.11-06 Деталь ТД8, ТД9 2.210-1.11-07 Деталь ТД10 2.210-1.11-08 Деталь ТД11… ТД14 2.210-1.11-09 Деталь ТД15… ТД18 2.210-1.11-10 Деталь ТД19 2.210-1.11-11 Деталь ТД20 2.210-1.11-12 Деталь ТД21 2.210-1.11-13 Деталь ТД22 2.210-1.11-14 Деталь ТД23 2.210-1.11-15 Деталь ТД24, ТД25 2.210-1.11-16 Деталь ТД26, ТД27 2.210-1.11-17 Деталь ТД28, ТД29 2.210-1.11-18 Деталь ТД30, ТД31 2.210-1.11-19 Деталь ТД32 2.210-1.11-20 Деталь ТД33 2.210-1.11-21 Деталь ТД34 2.210-1.11-22 Деталь ТД35 2.210-1.11-23 Деталь ТД36 2.210-1.11-24 Деталь ТД37, ТД38 2.210-1.11-25 Деталь ТД39, ТД40 2.210-1.11-26 Деталь ТД41 2.210-1.11-27 Деталь ТД42 2.210-1.11-28 Деталь ТД43 2.210-1.11-29 Деталь ТД44 2.210-1.11-30 Деталь ТД45 2.210-1.11-31 Деталь ТД46 2.210-1.11-32 Деталь ТД47 2.210-1.11-33 Деталь ТД48 2.210-1.11-34 Деталь ТД49… ТД52 2.210-1.11-35 Деталь ТД53… ТД56 2.210-1.11-36 Деталь ТД57, ТД58 2.210-1.11-37 Деталь ТД59 2.210-1.11-38 Деталь ТД60 2.210-1.11-39 Деталь ТД61, ТД62 2.210-1.11-40 Деталь ТД63 2.210-1.11-41 Деталь ТД64 2.210-1.11-42 Спецификация на деталь ТД1… ТД9 2.210-1.11-43 Спецификация на деталь ТД10… ТД18 2.210-1.11-44 Спецификация на деталь ТД19… ТД27 2.210-1.11-45 Спецификация на деталь ТД28… ТД36 2.210-1.11-46 Спецификация на деталь ТД37… ТД41 2.210-1.11-47 Спецификация на деталь ТД42… ТД50 2.210-1.11-48 Спецификация на деталь ТД51… ТД58 2.210-1.11-49 Спецификация на деталь ТД59… ТД64 |
| Разработан: | ЦНИИЭП учебных зданий Госгражданстроя |
| Утверждён: | 17.06.1988 Госкомархитектура (175) |
| Издан: | ЦИТП Госстроя СССР (CITP, Gosstroy (USSR) 1988 г. ) |
| Расположен в: | |
| Заменяет собой: | |
| Нормативные ссылки: |
|

















































