Информационная система
«Ёшкин Кот»

Скачать базу одним архивом
Скачать обновления
История создания базы
Карта сайта

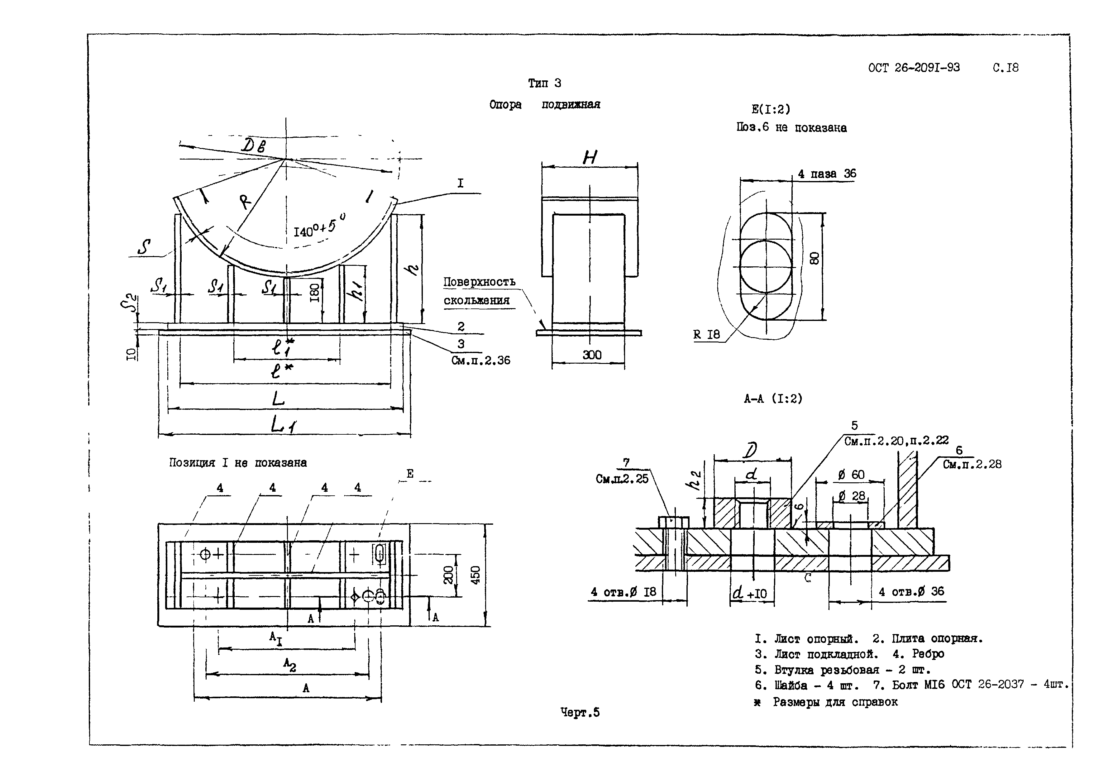
Скачать ОСТ 26-2091-93 Опоры горизонтальных сосудов и аппаратов. Конструкция

Дата актуализации: 10.08.2017

ОСТ 26-2091-93

Опоры горизонтальных сосудов и аппаратов. Конструкция

Обозначение: ОСТ 26-2091-93
Обозначение англ: OST 26-2091-93
Статус:не определен законодательством
Название рус.:Опоры горизонтальных сосудов и аппаратов. Конструкция
Дата добавления в базу:01.09.2013
Дата актуализации:05.05.2017
Дата введения:30.06.2003
Область применения:Стандарт распространяется на опоры горизонтальных стальных сварных сосудов и аппаратов, применяющихся в химической, нефтехимической, нефтеперерабатывающей, нефтяной и газовой промышленности.
Оглавление:1 Конструкцияф и размеры
2 Технические требования
Разработан: ЦКБН (Центральное конструкторское бюро нефтеаппаратуры)
Утверждён:29.07.1993 Главхимнефтемаш Роскоммаша
Принят:28.07.1993 АО НИИХИММАШ
Расположен в:Техническая документация Экология ХИМИЧЕСКАЯ ПРОМЫШЛЕННОСТЬ Оборудование для химической промышленности Оборудование для химической промышленности прочее Строительство Стандарты Отраслевые стандарты и технические условия Отраслевые стандарты
Заменяет собой:
  • ОСТ 26-2091-81
  • ОСТ 26-1265-75 «Опоры седловые горизонтальных сосудов и аппаратов. Конструкция, размеры и технические требования»
  • ОСТ 26-1267-75 «Лист опорный. Конструкция и размеры»
Нормативные ссылки:
ОСТ 26-2091-93ОСТ 26-2091-93ОСТ 26-2091-93ОСТ 26-2091-93ОСТ 26-2091-93ОСТ 26-2091-93ОСТ 26-2091-93ОСТ 26-2091-93ОСТ 26-2091-93ОСТ 26-2091-93ОСТ 26-2091-93ОСТ 26-2091-93ОСТ 26-2091-93ОСТ 26-2091-93ОСТ 26-2091-93ОСТ 26-2091-93ОСТ 26-2091-93ОСТ 26-2091-93ОСТ 26-2091-93ОСТ 26-2091-93ОСТ 26-2091-93ОСТ 26-2091-93ОСТ 26-2091-93ОСТ 26-2091-93ОСТ 26-2091-93ОСТ 26-2091-93ОСТ 26-2091-93ОСТ 26-2091-93ОСТ 26-2091-93ОСТ 26-2091-93ОСТ 26-2091-93ОСТ 26-2091-93ОСТ 26-2091-93ОСТ 26-2091-93ОСТ 26-2091-93ОСТ 26-2091-93ОСТ 26-2091-93ОСТ 26-2091-93

© 2013 Ёшкин Кот :-) Карта сайта