Информационная система
«Ёшкин Кот»

Скачать базу одним архивом
Скачать обновления
История создания базы
Карта сайта

Скачать РМ 4-106-91 Системы автоматизации технологических процессов. Схемы электрические принципиальные. Требования к выполнению. Пособие к РТМ 36.22.7-89

Дата актуализации: 10.08.2017

РМ 4-106-91

Системы автоматизации технологических процессов. Схемы электрические принципиальные. Требования к выполнению. Пособие к РТМ 36.22.7-89

Обозначение: РМ 4-106-91
Обозначение англ: RM 4-106-91
Статус:действует
Название рус.:Системы автоматизации технологических процессов. Схемы электрические принципиальные. Требования к выполнению. Пособие к РТМ 36.22.7-89
Дата добавления в базу:01.09.2013
Дата актуализации:05.05.2017
Область применения:Пособие содержит положения, разясняющие и дополняющие требования 7-й группы стандартов ЕСКД по правилам выполенния принципиальных электрических схем электропитания, управления, сигнализации, измерения и регулирования, разрабатываемых в рабочей документации систем автоматизации объектов, предусмотренных РТМ 36.22.7-89.
Оглавление:1 Основные положения
2 Указания по выполнению и оформлению
Приложение 1 Перечень наиболее часто используемых стандартов при выполнении принципиальных электрических схем
Приложение 2 Условные графические обозначения, наиболее часто применяемые в принципиальных электрических схемах
Приложение 3 Буквенные коды видов элементов по ГОСТ 2.710-81
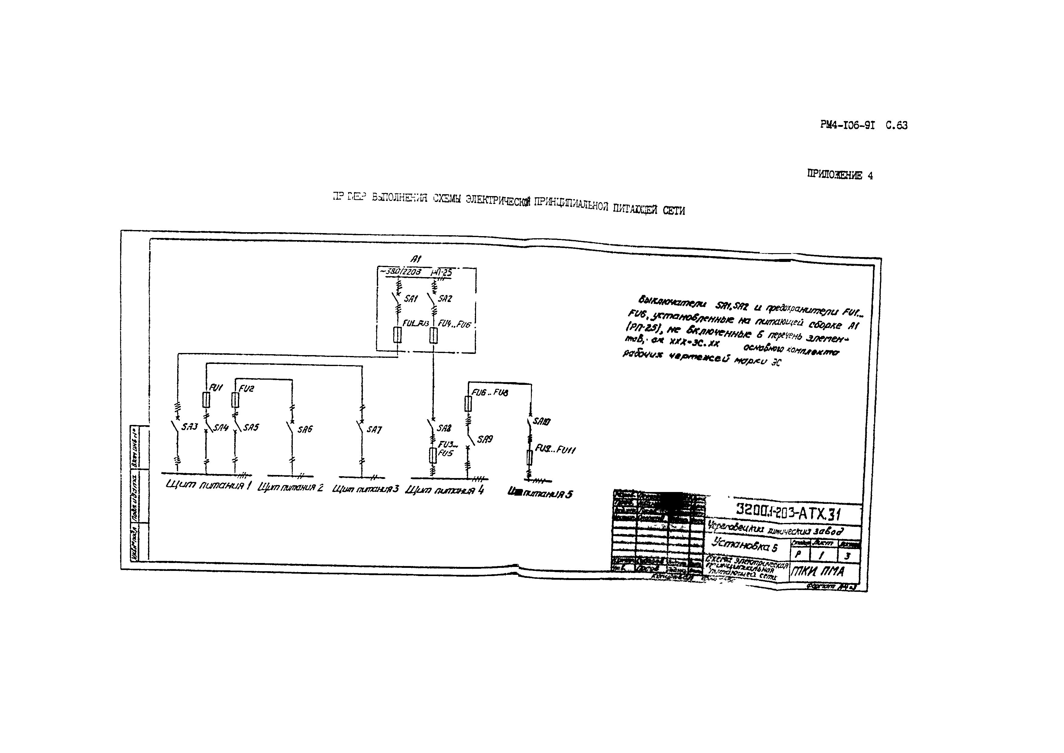
Приложение 4 Пример выполнения схемы электрической принципиальной питающей сети
Приложение 5 Пример выполнения схемы электрической принципиальной распределительной сети
Приложение 6 Пример выполнения схемы электрической принципиальной управления
Приложение 7 Пример выполнения схемы электрической принципиальной сигнализации
Приложение 8 Пример выполнения схемы электрической принципиальной измерения давления воздуха
Приложение 9 Пример выполнения схемы электрической принципиальной регулирования
Приложение 10 Матрица для выполнения схемы электрической принципиальной распределительной сети
Приложение 11 Форма перечня элементов, выполняемого последующим листом схемы
Приложение 12 Форма перечня элементов, выполняемого последующим листом схемы, разбитой на зоны
Ссылочные нормативно-технические документы
Разработан: ГПКИ Проектмонтажавтоматика
Утверждён:01.01.1991 ГПКИ Проектмонтажавтоматика (Projectmontazhavtomatika GPKI )
Издан: ГПКИ Проектмонтажавтоматика (1991 г. )
Расположен в:Техническая документация Экология МАШИНОСТРОЕНИЕ Промышленные автоматизированные системы Промышленные автоматизированные системы в целом Строительство Нормативные документы Отраслевые и ведомственные нормативно-методические документы Производство монтажных и специальных строительных работ
Заменяет собой:
  • РМ 4-106-82
Нормативные ссылки:
РМ 4-106-91РМ 4-106-91РМ 4-106-91РМ 4-106-91РМ 4-106-91РМ 4-106-91РМ 4-106-91РМ 4-106-91РМ 4-106-91РМ 4-106-91РМ 4-106-91РМ 4-106-91РМ 4-106-91РМ 4-106-91РМ 4-106-91РМ 4-106-91РМ 4-106-91РМ 4-106-91РМ 4-106-91РМ 4-106-91РМ 4-106-91РМ 4-106-91РМ 4-106-91РМ 4-106-91РМ 4-106-91РМ 4-106-91РМ 4-106-91РМ 4-106-91РМ 4-106-91РМ 4-106-91РМ 4-106-91РМ 4-106-91РМ 4-106-91РМ 4-106-91РМ 4-106-91РМ 4-106-91РМ 4-106-91РМ 4-106-91РМ 4-106-91РМ 4-106-91РМ 4-106-91РМ 4-106-91РМ 4-106-91РМ 4-106-91РМ 4-106-91РМ 4-106-91РМ 4-106-91РМ 4-106-91РМ 4-106-91РМ 4-106-91РМ 4-106-91РМ 4-106-91РМ 4-106-91РМ 4-106-91РМ 4-106-91РМ 4-106-91РМ 4-106-91РМ 4-106-91РМ 4-106-91РМ 4-106-91РМ 4-106-91РМ 4-106-91РМ 4-106-91РМ 4-106-91РМ 4-106-91РМ 4-106-91РМ 4-106-91РМ 4-106-91РМ 4-106-91РМ 4-106-91РМ 4-106-91РМ 4-106-91РМ 4-106-91РМ 4-106-91РМ 4-106-91РМ 4-106-91РМ 4-106-91РМ 4-106-91РМ 4-106-91РМ 4-106-91РМ 4-106-91РМ 4-106-91РМ 4-106-91РМ 4-106-91РМ 4-106-91РМ 4-106-91РМ 4-106-91

© 2013 Ёшкин Кот :-) Карта сайта