| ||||||||||||||||||||||||||||||||||||
Скачать СП 35-103-2001 Общественные здания и сооружения, доступные маломобильным посетителямДата актуализации: 10.08.2017
|
| Обозначение: | СП 35-103-2001 |
| Обозначение англ: | SP 35-103-2001 |
| Статус: | действует |
| Название рус.: | Общественные здания и сооружения, доступные маломобильным посетителям |
| Название англ.: | Public buildings and structures accessible for physically handicapped visitors |
| Дата добавления в базу: | 01.09.2013 |
| Дата актуализации: | 05.05.2017 |
| Дата введения: | 16.07.2001 |
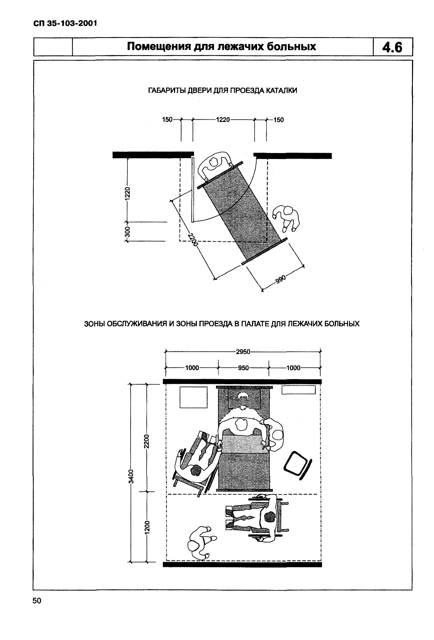
| Область применения: | Требования документа распространяются на все элементы общественных зданий и сооружений или их части, а также участки учреждений, доступные для посетителей. |
| Оглавление: | Введение 1 Общие положения Нормативные ссылки 2 Здания учреждений образования Учебные помещения Прочие помещения 3 Здания учреждений управления Здания и помещения органов социальной защиты населения Здания и помещения судебно-правовых учреждений Здания и помещения коммунальных служб 4 Здания лечебно-профилактических учреждений Учреждения 5 Здания и сооружения физкультурно-оздоровительные и спортивные Участок и функциональное зонирование Учебно-тренировочные физкультурно-спортивные сооружения Открытые плоскостные сооружения Крытые сооружения Демонстрационные спортивные сооружения 6 Здания культурно-просветительских и зрелищных учреждений Библиотеки Музеи и выставки Клубы Театры, театры-студии, цирки Кинотеатры и киноконцертные залы 7 Предприятия торговли, питания и бытового обслуживания Предприятия розничной торговли Предприятия питания Предприятия бытового обслуживания 8 Здания и сооружения вокзалов пассажирского транспорта 9 Здания, сооружения и комплексы культового, мемориального и обрядового назначения Общие положения Участки Культовые здания и сооружения Мемориальные здания и сооружения 10 Здания кредитно-финансовых учреждений и предприятий связи Банковские учреждения Предприятия почтовой связи |
| Разработан: | АПИО-Центр ГУП Институт общественных зданий |
| Утверждён: | 16.07.2001 Госстрой России (Russian Federation Gosstroy 72) 20.06.2001 ГУП Институт общественных зданий (Institute of Public Buildings GUP 5в) |
| Принят: | 16.07.2001 Госстрой России (Russian Federation Gosstroy 72) |
| Издан: | ГУП ЦПП (CPP GUP 2001 г. ) |
| Расположен в: | |
| Нормативные ссылки: |
|
















































































