Информационная система
«Ёшкин Кот»

Скачать базу одним архивом
Скачать обновления
История создания базы
Карта сайта

Скачать Технологическая карта 2 Монтаж одностоечной одноцепной стальной многогранной анкерно-угловой опоры МУ330-3 с помощью одного крана

Дата актуализации: 10.08.2017

Технологическая карта 2

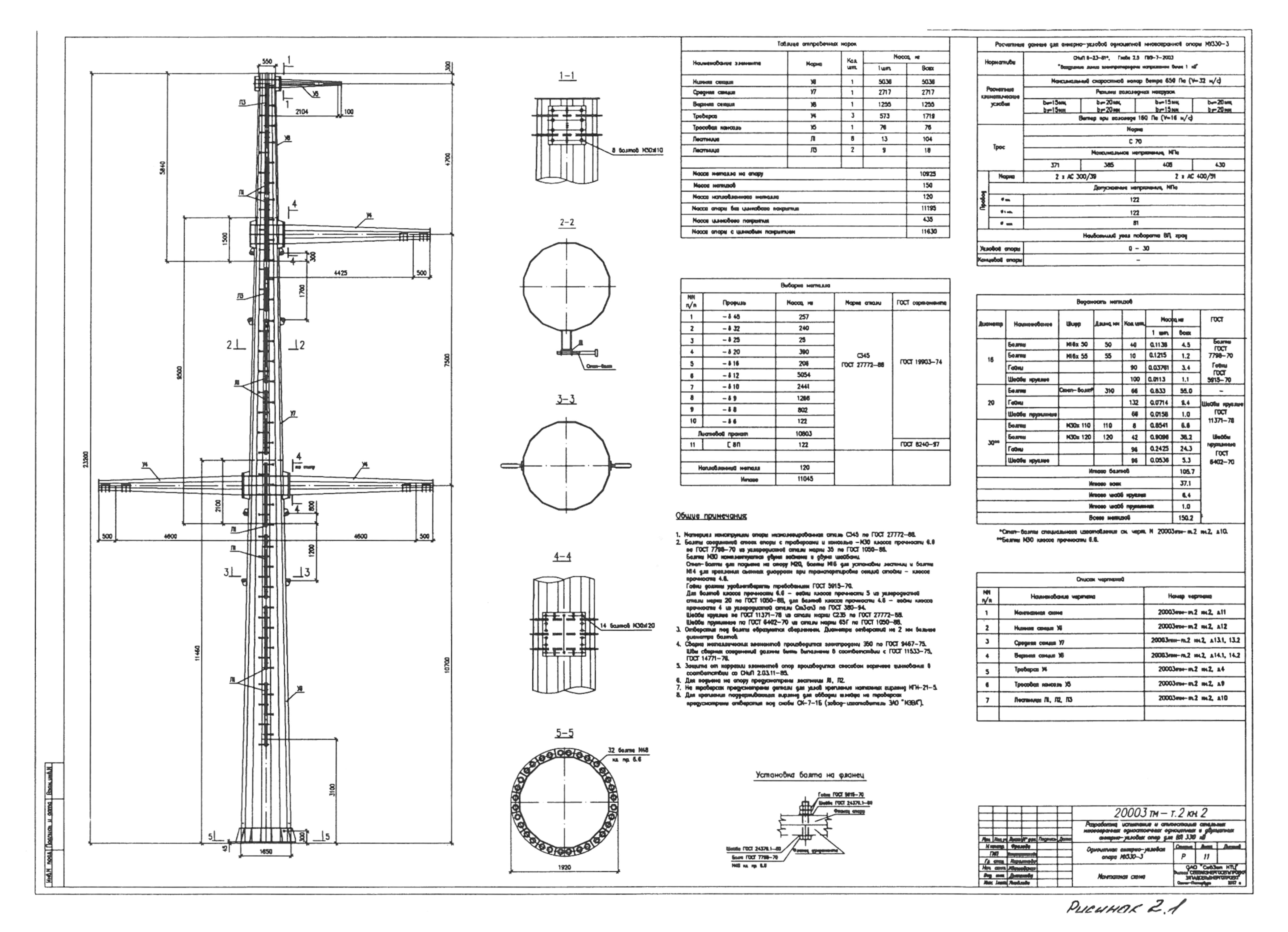
Монтаж одностоечной одноцепной стальной многогранной анкерно-угловой опоры МУ330-3 с помощью одного крана

Обозначение: Технологическая карта 2
Обозначение англ: 2
Статус:не установлен срок действия
Название рус.:Монтаж одностоечной одноцепной стальной многогранной анкерно-угловой опоры МУ330-3 с помощью одного крана
Дата добавления в базу:01.10.2014
Дата актуализации:05.05.2017
Область применения:Одностоечная одноцепная анкерно-угловая опора МУ330-3 разработана для угла поворота ВЛ - 0 - 30 градусов
Оглавление:Аннотация
   Меры безопасности
   Особые условия
1 Пояснительная записка
2 Монтаж одностоечной одноцепной стальной многогранной анкерно-угловой опоры МУ330-3 с помощью одного крана
   2.1 Состав бригады
   2.2 Механизмы
   2.3 Оборудование
   2.4 Защитные средства
   2.5 Приспособления
   2.6 Приборы
   2.7 Инструмент
   2.8 Материалы
   2.9 Эксплуатационные материалы
   2.10 Технология работ
Рисунок 1П. Схема стыковки секций многогранных опор с помощью домкратов гидравлических
Рисунок 2П. Схема установки домкратов гидравлических при стыковке секций
Рисунок 3П. Схема установки опоры МУ330-1 (МУ330-3, МУ330-5) с помощью крана
Рисунок 4П. Схема установки двух секций опоры МУ330-2 (МУ330-4, МУ330-6) с помощью крана
Рисунок 5П. Схема монтажа двух секций опор МУ330-2 (МУ330-4, МУ330-6) методом наращивания
Разработан: Филиал ОАО Инженерный центр ЕЭС - Фирма ОРГРЭС
Филиал Севзапэнергосетьпроект - Западсельэнергопроект ОАО СевЗап НТЦ
Утверждён: Филиал ОАО Инженерный центр ЕЭС - Фирма ОРГРЭС
Расположен в:Техническая документация Строительство Справочные документы Технологические карты Линии электропередачи
Нормативные ссылки:
Технологическая карта 2Технологическая карта 2Технологическая карта 2Технологическая карта 2Технологическая карта 2Технологическая карта 2Технологическая карта 2Технологическая карта 2Технологическая карта 2Технологическая карта 2Технологическая карта 2Технологическая карта 2Технологическая карта 2Технологическая карта 2Технологическая карта 2Технологическая карта 2Технологическая карта 2Технологическая карта 2Технологическая карта 2

© 2013 Ёшкин Кот :-) Карта сайта