| ||||||||||||||||||||||||||||||||||
Скачать СП 35-109-2005 Помещения для досуговой и физкультурно-оздоровительной деятельности пожилых людейДата актуализации: 10.08.2017
|
| Обозначение: | СП 35-109-2005 |
| Обозначение англ: | SP 35-109-2005 |
| Статус: | действует |
| Название рус.: | Помещения для досуговой и физкультурно-оздоровительной деятельности пожилых людей |
| Название англ.: | Dwellings for spare time and physical-training activity of elderly people |
| Дата добавления в базу: | 01.09.2013 |
| Дата актуализации: | 05.05.2017 |
| Дата введения: | 23.04.2004 |
| Область применения: | Свод правил устанавливает положения по проектированию функциональных групп помещений для досуговой и физкульторно-оздоровительной деятельности, предназначенных преимущественно для людей старшего возраста, а также применяется при реконструкции зданий различного назначения или их частей, включающих рассматриваемые группы помещений. |
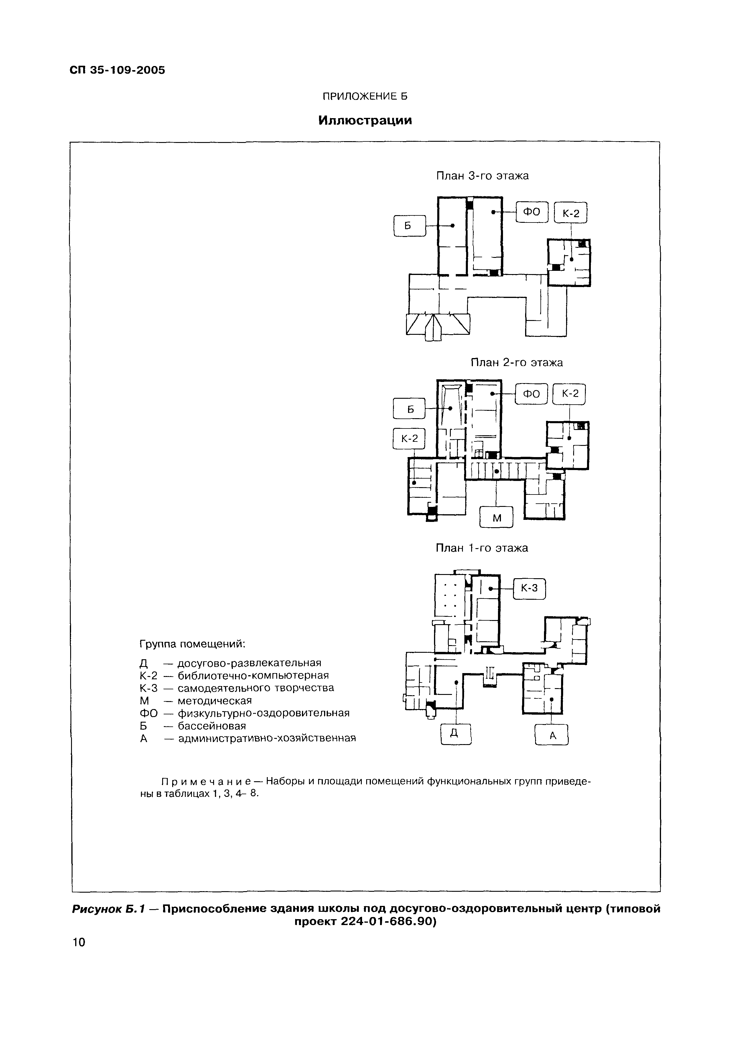
| Оглавление: | Введение 1 Область применения 2 Нормативные ссылки 3 Общие положения 4 Основные и вспомогательные группы помещений 5 Размещение и взаимосвязь помещений Приложение А Требования к акустике помещений Приложение Б Иллюстрации |
| Разработан: | Минкультуры России ФГУП Институт общественных зданий ВНИИФК Росспорта Муниципальная детская галерея Зеленоградского административного округа г. Москвы |
| Утверждён: | 30.04.2004 Госстрой России (Russian Federation Gosstroy ЛБ-322/9) 23.04.2004 ФГУП Институт общественных отношений (10) |
| Издан: | ГУП ЦПП (CPP GUP 2006 г. ) |
| Расположен в: | |
| Нормативные ссылки: |
|


















