Информационная система
«Ёшкин Кот»

Скачать базу одним архивом
Скачать обновления
История создания базы
Карта сайта

Скачать СП 31-112-2004 Физкультурно-спортивные залы. Часть 2

Дата актуализации: 10.08.2017

СП 31-112-2004

Физкультурно-спортивные залы. Часть 2

Обозначение: СП 31-112-2004
Обозначение англ: SP 31-112-2004
Статус:действует
Название рус.:Физкультурно-спортивные залы. Часть 2
Дата добавления в базу:01.09.2013
Дата актуализации:05.05.2017
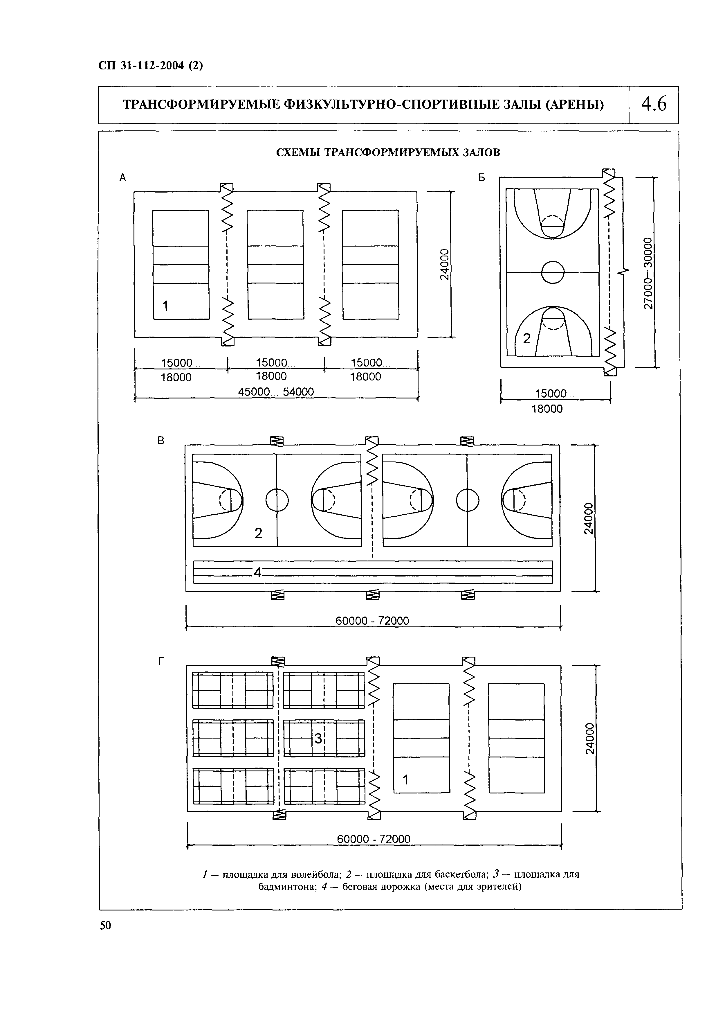
Область применения:Часть 2 включает физкультурно-спортивные залы и манежи размером 42х24 м, а также 36х18 м и более для универсального использования.
Оглавление:Введение
1 Область применения
2 Нормативные ссылки
3 Основные положения по проектированию
4 Игровые залы
5 Залы для легкой атлетики
6 Вспомогательные помещения
7 Помещения и устройства для судей и прессы
8 Конструктивные решения
9 Противопожарная безопасность
10 Внутренняя среда
11 Инженерное оборудование зданий
Приложение А Табель-экспликация оборудования и инвентаря в залах для спортивных игр
Приложение Б Расчет радиуса поворота беговых дорожек и их уклона на виражах
Приложение В Табель основного спортивного оборудования и инвентаря залов для легкой атлетики
Приложение Г Иллюстрации
Разработан: Институт общественных зданий
Санкт-Петербургская государственная академия физической культуры им. П.Ф. Лесгафта
Утверждён:30.04.2004 Госстрой России (Russian Federation Gosstroy ЛБ-322/9)
26.02.2005 Федеральное агентство по физической культуре, спорту и туризму (24)
Издан: ФГУП ЦПП (2005 г. )
Расположен в:Техническая документация Экология СТРОИТЕЛЬНЫЕ МАТЕРИАЛЫ И СТРОИТЕЛЬСТВО Строительство Общественные здания Строительство Нормативные документы Документы Системы нормативных документов в строительстве Нормативные документы по градостроительству, зданиям и сооружениям к.31 Жилые, общественные и производственные здания и сооружения
Нормативные ссылки:
СП 31-112-2004СП 31-112-2004СП 31-112-2004СП 31-112-2004СП 31-112-2004СП 31-112-2004СП 31-112-2004СП 31-112-2004СП 31-112-2004СП 31-112-2004СП 31-112-2004СП 31-112-2004СП 31-112-2004СП 31-112-2004СП 31-112-2004СП 31-112-2004СП 31-112-2004СП 31-112-2004СП 31-112-2004СП 31-112-2004СП 31-112-2004СП 31-112-2004СП 31-112-2004СП 31-112-2004СП 31-112-2004СП 31-112-2004СП 31-112-2004СП 31-112-2004СП 31-112-2004СП 31-112-2004СП 31-112-2004СП 31-112-2004СП 31-112-2004СП 31-112-2004СП 31-112-2004СП 31-112-2004СП 31-112-2004СП 31-112-2004СП 31-112-2004СП 31-112-2004СП 31-112-2004СП 31-112-2004СП 31-112-2004СП 31-112-2004СП 31-112-2004СП 31-112-2004СП 31-112-2004СП 31-112-2004СП 31-112-2004СП 31-112-2004СП 31-112-2004СП 31-112-2004СП 31-112-2004СП 31-112-2004СП 31-112-2004СП 31-112-2004СП 31-112-2004СП 31-112-2004СП 31-112-2004СП 31-112-2004СП 31-112-2004СП 31-112-2004СП 31-112-2004СП 31-112-2004СП 31-112-2004СП 31-112-2004СП 31-112-2004СП 31-112-2004СП 31-112-2004СП 31-112-2004СП 31-112-2004СП 31-112-2004СП 31-112-2004СП 31-112-2004СП 31-112-2004СП 31-112-2004СП 31-112-2004СП 31-112-2004СП 31-112-2004СП 31-112-2004СП 31-112-2004СП 31-112-2004СП 31-112-2004СП 31-112-2004СП 31-112-2004СП 31-112-2004СП 31-112-2004СП 31-112-2004СП 31-112-2004СП 31-112-2004СП 31-112-2004

© 2013 Ёшкин Кот :-) Карта сайта