Информационная система
«Ёшкин Кот»

Скачать базу одним архивом
Скачать обновления
История создания базы
Карта сайта

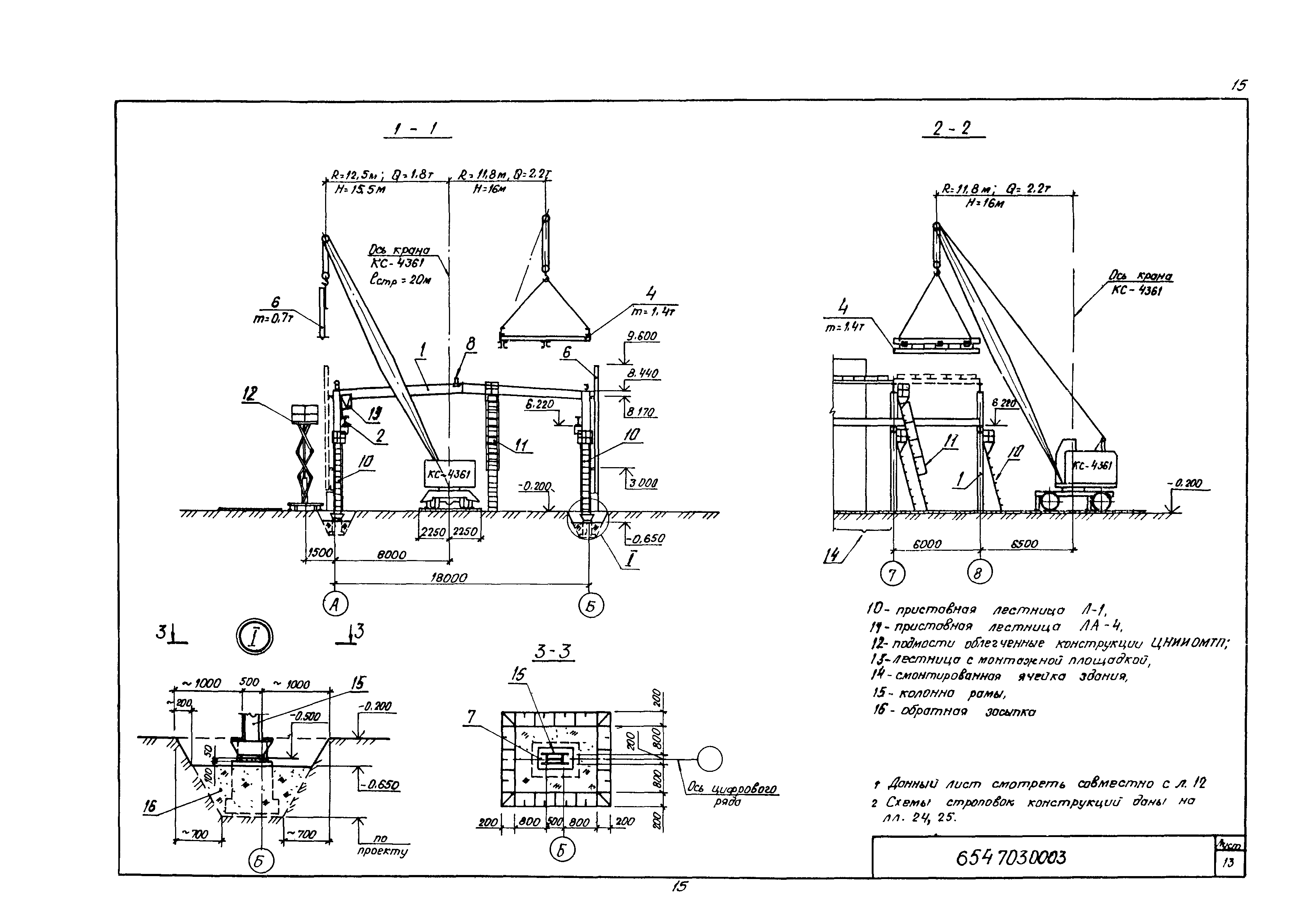
Скачать Технологическая карта 6547030003/814003 Типовая технологическая карта на специальные строительные работы. Монтаж здания многоцелевого назначения из ЛМК комплектной поставки размером 18х60 м с каркасом из широкополочных двутавров (проект 236-01 В2)

Дата актуализации: 10.08.2017

Технологическая карта 6547030003/814003

Типовая технологическая карта на специальные строительные работы. Монтаж здания многоцелевого назначения из ЛМК комплектной поставки размером 18х60 м с каркасом из широкополочных двутавров (проект 236-01 В2)

Обозначение: Технологическая карта 6547030003/814003
Обозначение англ: 6547030003/814003
Статус:не установлен срок действия
Название рус.:Типовая технологическая карта на специальные строительные работы. Монтаж здания многоцелевого назначения из ЛМК комплектной поставки размером 18х60 м с каркасом из широкополочных двутавров (проект 236-01 В2)
Дата добавления в базу:01.09.2013
Дата актуализации:05.05.2017
Дата введения:01.06.1991
Область применения:Типовая технологическая карта (ТТК) разработана на монтаж однопролетного здания многоцелевого назначения из легких металлических конструкций (ЛМК) комплектной поставки по проекту шифра 236-01 В2, разработанному экспериментальным конструкторским бюро НПО «Союзстройконструкция» Минуралсибстроя РСФСР в 1985 г.
Оглавление:1. Область применения
2. Организация и технология выполнения работ
   2.1. Общие положения
   2.2. Технологическая последовательность выполнения работ на ячейке
   2.3. Геодезическое обеспечение
   2.4. Указания к производству работ в зимнее время
3. Требования к качеству и приёмке работ
4. Калькуляции затрат труда, машинного времени и заработной платы
   4.1. Калькуляция № 1 на монтаж элементов каркаса здания
   4.2. Калькуляция № 2 на монтаж подкрановых балок, тормозных площадок, вертикальных связей
   4.3. Калькуляция № 3 на монтаж ограждающих конструкций здания
5. График производства работ на монтаж одного здания
6. Материально-технические ресурсы
   6.1. Потребность в инструменте, инвентаре и приспособлениях
   6.2. Потребность в материалах и полуфабрикатах для выполнения работ
7. Техника безопасности
8. Технико-экономические показатели
9. Фасетный классификатор факторов
Разработан: Институт Оргуралсибстрой
Утверждён:13.12.1990 Госстрой СССР (Государственный комитет Совета Министров СССР по делам строительства) (USSR Gosstroy 12-348)
Расположен в:Техническая документация Экология СТРОИТЕЛЬНЫЕ МАТЕРИАЛЫ И СТРОИТЕЛЬСТВО Технология строительства Организация и порядок производства работ. Управление качеством и обеспечение качества Строительство Справочные документы Технологические карты Металлические конструкции
Нормативные ссылки:
Технологическая карта 6547030003/814003Технологическая карта 6547030003/814003Технологическая карта 6547030003/814003Технологическая карта 6547030003/814003Технологическая карта 6547030003/814003Технологическая карта 6547030003/814003Технологическая карта 6547030003/814003Технологическая карта 6547030003/814003Технологическая карта 6547030003/814003Технологическая карта 6547030003/814003Технологическая карта 6547030003/814003Технологическая карта 6547030003/814003Технологическая карта 6547030003/814003Технологическая карта 6547030003/814003Технологическая карта 6547030003/814003Технологическая карта 6547030003/814003Технологическая карта 6547030003/814003Технологическая карта 6547030003/814003Технологическая карта 6547030003/814003Технологическая карта 6547030003/814003Технологическая карта 6547030003/814003Технологическая карта 6547030003/814003Технологическая карта 6547030003/814003Технологическая карта 6547030003/814003Технологическая карта 6547030003/814003Технологическая карта 6547030003/814003Технологическая карта 6547030003/814003Технологическая карта 6547030003/814003Технологическая карта 6547030003/814003Технологическая карта 6547030003/814003Технологическая карта 6547030003/814003Технологическая карта 6547030003/814003Технологическая карта 6547030003/814003Технологическая карта 6547030003/814003Технологическая карта 6547030003/814003Технологическая карта 6547030003/814003Технологическая карта 6547030003/814003Технологическая карта 6547030003/814003Технологическая карта 6547030003/814003Технологическая карта 6547030003/814003Технологическая карта 6547030003/814003Технологическая карта 6547030003/814003Технологическая карта 6547030003/814003Технологическая карта 6547030003/814003Технологическая карта 6547030003/814003Технологическая карта 6547030003/814003Технологическая карта 6547030003/814003Технологическая карта 6547030003/814003Технологическая карта 6547030003/814003Технологическая карта 6547030003/814003

© 2013 Ёшкин Кот :-) Карта сайта