Информационная система
«Ёшкин Кот»

Скачать базу одним архивом
Скачать обновления
История создания базы
Карта сайта

Скачать РД 31.31.37-78 Нормы технологического проектирования морских портов

Дата актуализации: 10.08.2017

РД 31.31.37-78

Нормы технологического проектирования морских портов

Обозначение: РД 31.31.37-78
Обозначение англ: RD 31.31.37-78
Статус:заменен
Название рус.:Нормы технологического проектирования морских портов
Название англ.:Guidelines for Design of Transport Type Wharf Structures on Weak Soils
Дата добавления в базу:01.09.2013
Дата актуализации:05.05.2017
Дата введения:17.06.1997
Область применения:Документ содержит требования и нормативы по технологическому проектированию морских портов и распространяется на проектирование новых, расширение, реконструкцию и техническое перевооружение действующих морских торговых портов СССР, включая арктические.
Оглавление:1. Общие положения
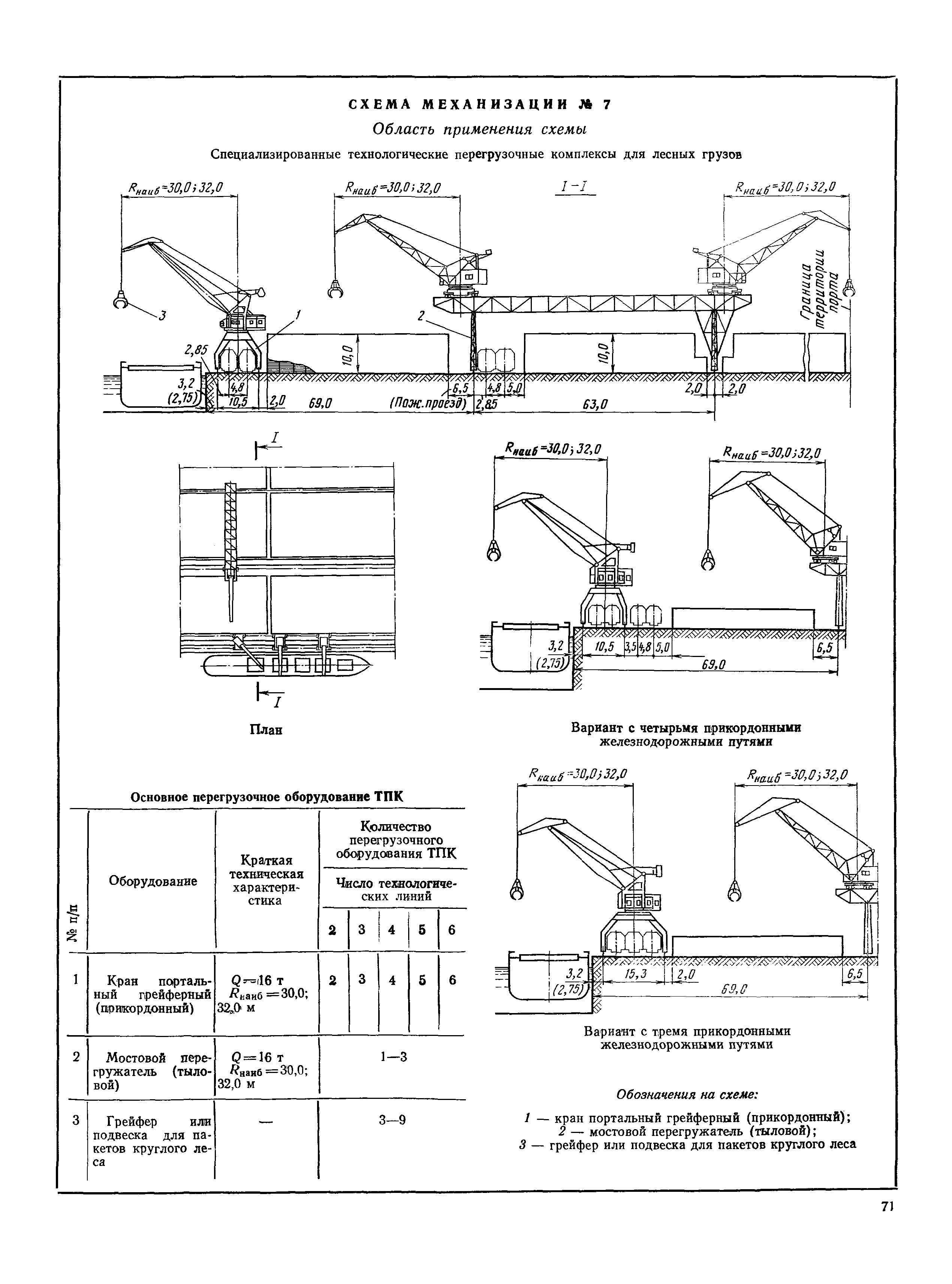
2. Районирование порта и специализация технологических погрузочных комплексов
3. Технология погрузочно-разгрузочных работ
   3.1 Операции с сухогрузами
   3.2 Операции с нефтяными наливными грузами
   3.3 Операции с жидкими химическими и пищевыми грузами
   3.4 Численность портовых работников на погрузочно-разгрузочных работах
4. Отсчетные уровни и глубины портовых акваторий
5. Причалы
   5.1 Грузовые причалы
   5.2 Пассажирские причалы
   5.3 Вспомогательные причалы
   5.4 Основные размеры причалов
   5.5 Нормативные эксплуатационные нагрузки на причальные сооружения
6. Склады
7. Железнодорожные и подкрановые пути
8. Покрытия территорий
9. Ремонтные мастерские
10. Гаражи погрузчиков
11. Вспомогательные здания и помещения портов
12. Бункеровочные нефтебазы
13. Водоснабжение и канализация
14. Инженерные сети
15. Портовый флот
Приложения
Разработан: ЛенморНИИпроект
СоюзморНИИпроект
Одесский филиал Черноморниипроект
Утверждён:30.12.1977 Министерство морского флота СССР (USSR Ministry of the Merchant Marine )
25.10.1978 Министерство морского флота СССР (USSR Ministry of the Merchant Marine )
Принят: Министерство здравоохранения СССР (USSR Ministry of Health Care )
ЦК профсоюза рабочих морского и речного флота (Central Committee of the Labor Union of Maritime and River Fleet Workers )
Министерство внутренних дел СССР (USSR Ministry of Internal Affairs )
Министерство мелиорации и водного хозяйства СССР
Издан: ЦРИА Морфлот (1980 г. )
Расположен в:Техническая документация Экология СУДОСТРОЕНИЕ И МОРСКИЕ СООРУЖЕНИЯ Судостроение и морские сооружения в целом Судостроение и морские сооружения, общие аспекты Строительство Нормативные документы Отраслевые и ведомственные нормативно-методические документы Проектирование и строительство морских сооружений
Заменяет собой:
  • «Нормы технологического проектирования морских портов» (1967 год)
Чем заменён:
Нормативные ссылки:
РД 31.31.37-78РД 31.31.37-78РД 31.31.37-78РД 31.31.37-78РД 31.31.37-78РД 31.31.37-78РД 31.31.37-78РД 31.31.37-78РД 31.31.37-78РД 31.31.37-78РД 31.31.37-78РД 31.31.37-78РД 31.31.37-78РД 31.31.37-78РД 31.31.37-78РД 31.31.37-78РД 31.31.37-78РД 31.31.37-78РД 31.31.37-78РД 31.31.37-78РД 31.31.37-78РД 31.31.37-78РД 31.31.37-78РД 31.31.37-78РД 31.31.37-78РД 31.31.37-78РД 31.31.37-78РД 31.31.37-78РД 31.31.37-78РД 31.31.37-78РД 31.31.37-78РД 31.31.37-78РД 31.31.37-78РД 31.31.37-78РД 31.31.37-78РД 31.31.37-78РД 31.31.37-78РД 31.31.37-78РД 31.31.37-78РД 31.31.37-78РД 31.31.37-78РД 31.31.37-78РД 31.31.37-78РД 31.31.37-78РД 31.31.37-78РД 31.31.37-78РД 31.31.37-78РД 31.31.37-78РД 31.31.37-78РД 31.31.37-78РД 31.31.37-78РД 31.31.37-78РД 31.31.37-78РД 31.31.37-78РД 31.31.37-78РД 31.31.37-78РД 31.31.37-78РД 31.31.37-78РД 31.31.37-78РД 31.31.37-78РД 31.31.37-78РД 31.31.37-78РД 31.31.37-78РД 31.31.37-78РД 31.31.37-78РД 31.31.37-78РД 31.31.37-78РД 31.31.37-78РД 31.31.37-78РД 31.31.37-78РД 31.31.37-78РД 31.31.37-78РД 31.31.37-78РД 31.31.37-78РД 31.31.37-78РД 31.31.37-78РД 31.31.37-78РД 31.31.37-78РД 31.31.37-78РД 31.31.37-78РД 31.31.37-78РД 31.31.37-78РД 31.31.37-78РД 31.31.37-78РД 31.31.37-78РД 31.31.37-78РД 31.31.37-78РД 31.31.37-78РД 31.31.37-78РД 31.31.37-78РД 31.31.37-78РД 31.31.37-78РД 31.31.37-78РД 31.31.37-78РД 31.31.37-78РД 31.31.37-78РД 31.31.37-78РД 31.31.37-78РД 31.31.37-78РД 31.31.37-78РД 31.31.37-78РД 31.31.37-78РД 31.31.37-78РД 31.31.37-78РД 31.31.37-78РД 31.31.37-78РД 31.31.37-78РД 31.31.37-78РД 31.31.37-78РД 31.31.37-78РД 31.31.37-78РД 31.31.37-78РД 31.31.37-78РД 31.31.37-78РД 31.31.37-78РД 31.31.37-78РД 31.31.37-78РД 31.31.37-78РД 31.31.37-78РД 31.31.37-78РД 31.31.37-78РД 31.31.37-78РД 31.31.37-78РД 31.31.37-78РД 31.31.37-78РД 31.31.37-78РД 31.31.37-78РД 31.31.37-78РД 31.31.37-78РД 31.31.37-78РД 31.31.37-78РД 31.31.37-78РД 31.31.37-78

© 2013 Ёшкин Кот :-) Карта сайта