Информационная система
«Ёшкин Кот»

Скачать базу одним архивом
Скачать обновления
История создания базы
Карта сайта

Скачать РД 31.3.05-97 Нормы технологического проектирования морских портов

Дата актуализации: 10.08.2017

РД 31.3.05-97

Нормы технологического проектирования морских портов

Обозначение: РД 31.3.05-97
Обозначение англ: RD 31.3.05-97
Статус:действует
Название рус.:Нормы технологического проектирования морских портов
Название англ.:Engineering Design Standards for Seaports
Дата добавления в базу:01.09.2013
Дата актуализации:05.05.2017
Дата введения:17.06.1997
Область применения:Нормы распространяются на проектирование новых, реконструкцию и модернизацию действующих морских торговых портов, перегрузочных комплексов и отдельных объектов
Оглавление:Предисловие
Введение
1 Область применения
2 Нормативные ссылки
3 Общие положения
4 Компоновка территории порта
   4.1 Зонирование территории
   4.2 Конфигурация причальной линии
   4.3 Компоновка портовых ПК
5 Компоновка акватории порта
   5.1 Основные элементы акватории порта
   5.2 Входной рейд
   5.3 Операционная акватория
   5.4 Рейды для отстоя судов и перегрузочных операций
   5.5 Отсчетные уровни и глубины портовых акваторий
6 Перегрузочные комплексы универсального назначения с крановыми схемами механизации
7 Перегрузочные комплексы, специализированные для навалочных грузов
8 Перегрузочные комплексы, специализированные для контейнеров
   8.1 Общие положения
   8.2 Причальный фронт
   8.3 Тыловой автомобильный фронт
   8.4 Компоновка комплекса
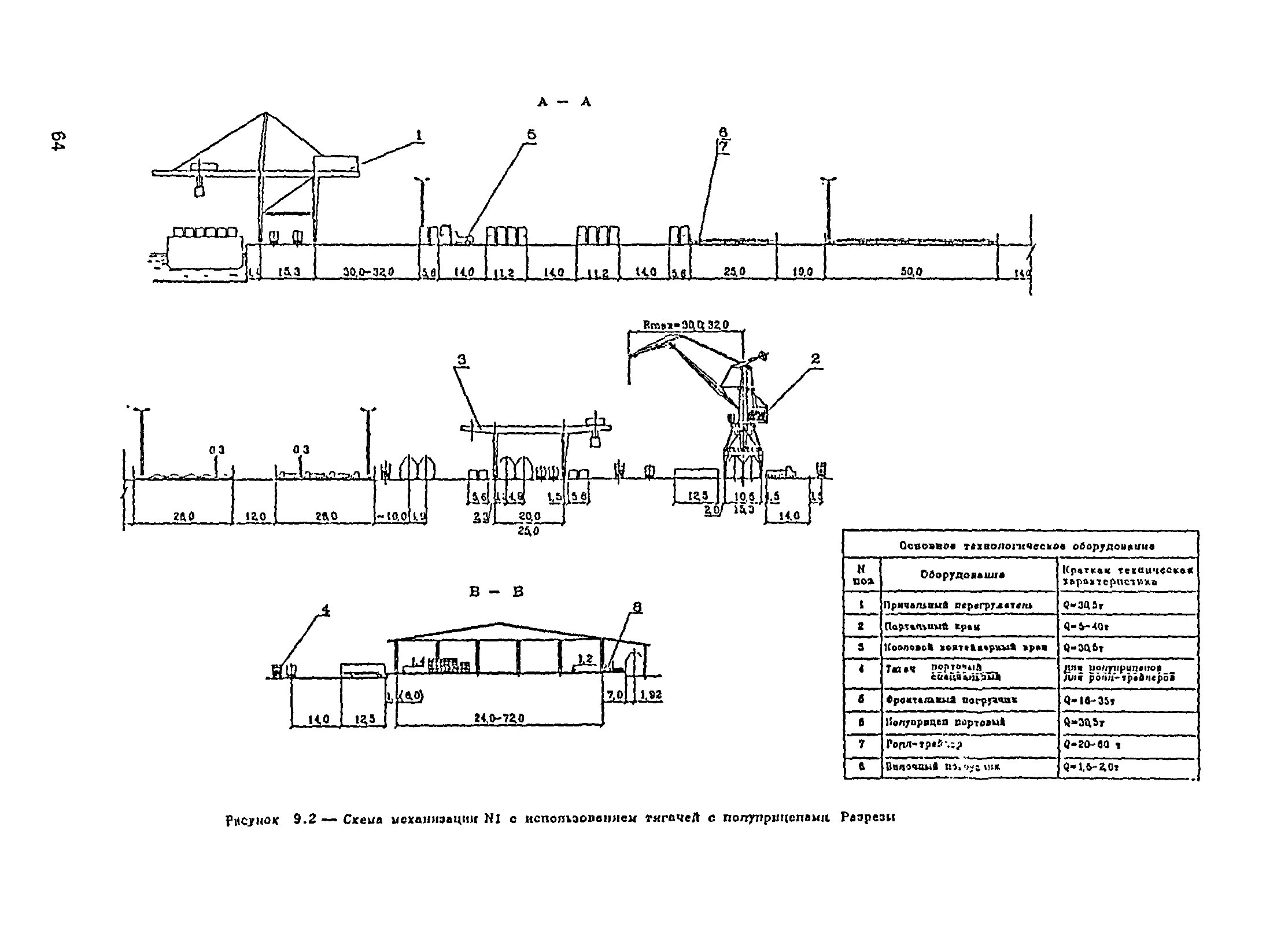
9 Перегрузочные комплексы, специализированные для накатных судов
   9.1 Общие положения
   9.2 Причальный фронт
   9.3 Тыловой автомобильный фронт
   9.4 Сортировочная площадь
   9.5 Фронт неукрупненных грузов открытого хранения
   9.6 Компоновка комплекса
10 Перегрузочные комплексы, специализированные для наливных грузов
   10.1 Перегрузочные комплексы, специализированные для нефти и нефтепродуктов
   10.2 Перегрузочные комплексы, специализированные для химических жидких наливных грузов
   10.3 Перегрузочные комплексы, специализированные для жидких пищевых грузов
11 Перегрузочные комплексы, специализированные для обработки судов лихтеровозной системы
   11.1 Причальные устройства для лихтеровозов
   11.2 Накопительно-отстойный бассейн
   11.3 Грузовой участок для обработки лихтеров
   11.4 Портовые и транспортные буксиры
12 Перегрузочные комплексы морских паромных переправ
   12.1 Общие положения
   12.2 Технологические объекты паромного комплекса
   12.3 Подъемно-переходный мост
   12.4 Железнодорожные устройства
   12.5 Обслуживание паромов
13 Причалы грузовые
   13.1 Определение потребности в причалах и их установленной мощности
   13.2 Глубина у причала
   13.3 Длина и ширина причала
   13.4 Возвышение кордона причала
   13.5 Нормативные нагрузки на причальные сооружения
14 Вспомогательные причалы
15 Комплекс пассажирских причалов
   15.1 Специализация причалов
   15.2 Потребность в причалах
   15.3 Морской вокзал, другие здания и помещения комплекса
16 Рельсовые пути
   16.1 Железнодорожные пути
   16.2 Тыловой железнодорожный фронт для контейнеров и подвижной техники
   16.3 Крановые рельсовые пути
17 Склады
   17.1 Определение потребной площади складов
   17.2 Крытые склады
   17.3 Открытые склады
18 Покрытия территории
19 Инженерные сети
   19.1 Общие положения
   19.2 Сети электроснабжения
   19.3 Сети связи и сигнализации
   19.4 Сети теплоснабжения
   19.5 Сети водоснабжения и канализации
20 Гаражи погрузчиков
21 Ремонтные мастерские
22 Портовый флот
23 Режимно-охранное обеспечение морских портов
24 Требования по охране здоровья работников порта
Приложение А Нормативные ссылки
Приложение Б Определения, обозначения и сокращения
Разработан: СоюзморНИИпроект
Утверждён:21.05.1997 Министерство транспорта РФ (Russian Federation Ministry of Transport )
Принят:28.07.1996 Минприроды России (Russian Federation Minprirody 02-12/32-1925)
13.01.1997 Главгосэкспертиза России (Russian Federation Glavgosexpertiza 24-4-1/5-92-П)
15.02.1996 МВД России (Russian Federation Ministry of Internal Affairs 20/2.2/353)
10.01.1996 Госсанэпиднадзор России (Russian Federation Gossanepidnadzor 09РУ/11)
29.05.1995 ЦК профсоюза работников водного транспорта РФ (Central Committee of the Labor Union of Water Transport Workers of Russia 3.06/14)
Расположен в:Техническая документация Экология ГРАЖДАНСКОЕ СТРОИТЕЛЬСТВО Сооружение водных путей, портов и дамб СУДОСТРОЕНИЕ И МОРСКИЕ СООРУЖЕНИЯ Судостроение и морские сооружения в целом Судостроение и морские сооружения, общие аспекты Строительство Нормативные документы Отраслевые и ведомственные нормативно-методические документы Проектирование и строительство морских сооружений
Заменяет собой:
Нормативные ссылки:
РД 31.3.05-97РД 31.3.05-97РД 31.3.05-97РД 31.3.05-97РД 31.3.05-97РД 31.3.05-97РД 31.3.05-97РД 31.3.05-97РД 31.3.05-97РД 31.3.05-97РД 31.3.05-97РД 31.3.05-97РД 31.3.05-97РД 31.3.05-97РД 31.3.05-97РД 31.3.05-97РД 31.3.05-97РД 31.3.05-97РД 31.3.05-97РД 31.3.05-97РД 31.3.05-97РД 31.3.05-97РД 31.3.05-97РД 31.3.05-97РД 31.3.05-97РД 31.3.05-97РД 31.3.05-97РД 31.3.05-97РД 31.3.05-97РД 31.3.05-97РД 31.3.05-97РД 31.3.05-97РД 31.3.05-97РД 31.3.05-97РД 31.3.05-97РД 31.3.05-97РД 31.3.05-97РД 31.3.05-97РД 31.3.05-97РД 31.3.05-97РД 31.3.05-97РД 31.3.05-97РД 31.3.05-97РД 31.3.05-97РД 31.3.05-97РД 31.3.05-97РД 31.3.05-97РД 31.3.05-97РД 31.3.05-97РД 31.3.05-97РД 31.3.05-97РД 31.3.05-97РД 31.3.05-97РД 31.3.05-97РД 31.3.05-97РД 31.3.05-97РД 31.3.05-97РД 31.3.05-97РД 31.3.05-97РД 31.3.05-97РД 31.3.05-97РД 31.3.05-97РД 31.3.05-97РД 31.3.05-97РД 31.3.05-97РД 31.3.05-97РД 31.3.05-97РД 31.3.05-97РД 31.3.05-97РД 31.3.05-97РД 31.3.05-97РД 31.3.05-97РД 31.3.05-97РД 31.3.05-97РД 31.3.05-97РД 31.3.05-97РД 31.3.05-97РД 31.3.05-97РД 31.3.05-97РД 31.3.05-97РД 31.3.05-97РД 31.3.05-97РД 31.3.05-97РД 31.3.05-97РД 31.3.05-97РД 31.3.05-97РД 31.3.05-97РД 31.3.05-97РД 31.3.05-97РД 31.3.05-97РД 31.3.05-97РД 31.3.05-97РД 31.3.05-97РД 31.3.05-97РД 31.3.05-97РД 31.3.05-97РД 31.3.05-97РД 31.3.05-97РД 31.3.05-97РД 31.3.05-97РД 31.3.05-97РД 31.3.05-97РД 31.3.05-97РД 31.3.05-97РД 31.3.05-97РД 31.3.05-97РД 31.3.05-97РД 31.3.05-97РД 31.3.05-97РД 31.3.05-97РД 31.3.05-97РД 31.3.05-97РД 31.3.05-97РД 31.3.05-97РД 31.3.05-97РД 31.3.05-97РД 31.3.05-97РД 31.3.05-97РД 31.3.05-97РД 31.3.05-97РД 31.3.05-97РД 31.3.05-97РД 31.3.05-97РД 31.3.05-97РД 31.3.05-97РД 31.3.05-97РД 31.3.05-97РД 31.3.05-97РД 31.3.05-97РД 31.3.05-97РД 31.3.05-97РД 31.3.05-97РД 31.3.05-97РД 31.3.05-97РД 31.3.05-97РД 31.3.05-97РД 31.3.05-97РД 31.3.05-97РД 31.3.05-97РД 31.3.05-97РД 31.3.05-97РД 31.3.05-97РД 31.3.05-97РД 31.3.05-97РД 31.3.05-97РД 31.3.05-97РД 31.3.05-97РД 31.3.05-97РД 31.3.05-97РД 31.3.05-97РД 31.3.05-97РД 31.3.05-97РД 31.3.05-97РД 31.3.05-97РД 31.3.05-97РД 31.3.05-97РД 31.3.05-97РД 31.3.05-97РД 31.3.05-97РД 31.3.05-97РД 31.3.05-97РД 31.3.05-97РД 31.3.05-97РД 31.3.05-97РД 31.3.05-97РД 31.3.05-97РД 31.3.05-97РД 31.3.05-97РД 31.3.05-97РД 31.3.05-97РД 31.3.05-97РД 31.3.05-97РД 31.3.05-97РД 31.3.05-97РД 31.3.05-97РД 31.3.05-97РД 31.3.05-97

© 2013 Ёшкин Кот :-) Карта сайта