| ||||||||||||||||||||||||||||||||
 Скачать РД 153-34.3-35.125-99 Руководство по защите электрических сетей 6-1150 кВ от грозовых и внутренних перенапряженийДата актуализации: 10.08.2017
 | 
| Обозначение: |     РД 153-34.3-35.125-99 | 
| Обозначение англ: |     RD 153-34.3-35.125-99 | 
| Статус: | действует | 
| Название рус.: | Руководство по защите электрических сетей 6-1150 кВ от грозовых и внутренних перенапряжений | 
| Название англ.: | Guide to Protection of 6-1150 kV Electrical Circuits Against Lightning and Internal Overvoltages | 
| Дата добавления в базу: | 01.09.2013 | 
| Дата актуализации: | 05.05.2017 | 
| Область применения: | В Руководстве изложены методы расчета внутренних перенапряжений и выбора комплекса мер защиты отних в электрических сетях 110-1150 кВ с эффективно заземленной, в электрических сетях 6-35 кВ с изолированной, компенсированной и резистивно-заземленной, в том числе, в системе собственных нужд электрических станций. Руководство предназначено для инженеров, работающих в области проектирования и эксплуатации энергосистем, электрических сетей и станций. | 
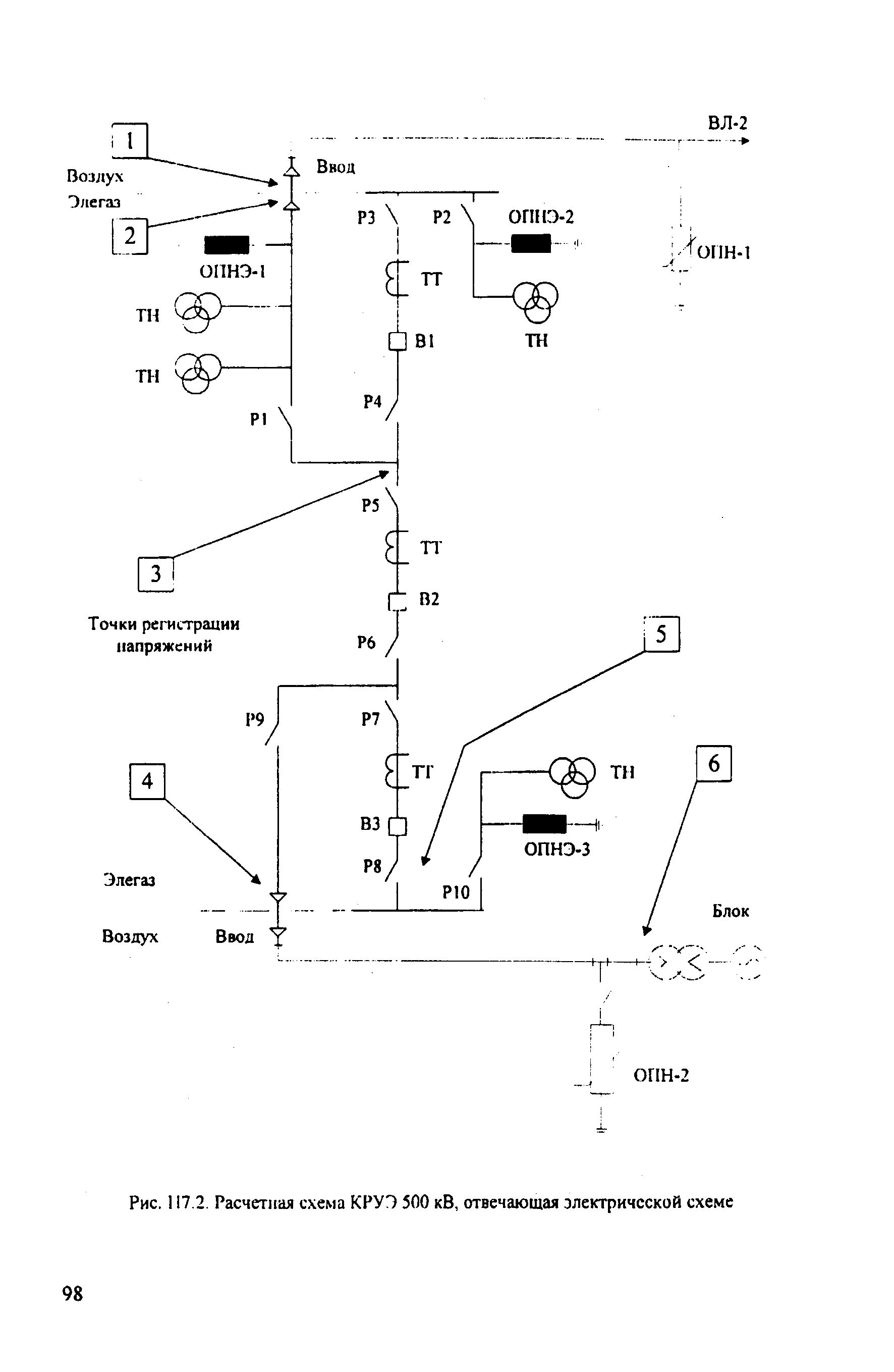
| Оглавление: | Часть 1. Защита от внутренних перенапряжений электрических сетей 110-1150 кв. Раздел 1. Общая характеристика внутренних перенапряжений в электрических сетях 110-1150 кв. Раздел 2. Резонансные перенапряжения Раздел 3. Защита подстанций 110-750 кв с элегазовыми комплектными распределительными устройствами от резонансных, высоко- и низкочастотных коммутационных и грозовых перенапряжений Раздел 4. Защита продольно- и поперечнокомпенсированных электропередачи от коммутационных и грозовых перенапряжений Приложения к части 1 Часть 2. Защита от внутренних перенапряжений электрических сетей 6-35 кВ. Раздел 5. Защита от внутренних перенапряжений электрических сетей 6-35 кВ. Приложения к части 2 Часть 3. Грозозащита линий и подстанций 6-1150 кв. Раздел 6. Основные характеристики разряда молнии в расчетах грозозащиты Раздел 7. Показатели грозоупорности и средства грозозащиты воздушных линий Раздел 8. Выбор средств грозозащиты вл 110 кв. и выше Раздел 9. Защита станций и подстанций 6-1150 кв. от грозовых перенапряжений Приложения к части 3  | 
| Разработан: |  АО ВНИИЭ АО НИИПТ  | 
| Утверждён: | 12.07.1999 РАО ЕЭС России (UES of Russia RAO ) | 
| Издан: |  ПЭ ИПК (1999 г. ) | 
| Расположен в: | |
| Нормативные ссылки: | 
  | 

































































































































































































































































































































































