| ||||||||||||||||||||||||||||||||
Скачать Р 78.36.003-99 Рекомендации по комплексному оборудованию банков, пунктов обмена валюты, оружейных и ювелирных магазинов, коммерческих и других фирм и организаций техническими средствами охраны, видеоконтроля и инженерной защиты. Типовые вариантыДата актуализации: 10.08.2017
|
| Обозначение: | Р 78.36.003-99 |
| Обозначение англ: | R 78.36.003-99 |
| Статус: | действует |
| Название рус.: | Рекомендации по комплексному оборудованию банков, пунктов обмена валюты, оружейных и ювелирных магазинов, коммерческих и других фирм и организаций техническими средствами охраны, видеоконтроля и инженерной защиты. Типовые варианты |
| Название англ.: | Recommended Practices for Equipping Banks, Currency Exchanges, Firearms Stores, Jewelry Stores, Commercial and Other Companies and Organizations with Integrated Security Equipment, Video Surveillance Equipment, and Complete Facility Protection Systems - T |
| Дата добавления в базу: | 01.09.2013 |
| Дата актуализации: | 05.05.2017 |
| Область применения: | Рекомендации распространяются на вновь проектируемые. реконструируемые и технически перевооружаемые объекты охраняемые или передаваемые под охрану подразделениям вневедомственной охраны при органах внутренних дел Российской Федерации |
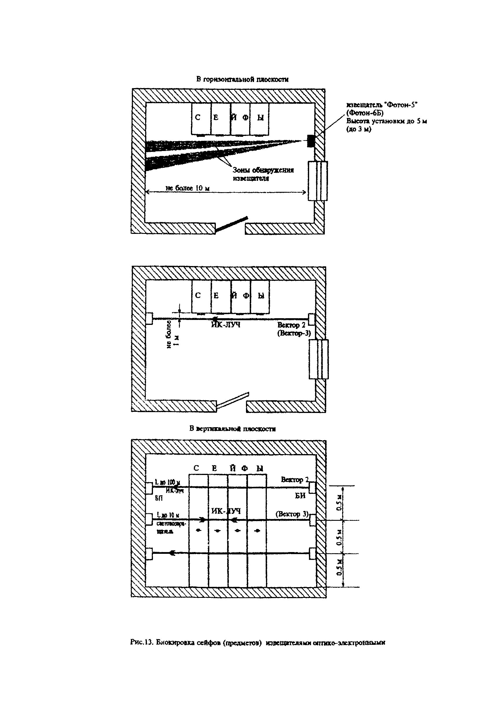
| Оглавление: | 1 Техническая укрепленность (инженерная защита объектов) 1.1 Общие положения 1.2 Общие требования к технической укрепленности помещений объектов, предназначенных для хранения и размещения материальных ценностей 1.3 Специальные помещения, предназначенные для хранения особо ценных и особо важных материальных ценностей 1.4 Обменные пункты иностранной валюты 1.5 Операционно-кассовые залы банков 1.6 Торговые залы универмагов, магазинов 1.7 Боксы для погрузки-разгрузки машин 1.8 Помещения службы безопасности и охраны 1.9 Помещения для хранения табельного оружия 1.10 Помещения банкоматов банков 2 Оборудование объектов и их помещений техническими средствами сигнализации 2.1 Общие положения 2.2 Основные принципы оборудования объектов техническими средствами охранной сигнализации 2.3 Организация пожарной сигнализации 2.4 Организация тревожной сигнализации 2.5 Варианты организации выдачи тревожных извещений о проникновении, нападении и пожаре с охраняемых объектов 2.6 Размещение технических средств охранной и пожарной сигнализации. (Типовые варианты блокировки строительных конструкций, отдельных предметов и помещений) 3 Организация системы контроля доступа (СКД), телевизионных систем видеонаблюдения и видеоохраны (ТСВ) 4 Монтаж технических средств сигнализации, шлейфов охранно-пожарной и тревожной сигнализации, соединительных линий (ТСВ) и питающих линий 5 Электропитание оборудования 6 Эксплуатационно-техническое обслуживание средств сигнализации Приложение 1 Категорирование объектов и помещений по виду и концентрации в них материальных ценностей Приложение 2 Классификация строительных конструкций по устойчивости к взлому Приложение 3 Классификация дверных конструкций по устойчивости к взлому Приложение 4 Классификация оконных проемов по устойчивости к взлому Приложение 5 Классификация защитного остекления Приложение 6 Технические требования к решетчатым дверям, окнам и ставням. Технические требования к элементам строительных конструкций хранилищ ценностей Приложение 7 Классификация хранилищ и сейфов по устойчивости к взлому. Классификация замковых устройств Приложение 8 Классификация охранной сигнализации по степени защиты от проникновения в здание Приложение 9 Типовые варианты оборудования объектов средствами ОПТС Приложение 10 Типовые варианты блокировки строительных конструкций, отдельных предметов и помещений Приложение 11 Варианты оборудования объекта средствами СКД и ТСВ |
| Разработан: | НИЦ Охрана ГУВО МВД России |
| Утверждён: | 20.12.1996 ГУВО МВД России (Security Guard Service Administration at the Russian Federation Ministry of Internal Affairs ) |
| Издан: | НИЦ Охрана ГУВО МВД России (1999 г. ) |
| Расположен в: | |
| Нормативные ссылки: |
|




























































































