| ||||||||||||||||||||||||||||||||||||||
Скачать ГОСТ 21.508-93 Система проектной документации для строительства. Правила выполнения рабочей документации генеральных планов предприятий, сооружений и жилищно-гражданских объектовДата актуализации: 10.08.2017
|
| Обозначение: | ГОСТ 21.508-93 |
| Обозначение англ: | GOST 21.508-93 |
| Статус: | действует |
| Название рус.: | Система проектной документации для строительства. Правила выполнения рабочей документации генеральных планов предприятий, сооружений и жилищно-гражданских объектов |
| Название англ.: | System of building design documents. Rules of fulfilment of working documentation of general layouts of enterprises, buildings and civil housing objects |
| Дата добавления в базу: | 01.09.2013 |
| Дата актуализации: | 05.05.2017 |
| Дата введения: | 01.09.1994 |
| Область применения: | Стандарт устанавливает состав и правила оформления рабочей документации генеральных планов предприятий, сооружений и жилищно-гражданских объектов различного назначения. |
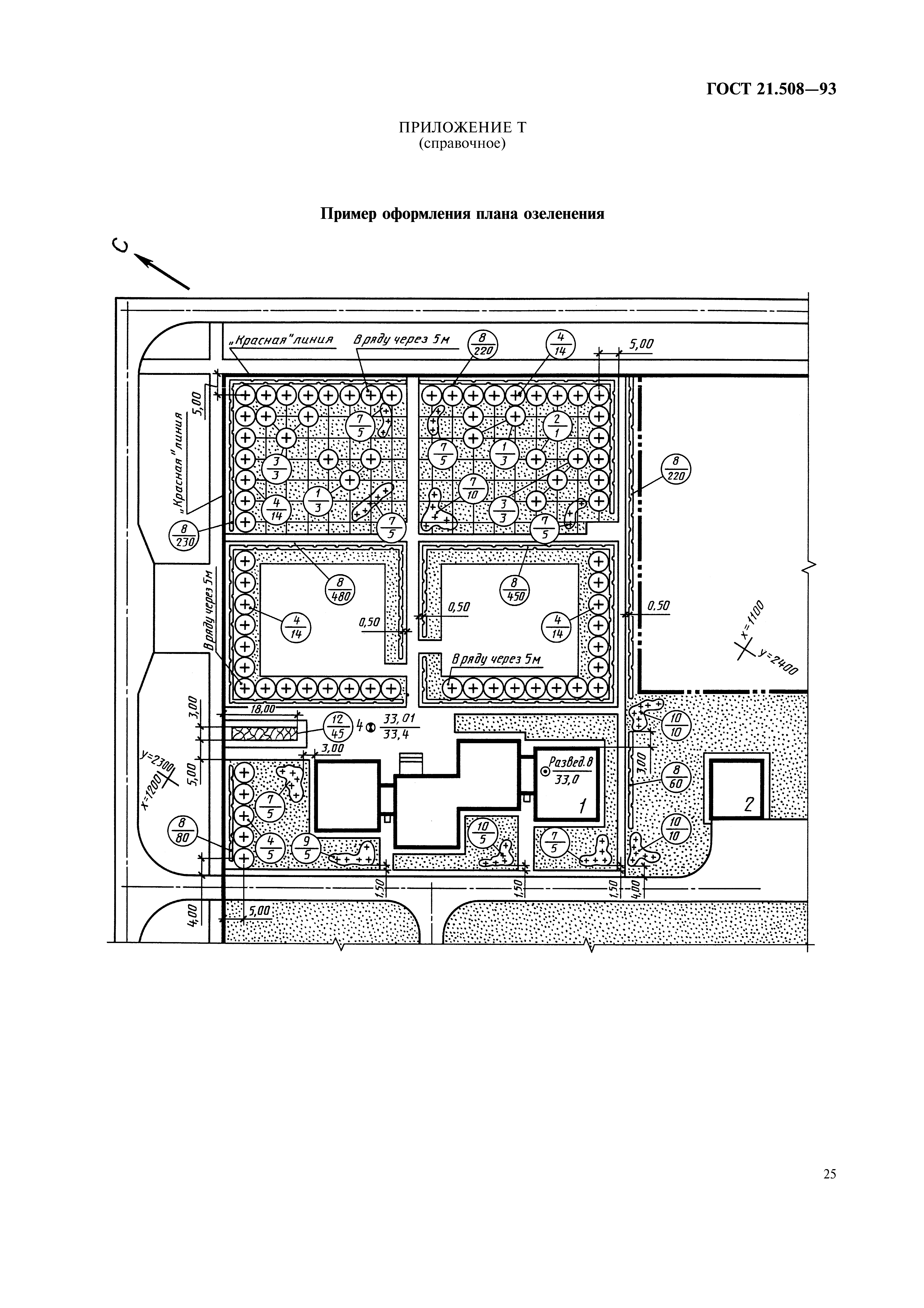
| Оглавление: | 1 Область применения 2 Нормативные ссылки 3 Общие положения 4 Общие данные по рабочим чертежам 5 Разбивочный план 6 План организации рельефа 7 План земляных масс 8 Сводный план инженерных сетей 9 План благоустройства территории 10 Эскизные чертежи общих видов нетиповых изделий Приложение А Пример оформления ведомости разработок чертежа Приложение Б Пример оформления ведомости разработок сводного плана инженерных сетей Приложение В Пример оформления экспликации зданий и сооружений Приложение Г Пример оформления ведомости жилых и общественных зданий и сооружений Приложение Д Пример оформления ведомости водоотводных сооружений Приложение Е Пример оформления разбивочного плана Приложение Ж Пример оформления плана организации рельефа в проектных горизонталях Приложение И Пример оформления плана организации рельефа в проектных отметках Приложение К Пример оформления плана земляных масс Приложение Л Пример оформления ведомости объемов земляных масс Приложение М Пример оформления сводного плана инженерных сетей Приложение Н Пример оформления ведомости малых архитектурных форм и переносных изделий Приложение П Пример оформления ведомости элементов озеленения Приложение Р Пример оформления ведомостей тротуаров, дорожек, площадок и дорог, подъездов и проездов Приложение С Пример оформления сечений тротуаров, дорожек и площадок Приложение Т Пример оформления плана озеленения Приложение У Пример оформления плана расположения малых архитектурных форм и переносных изделий Приложение Ф Пример оформления плана проездов, тротуаров, дорожек, площадок |
| Разработан: | ГП ЦНС Госстроя России Промстройпроект Госстроя СССР ЦНИИпроект Госстроя СССР ЦНИИП градостроительства ПИ-2 |
| Утверждён: | 05.04.1994 Госстрой РФ (Russian Federation Gosstroy 18-31) 10.11.1993 МНТКС (MNTKS ) |
| Издан: | Издательство стандартов (1994 г. ) ИПК Издательство стандартов (2002 г. ) Стандартинформ (2008 г. ) |
| Расположен в: | |
| Список изменений: |
|
| Заменяет собой: |
|
| Нормативные ссылки: |
|

































Текстовое изменение поправка от 01.04.2014