| ||||||||||||||||||||||||||||||||
Скачать РМД 35-13-2012 Санкт-Петербург Рекомендуемые для повторного применения проектные решения по обеспечению доступности для инвалидов и других маломобильных групп населения объектов здравоохранения Санкт-Петербурга, построенных по типовым проектам в 60 - 80 годах ХХ векаДата актуализации: 10.08.2017
|
| Обозначение: | РМД 35-13-2012 Санкт-Петербург |
| Обозначение англ: | 35-13-2012 Санкт-Петербург |
| Статус: | действует |
| Название рус.: | Рекомендуемые для повторного применения проектные решения по обеспечению доступности для инвалидов и других маломобильных групп населения объектов здравоохранения Санкт-Петербурга, построенных по типовым проектам в 60 - 80 годах ХХ века |
| Дата добавления в базу: | 01.10.2014 |
| Дата актуализации: | 05.05.2017 |
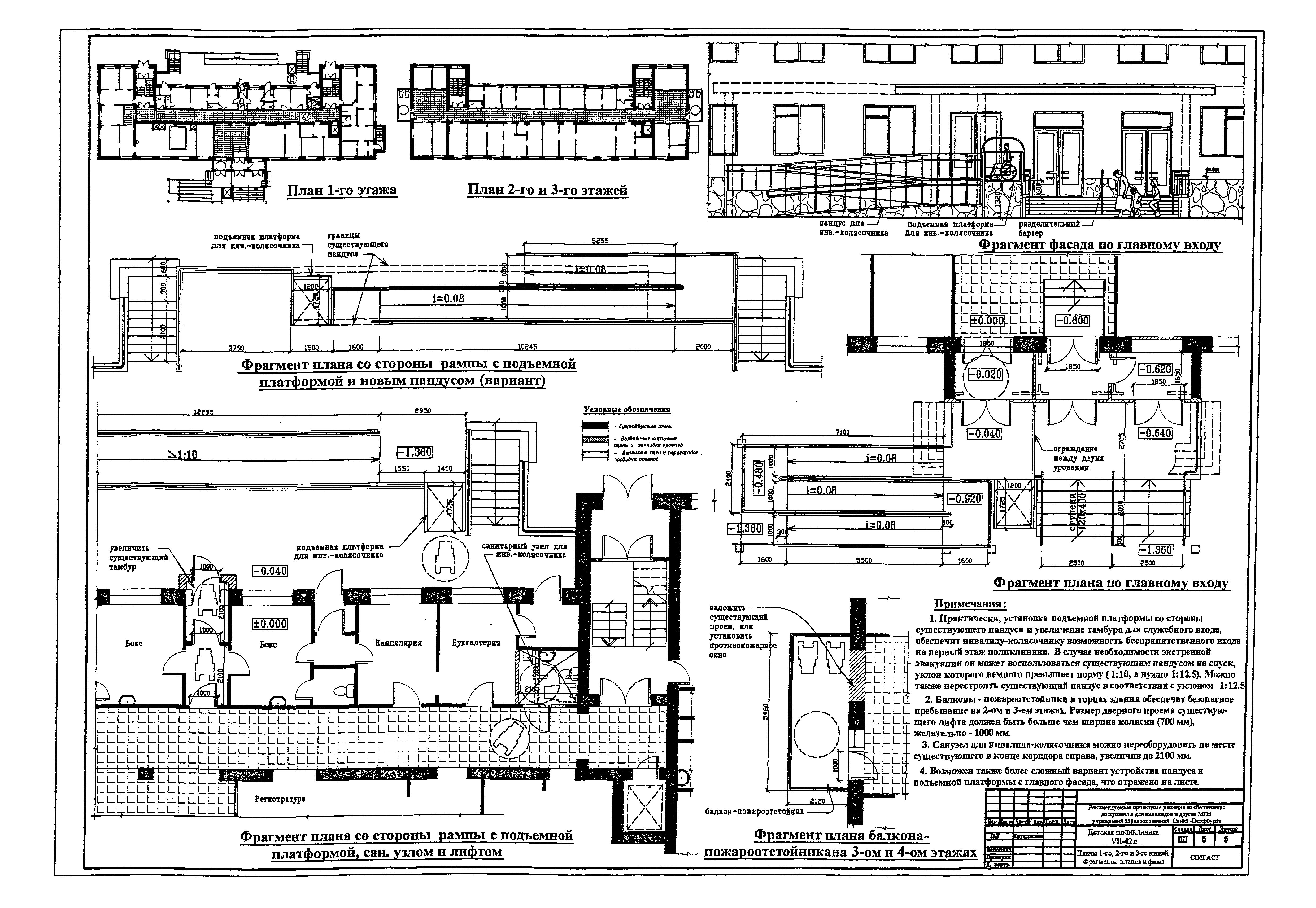
| Область применения: | В документе представлены: типология учреждений здравоохранения, построенных в 60-80 годах ХХ века по типовым проектам, номенклатура типовых проектов по каждому типу учреждений здравоохранения, анализ частоты применения того или иного типового проекта для каждого типа учреждений здравоохранения, выделены наиболее часто встречающиеся типовые проекты рассматриваемых объектов, рекомендуемые к применению в учреждениях здравоохранения архитектурно-планировочные решения по обеспечению доступности для маломобильных групп населения, примеры укрупненного расчета стоимости совокупности предлагаемых мероприятий по основным разновидностям типовых проектов учреждений здравоохранения 60 - 80 гг. Документ содержит примеры архитектурно-планировочных решений, виды оборудования, их параметры и характеристики. В документе учтен опыт отечественных и зарубежных специалистов в этой области, в том числе разработки различных авторов и творческих коллективов. |
| Оглавление: | Введение 1 Область применения 2 Нормативные ссылки 3 Термины и определения 4 Учреждения здравоохранения, построенные по типовым проектам в 60-80 годах ХХ века 5 Общие положения 6 Требования к обеспечению доступности территорий земельных участков 7 Требования к обеспечению доступности зданий 7.1 Входной узел 7.2 Вестибюльная группа помещений 7.3 Вертикальные коммуникации (архитектурные элементы и технические средства доступности) 7.4 Поэтажные коммуникационные пространства 7.5 Пожаробезопасная зона 7.6 Помещения общего пользования 7.7 Входы в рабочие помещения 7.8 Условия доступности внутри помещений 7.9 Расчет стоимости предлагаемых мероприятий Библиография Приложение А (справочное) Термины и их определения Приложение Б (справочное) Варианты планировочных решений реконструкционных мероприятий и примеры укрупненного расчета стоимости для типовых проектов поликлинических учреждений, получивших распространение в 60 - 80 гг. ХХ века Приложение В (рекомендуемое) Функциональные объемно-планировочные элементы, обеспечивающие доступность МГН Приложение Г (рекомендуемое) Оценка состояния жилой среды для последующего определения перечня мероприятий, обеспечивающих доступность МГН от жилого дома до первичных объектов социальной инфраструктуры (учреждений здравоохранения) Приложение Д (рекомендуемое) Альбом проектных решений |
| Разработан: | ЗАО Инженерная ассоциация Ленстройинжсервис СПбГАСУ |
| Утверждён: | 14.05.2012 Комитет по строительству Правительства Санкт-Петербурга (47) |
| Принят: | Комитет по градостроительству и архитектуре Администрации Санкт-Петербурга (Committee on Urban Planning and Architecture, Administration of St. Petersburg ) Служба государственного строительного надзора и экспертизы Санкт-Петербурга Комитет по здравоохранению Правительства Санкт-Петербурга Комитет по социальной политике Санкт-Петербурга Управление Роспотребнадзора по г. Санкт-Петербург |
| Издан: | Администрация Санкт-Петербурга (2012 г. ) |
| Расположен в: | |
| Нормативные ссылки: |
|



















































































