Информационная система
«Ёшкин Кот»

Скачать базу одним архивом
Скачать обновления
История создания базы
Карта сайта

Скачать СП 137.13330.2012 Жилая среда с планировочными элементами, доступными инвалидам. Правила проектирования

Дата актуализации: 10.08.2017

СП 137.13330.2012

Жилая среда с планировочными элементами, доступными инвалидам. Правила проектирования

Обозначение: СП 137.13330.2012
Обозначение англ: SP 137.13330.2012
Статус:действует
Название рус.:Жилая среда с планировочными элементами, доступными инвалидам. Правила проектирования
Название англ.:Residential environment with planning components, accessible for physicapped persons
Дата добавления в базу:01.10.2014
Дата актуализации:05.05.2017
Дата введения:01.07.2013
Область применения:Cвод правил распространяется на проектирование жилых домов массового строительства, включая блокированные и жилые дома фонда социального использования, жилых частей общежитий, гостиниц, домов отдыха, пансионатов и других зданий временного пребывания, а также жилых помещений в составе общественных зданий с целью обеспечения условий проживания инвалидов. Допускается применение положений настоящего свода правил при проектировании одноквартирных, в том числе усадебных, жилых домов и коттеджей с включением соответствующего указания в задание на проектирование. Положения настоящего свода правил не распространяются на проектирование специализированных жилых зданий и комплексов (дома-интернаты для инвалидов и престарелых, дома-интернаты для детей-инвалидов, психоневрологические интернаты, пансионаты для людей с нарушением слуха и др., аналогичные по функции, ввиду специфики технологических требований к их проектированию, обслуживания, а также контингента проживающих в указанных учреждениях), на проектирование медицинских учреждений, включая санаторные, а также на здания и сооружения, части зданий, сооружений и участки, в которые по заданию на проектирование не предусмотрен доступ инвалидов.
Оглавление:1 Область применения
2 Нормативные ссылки
3 Термины и определения
4 Общие положения
5 Требования к земельным участкам
6 Требования к зданиям
7 Требования к помещениям
   7.1 Общие положения
   7.2 Жилые комнаты (в квартирах, жилых ячейках и номерах)
   7.3 Вспомогательные помещения
   7.4 Кухни
   7.5 Санитарно-гигиенические помещения
   7.6 Летние помещения
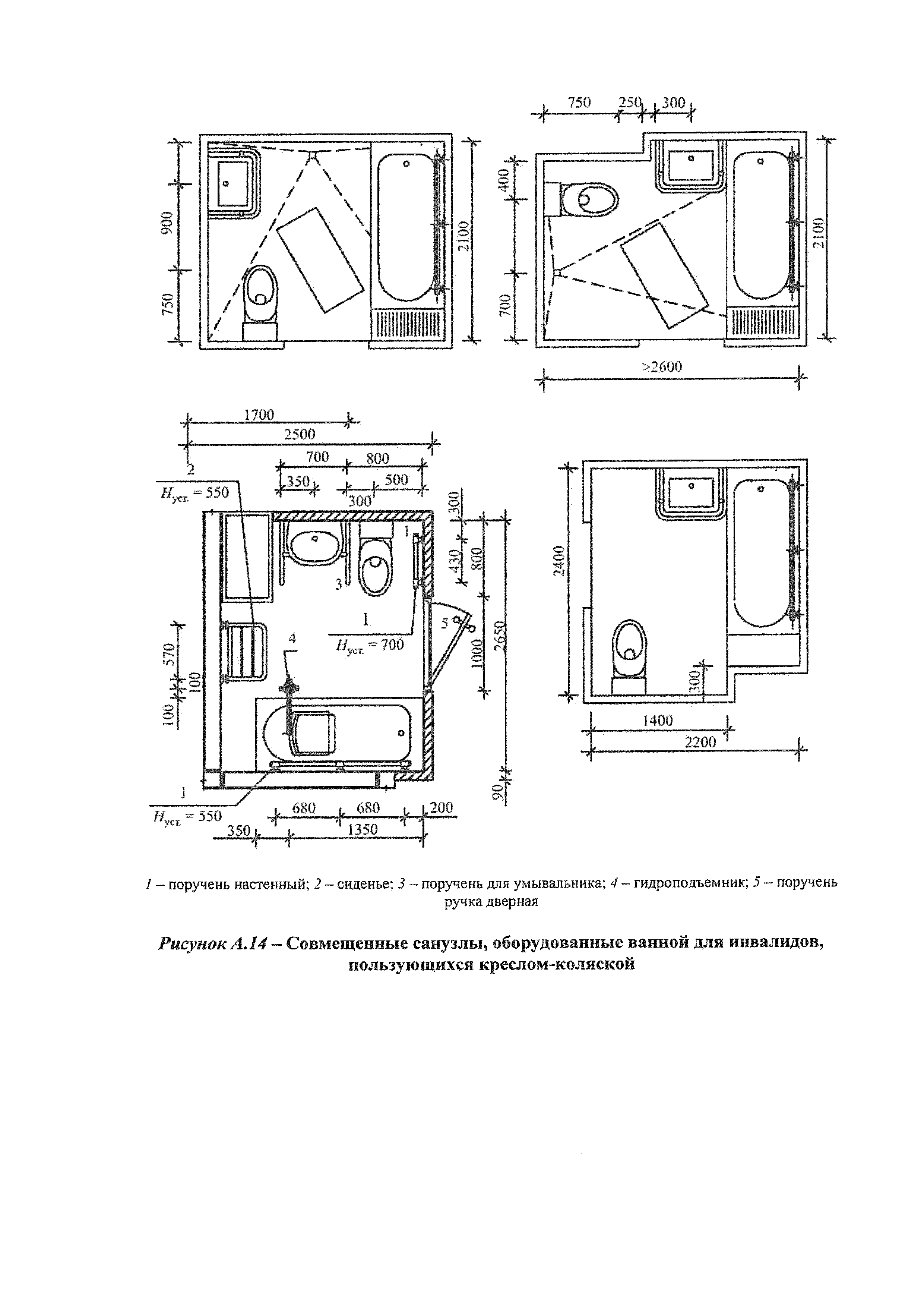
Приложение А (справочное) Примеры устройства элементов жилой среды с учетом обеспечения требований доступности для инвалидов
Библиография
Разработан: ОАО Институт общественных и жилых зданий, сооружений и комплексов
Утверждён:27.12.2012 Федеральное агентство по строительству и жилищно-коммунальному хозяйству (119/ГС)
Издан: ФАУ ФЦС (2012 г. )
Расположен в:Техническая документация Экология СТРОИТЕЛЬНЫЕ МАТЕРИАЛЫ И СТРОИТЕЛЬСТВО Строительство Жилые здания Строительство Нормативные документы Документы Системы нормативных документов в строительстве Нормативные документы по градостроительству, зданиям и сооружениям к.35 Обеспечение доступной среды жизнедеятельности для инвалидов и других маломобильных групп населения
Список изменений:
Нормативные ссылки:
СП 137.13330.2012СП 137.13330.2012СП 137.13330.2012СП 137.13330.2012СП 137.13330.2012СП 137.13330.2012СП 137.13330.2012СП 137.13330.2012СП 137.13330.2012СП 137.13330.2012СП 137.13330.2012СП 137.13330.2012СП 137.13330.2012СП 137.13330.2012СП 137.13330.2012СП 137.13330.2012СП 137.13330.2012СП 137.13330.2012СП 137.13330.2012СП 137.13330.2012СП 137.13330.2012СП 137.13330.2012СП 137.13330.2012СП 137.13330.2012СП 137.13330.2012СП 137.13330.2012СП 137.13330.2012СП 137.13330.2012СП 137.13330.2012СП 137.13330.2012СП 137.13330.2012СП 137.13330.2012СП 137.13330.2012СП 137.13330.2012СП 137.13330.2012СП 137.13330.2012

Текстовое изменение № от 01.04.2017

№ № № № № № № № № № № № № № № № № № № № № № № № № № № № № № № № № № №

© 2013 Ёшкин Кот :-) Карта сайта