| ||||||||||||||||||||||||||||||||
Скачать РМД 35-17-2012 Санкт-Петербург Рекомендуемые для повторного применения проектных решения по обеспечению доступности для инвалидов и других маломобильных групп населения жилых домов, построенных в Санкт-Петербурге по типовым проектам в 60 - 80 годах ХХ векаДата актуализации: 10.08.2017
|
| Обозначение: | РМД 35-17-2012 Санкт-Петербург |
| Обозначение англ: | 35-17-2012 Санкт-Петербург |
| Статус: | действует |
| Название рус.: | Рекомендуемые для повторного применения проектных решения по обеспечению доступности для инвалидов и других маломобильных групп населения жилых домов, построенных в Санкт-Петербурге по типовым проектам в 60 - 80 годах ХХ века |
| Дата добавления в базу: | 01.10.2014 |
| Дата актуализации: | 05.05.2017 |
| Область применения: | Рекомендации регионального методического документа направлены на создание полноценной архитектурной среды в соответствии со специфическими требованиями маломобильной группы населения, путем применения необходимых реконструкционных мероприятий к отдельным частям зданий, оснащением современным оборудованием и мебелью, обеспечивающими необходимый уровень доступности, безопасности и стандарта обслуживания. Действие РМД распространяется на проектирование реконструкционных мероприятий в жилых зданиях Санкт- Петербурга, построенных по типовым проектам в 60 - 80 годах ХХ века, при их реконструкции и капитальном ремонте. Документ предназначается для всех участников градостроительной деятельности, государственных органов управления и надзора, в том числе органов экспертизы, при включении их в задание на проектирование, утвержденное в установленном порядке. Положения методического документа являются обязательными для выполнения при включении требования руководствоваться данным документом в договоры (контракты), задания на проектирование, нормативные документы (стандарты) организаций, в том числе саморегулируемых. |
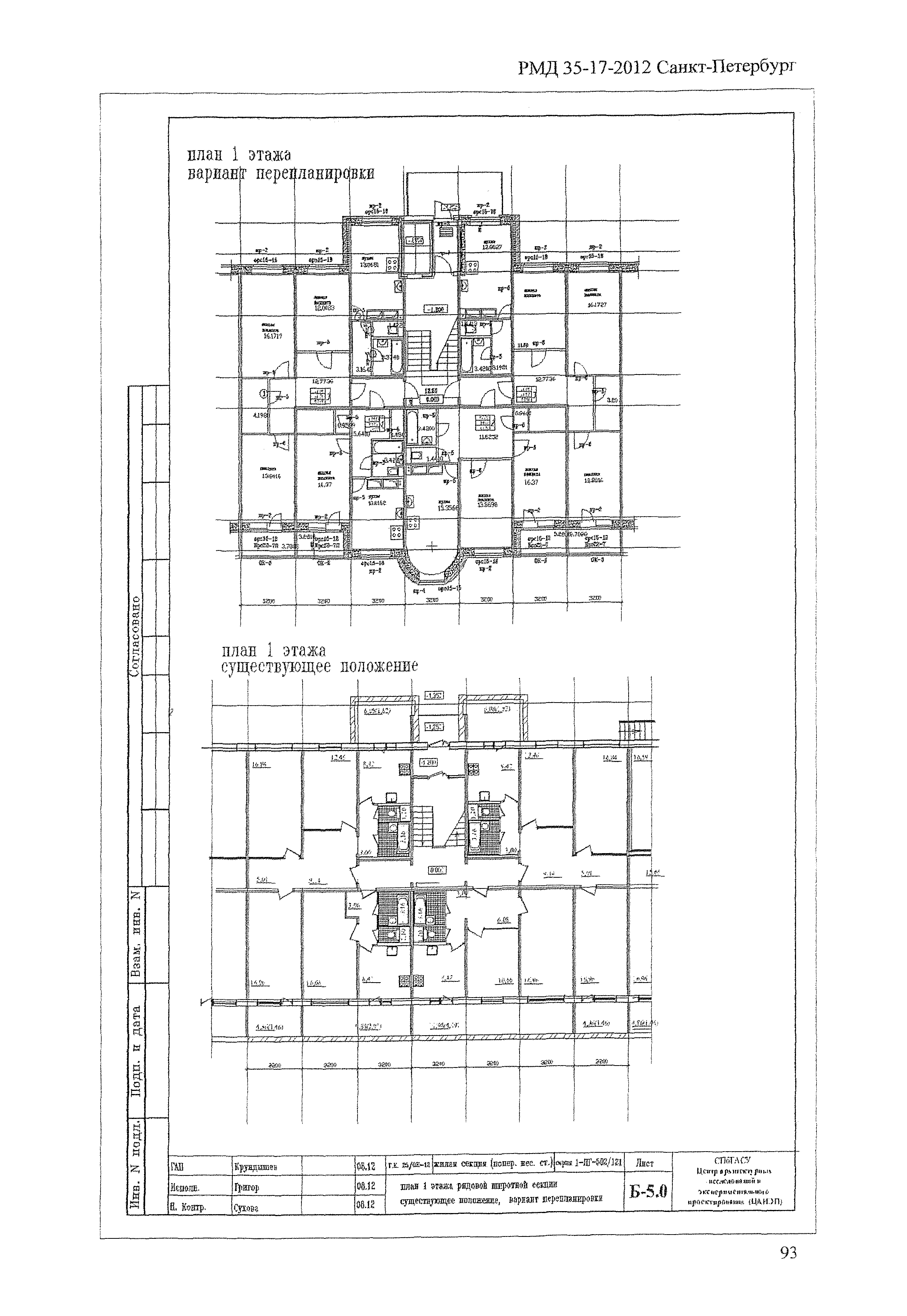
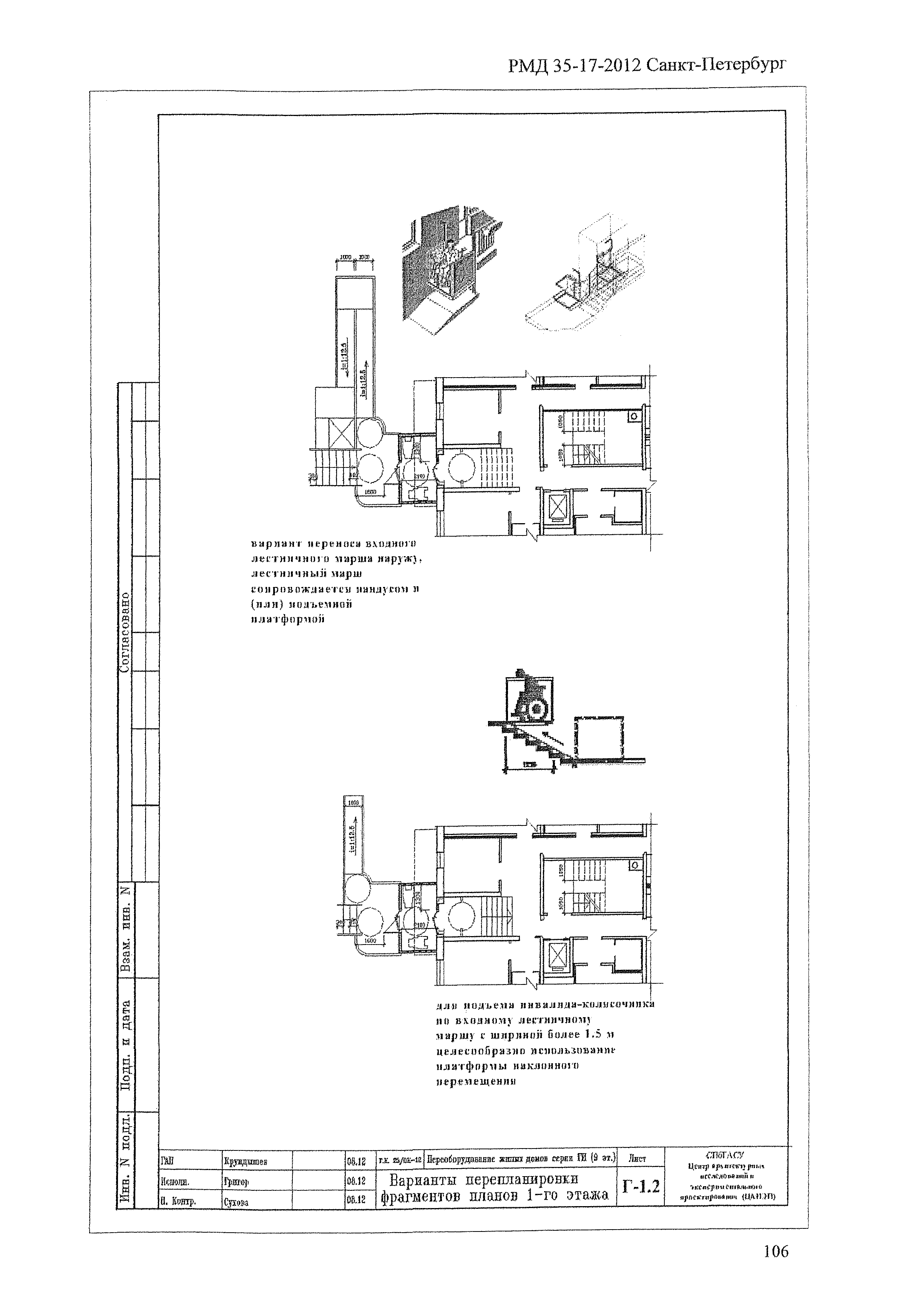
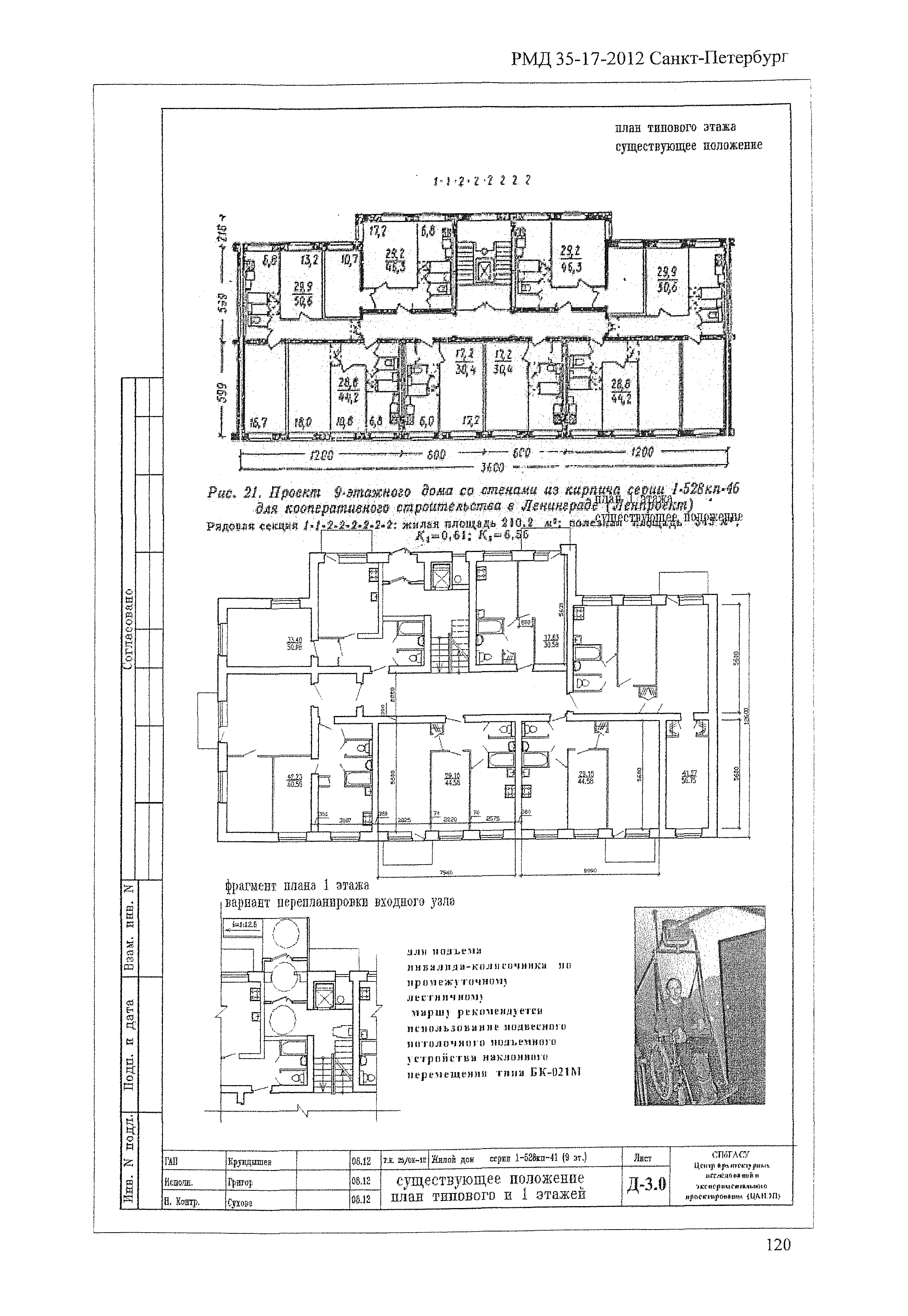
| Оглавление: | Введение 1 Область применения 2 Нормативные ссылки 3 Термины и определения 4 Общие положения 5 Жилые дома, построенные по типовым проектам в 60 - 80-х годах ХХ века 6 Требования к обеспечению доступности территорий земельных участков 7 Требования к к обеспечению доступности зданий 7.1 Входная группа помещений 7.2 Вестибюльная группа помещений 7.3 Вертикальные коммуникации (архитектурные элементы и технические средства доступности) 7.4 Поэтажные коммуникационные пространства 7.5 Входы в помещения 7.6 Пожаробезопасная зона 8 Квартиры и их помещения 8.1 Условия доступности внутри помещений 8.2 Жилые комнаты 8.3 Вспомогательные помещения 8.4 Кухни 8.5 Санитарные узлы 8.6 Открытые помещения 8.7 Расчет стоимости предлагаемых мероприятий Библиография Приложение А (справочное) Приспособление безлифтовых жилых секций с продольными несущими стенами к условиям передвижения инвалидов-колясочников Приложение Б (справочное) Приспособление безлифтовых жилых секций с поперечными несущими стенами к условиям передвижения инвалидов-колясочников Приложение В (справочное) Приспособление каркасных безлифтовых жилых секций к условиям передвижения инвалидов-колясочников Приложение Г (справочное) Приспособление односекционных точечных жилых секций с лифтами к условиям передвижения инвалидов-колясочников Приложение Д (справочное) Приспособление жилых секций с продольными несущими стенами с лифтами к условиям передвижения инвалидов-колясочников Приложение Е (справочное) Приспособление жилых секций с поперечными несущими стенами с лифтами к условиям передвижения инвалидов-колясочников |
| Разработан: | СПбГАСУ |
| Утверждён: | 24.12.2012 Комитет по строительству Правительства Санкт-Петербурга (152) |
| Принят: | Комитет по градостроительству и архитектуре Администрации Санкт-Петербурга (Committee on Urban Planning and Architecture, Administration of St. Petersburg ) Служба государственного строительного надзора и экспертизы Санкт-Петербурга Жилищный комитет Санкт-Петербурга Комитет по социальной политике Санкт-Петербурга Управление Роспотребнадзора по г. Санкт-Петербург |
| Издан: | Администрация Санкт-Петербурга (2013 г. ) |
| Расположен в: | |
| Нормативные ссылки: |
|












































































































































