Информационная система
«Ёшкин Кот»

Скачать базу одним архивом
Скачать обновления
История создания базы
Карта сайта

Скачать 52-03 Рекомендации по устройству пунктов мойки (очистки) колес автотранспорта на строительной площадке

Дата актуализации: 10.08.2017

52-03

Рекомендации по устройству пунктов мойки (очистки) колес автотранспорта на строительной площадке

Обозначение: 52-03
Обозначение англ: 52-03
Статус:действует
Название рус.:Рекомендации по устройству пунктов мойки (очистки) колес автотранспорта на строительной площадке
Дата добавления в базу:01.09.2013
Дата актуализации:05.05.2017
Область применения:Рекомендации содержат основные требования по устройству пунктов мойки (очистки) колес, методические указания по расчету потребности в воде и электроэнергии, подбору состава комплектов постов, привязки их в составе стройгенпланов.
Оглавление:1 Общие положения
2 Расчет потребности в воде и электроэнергии при эксплуатации пунктов мойки (очистки) колес
3 Порядок согласования конструктивного решения пункта мойки (очистки) колес автотранспорта
4 Посадка пункта мойки (очистки) колес на строительном генеральном плане
5 Указания по эксплуатации пунктов мойки (очистки) колес
6 Перечень использованных нормативных документов и литературы
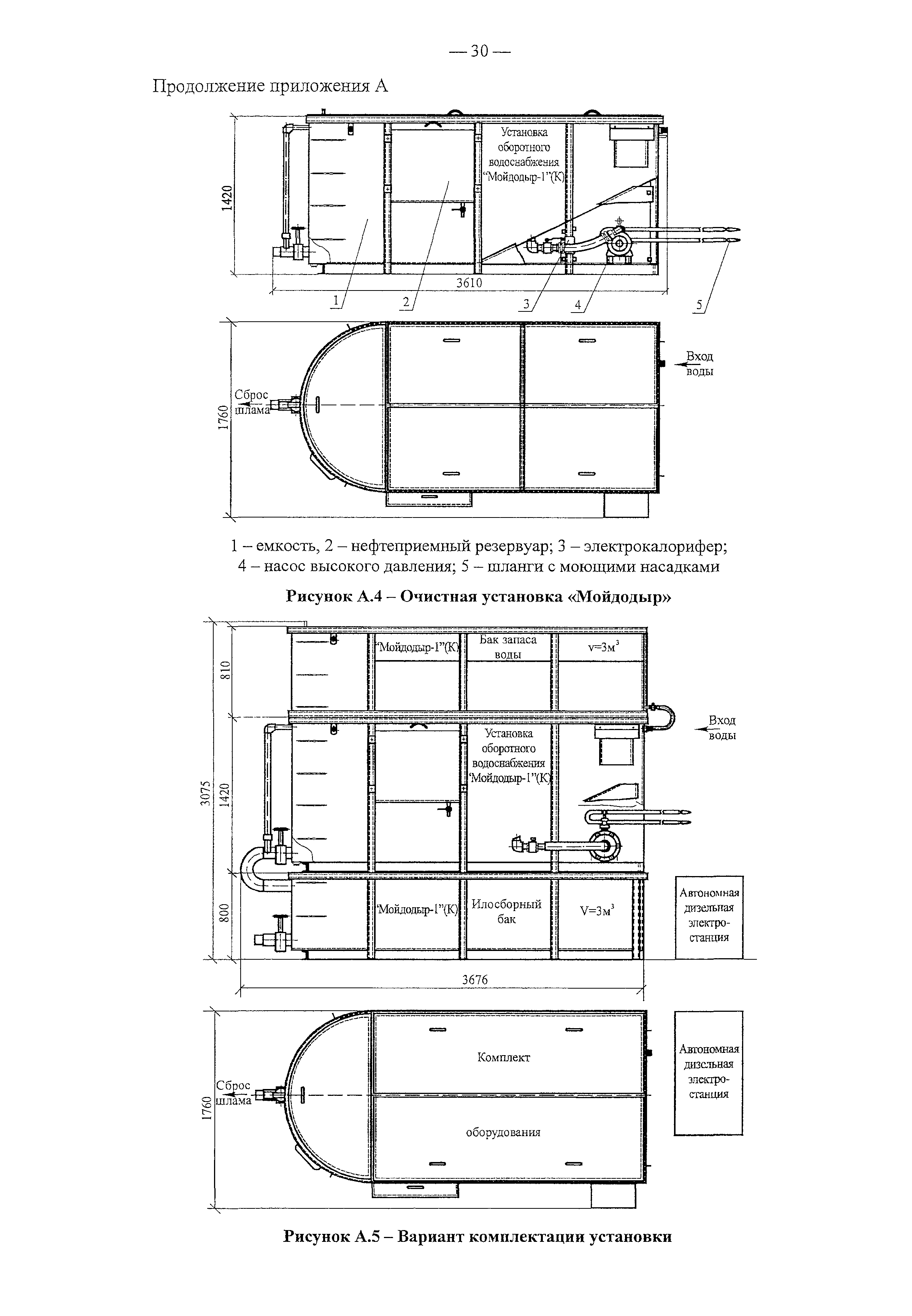
Приложение А. Технические характеристики оборудования для устройства пунктов мойки (очистки) колес автотранспорта
Приложение Б. Системы оборотного водоснабжения для пунктов мойки (очистки) колес автотранспорта
Приложение В. Устройство и эксплуатация пункта мойки (очистки) колес автотранспорта
Приложение Г. Технические характеристики автотранспортных средств
Приложение Д. Вариант схемы монтажа оборудования пункта мойки (очистки) колес автотранспорта
Приложение Е. Форма акта приемки работ подготовительного периода
Приложение Ж. Форма акта о соответствии выполненных внеплощадочных и внутриплощадочных подготовительных работ требованиям безопасности труда и готовности объекта к началу строительства
Приложение И. Перечень рекомендованных спецодежды, спецобуви и других средств индивидуальной защиты для персонала пунктов мойки
Разработан: ОАО ПКТИпромстрой
Утверждён:09.09.2003 ОАО ПКТИпромстрой (PKTIpromstroy OAO )
Издан: ОАО ПКТИпромстрой (2003 г. )
Расположен в:Техническая документация Экология СТРОИТЕЛЬНЫЕ МАТЕРИАЛЫ И СТРОИТЕЛЬСТВО Строительное оборудование Строительство Справочные документы Директивные письма, положения, рекомендации и др.
Нормативные ссылки:
52-0352-0352-0352-0352-0352-0352-0352-0352-0352-0352-0352-0352-0352-0352-0352-0352-0352-0352-0352-0352-0352-0352-0352-0352-0352-0352-0352-0352-0352-0352-0352-0352-0352-0352-0352-0352-0352-0352-0352-0352-0352-0352-0352-0352-0352-0352-0352-0352-0352-0352-0352-0352-0352-0352-0352-0352-0352-03

© 2013 Ёшкин Кот :-) Карта сайта