Информационная система
«Ёшкин Кот»

Скачать базу одним архивом
Скачать обновления
История создания базы
Карта сайта

Скачать СТО 89531747-001-2010 Альбом типовых решений по оконным и балконным дверным блокам для жилых домов массовых серий. Рекомендации по выбору проектных решений и технико-экономические расчеты

Дата актуализации: 10.08.2017

СТО 89531747-001-2010

Альбом типовых решений по оконным и балконным дверным блокам для жилых домов массовых серий. Рекомендации по выбору проектных решений и технико-экономические расчеты

Обозначение: СТО 89531747-001-2010
Обозначение англ: STO 89531747-001-2010
Статус:не действует
Название рус.:Альбом типовых решений по оконным и балконным дверным блокам для жилых домов массовых серий. Рекомендации по выбору проектных решений и технико-экономические расчеты
Дата добавления в базу:01.09.2013
Дата актуализации:05.05.2017
Область применения:Документ содержит информацию, обобщающую основные технические требования к светопрозрачным конструкциям жилых и общественных зданий.
Оглавление:1. Введение
2. Область применения
3. Нормативные ссылки
4. Светопрозрачные ограждающие конструкции. Термины и определения
5. Классификация, типы и условные обозначения
   5.1 Функциональное назначение зданий и помещений
   5.2 Классификация гражданских зданий
   5.3 Унификация и типизация в строительстве
   5.4 Классификация жилых зданий
   5.5 Функциональные, санитарно-гигиенические и физико-технические требования к жилищам с учетом природно-климатических и других местных условий
   5.6 Классификация светопрозрачных конструкций
   5.7 Классификация оконных блоков
6. Окна с переплетами из ПВХ профиля
   6.1 Общие сведения
   6.2 Конструктивные решения оконных профилей из ПВХ
   6.3 Конструктивные решения оконных блоков из ПВХ профилей
   6.4 Классификация и условные обозначения
   6.5 Технические требования к оконным блокам из ПВХ профилей
   6.6 Требования к оконным приборам
   6.7 Комплектность и приемка готовых изделий
   6.8 Технология производства окон из ПВХ профилей
7. Окна с переплетами из деревянного бруса
   7.1 Общие сведения
   7.2 Древесина как материал для производства оконных профилей
   7.3 Технология производства оконных блоков из деревянного бруса
   7.4 Конструктивные решения оконных профилей из дерева
   7.5 Классификация и условные обозначения
   7.6 Технические требования к оконным блокам из дерева
   7.7 Требования к древесине, включая отделку поверхностей
   7.8 Фурнитура для окон из деревянного бруса
8. Нормативно-технические требования
   8.1 Общие положения
   8.2 Нормативные требования к безопасности
   8.3 Общие требования к обеспечению безопасности строительных материалов, изделий и конструкций, а также их энергоэффективности
   8.4 Технические требования, характеризующие качество продукции
   8.5 Технические требования к оконным и дверным балконным блокам
      8.5.1 Основные требования
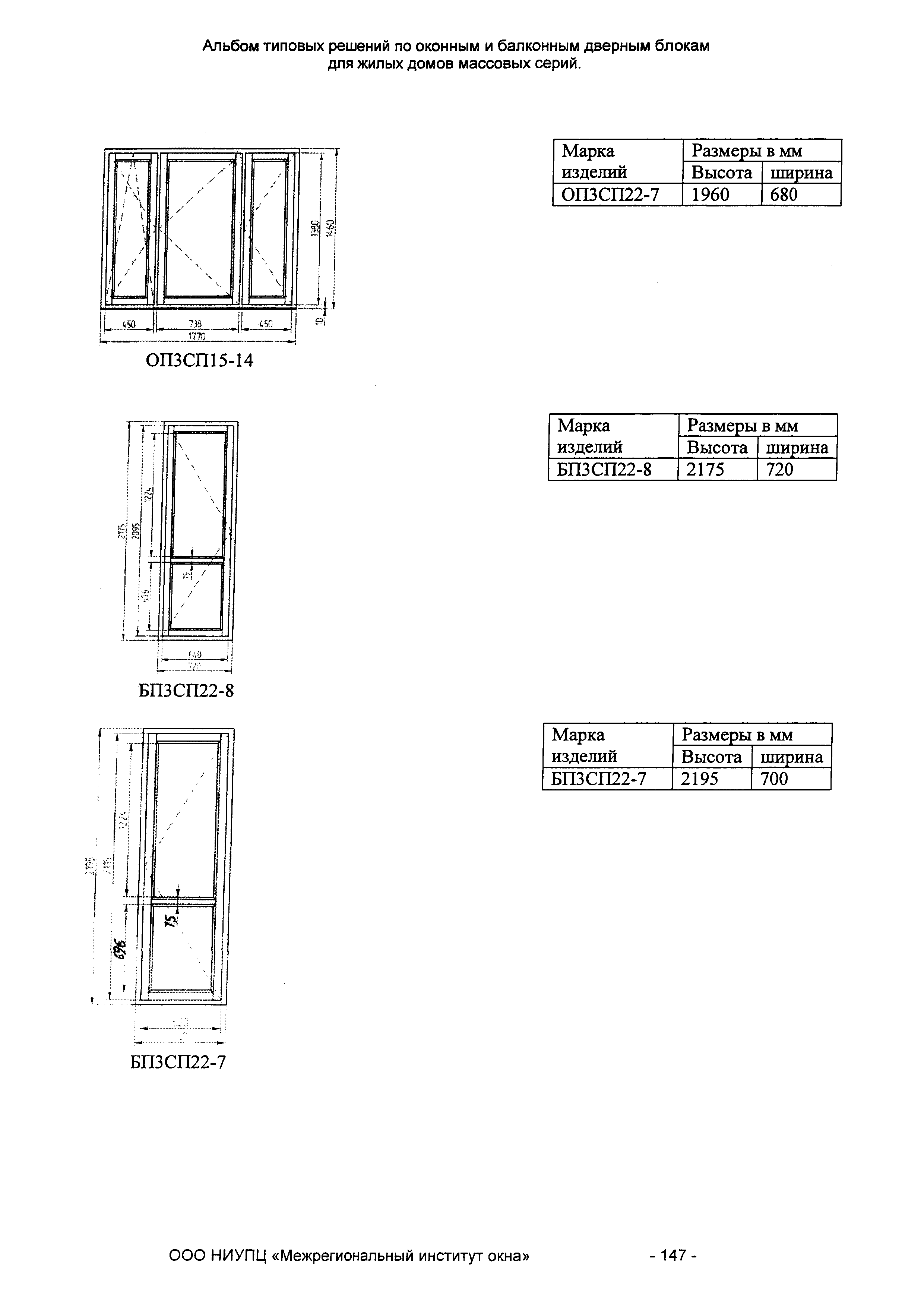
      8.5.2 размеры и предельные отклонения
      8.5.3 Требования к конструкции
      8.5.4 Требования к надежности и сопротивлению нагрузкам
      8.5.5 Эргономические требования
      8.5.6 Требования к материалам и комплектующим
   8.6 Основные понятия в области технического регулирования
9. Современные окна и обеспечение воздухообмена жилых помещений
   9.1 Вентиляционные устройства, применяемые с оконными конструкциями
   9.2 Обеспечение воздухообмена с помощью устройств фурнитуры
10. Архитектурные возможности окон и жилые дома массовых серий
   10.1 Форма окон (описательно, общая информация)
   10.2 Роль и значение данного раздела в Альбоме
   10.3 Типовые серии жилых домов
   10.4 Технологии
   10.5 Массовые серии домов
   10.6 Проблемы и перспективы высотного домостроения
   10.7 Проект санации панельных жилых домов
   10.8 Остекление пятиэтажных домов массовых серий
            Данные по массовым сериям жилых домов
   10.9 Жилые дома в массовых сериях и ОБ в них
11. Экономические аспекты производства и комплектации по оконным и балконным дверным блокам
   11.1 Специфика экономики современной России
   11.2 Структура себестоимости производства
   11.3 Расчет себестоимости
   11.4 Калькуляция материалов и затрат на производство ОБ домов массовых серий. Комплектация. Расчетные таблицы расхода основных элементов на изготовление блоков
12. Требования к комплектации и маркировке изделий. Контроль и приемка
   12.1 Комплектность заводской поставки
   12.2 Маркировка изделий и материалов
   12.3 Правила приемки на заводе
   12.4 Методы входного контроля на заводе
   12.5 Упаковка, транспортировка и хранение
   12.6 Входной контроль и приемка на стройплощадке
   12.7 Монтаж изделий
13. Эксплуатация и техническое обслуживание. Правила эксплуатации оконной фурнитуры. Пример из рекомендаций завода-изготовителя
14. Гарантии
15. Требования безопасности
16. Приложения. Таблицы. Рисунки. Графики. Положение "О подготовке тендерной документации". Рекомендации
Разработан: ООО Рото Франк
ООО НИУПЦ Межрегиональный институт окна
Утверждён:27.08.2010 ООО НИУПЦ Межрегиональный институт окна
27.08.2010 ООО Рото Франк
Издан: ООО НИУПЦ Межрегиональный институт окна (2010 г. )
Расположен в:Техническая документация
Нормативные ссылки:
СТО 89531747-001-2010СТО 89531747-001-2010СТО 89531747-001-2010СТО 89531747-001-2010СТО 89531747-001-2010СТО 89531747-001-2010СТО 89531747-001-2010СТО 89531747-001-2010СТО 89531747-001-2010СТО 89531747-001-2010СТО 89531747-001-2010СТО 89531747-001-2010СТО 89531747-001-2010СТО 89531747-001-2010СТО 89531747-001-2010СТО 89531747-001-2010СТО 89531747-001-2010СТО 89531747-001-2010СТО 89531747-001-2010СТО 89531747-001-2010СТО 89531747-001-2010СТО 89531747-001-2010СТО 89531747-001-2010СТО 89531747-001-2010СТО 89531747-001-2010СТО 89531747-001-2010СТО 89531747-001-2010СТО 89531747-001-2010СТО 89531747-001-2010СТО 89531747-001-2010СТО 89531747-001-2010СТО 89531747-001-2010СТО 89531747-001-2010СТО 89531747-001-2010СТО 89531747-001-2010СТО 89531747-001-2010СТО 89531747-001-2010СТО 89531747-001-2010СТО 89531747-001-2010СТО 89531747-001-2010СТО 89531747-001-2010СТО 89531747-001-2010СТО 89531747-001-2010СТО 89531747-001-2010СТО 89531747-001-2010СТО 89531747-001-2010СТО 89531747-001-2010СТО 89531747-001-2010СТО 89531747-001-2010СТО 89531747-001-2010СТО 89531747-001-2010СТО 89531747-001-2010СТО 89531747-001-2010СТО 89531747-001-2010СТО 89531747-001-2010СТО 89531747-001-2010СТО 89531747-001-2010СТО 89531747-001-2010СТО 89531747-001-2010СТО 89531747-001-2010СТО 89531747-001-2010СТО 89531747-001-2010СТО 89531747-001-2010СТО 89531747-001-2010СТО 89531747-001-2010СТО 89531747-001-2010СТО 89531747-001-2010СТО 89531747-001-2010СТО 89531747-001-2010СТО 89531747-001-2010СТО 89531747-001-2010СТО 89531747-001-2010СТО 89531747-001-2010СТО 89531747-001-2010СТО 89531747-001-2010СТО 89531747-001-2010СТО 89531747-001-2010СТО 89531747-001-2010СТО 89531747-001-2010СТО 89531747-001-2010СТО 89531747-001-2010СТО 89531747-001-2010СТО 89531747-001-2010СТО 89531747-001-2010СТО 89531747-001-2010СТО 89531747-001-2010СТО 89531747-001-2010СТО 89531747-001-2010СТО 89531747-001-2010СТО 89531747-001-2010СТО 89531747-001-2010СТО 89531747-001-2010СТО 89531747-001-2010СТО 89531747-001-2010СТО 89531747-001-2010СТО 89531747-001-2010СТО 89531747-001-2010СТО 89531747-001-2010СТО 89531747-001-2010СТО 89531747-001-2010СТО 89531747-001-2010СТО 89531747-001-2010СТО 89531747-001-2010СТО 89531747-001-2010СТО 89531747-001-2010СТО 89531747-001-2010СТО 89531747-001-2010СТО 89531747-001-2010СТО 89531747-001-2010СТО 89531747-001-2010СТО 89531747-001-2010СТО 89531747-001-2010СТО 89531747-001-2010СТО 89531747-001-2010СТО 89531747-001-2010СТО 89531747-001-2010СТО 89531747-001-2010СТО 89531747-001-2010СТО 89531747-001-2010СТО 89531747-001-2010СТО 89531747-001-2010СТО 89531747-001-2010СТО 89531747-001-2010СТО 89531747-001-2010СТО 89531747-001-2010СТО 89531747-001-2010СТО 89531747-001-2010СТО 89531747-001-2010СТО 89531747-001-2010СТО 89531747-001-2010СТО 89531747-001-2010СТО 89531747-001-2010СТО 89531747-001-2010СТО 89531747-001-2010СТО 89531747-001-2010СТО 89531747-001-2010СТО 89531747-001-2010СТО 89531747-001-2010СТО 89531747-001-2010СТО 89531747-001-2010СТО 89531747-001-2010СТО 89531747-001-2010СТО 89531747-001-2010СТО 89531747-001-2010СТО 89531747-001-2010СТО 89531747-001-2010СТО 89531747-001-2010СТО 89531747-001-2010СТО 89531747-001-2010СТО 89531747-001-2010СТО 89531747-001-2010СТО 89531747-001-2010СТО 89531747-001-2010СТО 89531747-001-2010СТО 89531747-001-2010СТО 89531747-001-2010СТО 89531747-001-2010СТО 89531747-001-2010СТО 89531747-001-2010СТО 89531747-001-2010СТО 89531747-001-2010СТО 89531747-001-2010СТО 89531747-001-2010СТО 89531747-001-2010СТО 89531747-001-2010СТО 89531747-001-2010СТО 89531747-001-2010СТО 89531747-001-2010СТО 89531747-001-2010СТО 89531747-001-2010СТО 89531747-001-2010СТО 89531747-001-2010СТО 89531747-001-2010СТО 89531747-001-2010СТО 89531747-001-2010СТО 89531747-001-2010СТО 89531747-001-2010СТО 89531747-001-2010СТО 89531747-001-2010СТО 89531747-001-2010СТО 89531747-001-2010СТО 89531747-001-2010СТО 89531747-001-2010СТО 89531747-001-2010СТО 89531747-001-2010СТО 89531747-001-2010СТО 89531747-001-2010СТО 89531747-001-2010СТО 89531747-001-2010СТО 89531747-001-2010СТО 89531747-001-2010СТО 89531747-001-2010СТО 89531747-001-2010СТО 89531747-001-2010СТО 89531747-001-2010СТО 89531747-001-2010СТО 89531747-001-2010СТО 89531747-001-2010СТО 89531747-001-2010СТО 89531747-001-2010СТО 89531747-001-2010СТО 89531747-001-2010СТО 89531747-001-2010СТО 89531747-001-2010СТО 89531747-001-2010СТО 89531747-001-2010СТО 89531747-001-2010СТО 89531747-001-2010СТО 89531747-001-2010СТО 89531747-001-2010СТО 89531747-001-2010СТО 89531747-001-2010СТО 89531747-001-2010СТО 89531747-001-2010СТО 89531747-001-2010СТО 89531747-001-2010СТО 89531747-001-2010СТО 89531747-001-2010СТО 89531747-001-2010СТО 89531747-001-2010СТО 89531747-001-2010СТО 89531747-001-2010СТО 89531747-001-2010СТО 89531747-001-2010СТО 89531747-001-2010СТО 89531747-001-2010СТО 89531747-001-2010СТО 89531747-001-2010СТО 89531747-001-2010СТО 89531747-001-2010СТО 89531747-001-2010СТО 89531747-001-2010СТО 89531747-001-2010СТО 89531747-001-2010СТО 89531747-001-2010СТО 89531747-001-2010СТО 89531747-001-2010СТО 89531747-001-2010СТО 89531747-001-2010СТО 89531747-001-2010СТО 89531747-001-2010СТО 89531747-001-2010СТО 89531747-001-2010СТО 89531747-001-2010СТО 89531747-001-2010СТО 89531747-001-2010СТО 89531747-001-2010СТО 89531747-001-2010СТО 89531747-001-2010СТО 89531747-001-2010СТО 89531747-001-2010СТО 89531747-001-2010СТО 89531747-001-2010СТО 89531747-001-2010СТО 89531747-001-2010СТО 89531747-001-2010СТО 89531747-001-2010СТО 89531747-001-2010СТО 89531747-001-2010СТО 89531747-001-2010СТО 89531747-001-2010СТО 89531747-001-2010СТО 89531747-001-2010СТО 89531747-001-2010СТО 89531747-001-2010СТО 89531747-001-2010СТО 89531747-001-2010СТО 89531747-001-2010СТО 89531747-001-2010СТО 89531747-001-2010СТО 89531747-001-2010СТО 89531747-001-2010СТО 89531747-001-2010СТО 89531747-001-2010СТО 89531747-001-2010СТО 89531747-001-2010СТО 89531747-001-2010СТО 89531747-001-2010

© 2013 Ёшкин Кот :-) Карта сайта