Скачать СТО СА 03-002-2009 Правила проектирования, изготовления и монтажа вертикальных цилиндрических стальных резервуаров для нефти и нефтепродуктовДата актуализации: 10.08.2017 СТО СА 03-002-2009
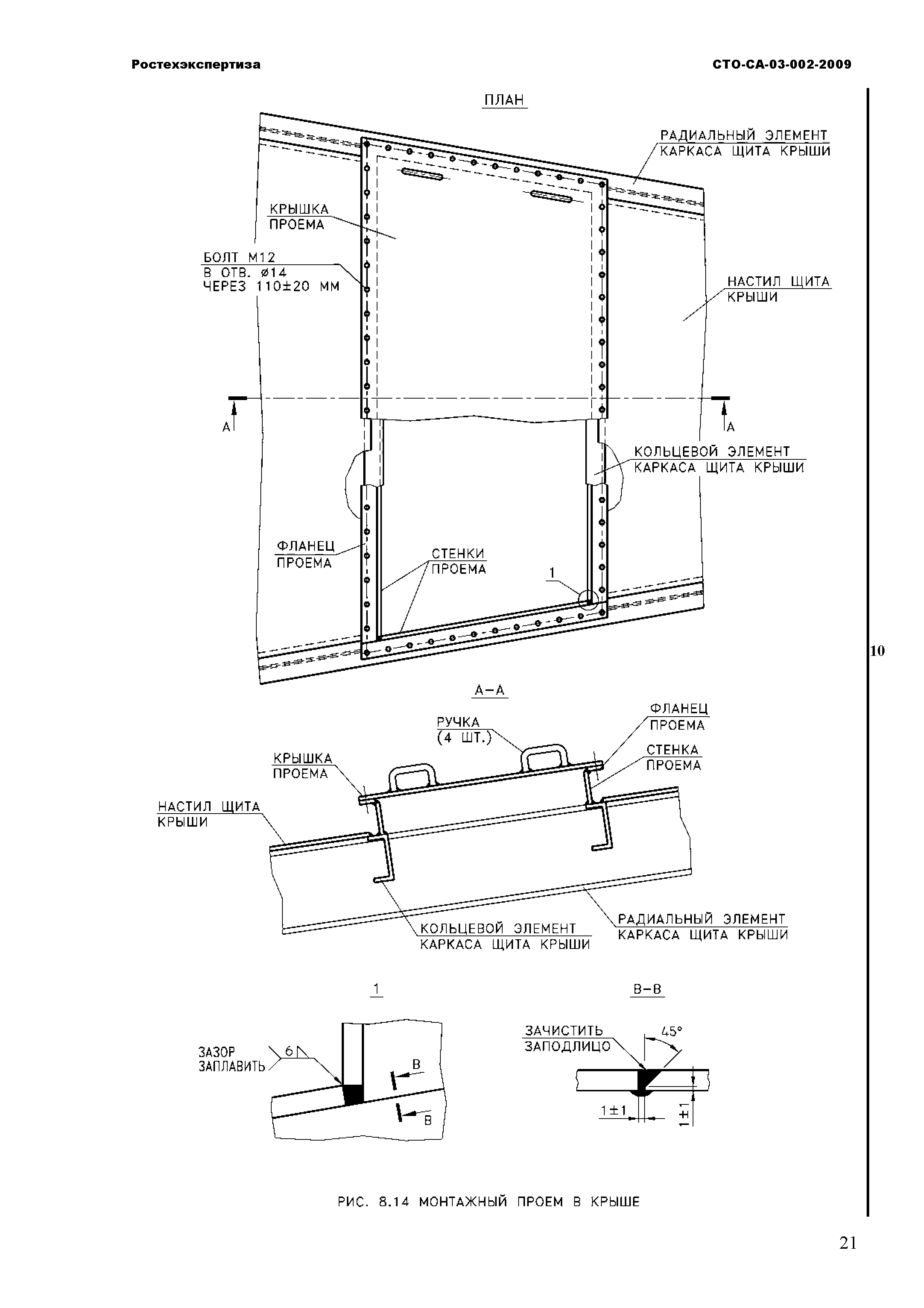
Правила проектирования, изготовления и монтажа вертикальных цилиндрических стальных резервуаров для нефти и нефтепродуктов| Обозначение: | СТО СА 03-002-2009 | | Обозначение англ: | 03-002-2009 | | Статус: | действует | | Название рус.: | Правила проектирования, изготовления и монтажа вертикальных цилиндрических стальных резервуаров для нефти и нефтепродуктов | | Дата добавления в базу: | 01.09.2013 | | Дата актуализации: | 05.05.2017 | | Дата введения: | 01.07.2009 | | Область применения: | Стандарт организации распространяется на резервуары стальные вертикальные цилиндрические для хранения нефти и нефтепродуктов под избыточным давлением близким к атмосферному | | Оглавление: | 1. Область применения Стандарта 2. Нормативные ссылки 3. Термины и определения 4. Обозначения и сокращения 4.1. Принятые сокращения 4.2. Обозначения 5. Общие положения 6. Классификация и основные типы резервуаров 7. Материалы 7.1. Общие требования к материалам 7.2. Химический состав и свариваемость 7.3. Механические свойства и твердость 7.4. Расчетная температура металла 7.5. Требования к ударной вязкости 7.6. Сортамент листового проката 7.7. Рекомендуемые стали 7.8. Толщины проката для изготовления конструктивных элементов резервуара 8. Конструкции резервуаров 8.1. Сварные соединения и швы 8.2. Стенки 8.3. Днища 8.4. Кольца жесткости на стенке 8.5. Стационарные крыши 8.6. Патрубки и люки в стенке резервуара (врезки в стенку) 8.7. Патрубки и люки в крыше 8.8. Площадки, лестницы, ограждения 8.9. Понтоны 8.10. Плавающие крыши 8.11. Анкерное крепление стенки 8.12. Конструкции для зачистки 9. Расчет конструкции резервуара 9.1. Основные положения 9.2. Расчет стенки 9.3. Расчет стационарных крыш 9.4. Расчет плавающих крыш и понтонов 9.5. Допускаемые нагрузки на патрубки врезок в стенку резервуара 9.6. Расчет сейсмостойких резервуаров 9.7. Защита резервуаров от стихийного воздействия водного потока 10. Основания и фундаменты 10.1. Основные положения 10.2. Расчет нагрузок на основание и фундамент резервуара 10.3. Конструктивные решения фундаментов 11. Защита резервуаров от коррозии 12. Оборудование резервуаров 12.1. Общие требования 12.2. Приемо-раздаточные устройства 12.3. Устройства тушения пожара 12.4. Устройства специального назначения 13. Вентиляция резервуаров 13.1. Общие требования 13.2. Дыхательные клапаны 13.3. Вентиляционные патрубки 13.4. Аварийное вентилирование 14. Молниезащита и защита от статического электричества 15. Рекомендации по устройству теплоизоляции 16. Изготовление конструкций резервуаров 16.1. Общие требования 16.2. Изготовление нерулонируемых конструкций 16.3. Изготовление рулонируемых конструкций 17. Монтаж 18. Сварка 18.1. Общие требования 18.2. Рекомендуемые способы сварки 18.3. Требования к подготовке и сборке конструкций под сварку 18.4. Требования к технологии сварки 18.5. Термообработка врезок в стенку резервуаров 19. Контроль 19.1. Общие требования 19.2. Входной контроль конструкторской документации 19.3. Входной контроль материалов 19.4. Внешний осмотр 19.5. Измерения 19.6. Контроль герметичности 19.7. Физические методы контроля 20. Испытания и приемка резервуаров 21. Обеспечение надежности резервуаров при эксплуатации 21.1. Общие требования 21.2. Оценка технического состояния резервуаров Приложение П.1. Условные обозначения и размерности используемых величин Приложение П.2. Форма технического задания на проектирование резервуара Приложение П.3. Основные типы и обозначения сварных соединений Приложение П.4. Расчетные сочетания нагрузок Приложение П.5. Пример расчета стенки резервуара объемом 50000 м куб. из условия прочности Приложение П.6. Геометрические характеристики прокатных профилей с учетом припуска на коррозию Приложение П.7. Пример расчета сейсмостойкости резервуара Приложение П.8. Защита резервуаров, возводимых в прибрежных зонах рек, морей и океанов от стихийного воздействия водного потока Приложение П.9. Форма сертификата качества на конструкции резервуара Приложение П.10. Форма акта на приемку основания и фундаментов Приложение П.11. Форма акта контроля качества смонтированных конструкций резервуара Приложение П.12. Форма заключения о качестве сварных соединений по результатам радиографического контроля Приложение П.13. Форма акта гидравлического испытания резервуара Приложение П.14. Форма акта испытания резервуара на внутреннее избыточное давление и вакуум Приложение П.15. Форма акта завершения монтажа конструкций Приложение П.16. Паспорт стального вертикального цилиндрического резервуара Приложение П.17. Резервуары с защитной стенкой Приложение П.18. Примеры расчета допускаемых нагрузок на патрубок Приложение П.19. Особые типы днищ Приложение П.20. Список используемой литературы | | Разработан: | НО Ассоциация Ростехэкспертиза ООО НПК Изотермик ОАО Фундаментпроект
| | Утверждён: | 19.05.2009 Ассоциация Ростехэкспертиза (2)
| | Издан: | ООО НПК Изотермик (2009 г. )
| | Расположен в: |
| | Список изменений: | | | Нормативные ссылки: |   ГОСТ 21779-82 «Система обеспечения точности геометрических параметров в строительстве. Технологические допуски»  ГОСТ 535-88 «Прокат сортовой и фасонный из стали углеродистой обыкновенного качества. Общие технические условия»  ГОСТ 1050-88 «Прокат сортовой, калиброванный, со специальной отделкой поверхности из углеродистой качественной конструкционной стали. Общие технические условия»  ГОСТ 3242-79 «Соединения сварные. Методы контроля качества»  ГОСТ 5264-80 «Ручная дуговая сварка. Соединения сварные. Основные типы, конструктивные элементы и размеры»  ГОСТ 6713-91 «Прокат низколегированный конструкционный для мостостроения. Технические условия»  ГОСТ 6996-66 «Сварные соединения. Методы определения механических свойств»  ГОСТ 7512-82 «Контроль неразрушающий. Соединения сварные. Радиографический метод»  ГОСТ 8713-79 «Сварка под флюсом. Соединения сварные. Основные типы, конструктивные элементы и размеры»  ГОСТ 9467-75 «Электроды покрытые металлические для ручной дуговой сварки конструкционных и теплоустойчивых сталей. Типы»  ГОСТ 14637-89 «Прокат толстолистовой из углеродистой стали обыкновенного качества. Технические условия»  ГОСТ 14782-86 «Контроль неразрушающий. Соединения сварные. Методы ультразвуковые»  ГОСТ 19281-89 «Прокат из стали повышенной прочности. Общие технические условия»  ГОСТ 19903-74 «Прокат листовой горячекатаный. Сортамент»  ГОСТ 15150-69 «Машины, приборы и другие технические изделия. Исполнения для различных климатических районов. Категории, условия эксплуатации, хранения и транспортирования в части воздействия климатических факторов внешней среды»  ГОСТ 18442-80 «Контроль неразрушающий. Капиллярные методы. Общие требования»  ГОСТ 4784-97 «Алюминий и сплавы алюминиевые деформируемые. Марки»  ГОСТ 14771-76 «Дуговая сварка в защитном газе. Соединения сварные. Основные типы. Конструктивные элементы и размеры»  ГОСТ 7502-98 «Рулетки измерительные металлические. Технические условия»  ГОСТ 166-89 «Штангенциркули. Технические условия»  ГОСТ 427-75 «Линейки измерительные металлические. Технические условия»  ГОСТ 9.014-78 «Единая система защиты от коррозии и старения. Временная противокоррозионная защита изделий. Общие требования»  ГОСТ 9454-78 «Металлы. Метод испытания на ударный изгиб при пониженных, комнатной и повышенных температурах»  ГОСТ 12815-80 «Фланцы арматуры, соединительных частей и трубопроводов на Ру от 0,1 до 20,0 МПа (от 1 до 200 кгс/см кв.). Типы. Присоединительные размеры и размеры уплотнительных поверхностей»  ГОСТ 12816-80 «Фланцы арматуры, соединительных частей и трубопроводов на Ру от 0,1 до 20,0 МПа (от 1 до 200 кгс/см2). Общие технические требования»  ГОСТ 12820-80 «Фланцы стальные плоские приварные на Ру от 0,1 до 2,5 МПа (от 1 до 25 кгс/см2). Конструкция и размеры»  ГОСТ 12821-80 «Фланцы стальные приварные встык на Ру от 0,1 до 20,0 МПа (от 1 до 200 кгс/см2). Конструкция и размеры»  ГОСТ 1510-84 «Нефть и нефтепродукты. Маркировка, упаковка, транспортирование и хранение»  ГОСТ 23055-78 «Контроль неразрушающий. Сварка металлов плавлением. Классификация сварных соединений по результатам радиографического контроля»  ГОСТ 21105-87 «Контроль неразрушающий. Магнитопорошковый метод»  ГОСТ 2789-73 «Шероховатость поверхности. Параметры и характеристики»  ГОСТ 8.417-2002 «Государственная система обеспечения единства измерений. Единицы величин»  ГОСТ 8617-81 «Профили прессованные из алюминия и алюминиевых сплавов. Технические условия»  ГОСТ 22727-88 «Прокат листовой. Методы ультразвукового контроля»  ГОСТ 9.402-2004 «Единая система защиты от коррозии и старения. Покрытия лакокрасочные. Подготовка металлических поверхностей к окрашиванию»  ГОСТ Р 1.4-2004 «Стандартизация в Российской Федерации. Стандарты организаций. Общие положения» ГОСТ Р 52350.10-2005 «Электрооборудование для взрывоопасных газовых сред. Часть 10. Классификация взрывоопасных зон» ОСТ 26.291-87 «Сосуды и аппараты сварные. Общие технические условия» РД 08-296-99 «Положение об организации технического надзора за соблюдением проектных решений и качеством строительства, капитального ремонта и реконструкции на объектах магистральных трубопроводов» «Положение о Федеральной службе по экологическому, технологическому и атомному надзору»  ГОСТ 535-2005 «Прокат сортовой и фасонный из стали углеродистой обыкновенного качества. Общие технические условия»  ГОСТ Р 52910-2008 «Резервуары вертикальные цилиндрические стальные для нефти и нефтепродуктов. Общие технические условия»  ГОСТ Р 52857.1-2007 «Сосуды и аппараты. Нормы и методы расчета на прочность. Общие требования»  ГОСТ Р 52857.6-2007 «Сосуды и аппараты. Нормы и методы расчета на прочность. Расчет на прочность при малоцикловых нагрузках»  СТО 36554501-014-2008 «Надежность строительных конструкций и оснований. Основные положения» Федеральный закон 384-ФЗ «Технический регламент о безопасности зданий и сооружений»  ГОСТ Р ИСО 9000-2008 «Системы менеджмента качества. Основные положения и словарь»  ГОСТ Р ИСО 9001-2008 «Системы менеджмента качества. Требования»  СТО 36554501-015-2008 «Нагрузки и воздействия»  ГОСТ Р 53324-2009 «Ограждения резервуаров. Требования пожарной безопасности»  ГОСТ 31385-2008 «Резервуары вертикальные цилиндрические стальные для нефти и нефтепродуктов. Общие технические условия» СТО 36554501-016-2009 «Строительство в сейсмических районах. Нормы проектирования зданий»  ПБ 03-517-02 «Общие правила промышленной безопасности для организаций, осуществляющих деятельность в области промышленной безопасности опасных производственных объектов»  РД 03-495-02 «Технологический регламент проведения аттестации сварщиков и специалистов сварочного производства»  ПБ 09-540-03 «Общие правила взрывобезопасности для взрывопожароопасных химических, нефтехимических и нефтеперерабатывающих производств» РД 34.21.122-87 «Инструкция по устройству молниезащиты зданий и сооружений»  СН 245-71 «Санитарные нормы проектирования промышленных предприятий» ПБ 10-14-92 «Правила устройства и безопасной эксплуатации грузоподъемных кранов»  ГОСТ 12.3.016-87 «Система стандартов безопасности труда. Строительство. Работы антикоррозионные. Требования безопасности»  ГОСТ 27751-88 «Надежность строительных конструкций и оснований. Основные положения по расчету»  ГОСТ 23120-78 «Лестницы маршевые, площадки и ограждения стальные. Технические условия»  ГОСТ 24379.0-80 «Болты фундаментные. Общие технические условия»  ГОСТ 5632-72 «Стали высоколегированные и сплавы коррозионно-стойкие, жаростойкие и жаропрочные. Марки»  ГОСТ 8240-89 «Швеллеры стальные горячекатаные. Сортамент»  ГОСТ 8509-93 «Уголки стальные горячекатаные равнополочные. Сортамент»  ГОСТ 27772-88 «Прокат для строительных стальных конструкций. Общие технические условия» ГОСТ 896-69 «Материалы лакокрасочные. Фотоэлектрический метод определения блеска»  ГОСТ 9307-78 «Красители органические. Нигрозин спирторастворимый. Технические условия»  ГОСТ 12.3.005-75 «Система стандартов безопасности труда. Работы окрасочные. Общие требования безопасности»  ГОСТ 12.4.011-89 «Система стандартов безопасности труда. Средства защиты работающих. Общие требования и классификация»  ПБ 09-560-03 «Правила промышленной безопасности нефтебаз и складов нефтепродуктов»  ПБ 03-605-03 «Правила устройства вертикальных цилиндрических стальных резервуаров для нефти и нефтепродуктов»  РД 03-606-03 «Инструкция по визуальному и измерительному контролю»  РД 03-613-03 «Порядок применения сварочных материалов при изготовлении, монтаже, ремонте и реконструкции технических устройств для опасных производственных объектов»  РД 03-615-03 «Порядок применения сварочных технологий при изготовлении, монтаже, ремонте и реконструкции технических устройств для опасных производственных объектов»  РД 03-614-03 «Порядок применения сварочного оборудования при изготовлении, монтаже, ремонте и реконструкции технических устройств для опасных производственных объектов»  СО 153-34.21.122-2003 «Инструкция по устройству молниезащиты зданий, сооружений и промышленных коммуникаций»  НП 031-01 «Нормы проектирования сейсмостойких атомных станций»  СП 11-105-97 «Инженерно-геологические изыскания для строительства. Часть I. Общие правила производства работ» Федеральный закон 116-ФЗ «О промышленной безопасности опасных производственных объектов»  СНиП 23-01-99* «Строительная климатология»  ПБ 03-273-99 «Правила аттестации сварщиков и специалистов сварочного производства»  СТО АСЧМ 20-93 «Прокат стальной сортовой фасонного профиля. Двутавры горячекатаные с параллельными гранями полок. Технические условия» ВНТП 5-95 «Нормы технологического проектирования предприятий по обеспечению нефтепродуктами (нефтебаз)»  СНиП 11-02-96 «Инженерные изыскания для строительства. Основные положения»  ГОСТ 13726-97 «Ленты из алюминия и алюминиевых сплавов. Технические условия»  СНиП 12-03-2001 «Безопасность труда в строительстве. Часть 1. Общие требования»  СНиП 2.01.07-85* «Нагрузки и воздействия»  СНиП 2.03.11-85 «Защита строительных конструкций от коррозии»  СНиП 2.11.03-93 «Склады нефти и нефтепродуктов. Противопожарные нормы»  СНиП 2.01.09-91 «Здания и сооружения на подрабатываемых территориях и просадочных грунтах»  СНиП II-7-81* «Строительство в сейсмических районах»  СНиП 2.09.03-85 «Сооружения промышленных предприятий»  СНиП 2.02.01-83* «Основания зданий и сооружений»  СНиП 2.02.03-85 «Свайные фундаменты»  СНиП 2.02.04-88 «Основания и фундаменты на вечномерзлых грунтах»  СНиП 2.03.06-85 «Алюминиевые конструкции»  СНиП 3.03.01-87 «Несущие и ограждающие конструкции»  СНиП II-23-81* «Стальные конструкции»  ГОСТ 5582-75 «Прокат тонколистовой коррозионно-стойкий, жаростойкий и жаропрочный. Технические условия»  ГОСТ 7350-77 «Сталь толстолистовая коррозионно-стойкая, жаростойкая и жаропрочная. Технические условия»  СНиП 12-04-2002 «Безопасность труда в строительстве. Часть 2. Строительное производство» Федеральный закон 184-ФЗ «О техническом регулировании»
|
                                                                                                                                                                                                                                                                          
Текстовое изменение № ИД-2010 от 10.01.2011
                                                   
|