Информационная система
«Ёшкин Кот»

Скачать базу одним архивом
Скачать обновления
История создания базы
Карта сайта

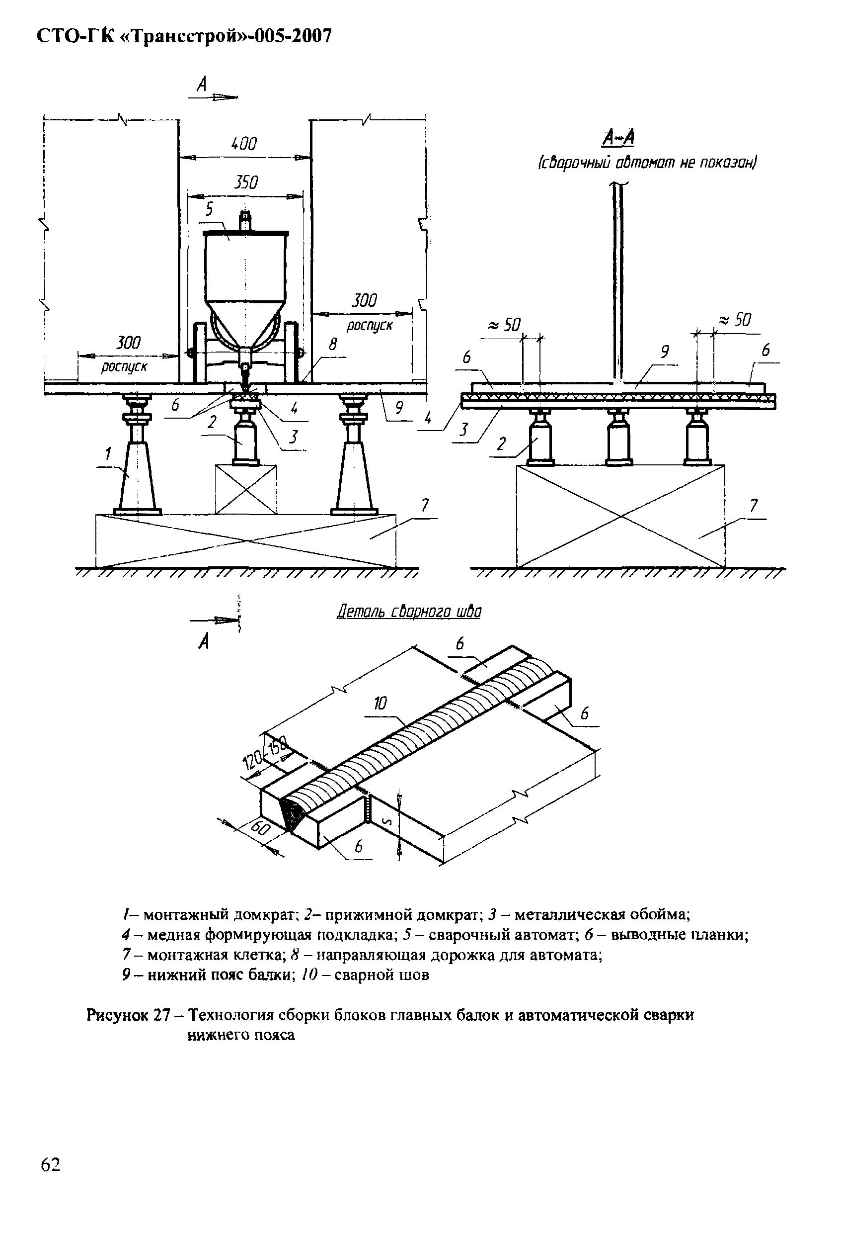
Скачать СТО-ГК Трансстрой 005-2007 Стандарт организации. Стальные конструкции мостов. Технология монтажной сварки

Дата актуализации: 10.08.2017

СТО-ГК "Трансстрой" 005-2007

Стандарт организации. Стальные конструкции мостов. Технология монтажной сварки

Обозначение: СТО-ГК "Трансстрой" 005-2007
Обозначение англ: 005-2007
Статус:действует
Название рус.:Стандарт организации. Стальные конструкции мостов. Технология монтажной сварки
Дата добавления в базу:01.09.2013
Дата актуализации:05.05.2017
Дата введения:24.08.2007
Область применения:Стандарт организации необходимо соблюдать при проектировании, монтаже, реконструкции, ремонте и приемке стальных конструкций мостов, имеющих сварные монтажные соединения. Стандарт распространяется на монтажную сварку конструкций автомобильно-дорожных, железнодорожных, городских, совмещенных и пешеходных мостов, путепроводов, виадуков, эстакад, сооружаемых в любых климатических зонах, а также в районах с расчетной сейсмичностью до 9 баллов включительно
Оглавление:1. Область применения
2. Нормативные ссылки
3. Термины и определения
4. Общие указания
5. Типы монтажных сварных соединений в конструкциях мостов. Способы сварки
6. Требования к сварочным материалам и оборудованию
7. Подготовка и сборка монтажных соединений под сварку
8. Технология сварки монтажных соединений
9. Последовательность операций по сборке и сварке конструктивных элементов пролетного строения
10. Требования к качеству сварки и сварных соединений. Контроль качества
11. Исправление дефектных участков швов и правка деформированных конструкций
12. Механическая обработка сварных соединений
13. Приемка сварных мостовых конструкций
14. Обеспечение безопасности труда
Приложение А
Приложение Б
Приложение В
Приложение Г
Приложение Д
Приложение Е
Приложение Ж
Приложение И (обязательное)
Разработан: Научно-исследовательский центр Мосты
РОО Научно-техническая ассоциация ученых и специалистов транспортного строительства
ООО Группа компаний Трансстрой
Утверждён:22.08.2007 ООО Группа компаний Трансстрой (ГК/ПН-56)
Принят:24.05.2007 ОАО Корпорация Трансстрой (Transstroy Corporation OAO К/173)
22.10.2007 ЗАО ЦНИИПСК им. Мельникова (6-2780)
08.06.2007 ОАО Гипростроймост (С-1006)
13.08.2007 ОАО Волгомост (6/14-264)
13.08.2007 ОАО Сибмост (1062)
Расположен в:Техническая документация
Заменяет собой:
Нормативные ссылки:
СТО-ГК "Трансстрой" 005-2007СТО-ГК "Трансстрой" 005-2007СТО-ГК "Трансстрой" 005-2007СТО-ГК "Трансстрой" 005-2007СТО-ГК "Трансстрой" 005-2007СТО-ГК "Трансстрой" 005-2007СТО-ГК "Трансстрой" 005-2007СТО-ГК "Трансстрой" 005-2007СТО-ГК "Трансстрой" 005-2007СТО-ГК "Трансстрой" 005-2007СТО-ГК "Трансстрой" 005-2007СТО-ГК "Трансстрой" 005-2007СТО-ГК "Трансстрой" 005-2007СТО-ГК "Трансстрой" 005-2007СТО-ГК "Трансстрой" 005-2007СТО-ГК "Трансстрой" 005-2007СТО-ГК "Трансстрой" 005-2007СТО-ГК "Трансстрой" 005-2007СТО-ГК "Трансстрой" 005-2007СТО-ГК "Трансстрой" 005-2007СТО-ГК "Трансстрой" 005-2007СТО-ГК "Трансстрой" 005-2007СТО-ГК "Трансстрой" 005-2007СТО-ГК "Трансстрой" 005-2007СТО-ГК "Трансстрой" 005-2007СТО-ГК "Трансстрой" 005-2007СТО-ГК "Трансстрой" 005-2007СТО-ГК "Трансстрой" 005-2007СТО-ГК "Трансстрой" 005-2007СТО-ГК "Трансстрой" 005-2007СТО-ГК "Трансстрой" 005-2007СТО-ГК "Трансстрой" 005-2007СТО-ГК "Трансстрой" 005-2007СТО-ГК "Трансстрой" 005-2007СТО-ГК "Трансстрой" 005-2007СТО-ГК "Трансстрой" 005-2007СТО-ГК "Трансстрой" 005-2007СТО-ГК "Трансстрой" 005-2007СТО-ГК "Трансстрой" 005-2007СТО-ГК "Трансстрой" 005-2007СТО-ГК "Трансстрой" 005-2007СТО-ГК "Трансстрой" 005-2007СТО-ГК "Трансстрой" 005-2007СТО-ГК "Трансстрой" 005-2007СТО-ГК "Трансстрой" 005-2007СТО-ГК "Трансстрой" 005-2007СТО-ГК "Трансстрой" 005-2007СТО-ГК "Трансстрой" 005-2007СТО-ГК "Трансстрой" 005-2007СТО-ГК "Трансстрой" 005-2007СТО-ГК "Трансстрой" 005-2007СТО-ГК "Трансстрой" 005-2007СТО-ГК "Трансстрой" 005-2007СТО-ГК "Трансстрой" 005-2007СТО-ГК "Трансстрой" 005-2007СТО-ГК "Трансстрой" 005-2007СТО-ГК "Трансстрой" 005-2007СТО-ГК "Трансстрой" 005-2007СТО-ГК "Трансстрой" 005-2007СТО-ГК "Трансстрой" 005-2007СТО-ГК "Трансстрой" 005-2007СТО-ГК "Трансстрой" 005-2007СТО-ГК "Трансстрой" 005-2007СТО-ГК "Трансстрой" 005-2007СТО-ГК "Трансстрой" 005-2007СТО-ГК "Трансстрой" 005-2007СТО-ГК "Трансстрой" 005-2007СТО-ГК "Трансстрой" 005-2007СТО-ГК "Трансстрой" 005-2007СТО-ГК "Трансстрой" 005-2007СТО-ГК "Трансстрой" 005-2007СТО-ГК "Трансстрой" 005-2007СТО-ГК "Трансстрой" 005-2007СТО-ГК "Трансстрой" 005-2007СТО-ГК "Трансстрой" 005-2007СТО-ГК "Трансстрой" 005-2007СТО-ГК "Трансстрой" 005-2007СТО-ГК "Трансстрой" 005-2007СТО-ГК "Трансстрой" 005-2007СТО-ГК "Трансстрой" 005-2007СТО-ГК "Трансстрой" 005-2007СТО-ГК "Трансстрой" 005-2007СТО-ГК "Трансстрой" 005-2007СТО-ГК "Трансстрой" 005-2007СТО-ГК "Трансстрой" 005-2007СТО-ГК "Трансстрой" 005-2007СТО-ГК "Трансстрой" 005-2007СТО-ГК "Трансстрой" 005-2007СТО-ГК "Трансстрой" 005-2007СТО-ГК "Трансстрой" 005-2007СТО-ГК "Трансстрой" 005-2007СТО-ГК "Трансстрой" 005-2007СТО-ГК "Трансстрой" 005-2007СТО-ГК "Трансстрой" 005-2007СТО-ГК "Трансстрой" 005-2007СТО-ГК "Трансстрой" 005-2007СТО-ГК "Трансстрой" 005-2007СТО-ГК "Трансстрой" 005-2007СТО-ГК "Трансстрой" 005-2007СТО-ГК "Трансстрой" 005-2007СТО-ГК "Трансстрой" 005-2007СТО-ГК "Трансстрой" 005-2007СТО-ГК "Трансстрой" 005-2007СТО-ГК "Трансстрой" 005-2007СТО-ГК "Трансстрой" 005-2007СТО-ГК "Трансстрой" 005-2007СТО-ГК "Трансстрой" 005-2007СТО-ГК "Трансстрой" 005-2007СТО-ГК "Трансстрой" 005-2007СТО-ГК "Трансстрой" 005-2007СТО-ГК "Трансстрой" 005-2007СТО-ГК "Трансстрой" 005-2007СТО-ГК "Трансстрой" 005-2007СТО-ГК "Трансстрой" 005-2007СТО-ГК "Трансстрой" 005-2007СТО-ГК "Трансстрой" 005-2007СТО-ГК "Трансстрой" 005-2007СТО-ГК "Трансстрой" 005-2007СТО-ГК "Трансстрой" 005-2007СТО-ГК "Трансстрой" 005-2007СТО-ГК "Трансстрой" 005-2007СТО-ГК "Трансстрой" 005-2007СТО-ГК "Трансстрой" 005-2007СТО-ГК "Трансстрой" 005-2007СТО-ГК "Трансстрой" 005-2007СТО-ГК "Трансстрой" 005-2007СТО-ГК "Трансстрой" 005-2007СТО-ГК "Трансстрой" 005-2007СТО-ГК "Трансстрой" 005-2007СТО-ГК "Трансстрой" 005-2007СТО-ГК "Трансстрой" 005-2007СТО-ГК "Трансстрой" 005-2007СТО-ГК "Трансстрой" 005-2007СТО-ГК "Трансстрой" 005-2007СТО-ГК "Трансстрой" 005-2007СТО-ГК "Трансстрой" 005-2007СТО-ГК "Трансстрой" 005-2007СТО-ГК "Трансстрой" 005-2007СТО-ГК "Трансстрой" 005-2007СТО-ГК "Трансстрой" 005-2007СТО-ГК "Трансстрой" 005-2007СТО-ГК "Трансстрой" 005-2007СТО-ГК "Трансстрой" 005-2007СТО-ГК "Трансстрой" 005-2007СТО-ГК "Трансстрой" 005-2007СТО-ГК "Трансстрой" 005-2007СТО-ГК "Трансстрой" 005-2007СТО-ГК "Трансстрой" 005-2007СТО-ГК "Трансстрой" 005-2007СТО-ГК "Трансстрой" 005-2007СТО-ГК "Трансстрой" 005-2007СТО-ГК "Трансстрой" 005-2007СТО-ГК "Трансстрой" 005-2007СТО-ГК "Трансстрой" 005-2007СТО-ГК "Трансстрой" 005-2007СТО-ГК "Трансстрой" 005-2007СТО-ГК "Трансстрой" 005-2007СТО-ГК "Трансстрой" 005-2007СТО-ГК "Трансстрой" 005-2007СТО-ГК "Трансстрой" 005-2007СТО-ГК "Трансстрой" 005-2007СТО-ГК "Трансстрой" 005-2007

© 2013 Ёшкин Кот :-) Карта сайта